Информационная система
«Ёшкин Кот»

Скачать базу одним архивом
Скачать обновления
История создания базы
Карта сайта

Скачать Типовой проект 903-1-289.91 Альбом 8. Часть 1. Автоматизация. Связь и сигнализация

Дата актуализации: 10.08.2017

Типовой проект 903-1-289.91

Альбом 8. Часть 1. Автоматизация. Связь и сигнализация

Обозначение: Типовой проект 903-1-289.91
Обозначение англ: 903-1-289.91
Статус:не определен законодательством
Название рус.:Альбом 8. Часть 1. Автоматизация. Связь и сигнализация
Дата добавления в базу:01.09.2013
Дата актуализации:05.05.2017
Дата введения:22.08.1991
Оглавление:Содержание
Автоматизация - А
   Общие данные
   Котлоагрегат. Топливо - каменный уголь. Схема автоматизации
   Котлоагрегат. Топливо - бурый уголь. Схема автоматизации
   Деаэрационно-питательная установка и общекотельные трубопроводы. Схема автоматизации
   Общекотельное оборудование. Насосная мокрой уборки котельной. Схемы автоматизации и соединений внешних проводок
   Общекотельное оборудование. Насосная мокрой уборки тракта топливоподачи. Схемы автоматизации и соединений внешних проводок
   Общекотельное оборудование. Насосная оборотного водоснабжения. Схемы автоматизации и соединений внешних проводок
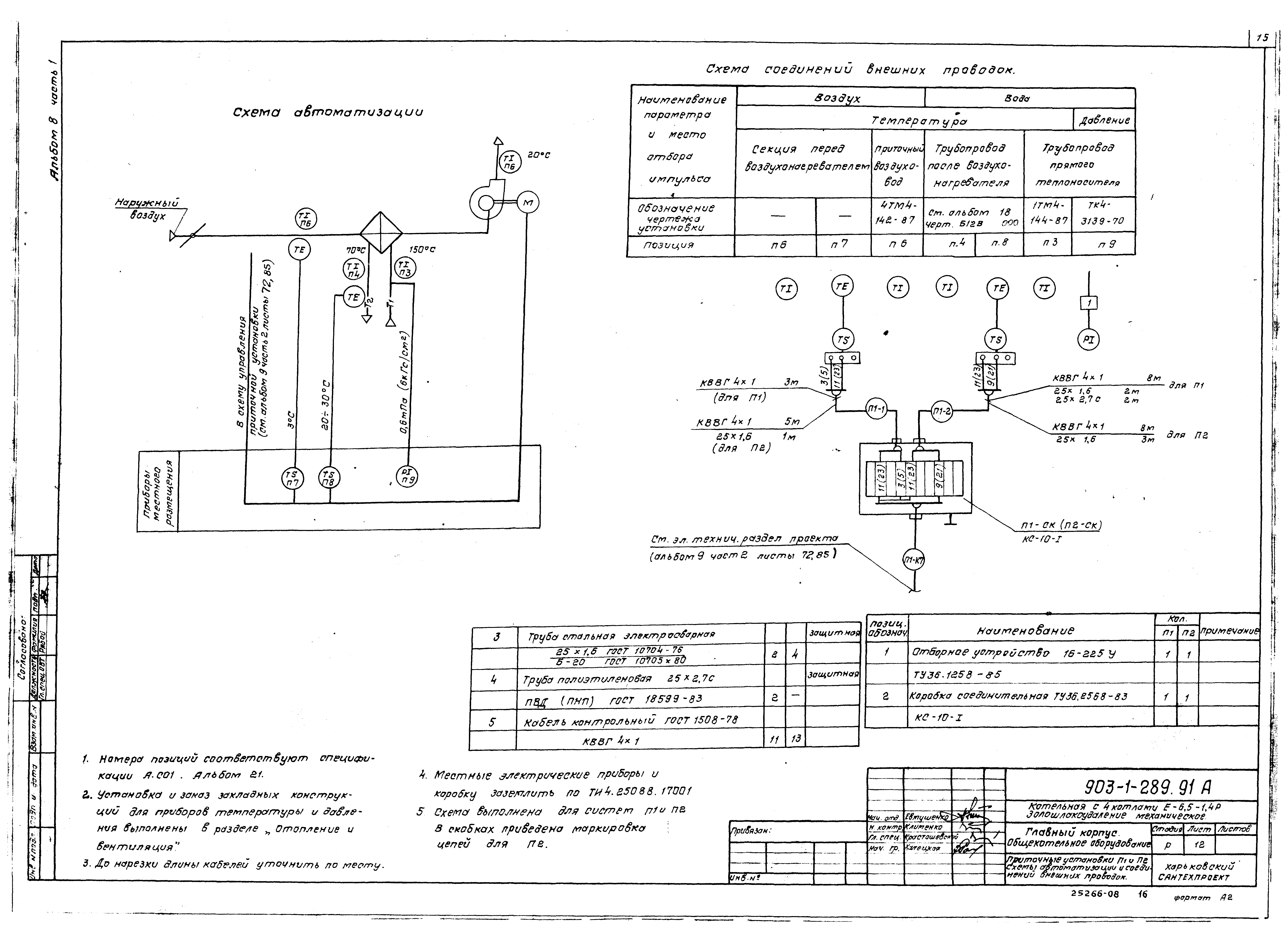
   Общекотельное оборудование. Приточные установки П1 и П2. Схемы автоматизации и соединений внешних проводок
   Общекотельное оборудование. Узел управления. Схемы автоматизации и соединений внешних проводок
   Водоподогревательная установка. Схема автоматизации
   Установка горячего водоснабжения. Схема автоматизации
   Водоподготовительная установка. Схема 1. Схема автоматизации
   Водоподготовительная установка. Схема 2. Схема автоматизации
   Котлоагрегат. Схема электрическая принципиальная регулятора топлива
   Котлоагрегат. Схема электрическая принципиальная регулятора воздуха
   Котлоагрегат. Схема электрическая принципиальная регулятора разрежения
   Котлоагрегат. Схема электрическая принципиальная регулятора уровня
   Котлоагрегат. Схема электрическая принципиальная управления шибером золоуловителя
   Схема электрическая принципиальная регулятора давления питательной воды
   Схема электрическая принципиальная регулятора давления в деаэраторе
   Схема электрическая принципиальная регулятора температуры сетевой воды
   Схема электрическая принципиальная регулятора температуры деаэрированной воды
   Схема электрическая принципиальная регулятора уровня в промежуточном баке
   Котлоагрегат. Щит управления ЩКЕ. Принципиальная схема питания
   Котлоагрегат. Щит общих замеров. Принципиальная схема питания
   Деаэрационно-питательная установка и общекотельное оборудование. Щит управления №1. Принципиальная схема питания
   Водоподогревательная установка. Щит управления №2. Принципиальная схема питания
   Установка горячего водоснабжения. Щит управления №3. Принципиальная схема питания
   Деаэрационно-питательная установка и общекотельное оборудование. Щит управления №4. Принципиальная схема питания
   Котлоагрегат. Схемы электрические принципиальные защиты и технологической сигнализации
   Общекотельное оборудование. Схема электрическая принципиальная технологической сигнализации
Разработан: Харьковский Сантехпроект
Утверждён:22.08.1991 Сантехниипроект (25)
Издан: АПП ЦИТП (1992 г. )
Расположен в:Техническая документация Строительство Справочные документы Типовые строительные конструкции, изделия и узлы Общероссийский строительный каталог Промышленные предприятия, здания и сооружения Здания и сооружения санитарно-технические Теплоснабжение Котельные установки Закрытые системы теплоснабжения Топливо - каменные и бурые угли
Заменяет собой:
Типовой проект 903-1-289.91Типовой проект 903-1-289.91Типовой проект 903-1-289.91Типовой проект 903-1-289.91Типовой проект 903-1-289.91Типовой проект 903-1-289.91Типовой проект 903-1-289.91Типовой проект 903-1-289.91Типовой проект 903-1-289.91Типовой проект 903-1-289.91Типовой проект 903-1-289.91Типовой проект 903-1-289.91Типовой проект 903-1-289.91Типовой проект 903-1-289.91Типовой проект 903-1-289.91Типовой проект 903-1-289.91Типовой проект 903-1-289.91Типовой проект 903-1-289.91Типовой проект 903-1-289.91Типовой проект 903-1-289.91Типовой проект 903-1-289.91Типовой проект 903-1-289.91Типовой проект 903-1-289.91Типовой проект 903-1-289.91Типовой проект 903-1-289.91Типовой проект 903-1-289.91Типовой проект 903-1-289.91Типовой проект 903-1-289.91Типовой проект 903-1-289.91Типовой проект 903-1-289.91Типовой проект 903-1-289.91Типовой проект 903-1-289.91Типовой проект 903-1-289.91Типовой проект 903-1-289.91Типовой проект 903-1-289.91Типовой проект 903-1-289.91Типовой проект 903-1-289.91Типовой проект 903-1-289.91Типовой проект 903-1-289.91Типовой проект 903-1-289.91Типовой проект 903-1-289.91Типовой проект 903-1-289.91Типовой проект 903-1-289.91Типовой проект 903-1-289.91Типовой проект 903-1-289.91

© 2013 Ёшкин Кот :-) Карта сайта