Информационная система
«Ёшкин Кот»

Скачать базу одним архивом
Скачать обновления
История создания базы
Карта сайта

Скачать Типовой проект 903-1-289.91 Альбом 7. Блоки тепломеханического оборудования. Блоки водоподготовки

Дата актуализации: 10.08.2017

Типовой проект 903-1-289.91

Альбом 7. Блоки тепломеханического оборудования. Блоки водоподготовки

Обозначение: Типовой проект 903-1-289.91
Обозначение англ: 903-1-289.91
Статус:не определен законодательством
Название рус.:Альбом 7. Блоки тепломеханического оборудования. Блоки водоподготовки
Дата добавления в базу:01.09.2013
Дата актуализации:05.05.2017
Дата введения:22.08.1991
Оглавление:Технические требования на изготовление и монтаж блоков
Блоки тепломеханического оборудования - ТМ.Н
   Блок деаэрационно-питательной установки БДПУ-25 (поз. II-К13). Схема. Спецификация
   Блок деаэрационно-питательной установки БДПУ-25 (поз. II-К13). Общий вид
   Блок питательных насосов БПН-38-1,76 (поз. II-К14). Схема. Спецификация
   Блок питательных насосов БПН-38-1,76 (поз. II-К14). Общий вид
    Блок редукционной установки БРУ-30 (поз. II-К15). Схема. Спецификация
    Блок редукционной установки БРУ-30 (поз. II-К15). Общий вид
   Блок сепаратора периодической продувки БСПП-0,15-1,6 (поз. II-К16). Схема. Общий вид. Спецификация
   Блок сепаратора непрерывной продувки БСНП-0,15-1,6 (поз. II-К17). Схема. Общий вид. Спецификация
   Блок холодильника отбора проб БХОП (поз. I-К9; II-К18). Общий вид. Спецификация
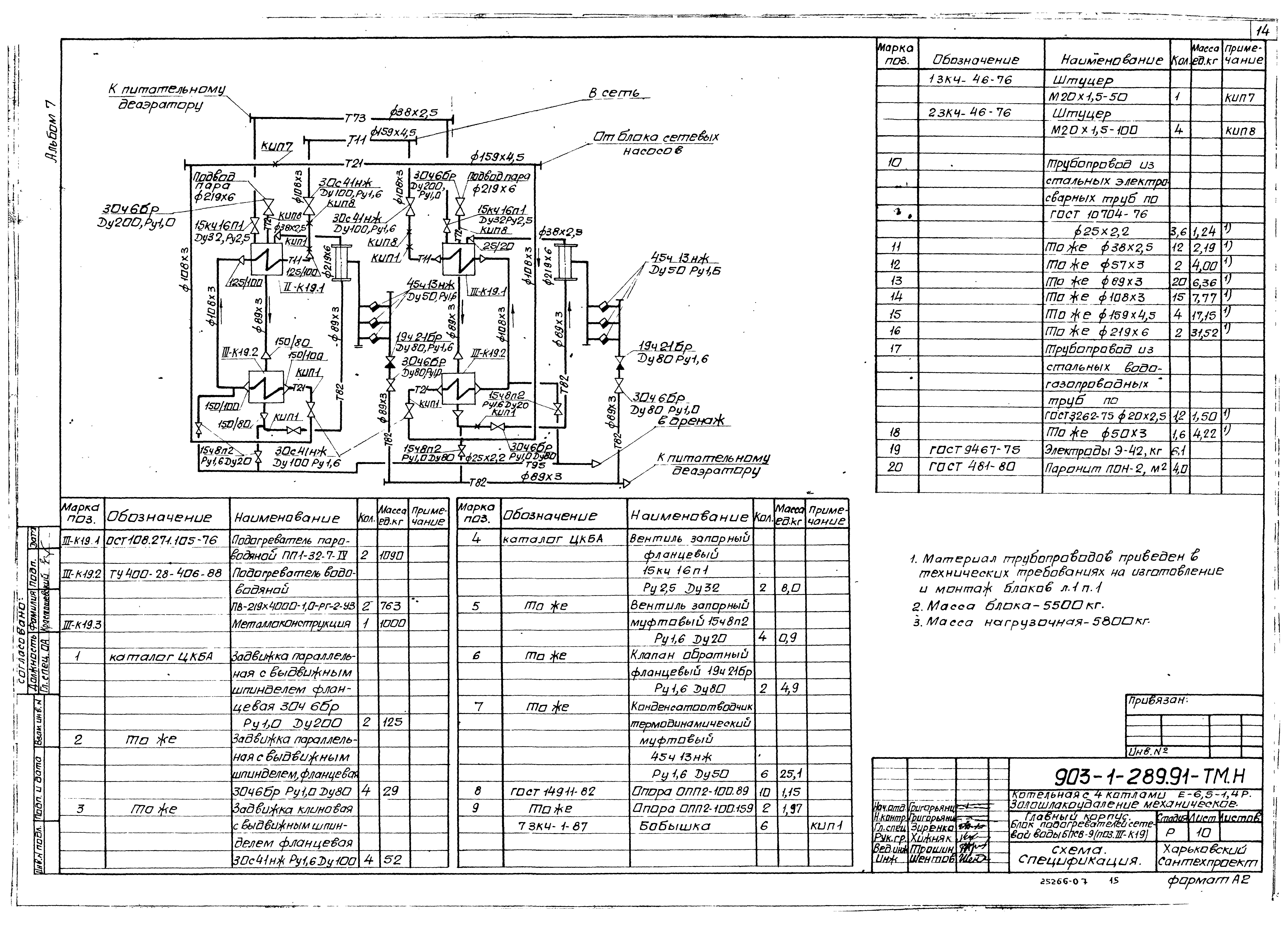
   Блок подогревателей сетевой воды БПСВ-9 (поз. III-К19). Схема. Спецификация
   Блок подогревателей сетевой воды БПСВ-9 (поз. III-К19). Общий вид
   Блок сетевых насосов БСН-100-0,8 (поз. III-К20). Общий вид. Схема. Спецификация
   Блок подпиточной воды БПВ-7,2-0,26 (поз. III-К22). Общий вид. Схема. Спецификация
   Блок эжекторов вакуумного деаэратора БЭВ-30 (поз. IV-К25). Схема. Общий вид. Спецификация
   Блок подогревателей горячего водоснабжения БПГВ-0,7 (поз. IV-К26). Схема. Общий вид. Спецификация
   Блок подготовки перегретой воды БППВ-0,7 (поз. IV-К27). Схема. Общий вид. Спецификация
   Блок перекачивающих насосов БПН-25-0,32 (поз. IV-К28). Схема. Общий вид. Спецификация
   Блок насосов горячего водоснабжения БНГВ-100-0,5 (поз. IV-К31). Схема. Общий вид. Спецификация
   Блок рабочей воды БРВ-30-0,3 (поз. IV-К32). Схема. Общий вид. Спецификация
   Блок антирелаксационный БА-25 (поз. IV-К33). Схема. Общий вид. Спецификация
Блоки водоподготовки - ВП.Н
   Блок подготовки исходной воды БПИВ-25-0,32 (поз. V-А1). Схема. Общий вид. Спецификация
   Блок натрий-катионитных фильтров I и II ступени БФNa-I-II-0,7х5 (поз. V-А2). Схема. Спецификация
   Блок натрий-катионитных фильтров I и II ступени БФNa-I-II-0,7х5 (поз. V-А2). Общий вид
   Блок натрий-катионитных фильтров I ступени БФNa-I-1,0х3 (поз. V-А3). Схема. Спецификация
   Блок натрий-катионитных фильтров I ступени БФNa-I-1,0х3 (поз. V-А3). Общий вид
   Блок натрий-катионитных фильтров II ступени БФNa-II-1,0х2 (поз. V-А4). Схема. Спецификация
   Блок натрий-катионитных фильтров II ступени БФNa-II-1,0х2 (поз. V-А4). Общий вид
   Блок магнитных аппаратов БМА-30 (поз. V-А5). Общий вид. Схема. Спецификация
   Блок подкачивающих насосов БПН-14,4-0,24 (поз. V-А6). Схема. Общий вид. Спецификация
   Блок отмывочных вод БОВФNa-1,0 (поз. V-А7). Схема. Спецификация
   Блок отмывочных вод БОВФNa-1,0 (поз. V-А7). Общий вид
   Блок приготовления регенерационного раствора БРРФNa-0,7 (поз. V-А8). Схема. Спецификация
   Блок приготовления регенерационного раствора БРРФNa-0,7 (поз. V-А8). Общий вид
   Блок приготовления регенерационного раствора БРРФNa-1,0 (поз. V-А9). Схема. Спецификация
   Блок приготовления регенерационного раствора БРРФNa-1,0 (поз. V-А9). Общий вид
   Блок нитратирования химобработанной воды БНВ-10-10 (поз. V-А10). Схема. Спецификация
   Блок нитратирования химобработанной воды БНВ-10-10 (поз. V-А10). Общий вид
   Блок подкисления продувочных вод БППВ-10-10 (поз. V-А11). Схема. Общий вид. Спецификация
   Блок насоса рециркуляции БНРВ-25-0,2 (поз. V-А13). Схема. Общий вид. Спецификация
Разработан: Харьковский Сантехпроект
Утверждён:22.08.1991 Сантехниипроект (25)
Издан: АПП ЦИТП (1992 г. )
Расположен в:Техническая документация Строительство Справочные документы Типовые строительные конструкции, изделия и узлы Общероссийский строительный каталог Промышленные предприятия, здания и сооружения Здания и сооружения санитарно-технические Теплоснабжение Котельные установки Закрытые системы теплоснабжения Топливо - каменные и бурые угли
Заменяет собой:
Типовой проект 903-1-289.91Типовой проект 903-1-289.91Типовой проект 903-1-289.91Типовой проект 903-1-289.91Типовой проект 903-1-289.91Типовой проект 903-1-289.91Типовой проект 903-1-289.91Типовой проект 903-1-289.91Типовой проект 903-1-289.91Типовой проект 903-1-289.91Типовой проект 903-1-289.91Типовой проект 903-1-289.91Типовой проект 903-1-289.91Типовой проект 903-1-289.91Типовой проект 903-1-289.91Типовой проект 903-1-289.91Типовой проект 903-1-289.91Типовой проект 903-1-289.91Типовой проект 903-1-289.91Типовой проект 903-1-289.91Типовой проект 903-1-289.91Типовой проект 903-1-289.91Типовой проект 903-1-289.91Типовой проект 903-1-289.91Типовой проект 903-1-289.91Типовой проект 903-1-289.91Типовой проект 903-1-289.91Типовой проект 903-1-289.91Типовой проект 903-1-289.91Типовой проект 903-1-289.91Типовой проект 903-1-289.91Типовой проект 903-1-289.91Типовой проект 903-1-289.91Типовой проект 903-1-289.91Типовой проект 903-1-289.91Типовой проект 903-1-289.91Типовой проект 903-1-289.91Типовой проект 903-1-289.91Типовой проект 903-1-289.91Типовой проект 903-1-289.91Типовой проект 903-1-289.91Типовой проект 903-1-289.91Типовой проект 903-1-289.91Типовой проект 903-1-289.91

© 2013 Ёшкин Кот :-) Карта сайта