Информационная система
«Ёшкин Кот»

Скачать базу одним архивом
Скачать обновления
История создания базы
Карта сайта

Скачать Типовой проект 903-1-277.90 Альбом 7. Часть 2. Строительно-технологическая блок-секция котлоагрегата ДЕ-25-14ГМ - газовоздухопроводы и вспомогательное оборудование

Дата актуализации: 10.08.2017

Типовой проект 903-1-277.90

Альбом 7. Часть 2. Строительно-технологическая блок-секция котлоагрегата ДЕ-25-14ГМ - газовоздухопроводы и вспомогательное оборудование

Обозначение: Типовой проект 903-1-277.90
Обозначение англ: 903-1-277.90
Статус:не определен законодательством
Название рус.:Альбом 7. Часть 2. Строительно-технологическая блок-секция котлоагрегата ДЕ-25-14ГМ - газовоздухопроводы и вспомогательное оборудование
Дата добавления в базу:01.09.2013
Дата актуализации:05.05.2017
Дата введения:30.04.1990
Оглавление:Конденсатопроводчик
   24.01.00.000СБ Конденсатопроводчик
   24.01.01.000СБ Корпус
   24.01.00.000 Конденсатопроводчик
   24.01.01.000 Корпус
   24.01.01.001 Крышка
   24.01.01.002 Днище
   24.01.01.006 Фланец
   24.01.02.000СБ Крышка
   24.01.02.001 Крышка
   24.01.02.002 Ручка
   24.01.02.000 Крышка
   24.01.03.000СБ Кронштейн
   24.01.03.001 Подпорка
   24.01.03.002 Полка
   24.01.03.000 Кронштейн
Камера управления
   55.01.00.000 Камера управления
   55.01.00.000СБ Камера управления
   55.01.01.000 Камера
   55.01.01.000СБ Камера
   55.01.01.001 Ушко
   55.01.01.002 Крышка
   55.01.01.003 Боковина
   55.01.01.100 Каркас
   55.01.01.101 Ребро
   55.01.01.100СБ Каркас
   55.01.01.102 Ребро
   55.01.01.103 Ребро
   55.01.01.104 Усилитель
   55.01.01.200 Створка петли со штырем
   55.01.01.200СБ Створка петли со штырем
   55.01.01.201 Створка петли
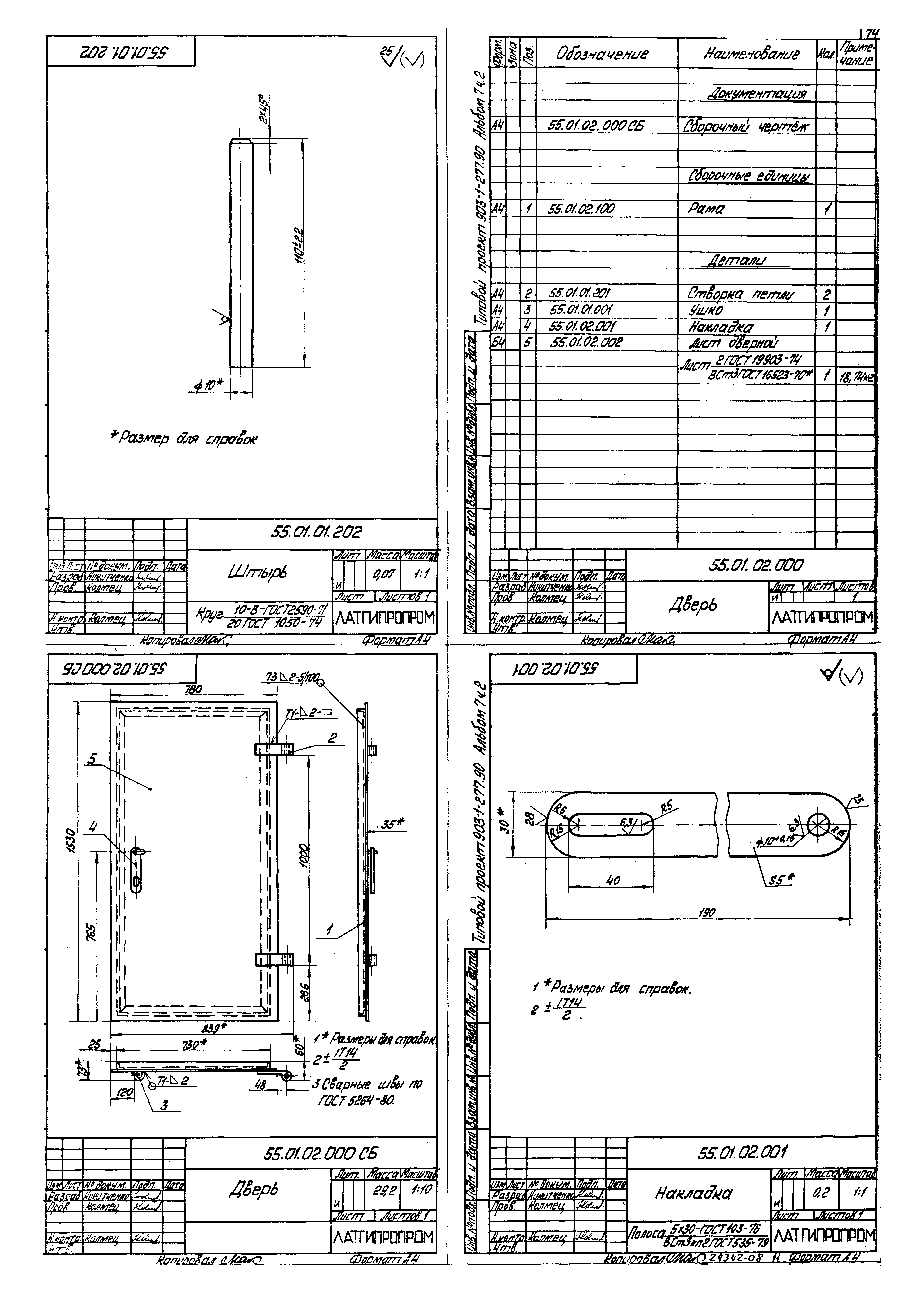
   55.01.01.202 Штырь
   55.01.02.000 Дверь
   55.01.02.000СБ Дверь
   55.01.02.001 Накладка
   55.01.02.100 Рама
   55.01.02.100СБ Рама
   55.01.02.101 Полка
   50.07.60.001 Опора №2
   50.17.00.000 Опора
   50.17.00.000СБ Опора
   50.17.00.001 Кронштейн
   50.17.00.002 Кронштейн
   50.18.00.000 Опора
   50.18.00.000СБ Опора
   50.07.50.002 Планка
   63.01.00.001 Воронка
Лаз борова
   58.01.00.000 Лаз борова
   58.01.00.003 Ось
   58.01.00.002 Дверка
   58.01.00.000СБ Лаз борова
   58.01.00.001 Корпус
Бак-медник V = 2 куб. м
   24.03.00.000СБ Бак-медник V = 2 куб. м
   24.03.00.000 Бак-медник V = 2 куб. м
   24.03.00.001 Рейка
   24.03.01.000 Бак
   24.03.01.000СБ Бак
   24.03.01.001 Корпус
   24.03.01.002 Кольцо
   24.03.01.003 Днище
   24.03.01.004 Фланец
   24.03.01.005 Патрубок
   24.03.01.006 Патрубок
   24.03.01.007 Сегмент
   24.03.01.008 Сектор
   24.03.01.009 Балка
   24.03.01.010 Кронштейн
   24.03.01.011 Бобышка
   24.03.02.000 Крышка
   24.03.02.000СБ Крышка
   24.03.02.001 Крышка
   24.03.03.000 Полукрышка
   24.03.03.000СБ Полукрышка
   24.03.04.000 Полукрышка
   24.03.04.000СБ Полукрышка
Разработан: Латгипропром
Утверждён:30.04.1990 Сантехниипроект (3)
Издан: ЦИТП Госстроя СССР (CITP, Gosstroy (USSR) 1990 г. )
Расположен в:Техническая документация Строительство Справочные документы Типовые строительные конструкции, изделия и узлы Общероссийский строительный каталог Промышленные предприятия, здания и сооружения Здания и сооружения санитарно-технические Теплоснабжение Котельные установки Закрытые системы теплоснабжения Топливо - газ и мазут
Типовой проект 903-1-277.90Типовой проект 903-1-277.90Типовой проект 903-1-277.90Типовой проект 903-1-277.90Типовой проект 903-1-277.90Типовой проект 903-1-277.90Типовой проект 903-1-277.90Типовой проект 903-1-277.90Типовой проект 903-1-277.90Типовой проект 903-1-277.90Типовой проект 903-1-277.90Типовой проект 903-1-277.90Типовой проект 903-1-277.90Типовой проект 903-1-277.90Типовой проект 903-1-277.90Типовой проект 903-1-277.90Типовой проект 903-1-277.90Типовой проект 903-1-277.90Типовой проект 903-1-277.90Типовой проект 903-1-277.90Типовой проект 903-1-277.90Типовой проект 903-1-277.90Типовой проект 903-1-277.90Типовой проект 903-1-277.90Типовой проект 903-1-277.90

© 2013 Ёшкин Кот :-) Карта сайта