Скачать Типовой проект 903-1-277.90 Альбом 5. Строительно-технологическая блок-секция котлоагрегата ДЕ-25-14ГМ. Тепломеханические решения. Газоснабжение. Конструкции железобетонные. АвтоматизацияДата актуализации: 10.08.2017 Типовой проект 903-1-277.90
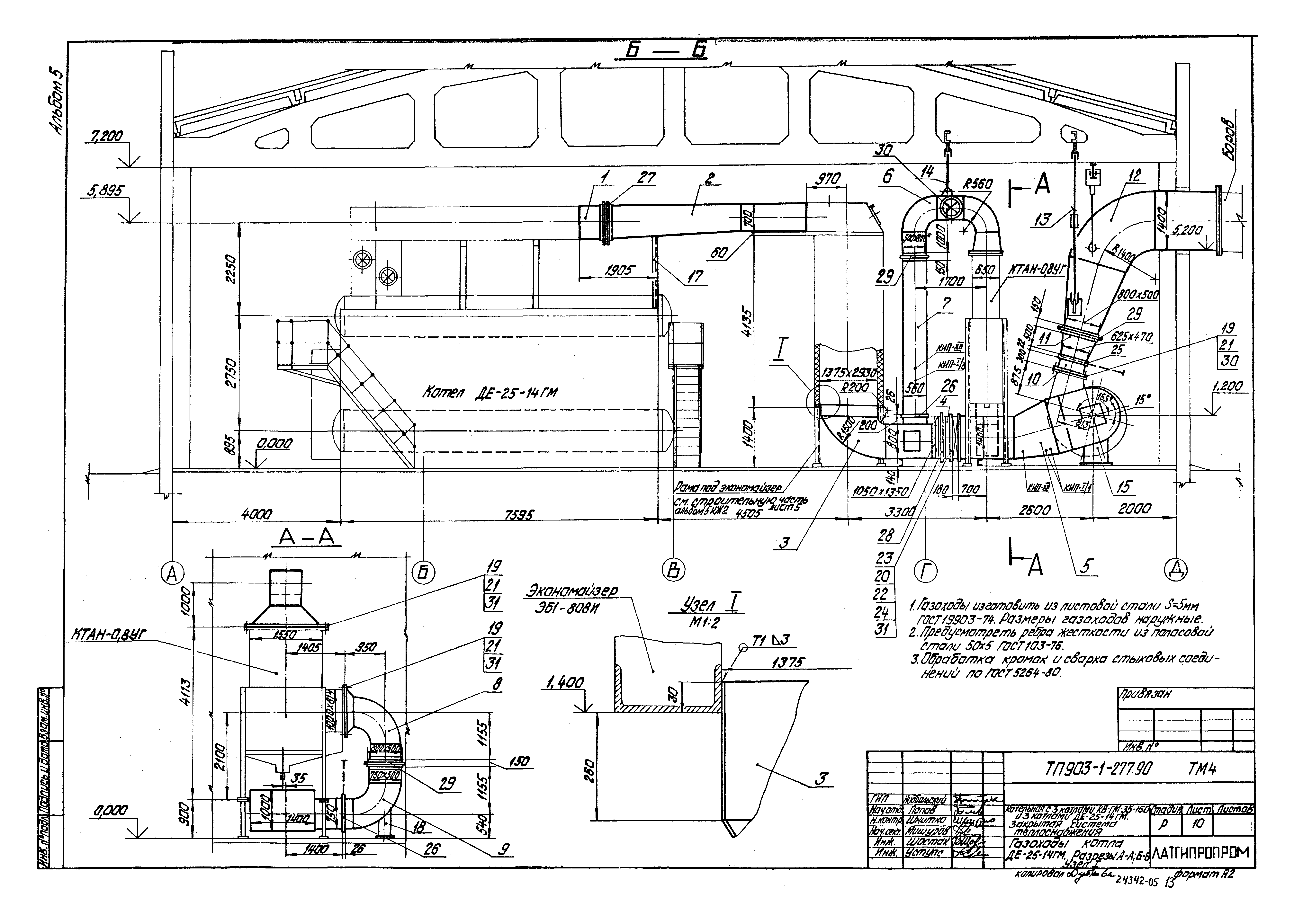
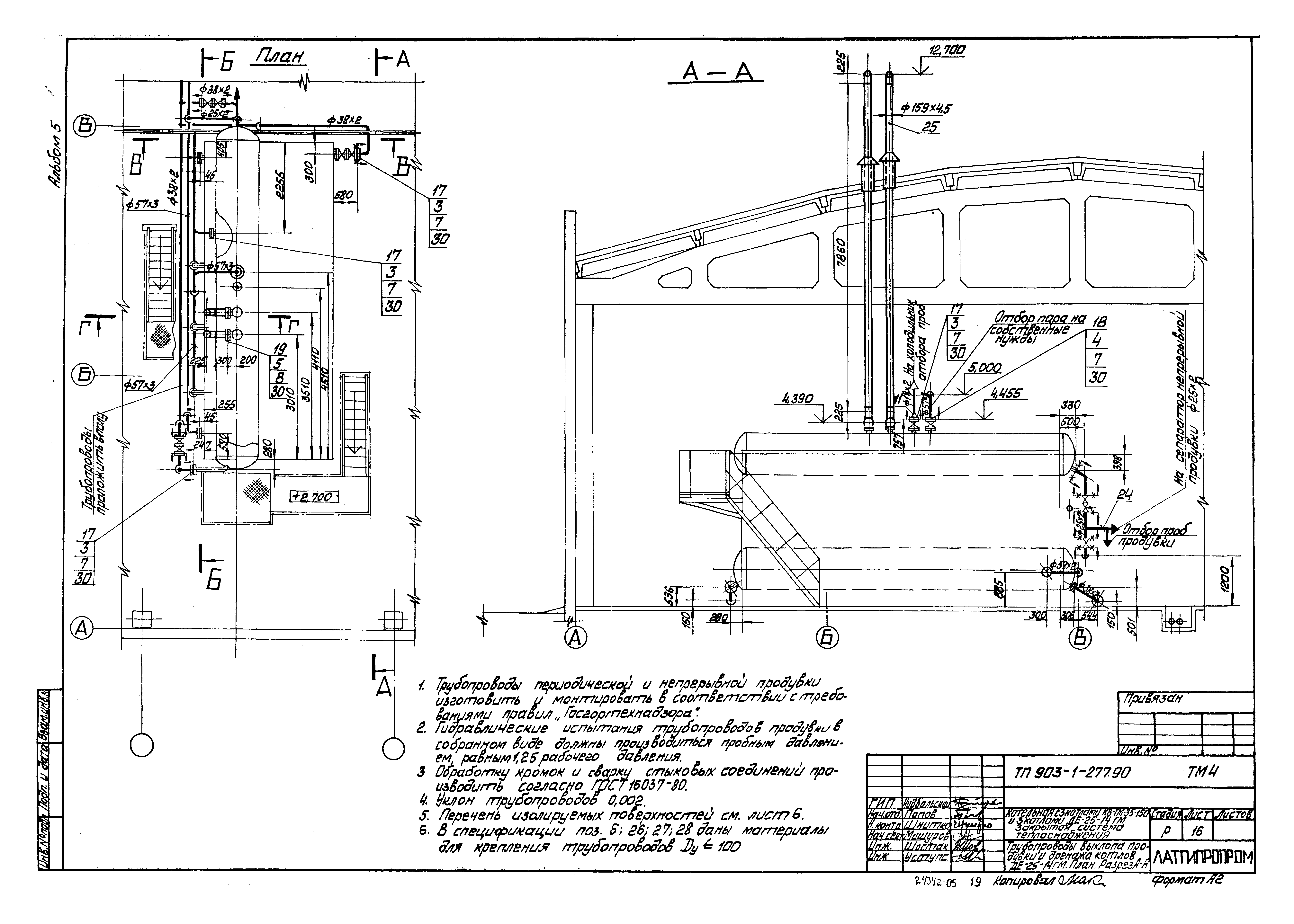
Альбом 5. Строительно-технологическая блок-секция котлоагрегата ДЕ-25-14ГМ. Тепломеханические решения. Газоснабжение. Конструкции железобетонные. АвтоматизацияОбозначение: | Типовой проект 903-1-277.90 | Обозначение англ: | 903-1-277.90 | Статус: | не определен законодательством | Название рус.: | Альбом 5. Строительно-технологическая блок-секция котлоагрегата ДЕ-25-14ГМ. Тепломеханические решения. Газоснабжение. Конструкции железобетонные. Автоматизация | Дата добавления в базу: | 01.09.2013 | Дата актуализации: | 05.05.2017 | Дата введения: | 30.04.1990 | Оглавление: | Технологические решения ТМ4 Общие данные Компоновка оборудования. План на отм. 0.000. Вид сверху. Разрезы А-А, Б-Б Газоходы котла ДЕ-25-14ГМ. План Газоходы котла ДЕ-25-14ГМ. Разрезы А-А, Б-Б. Узел I Газоходы котла ДЕ-25-14ГМ. Разрез В-В. План Г-Г Воздуховоды котла ДЕ-25-14ГМ. Разрезы А-А, Б-Б. Узел I. План на отм. 2.700 Трубопроводы питательной воды. План. Разрез А-А Трубопроводы пара Р = 1,37 МПа (14 кгс/кв. см). План. Разрезы А-А, Б-Б, В-В Паромазутопроводы в пределах котла ДЕ-25-14ГМ. План. Разрезы А-А, Б-Б Трубопроводы выхлопа, продувки и дренажа котла ДЕ-25-14ГМ. План. Разрез А-А Трубопроводы выхлопа, продувки и дренажа котла ДЕ-25-14ГМ. Разрезы Б-Б, В-В, Г-Г Трубопроводы обвязки КТАН`а-0,8УГ и калорифера КПЗ-11-СК-0,1УЗ. План. Разрезы А-А, Б-Б Схема дренажей и продувки трубопровода пара Р = 1,37 МПа (14 кгс/кв. см) Дополнительные лестницы котла ДЕ-25-14ГМ. План. Разрез А-А Продувочное устройство Ду32. Разрез А-А Общий вид тепловой изоляции для участка плоской стенки. Задание на разработку Газоснабжение ГСВ2 Общие данные Газооборудование котла ДЕ-25-14ГМ. Фронт котла. План Спецификация на газооборудование котла ДЕ-25-14ГМ Газооборудование экономайзера ЭБ1-808И. Вид А Конструкции железобетонные КЖ2 Схема расположения подвесок. Общие данные Схема расположения подземных конструкций Фрагмент 1. Разрез 7-7. ФОМ1. Опалубка и армирование ФОМ2. Опалубка и армирование. Разрезы 2-2…8-8; сечение а-а Схема расположения металлических конструкций Металлические рамы МР1, МР2 Металлическая рама МР3. Площадка Л1 Техническая спецификация металла Автоматизация АТМ2 Котел ДЕ-25-14ГМ. Общие данные Котел ДЕ-25-14ГМ. Схема автоматизации Котел ДЕ-25-14ГМ. Схема электрическая принципиальная питания Котел ДЕ-25-14ГМ. Схема электрическая принципиальная управления задвижкой на паре Котел ДЕ-25-14ГМ. Схема электрическая принципиальная управления задвижкой на мазутопроводе Котел ДЕ-25-14ГМ. Схема электрическая принципиальная регулятора топлива Котел ДЕ-25-14ГМ. Схема электрическая принципиальная регулятора уровня Котел ДЕ-25-14ГМ. Схема электрическая принципиальная регулятора воздуха Котел ДЕ-25-14ГМ. Схема электрическая принципиальная регулятора разряжения Котел ДЕ-25-14ГМ. Схема соединений внешних проводок Котел ДЕ-25-14ГМ. Схема подключений внешних проводок Газоимпульсная очистка. Схема автоматизации соединений внешних проводок и подключения Котел ДЕ-25-14ГМ. План расположения Котел ДЕ-25-14ГМ. Установка МЭО-100/25-0,25У к клапану 9с-4-2 на мазутопроводе к котлу Котел ДЕ-25-14ГМ. Установка МЭО-100/25-0,25У к клапану КРП-50м на трубопроводе питательной воды к котлу Котел ДЕ-25-14ГМ. Установка МЭО-250/63-0,25У к дымососу ДН-12,5 Котел ДЕ-25-14ГМ. Установка МЭО-100/25-0,25У к вентилятору ВДН-11,2 Котел ДЕ-25-14ГМ. Установка МЭО-100/25-0,25У к затвору дисковому регулирующему 32ЦО22БК Ду150 Котел ДЕ-25-14ГМ. Установка электромагнита МИС-4100 на клапане предохранительном запорном типа ПКН Ду200 | Разработан: | Латгипропром
| Утверждён: | 30.04.1990 Сантехниипроект (3)
| Издан: | ЦИТП Госстроя СССР (CITP, Gosstroy (USSR) 1990 г. )
| Расположен в: |
|
                                                            
|