Информационная система
«Ёшкин Кот»

Скачать базу одним архивом
Скачать обновления
История создания базы
Карта сайта

Скачать Типовой проект 503-3-27.90 Альбом 5. Автоматизация технологии производства. Автоматизация систем внутреннего водопровода и канализации. Автоматизация систем отопления и вентиляции. Автоматизация контроля воздушной среды

Дата актуализации: 10.08.2017

Типовой проект 503-3-27.90

Альбом 5. Автоматизация технологии производства. Автоматизация систем внутреннего водопровода и канализации. Автоматизация систем отопления и вентиляции. Автоматизация контроля воздушной среды

Обозначение: Типовой проект 503-3-27.90
Обозначение англ: 503-3-27.90
Статус:не определен законодательством
Название рус.:Альбом 5. Автоматизация технологии производства. Автоматизация систем внутреннего водопровода и канализации. Автоматизация систем отопления и вентиляции. Автоматизация контроля воздушной среды
Дата добавления в базу:01.09.2013
Дата актуализации:05.05.2017
Дата введения:22.10.1990
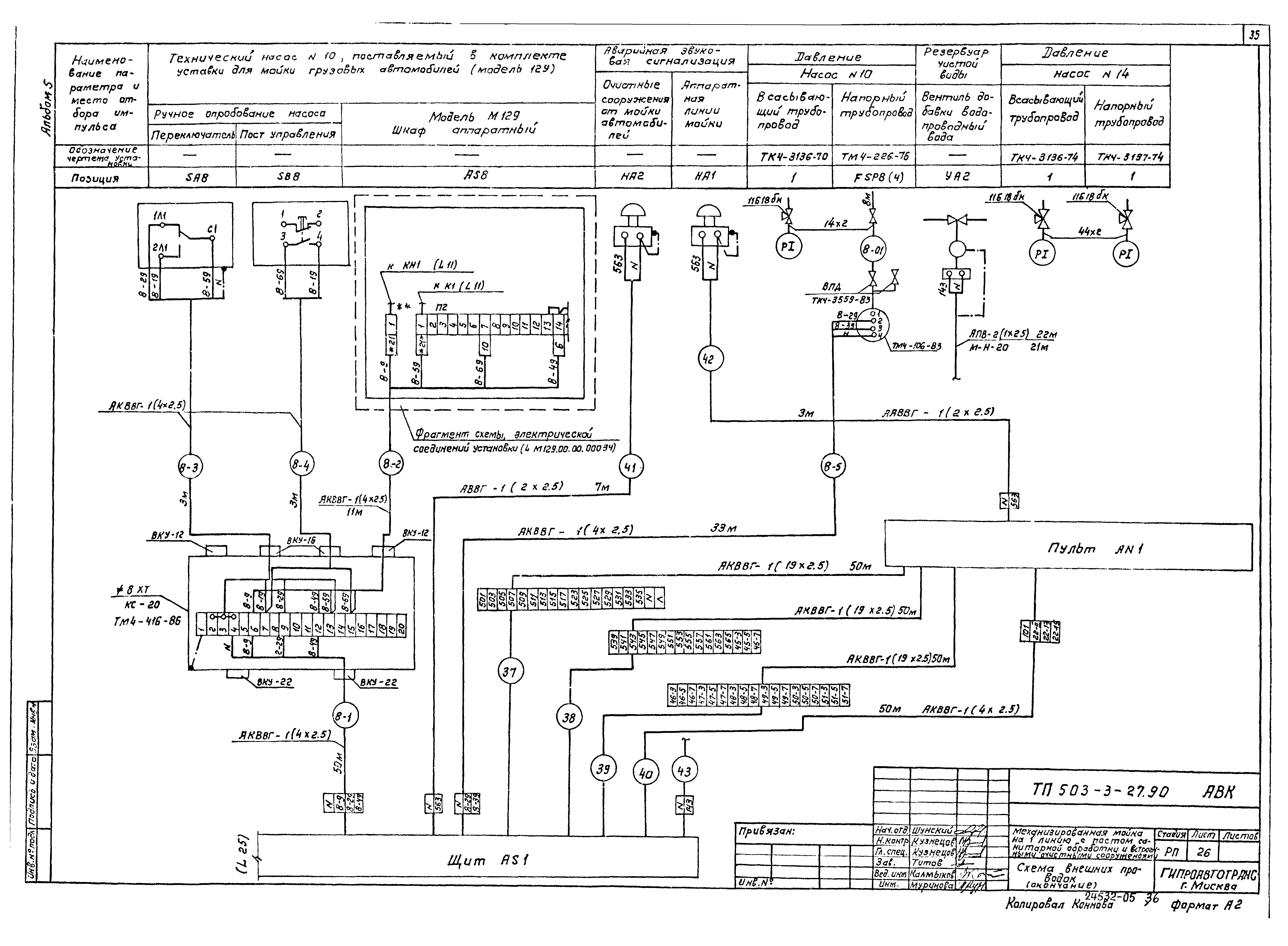
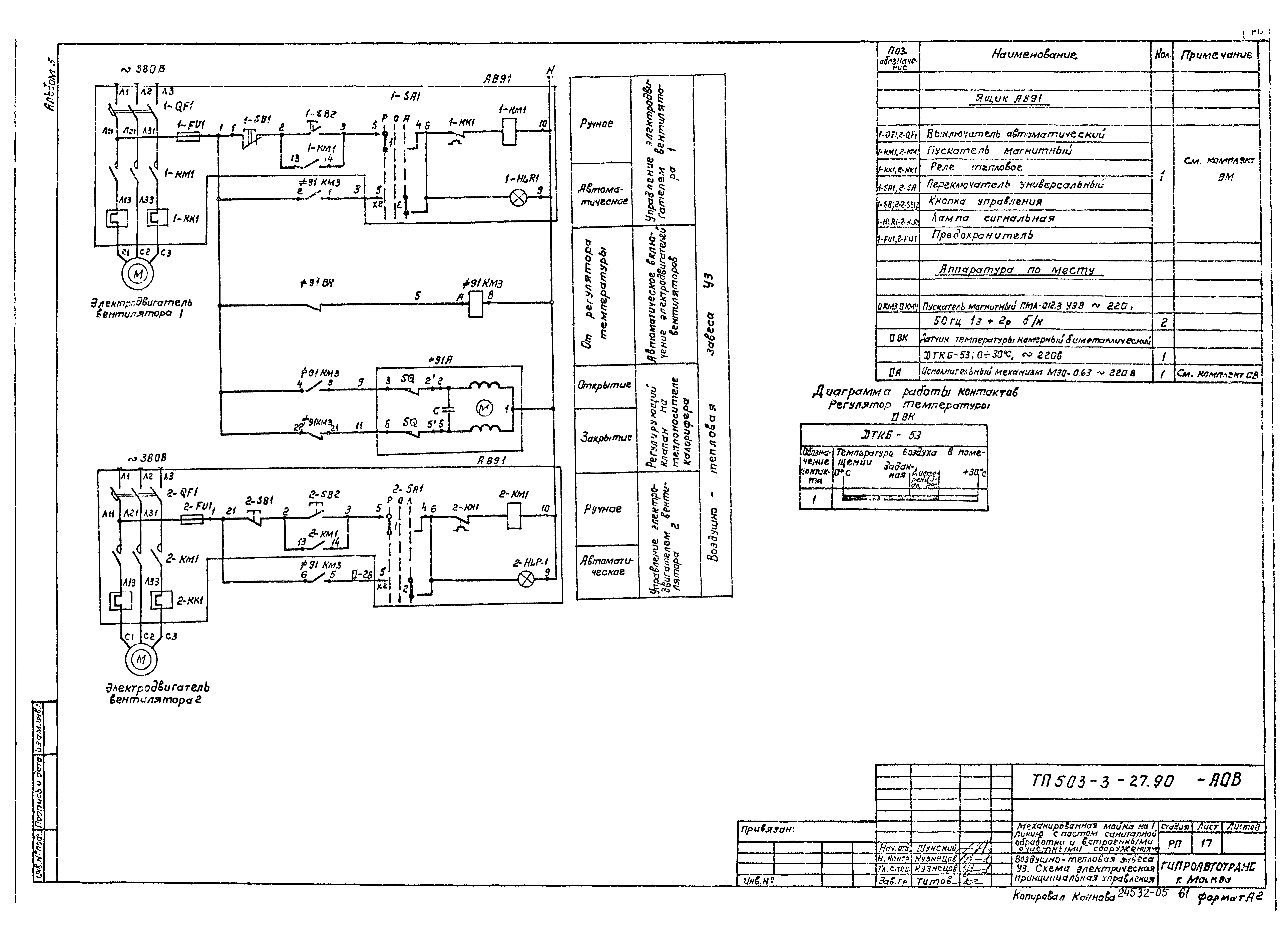
Оглавление:Содержание альбома
Автоматизация технологии производства
   Общие данные
   Выездные ворота участка мойки. Схема электрическая принципиальная управления
   Выездные ворота участка мойки. Схема внешних проводок
   План расположения на отм. 0.000
Автоматизация систем внутреннего водоснабжения и канализации
   Общие данные
   Очистные сооружения сточных вод от мойки автомобилей. Схема функциональная
   Очистные сооружения моющих растворов. Схема функциональная
   Очистные сооружения промывных вод. Схема функциональная
   Насос №3. Схема электрическая принципиальная управления
   Насос №7. Фильтры №8. Схема электрическая принципиальная управления
   Фильтры №5. Технологический насос №10. Схема электрическая принципиальная управления
   Схема электрическая принципиальная измерений
   Схема электрическая принципиальная сигнализации
   Очистные сооружения моющих растворов. Схема электрическая принципиальная управления
   Очистные сооружения промывных вод. Схема электрическая принципиальная управления
   Очистные сооружения промывных вод. Схема электрическая принципиальная измерений
   Схема внешних проводок
   Очистные сооружения моющих растворов. Схема внешних проводок
   Очистные сооружения промывных вод. Схема внешних проводок
   План расположения
   Очистные сооружения моющих растворов. План расположения
Автоматизация систем отопления и вентиляции
   Общие данные
   Приточная система П1. Схема функциональная
   Приточная система П2 (П6). Схема функциональная
   Приточная система П3 (П4). Схема функциональная
   Приточная система П5. Схема функциональная
   Воздушно-тепловая завеса У1 (У2). Схема функциональная
   Воздушно-тепловая завеса У3. Схема функциональная
   Тепловой узел. Схема функциональная
   Приточная система П1. Схема электрическая принципиальная управления
   Приточная система П1. Схема электрическая принципиальная регулирования
   Приточная система П2 (П6). Схема электрическая принципиальная управления
   Приточная система П3 (П4). Схема электрическая принципиальная управления
   Приточная система П3 (П4). Схема электрическая принципиальная регулирования
   Приточная система П5. Схема электрическая принципиальная управления
   Воздушно-тепловая завеса У1 (У2). Схема электрическая принципиальная управления
   Воздушно-тепловая завеса У3. Схема электрическая принципиальная управления
   Приточная система П1. Схема внешних проводок
   Приточная система П2 (П6). Схема внешних проводок
   Приточная система П3 (П4). Схема внешних проводок
   Приточная система П5. Схема внешних проводок
   Воздушно-тепловая завеса У1 (У2). Схема внешних проводок
   Воздушно-тепловая завеса У3. Схема внешних проводок
   Тепловой узел. Схема подключения
   План расположения
Автоматизация контроля воздушной среды
   Общие указания
   Схема соединений приборов СТМ10
   Схема электрическая принципиальная аварийной сигнализации
   Схема внешних проводок
   Планы расположения
Разработан: Гипроавтотранс
Утверждён:22.10.1990 Минавтотранс РСФСР (Russian Federation Minavtotrans 7)
Издан: ЦИТП Госстроя СССР (CITP, Gosstroy (USSR) 1990 г. )
Расположен в:Техническая документация Строительство Справочные документы Типовые строительные конструкции, изделия и узлы Общероссийский строительный каталог Промышленные предприятия, здания и сооружения Предприятия, здания и сооружения транспорта Транспорт автомобильный Мойки и профилактории для грузовых и легковых автомобилей и автобусов
Типовой проект 503-3-27.90Типовой проект 503-3-27.90Типовой проект 503-3-27.90Типовой проект 503-3-27.90Типовой проект 503-3-27.90Типовой проект 503-3-27.90Типовой проект 503-3-27.90Типовой проект 503-3-27.90Типовой проект 503-3-27.90Типовой проект 503-3-27.90Типовой проект 503-3-27.90Типовой проект 503-3-27.90Типовой проект 503-3-27.90Типовой проект 503-3-27.90Типовой проект 503-3-27.90Типовой проект 503-3-27.90Типовой проект 503-3-27.90Типовой проект 503-3-27.90Типовой проект 503-3-27.90Типовой проект 503-3-27.90Типовой проект 503-3-27.90Типовой проект 503-3-27.90Типовой проект 503-3-27.90Типовой проект 503-3-27.90Типовой проект 503-3-27.90Типовой проект 503-3-27.90Типовой проект 503-3-27.90Типовой проект 503-3-27.90Типовой проект 503-3-27.90Типовой проект 503-3-27.90Типовой проект 503-3-27.90Типовой проект 503-3-27.90Типовой проект 503-3-27.90Типовой проект 503-3-27.90Типовой проект 503-3-27.90Типовой проект 503-3-27.90Типовой проект 503-3-27.90Типовой проект 503-3-27.90Типовой проект 503-3-27.90Типовой проект 503-3-27.90Типовой проект 503-3-27.90Типовой проект 503-3-27.90Типовой проект 503-3-27.90Типовой проект 503-3-27.90Типовой проект 503-3-27.90Типовой проект 503-3-27.90Типовой проект 503-3-27.90Типовой проект 503-3-27.90Типовой проект 503-3-27.90Типовой проект 503-3-27.90Типовой проект 503-3-27.90Типовой проект 503-3-27.90Типовой проект 503-3-27.90Типовой проект 503-3-27.90Типовой проект 503-3-27.90Типовой проект 503-3-27.90Типовой проект 503-3-27.90Типовой проект 503-3-27.90Типовой проект 503-3-27.90Типовой проект 503-3-27.90Типовой проект 503-3-27.90Типовой проект 503-3-27.90Типовой проект 503-3-27.90Типовой проект 503-3-27.90Типовой проект 503-3-27.90Типовой проект 503-3-27.90Типовой проект 503-3-27.90Типовой проект 503-3-27.90Типовой проект 503-3-27.90Типовой проект 503-3-27.90Типовой проект 503-3-27.90Типовой проект 503-3-27.90Типовой проект 503-3-27.90Типовой проект 503-3-27.90Типовой проект 503-3-27.90Типовой проект 503-3-27.90Типовой проект 503-3-27.90Типовой проект 503-3-27.90Типовой проект 503-3-27.90Типовой проект 503-3-27.90Типовой проект 503-3-27.90Типовой проект 503-3-27.90Типовой проект 503-3-27.90

© 2013 Ёшкин Кот :-) Карта сайта