Информационная система
«Ёшкин Кот»

Скачать базу одним архивом
Скачать обновления
История создания базы
Карта сайта

Скачать Типовой проект 503-3-27.90 Альбом 3. Архитектурные решения. Конструкции железобетонные. Конструкции металлические

Дата актуализации: 10.08.2017

Типовой проект 503-3-27.90

Альбом 3. Архитектурные решения. Конструкции железобетонные. Конструкции металлические

Обозначение: Типовой проект 503-3-27.90
Обозначение англ: 503-3-27.90
Статус:не определен законодательством
Название рус.:Альбом 3. Архитектурные решения. Конструкции железобетонные. Конструкции металлические
Дата добавления в базу:01.09.2013
Дата актуализации:05.05.2017
Дата введения:22.10.1990
Оглавление:Содержание альбома
Архитектурные решения
   Общие данные
   План на отм. 0.000
   План на отм. 3.000. План кровли
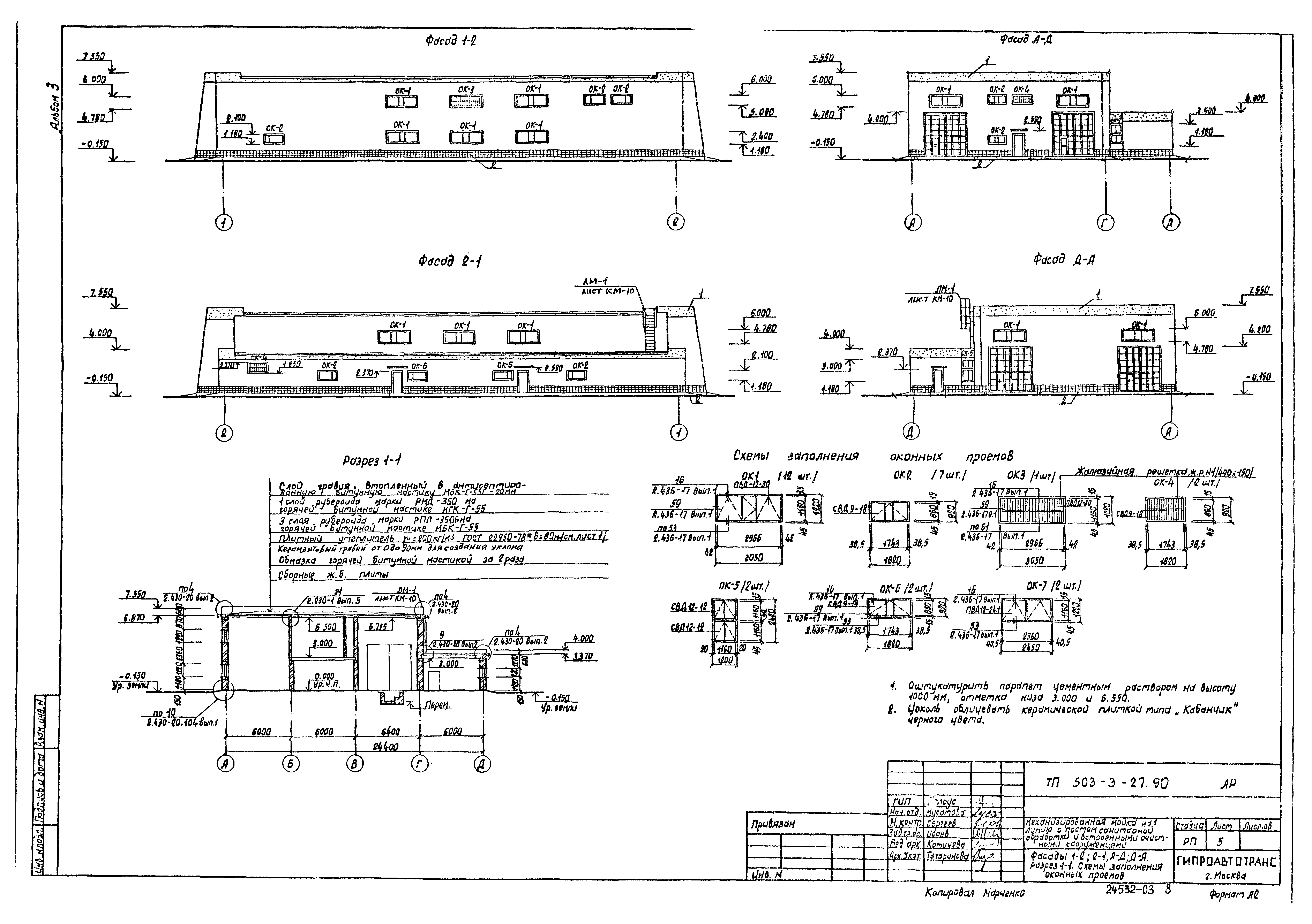
   Фасады 1 - 2; 2 - 1; А - Д; Д - А. Разрез 1-1. Схемы заполнения оконных проемов
   Планы полов на отм. 0.000; 3.000. Экспликация полов. Узел 1
   Узлы 8…15. Спецификации
   Узлы 2…5, 16, 17. Крепление рамы в кирпичной стене. Схема установки анкеров
   Узлы 6, 7, А. Решетка для вытирания ног ИМ1. Изделие металлическое ИМ2. Спецификация
   План отверстий в стенах и перегородках на отм. 0.000
Конструкции железобетонные
   Общие данные
   Схема расположения фундаментов
   Развертки фундаментов по осям Б, В, Г, Д
   Развертки фундаментов по осям 1, Д и сечения 1-1…6-6
   Сечения фундаментов 7-7…17-17. Узел 1
   Фундаменты монолитные Фм1, Фм2
   Схема расположения плит покрытия
   Схемы расположения плит перекрытия на отм. 3.000; 3.150, опорных подушек. Детали
   Участки монолитные Ум1…Ум6
   Схема расположения фундаментов под оборудование
   Спецификация к схемам расположения плит покрытия, перекрытия на отм. 3.000; 3.150, опорных подушек Ум7
   Схема расположения фундаментов под оборудование, каналов, приямков
   Фундаменты ФОм1…ФОм3, сечение а-а
   Фундаменты ФОм4…ФОм7
   Фундамент ФОм8
   Фундамент ФОм9, фрагмент 1, 2
   Фундамент ФОм9, фрагмент 3
   Фундамент ФОм9, сечения
   Приямки ПР1-ВК, ПРЕ-ВК. Фундамент ФОм10
   Фундаменты ФОм11…ФОм13 и приямок ПР1-ОВ
   Подпольные каналы ПК1-ВК, ПК1-ОВ
   Приямок ПР3-ВК, колодцы К1 и К2
   ПР1-ВК. План на отм. - 0.120; 1-1, 2-2
   Схема расположения плит перекрытия ПР1-ВК. Схема расположения верхних и нижних сеток днища, 1-1, узел 1
Конструкции металлические
   Общие данные
   Схемы расположения стоек и балок площадки на отм. 3.000, покрытия площадки на отм. 3.000 и элементов лестницы, балки перекрытия на отм. 2.700
   Узлы I - VI. Разрезы
   Схема расположения подвесного транспортного оборудования
   Узлы I - IV
   Схемы расположения конструкций и опор под технологическое оборудование площадки на отм. 2.500
   Схемы расположения площадок и ограждений в приямке ПР1-ВК на отм. - 2.000, опор под трубопроводы в ИТП и элементов лестниц
Разработан: Гипроавтотранс
Утверждён:22.10.1990 Минавтотранс РСФСР (Russian Federation Minavtotrans 7)
Издан: ЦИТП Госстроя СССР (CITP, Gosstroy (USSR) 1990 г. )
Расположен в:Техническая документация Строительство Справочные документы Типовые строительные конструкции, изделия и узлы Общероссийский строительный каталог Промышленные предприятия, здания и сооружения Предприятия, здания и сооружения транспорта Транспорт автомобильный Мойки и профилактории для грузовых и легковых автомобилей и автобусов
Типовой проект 503-3-27.90Типовой проект 503-3-27.90Типовой проект 503-3-27.90Типовой проект 503-3-27.90Типовой проект 503-3-27.90Типовой проект 503-3-27.90Типовой проект 503-3-27.90Типовой проект 503-3-27.90Типовой проект 503-3-27.90Типовой проект 503-3-27.90Типовой проект 503-3-27.90Типовой проект 503-3-27.90Типовой проект 503-3-27.90Типовой проект 503-3-27.90Типовой проект 503-3-27.90Типовой проект 503-3-27.90Типовой проект 503-3-27.90Типовой проект 503-3-27.90Типовой проект 503-3-27.90Типовой проект 503-3-27.90Типовой проект 503-3-27.90Типовой проект 503-3-27.90Типовой проект 503-3-27.90Типовой проект 503-3-27.90Типовой проект 503-3-27.90Типовой проект 503-3-27.90Типовой проект 503-3-27.90Типовой проект 503-3-27.90Типовой проект 503-3-27.90Типовой проект 503-3-27.90Типовой проект 503-3-27.90Типовой проект 503-3-27.90Типовой проект 503-3-27.90Типовой проект 503-3-27.90Типовой проект 503-3-27.90Типовой проект 503-3-27.90Типовой проект 503-3-27.90Типовой проект 503-3-27.90Типовой проект 503-3-27.90Типовой проект 503-3-27.90Типовой проект 503-3-27.90Типовой проект 503-3-27.90Типовой проект 503-3-27.90Типовой проект 503-3-27.90Типовой проект 503-3-27.90Типовой проект 503-3-27.90Типовой проект 503-3-27.90Типовой проект 503-3-27.90

© 2013 Ёшкин Кот :-) Карта сайта