Информационная система
«Ёшкин Кот»

Скачать базу одним архивом
Скачать обновления
История создания базы
Карта сайта

Скачать Типовой проект 409-23-56.87 Альбом 3. Архитектурные решения

Дата актуализации: 10.08.2017

Типовой проект 409-23-56.87

Альбом 3. Архитектурные решения

Обозначение: Типовой проект 409-23-56.87
Обозначение англ: 409-23-56.87
Статус:не определен законодательством
Название рус.:Альбом 3. Архитектурные решения
Дата добавления в базу:01.10.2014
Дата актуализации:05.05.2017
Дата введения:04.12.1985
Оглавление:Чертежи основного комплекта марки АР
   Общие данные
   План на отм. 0.000
   План площадок
   План подвалов
   Разрезы 1-1, 8-8
   Разрезы 2-2, 6-6
   Разрезы 3-3, 5-5
   Разрезы 4-4, 7-7
   Фасады 1 - 14; 14 - 1
   Фасады А - К; К - А. Схемы заполнения оконных проемов и жалюзийных решеток
   Фрагмент плана 1 на отм. 0.000
   Фрагмент плана 1 на отм. 2.700; 3.000; 7.200 и 8.400
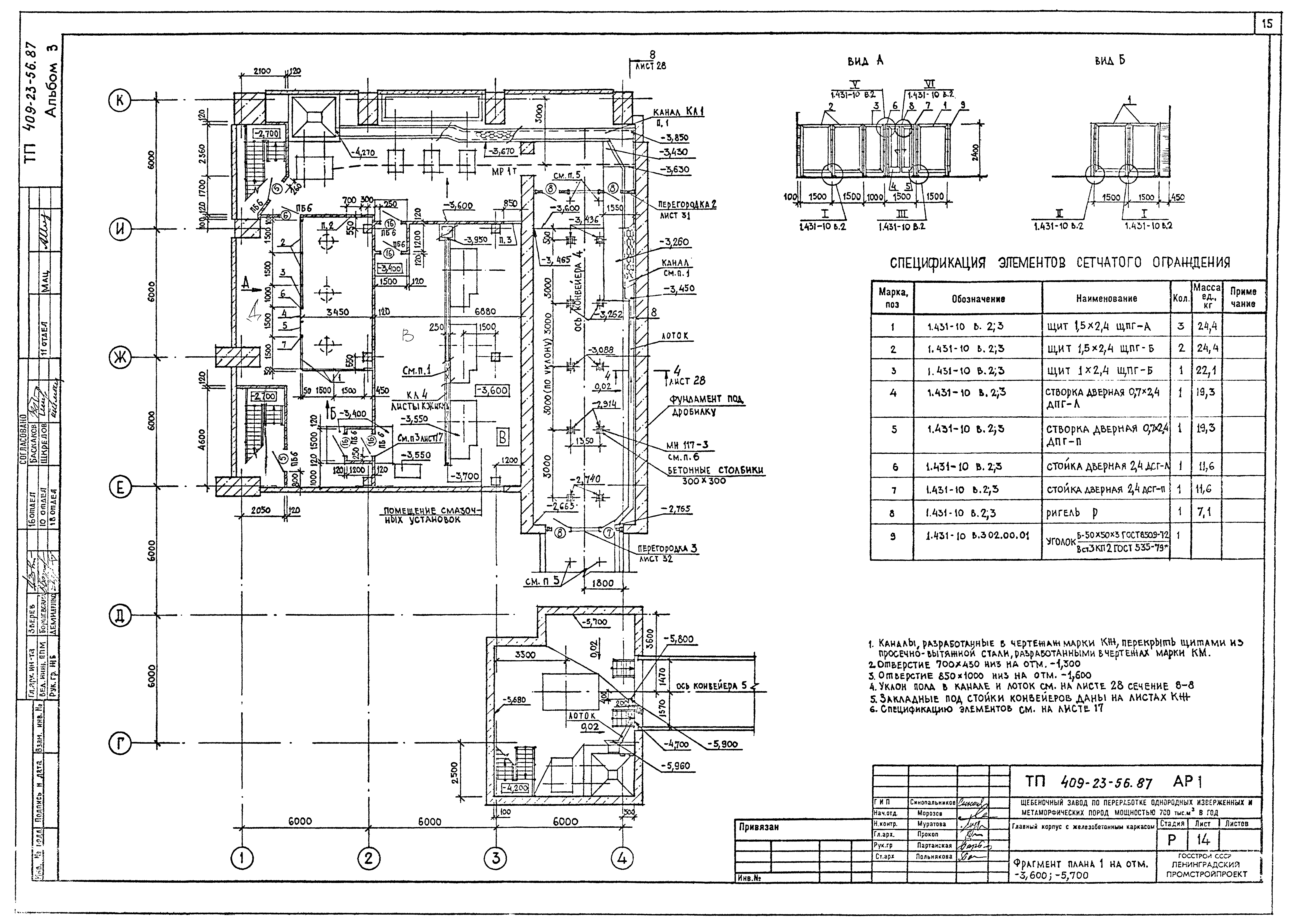
   Фрагмент плана 1 на отм. - 3.600; - 5.700
   Фрагмент плана 2 на отм. 0.000
   Фрагмент плана 2 на отм. 3.600; 5.700; 8.200
   Фрагмент плана 2 на отм. - 3.600 и 5.000
   Фрагмент плана 3 на отм. 0.000
   Фрагмент плана 3 на отм. 2.400; 3.000; 7.400; 7.800
   Фрагмент плана 3 на отм. - 3.600; 4.200
   Фрагмент плана 4 на отм. 0.000
   Фрагмент плана 4 на отм. 8.000
   Фрагменты планов 1, 2, 3 на отм. 4.800 и 6.000; 10.000; 4.200
   ПСУ. Планы. Узел 1
   ПСУ. Разрезы. Узлы 2, 3
   План уклонов полов
   План полов на площадках и в подвалах
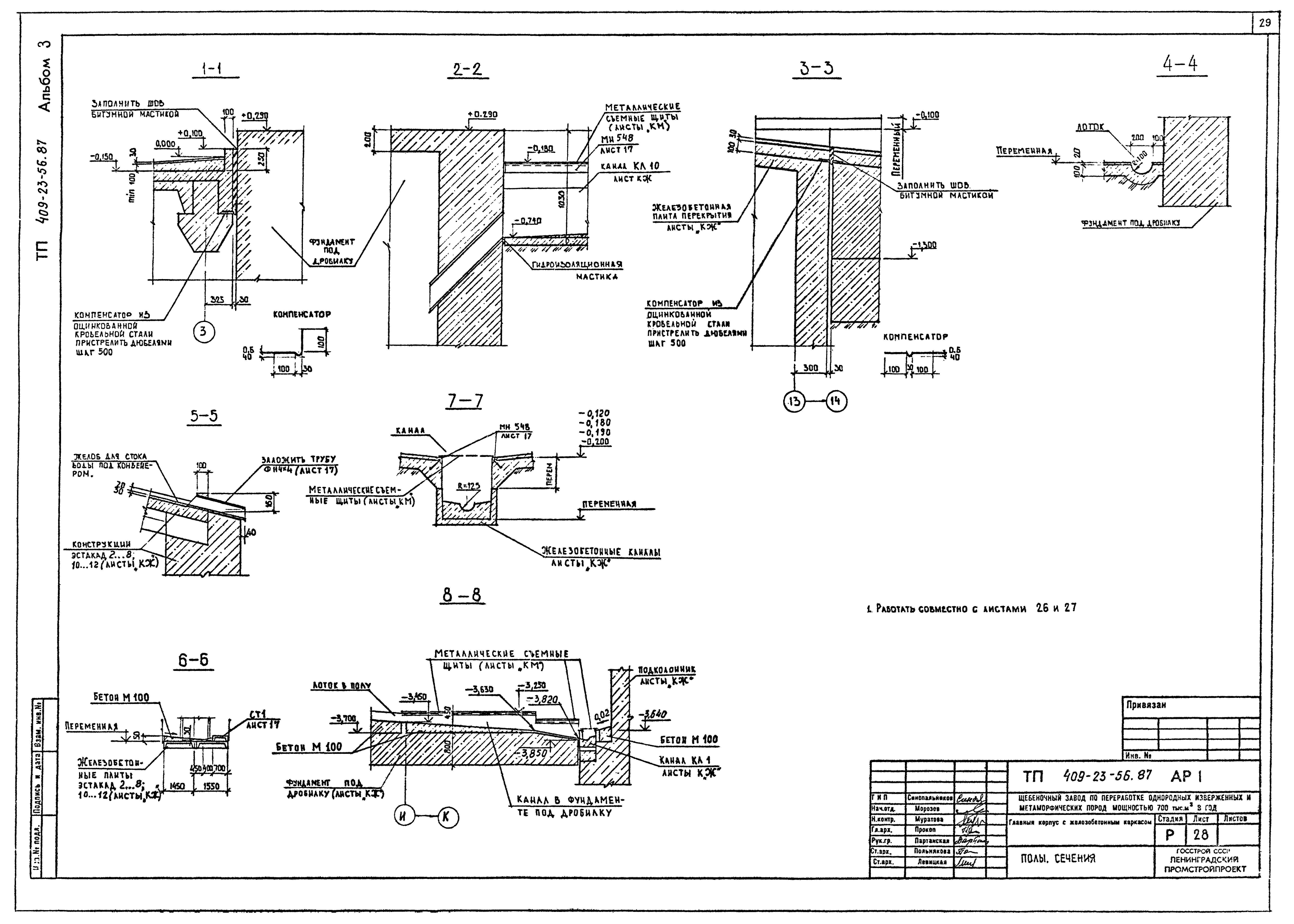
   Планы полов. Сечения
   План кровли. Узел 18
   Перегородка 1
   Перегородка 2
   Перегородка 3
   Перегородки 4 и 5
   Перегородки 6, 7 и 8
   Узлы 4…9
   Вид Д. Узлы 10…14
   Дверной блок ДГ28-15. Узлы 15, 16, 17
   Узлы 1-…27
Разработан: Союзгипронеруд
Утверждён:19.07.1982 Минстройматериалов СССР (USSR Minstroymaterialov 28-154/81)
Расположен в:Техническая документация Строительство Справочные документы Типовые строительные конструкции, изделия и узлы Общероссийский строительный каталог Промышленные предприятия, здания и сооружения Предприятия, здания и сооружения промышленности и электроэнергетики Строительная индустрия и промышленность строительных материалов Производство строительных материалов и изделий Производство тяжелых заполнителей
Типовой проект 409-23-56.87Типовой проект 409-23-56.87Типовой проект 409-23-56.87Типовой проект 409-23-56.87Типовой проект 409-23-56.87Типовой проект 409-23-56.87Типовой проект 409-23-56.87Типовой проект 409-23-56.87Типовой проект 409-23-56.87Типовой проект 409-23-56.87Типовой проект 409-23-56.87Типовой проект 409-23-56.87Типовой проект 409-23-56.87Типовой проект 409-23-56.87Типовой проект 409-23-56.87Типовой проект 409-23-56.87Типовой проект 409-23-56.87Типовой проект 409-23-56.87Типовой проект 409-23-56.87Типовой проект 409-23-56.87Типовой проект 409-23-56.87Типовой проект 409-23-56.87Типовой проект 409-23-56.87Типовой проект 409-23-56.87Типовой проект 409-23-56.87Типовой проект 409-23-56.87Типовой проект 409-23-56.87Типовой проект 409-23-56.87Типовой проект 409-23-56.87Типовой проект 409-23-56.87Типовой проект 409-23-56.87Типовой проект 409-23-56.87Типовой проект 409-23-56.87Типовой проект 409-23-56.87Типовой проект 409-23-56.87Типовой проект 409-23-56.87Типовой проект 409-23-56.87Типовой проект 409-23-56.87Типовой проект 409-23-56.87Типовой проект 409-23-56.87

© 2013 Ёшкин Кот :-) Карта сайта