Информационная система
«Ёшкин Кот»

Скачать базу одним архивом
Скачать обновления
История создания базы
Карта сайта

Скачать Типовой проект 409-23-56.87 Альбом 2. Внутреннее электрическое освещение. Связь и сигнализация. Гидротехнические работы

Дата актуализации: 10.08.2017

Типовой проект 409-23-56.87

Альбом 2. Внутреннее электрическое освещение. Связь и сигнализация. Гидротехнические работы

Обозначение: Типовой проект 409-23-56.87
Обозначение англ: 409-23-56.87
Статус:не определен законодательством
Название рус.:Альбом 2. Внутреннее электрическое освещение. Связь и сигнализация. Гидротехнические работы
Дата добавления в базу:01.09.2013
Дата актуализации:05.05.2017
Дата введения:04.12.1985
Оглавление:Содержание альбома
Электроосвещение
   Общие данные
   Принципиальная схема питающей сети
   Планы расположения электрического оборудования и прокладки электрических сетей на отм. 0.000; 4.000
   Планы расположения электрического оборудования и прокладки электрических сетей на отм. 0.000 между осями 1 - 7; А - Г
   Планы расположения электрического оборудования и прокладки электрических сетей на отм. 0.000 между осями 6 - 10; Е - К и на отм. 4.800; 5.200; 7.200; 8.400 между осями 1 - 10; Д - К
   Планы расположения электрического оборудования и прокладки электрических сетей на отм. 0.000 между осями 1 - 6; Г - К и на отм. 4.800 и 6.000 между осями 4 - 6; Е - К
   Планы расположения электрического оборудования и прокладки электрических сетей на отм. 7.200 и 8.400 между осями 1 - 6; Д - К
   Планы расположения электрического оборудования и прокладки электрических сетей на отм. - 3.600 и - 5.700 между осями 1 - 4; Г - К и на отм. 0.800 и 4.900 между осями 7 - 9; Д - Е
   Планы расположения электрического оборудования и прокладки электрических сетей на отм. 0.000 между осями 7 - 13; А - Д
   Планы расположения электрического оборудования и прокладки электрических сетей на отм. 2.400; 3.000; 4.200; 7.400; 7.800 между осями 8 - 13; А - Д
   Планы расположения электрического оборудования и прокладки электрических сетей на отм. 0.000 между осями 9 - 14; Д - К
   Планы расположения электрического оборудования и прокладки электрических сетей на отм. 2.500; 3.600; 5.700 между осями 9 - 14; Д - К
   Планы расположения электрического оборудования и прокладки электрических сетей на отм. - 3.600; - 5.000 между осями 9 - 13; Д - К и на отм. 4.200 между осями 9 - 10; Б - Г
   Планы расположения электрического оборудования и прокладки электрических сетей на отм. - 3.600 между осями 8 - 12; А - Д и на отм. 10.000 между осями 13 - 14; Ж - К
   Конструкция для установки светильников на железобетонной ферме
   Ведомость конструкций и деталей, подлежащих изготовлению в МЭЗ
   Ведомость объемов монтажных и строительных работ
   Ведомость изделий и материалов для изготовления конструкций и деталей в МЭЗ
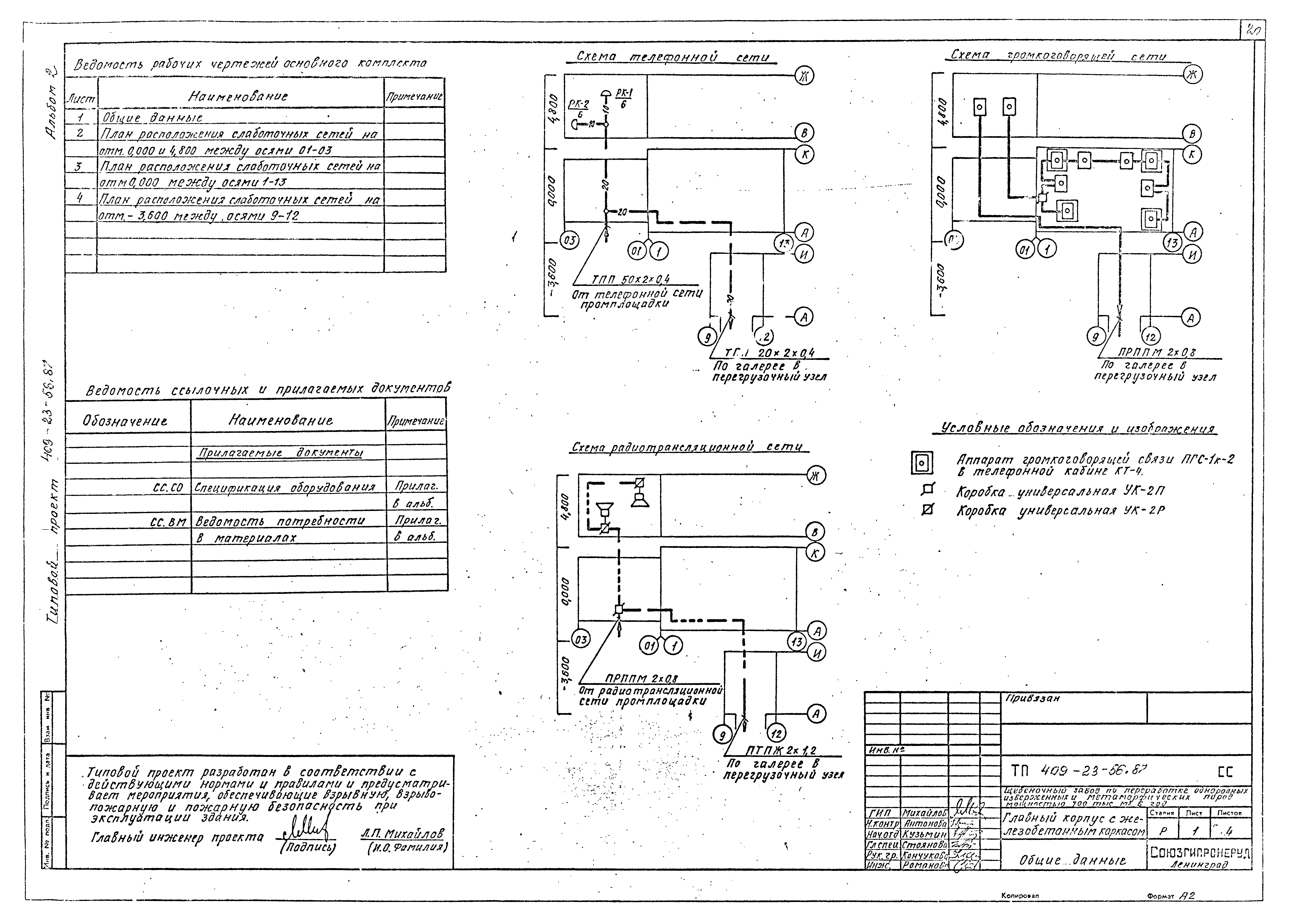
Связь и сигнализация
   Общие данные
   План расположения слаботочных сетей на отм. 0.000 и 4.800 между осями 01 - 03
   План расположения слаботочных сетей на отм. 0.000 между осями 1 - 13
   План расположения слаботочных сетей на отм. - 3.600 между осями 9 - 12
Гидротехнические работы
   Общие данные
   План пульпонасосной станции
   Разрезы 1-1, 2-2, 3-3
   Бак диаметром 1520 мм, правый. Общий вид
   Бак диаметром 1520 мм, левый. Общий вид
   Патрубок для установки мембранного разделителя типа РМ5320. Общий вид
Разработан: Союзгипронеруд
Утверждён:19.07.1982 Минстройматериалов СССР (USSR Minstroymaterialov 28-154/81)
Расположен в:Техническая документация Строительство Справочные документы Типовые строительные конструкции, изделия и узлы Общероссийский строительный каталог Промышленные предприятия, здания и сооружения Предприятия, здания и сооружения промышленности и электроэнергетики Строительная индустрия и промышленность строительных материалов Производство строительных материалов и изделий Производство тяжелых заполнителей
Типовой проект 409-23-56.87Типовой проект 409-23-56.87Типовой проект 409-23-56.87Типовой проект 409-23-56.87Типовой проект 409-23-56.87Типовой проект 409-23-56.87Типовой проект 409-23-56.87Типовой проект 409-23-56.87Типовой проект 409-23-56.87Типовой проект 409-23-56.87Типовой проект 409-23-56.87Типовой проект 409-23-56.87Типовой проект 409-23-56.87Типовой проект 409-23-56.87Типовой проект 409-23-56.87Типовой проект 409-23-56.87Типовой проект 409-23-56.87Типовой проект 409-23-56.87Типовой проект 409-23-56.87Типовой проект 409-23-56.87Типовой проект 409-23-56.87Типовой проект 409-23-56.87Типовой проект 409-23-56.87Типовой проект 409-23-56.87Типовой проект 409-23-56.87Типовой проект 409-23-56.87Типовой проект 409-23-56.87Типовой проект 409-23-56.87Типовой проект 409-23-56.87Типовой проект 409-23-56.87Типовой проект 409-23-56.87Типовой проект 409-23-56.87

© 2013 Ёшкин Кот :-) Карта сайта