Информационная система
«Ёшкин Кот»

Скачать базу одним архивом
Скачать обновления
История создания базы
Карта сайта

Скачать Типовой проект 274-20-171.91 Альбом I. Архитектурно-строительные чертежи. Отопление и вентиляция. Водопровод и канализация. Электрооборудование. Связь и сигнализация. Автоматика вентсистем. Технология

Дата актуализации: 10.08.2017

Типовой проект 274-20-171.91

Альбом I. Архитектурно-строительные чертежи. Отопление и вентиляция. Водопровод и канализация. Электрооборудование. Связь и сигнализация. Автоматика вентсистем. Технология

Обозначение: Типовой проект 274-20-171.91
Обозначение англ: 274-20-171.91
Статус:не определен законодательством
Название рус.:Альбом I. Архитектурно-строительные чертежи. Отопление и вентиляция. Водопровод и канализация. Электрооборудование. Связь и сигнализация. Автоматика вентсистем. Технология
Дата добавления в базу:01.09.2013
Дата актуализации:05.05.2017
Дата введения:04.06.1991
Оглавление:Содержание альбома
Архитектурно-строительные чертежи
   Общие данные
   Фасады 1 - 6; А - Е; Е - А
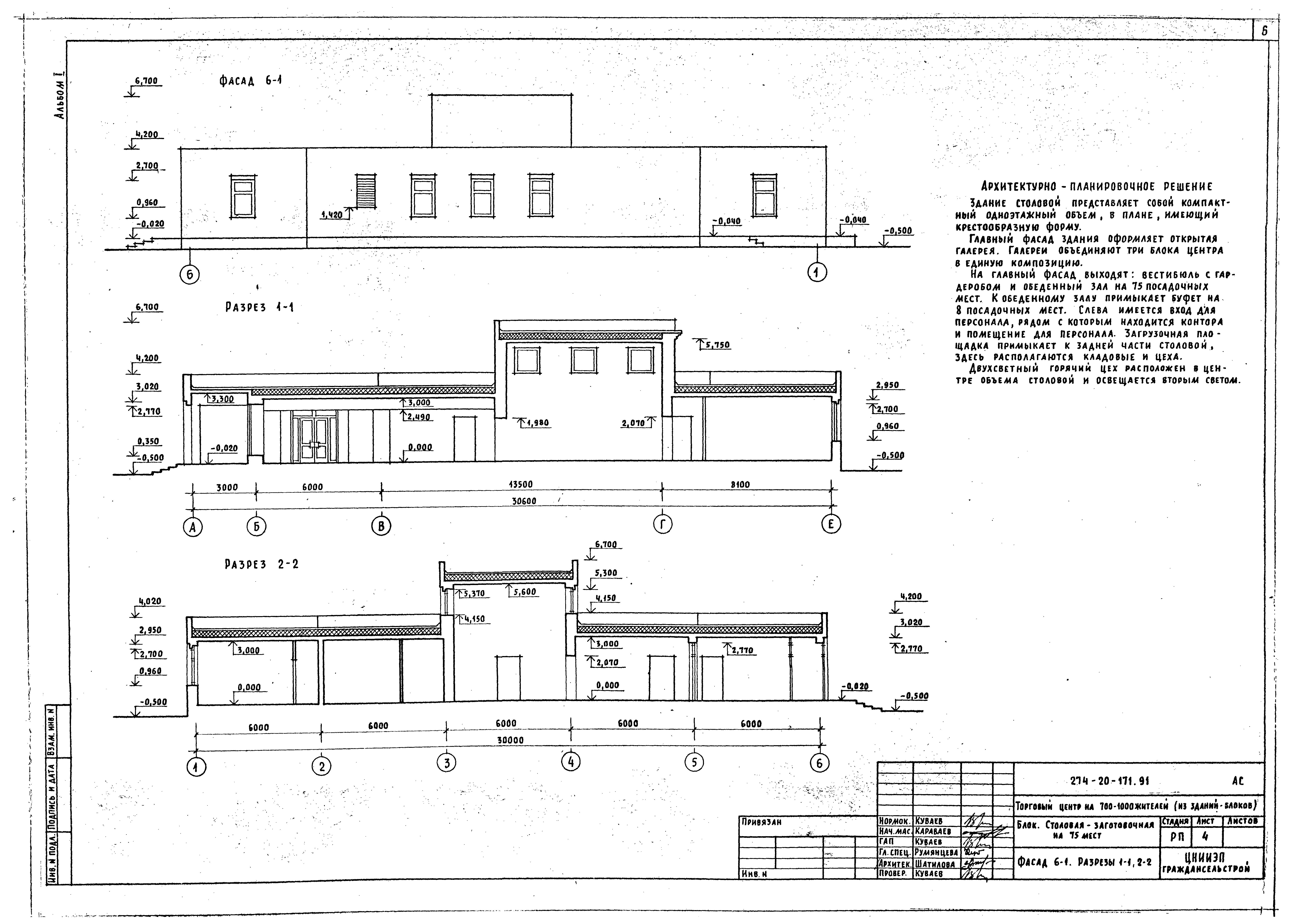
   Фасад 6 - 1. Разрезы 1-1, 2-2
   Кладочный план
   План отделочных работ. Экспликация полов
   План перегородок из гипсобетонных блоков (вариант)
   Спецификация столярных и железобетонных изделий. Ведомость отделки помещений
   Монтажная схема витража №1
   Монтажная схема витража №2, 2*
   Фундаменты. Схема расчетных сечений. Спецификации
   Фундаменты. План
   Фундаменты. Сечения
   Схема перемычек
   Спецификации к схеме перемычек. Сечения. Узлы
   Схема расположения плит перекрытия на отм. 3.000 и 5.600
   Участки монолитные УМ-1 - УМ-4. Сечения
   План крыши. Шахты Ш1 - Ш6
   Венткамера
   Схема армирования облегченной кладки. Сечения 1-1, 2-2
   Схема армирования облегченной кладки. Узлы 1 - 4
   Схема армирования облегченной кладки. Узлы 5, 6. Сетки
Отопление и вентиляция
   Общие данные
   План на отм. 0.000
   Схема системы отопления
   Узел управления. Схема системы теплоснабжения установки П1
   Схемы систем П1, В1 - В3, ВЕ1 - ВЕ8
   Установка системы П1
Водопровод и канализация
   Общие данные
   План
   Схема систем В1, Т3, Т4, К1, К2, К3
Электрооборудование
   Общие данные
   Принципиальная схема питающей сети
   План расположения осветительных сетей. Данные о групповых щитках
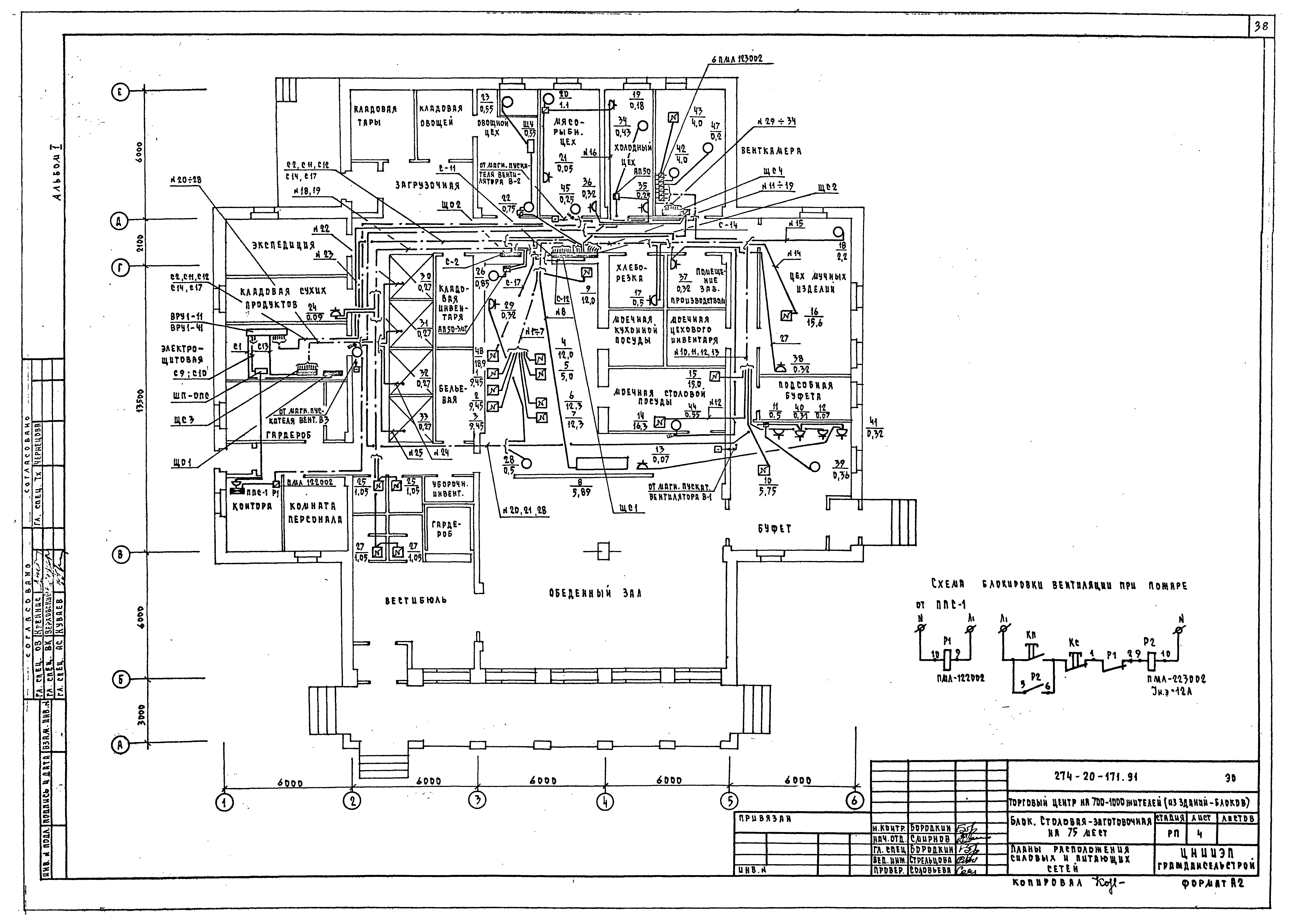
   Планы расположения силовых и питающих сетей
   Расчетная схема силовых сетей
   Опросный лист на вводно-распределительное устройство
Связь и сигнализация
   Общие данные
   Схема расположения устройств связи. План кровли
   План расположения сетей связи на этаже
   План расположения сетей пожарной сигнализации на этаже
Автоматика вентсистем
   Общие данные
   Вентсистема №1. Схема автоматизации
   Схема электрическая принципиальная управления
   Схема подключения П1. Схема расположения П1
Технология
   Общие данные
   План. Расстановка и привязка технологического оборудования
Разработан: ЦНИИЭП граждансельстрой
Утверждён:20.06.1991 Госкомархитектура (ЮШ-2-396)
Расположен в:Техническая документация Строительство Справочные документы Типовые строительные конструкции, изделия и узлы Общероссийский строительный каталог Общественные здания для строительства в сельской местности Предприятия торговли и общественного питания. Общественные центры Кооперированные здания предприятий торговли, общественного питания и бытового обслуживания Торговые центры
Типовой проект 274-20-171.91Типовой проект 274-20-171.91Типовой проект 274-20-171.91Типовой проект 274-20-171.91Типовой проект 274-20-171.91Типовой проект 274-20-171.91Типовой проект 274-20-171.91Типовой проект 274-20-171.91Типовой проект 274-20-171.91Типовой проект 274-20-171.91Типовой проект 274-20-171.91Типовой проект 274-20-171.91Типовой проект 274-20-171.91Типовой проект 274-20-171.91Типовой проект 274-20-171.91Типовой проект 274-20-171.91Типовой проект 274-20-171.91Типовой проект 274-20-171.91Типовой проект 274-20-171.91Типовой проект 274-20-171.91Типовой проект 274-20-171.91Типовой проект 274-20-171.91Типовой проект 274-20-171.91Типовой проект 274-20-171.91Типовой проект 274-20-171.91Типовой проект 274-20-171.91Типовой проект 274-20-171.91Типовой проект 274-20-171.91Типовой проект 274-20-171.91Типовой проект 274-20-171.91Типовой проект 274-20-171.91Типовой проект 274-20-171.91Типовой проект 274-20-171.91Типовой проект 274-20-171.91Типовой проект 274-20-171.91Типовой проект 274-20-171.91Типовой проект 274-20-171.91Типовой проект 274-20-171.91Типовой проект 274-20-171.91Типовой проект 274-20-171.91Типовой проект 274-20-171.91Типовой проект 274-20-171.91Типовой проект 274-20-171.91Типовой проект 274-20-171.91Типовой проект 274-20-171.91Типовой проект 274-20-171.91Типовой проект 274-20-171.91Типовой проект 274-20-171.91Типовой проект 274-20-171.91Типовой проект 274-20-171.91Типовой проект 274-20-171.91Типовой проект 274-20-171.91

© 2013 Ёшкин Кот :-) Карта сайта