Информационная система
«Ёшкин Кот»

Скачать базу одним архивом
Скачать обновления
История создания базы
Карта сайта

Скачать Серия Б1.134.1-7 Выпуск 1. Для зданий до 16 этажей с различными конструктивными схемами

Дата актуализации: 10.08.2017

Серия Б1.134.1-7

Выпуск 1. Для зданий до 16 этажей с различными конструктивными схемами

Обозначение: Серия Б1.134.1-7
Обозначение англ: Series Б1.134.1-7
Статус:организационно-ограниченного применения
Название рус.:Выпуск 1. Для зданий до 16 этажей с различными конструктивными схемами
Дата добавления в базу:01.09.2013
Дата актуализации:05.05.2017
Дата введения:01.01.1995
Оглавление:Содержание альбома
Пояснительная записка
Вентблоки. Номенклатура
Вентблоки. Схема вентиляции жилых домов. Планы и развертки
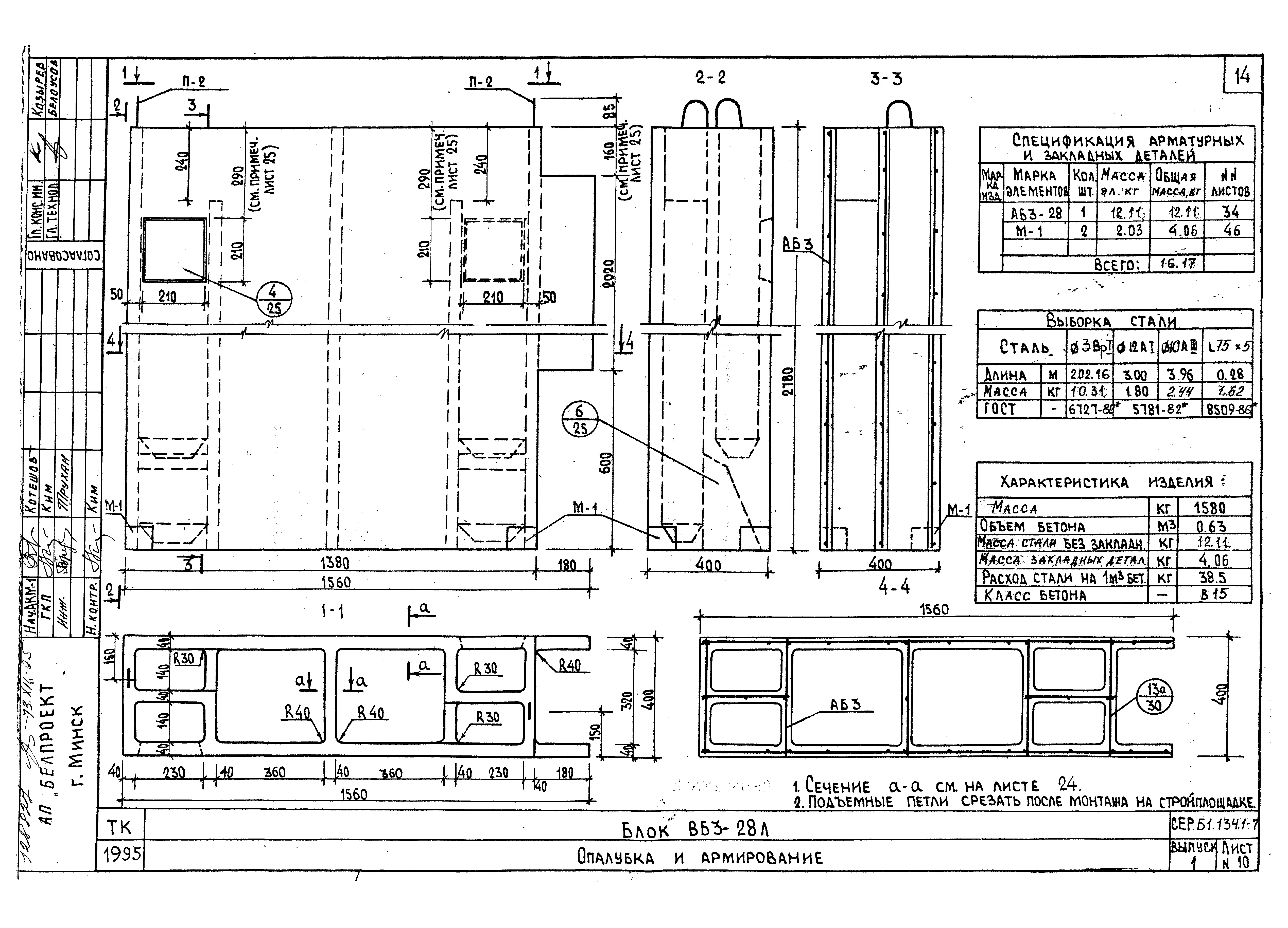
Вентблоки. Опалубка и армирование
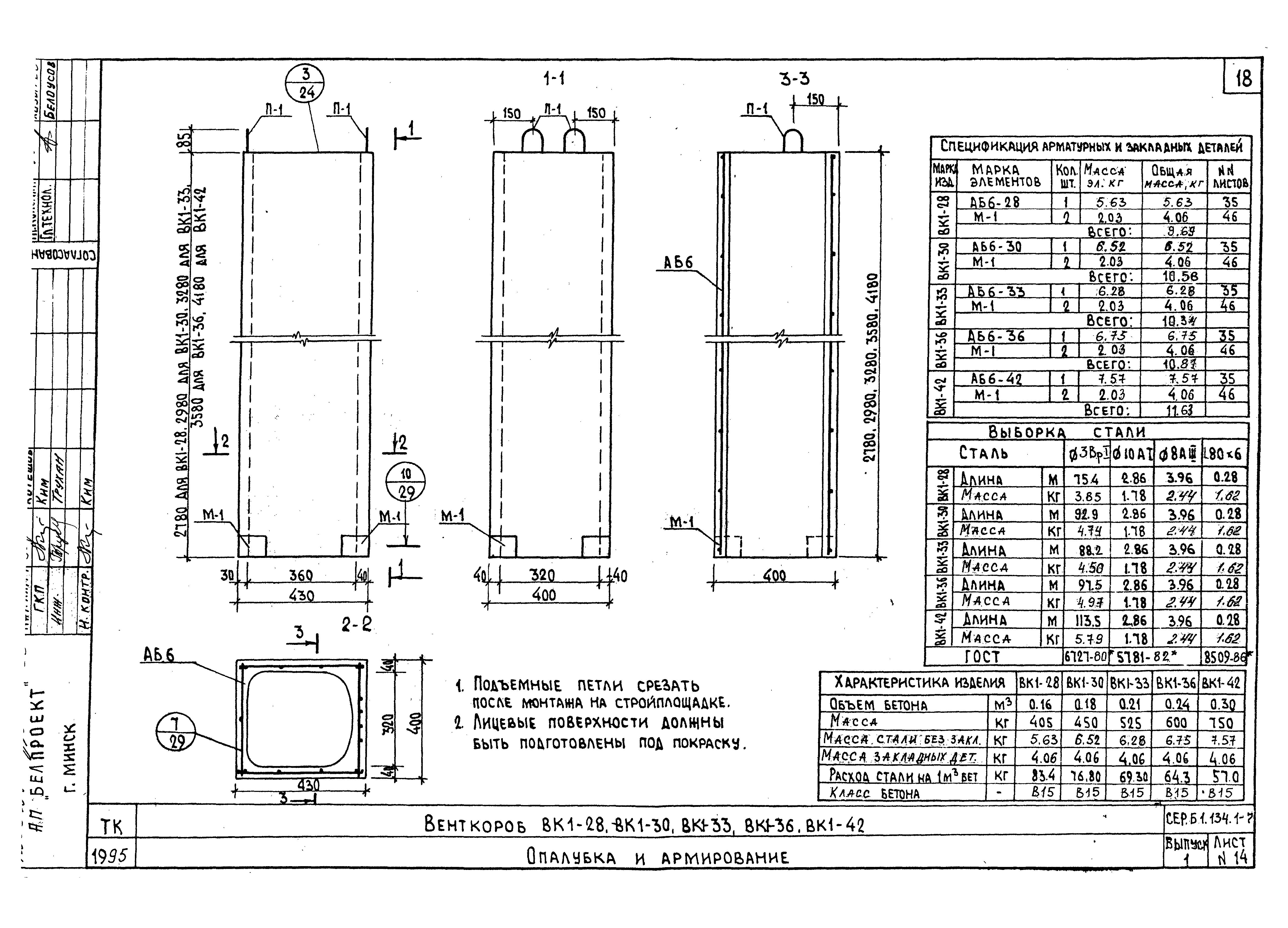
Венткоробы. Опалубка и армирование
Вентшахты. Опалубка и армирование
Плиты. Опалубка и армирование
Вентиляционные блоки. Узлы
Вентблоки. Детали
Вентблоки. Узлы армирования
Вентшахты. Узлы армирования
Вентблоки. Арматурные блоки
Вентблоки и венткороба. Арматурные блоки
Вентшахты. Арматурные блоки
Вентблоки. Арматурные сетки
Вентшахты. Арматурные сетки
Плиты над вентшахтами. Арматурные сетки
Вентблоки. Закладные изделия. Подъемные петли
Вентблоки. Деталь установки вентблоков в жилом доме
Вентблоки. Узлы установки вентблоков в здании
Разработан: Белпроект
Утверждён:01.01.1995 Минскжелезобетон
Расположен в:Техническая документация Строительство Справочные документы Типовые строительные конструкции, изделия и узлы Разработанные другими министерствами, ведомствами и организациями
Серия Б1.134.1-7Серия Б1.134.1-7Серия Б1.134.1-7Серия Б1.134.1-7Серия Б1.134.1-7Серия Б1.134.1-7Серия Б1.134.1-7Серия Б1.134.1-7Серия Б1.134.1-7Серия Б1.134.1-7Серия Б1.134.1-7Серия Б1.134.1-7Серия Б1.134.1-7Серия Б1.134.1-7Серия Б1.134.1-7Серия Б1.134.1-7Серия Б1.134.1-7Серия Б1.134.1-7Серия Б1.134.1-7Серия Б1.134.1-7Серия Б1.134.1-7Серия Б1.134.1-7Серия Б1.134.1-7Серия Б1.134.1-7Серия Б1.134.1-7Серия Б1.134.1-7Серия Б1.134.1-7Серия Б1.134.1-7Серия Б1.134.1-7Серия Б1.134.1-7Серия Б1.134.1-7Серия Б1.134.1-7Серия Б1.134.1-7Серия Б1.134.1-7Серия Б1.134.1-7Серия Б1.134.1-7Серия Б1.134.1-7Серия Б1.134.1-7Серия Б1.134.1-7Серия Б1.134.1-7Серия Б1.134.1-7Серия Б1.134.1-7Серия Б1.134.1-7Серия Б1.134.1-7Серия Б1.134.1-7Серия Б1.134.1-7Серия Б1.134.1-7Серия Б1.134.1-7Серия Б1.134.1-7Серия Б1.134.1-7Серия Б1.134.1-7Серия Б1.134.1-7Серия Б1.134.1-7Серия Б1.134.1-7Серия Б1.134.1-7Серия Б1.134.1-7Серия Б1.134.1-7Серия Б1.134.1-7Серия Б1.134.1-7Серия Б1.134.1-7Серия Б1.134.1-7Серия Б1.134.1-7Серия Б1.134.1-7Серия Б1.134.1-7Серия Б1.134.1-7Серия Б1.134.1-7Серия Б1.134.1-7Серия Б1.134.1-7Серия Б1.134.1-7Серия Б1.134.1-7

© 2013 Ёшкин Кот :-) Карта сайта