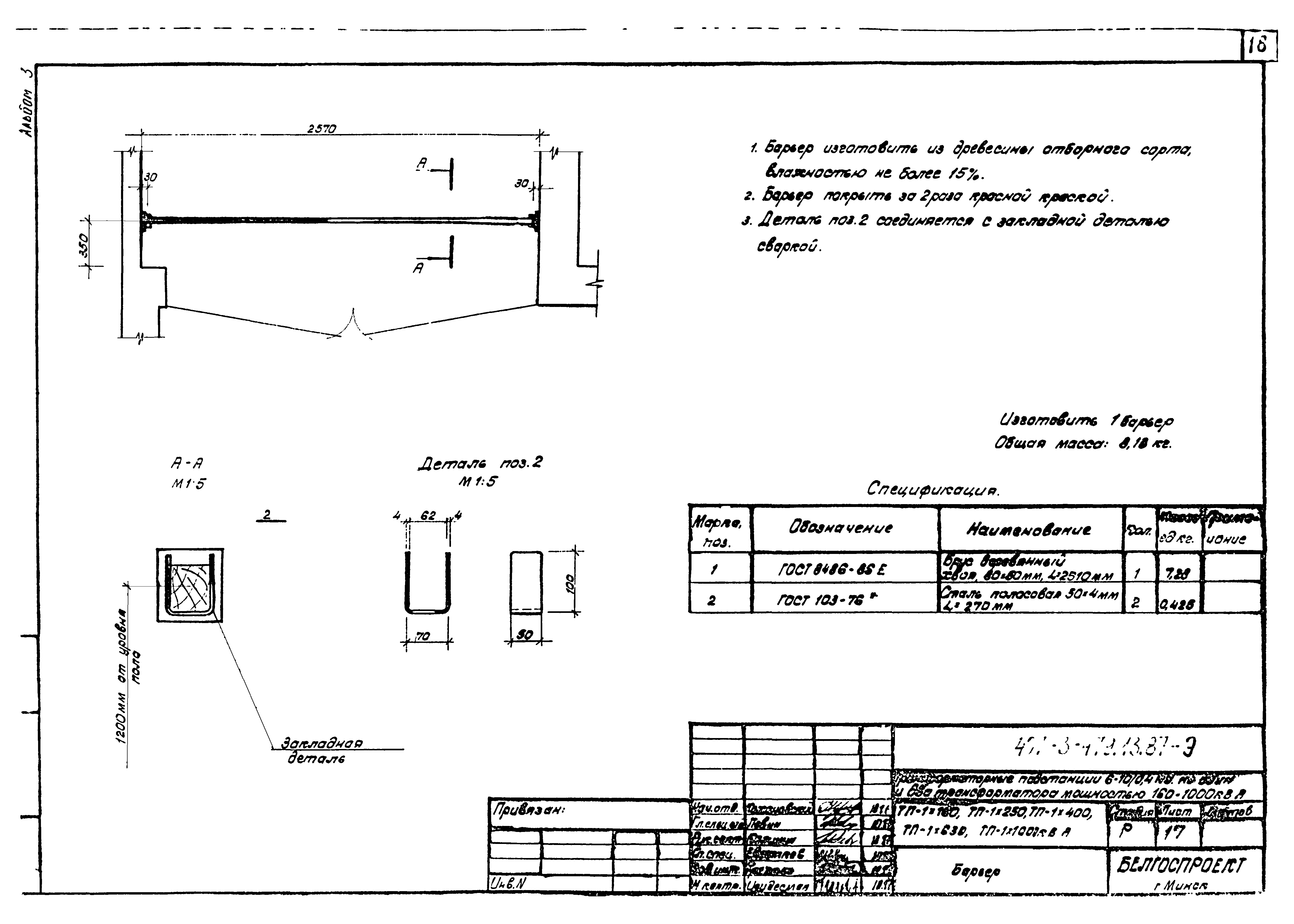
Скачать Типовой проект 407-3-479.13.87 Альбом 3. Электрооборудование ТП-1х160, ТП-1х250, ТП-1х400, ТП-1х630, ТП-1х1000 кВАДата актуализации: 10.08.2017 Типовой проект 407-3-479.13.87
Альбом 3. Электрооборудование ТП-1х160, ТП-1х250, ТП-1х400, ТП-1х630, ТП-1х1000 кВАОбозначение: | Типовой проект 407-3-479.13.87 | Обозначение англ: | 407-3-479.13.87 | Статус: | действует | Название рус.: | Альбом 3. Электрооборудование ТП-1х160, ТП-1х250, ТП-1х400, ТП-1х630, ТП-1х1000 кВА | Дата добавления в базу: | 12.02.2016 | Дата актуализации: | 05.05.2017 | Разработан: | Белгоспроект
| Утверждён: | 14.12.1987 Госстрой БССР (BSSR Gosstroy 201)
| Расположен в: |
| Заменяет собой: | - Типовой проект 407-3-315 «Трансформаторные подстанции ТП-1х160, ТП-1х250, ТП-1х400, ТП-1х630, ТП-1х1000 кВА. Стены из кирпича»
|
                                 
|