Информационная система
«Ёшкин Кот»

Скачать базу одним архивом
Скачать обновления
История создания базы
Карта сайта

Скачать Типовые проектные решения 416-9-031.87 Альбом I. Пояснительная записка. Технология производства

Дата актуализации: 10.08.2017

Типовые проектные решения 416-9-031.87

Альбом I. Пояснительная записка. Технология производства

Обозначение: Типовые проектные решения 416-9-031.87
Обозначение англ: 416-9-031.87
Статус:cправочные материалы, мп, тпр
Название рус.:Альбом I. Пояснительная записка. Технология производства
Дата добавления в базу:01.09.2013
Дата актуализации:05.05.2017
Дата введения:30.03.1987
Оглавление:Содержание
Пояснительная записка
Общие данные
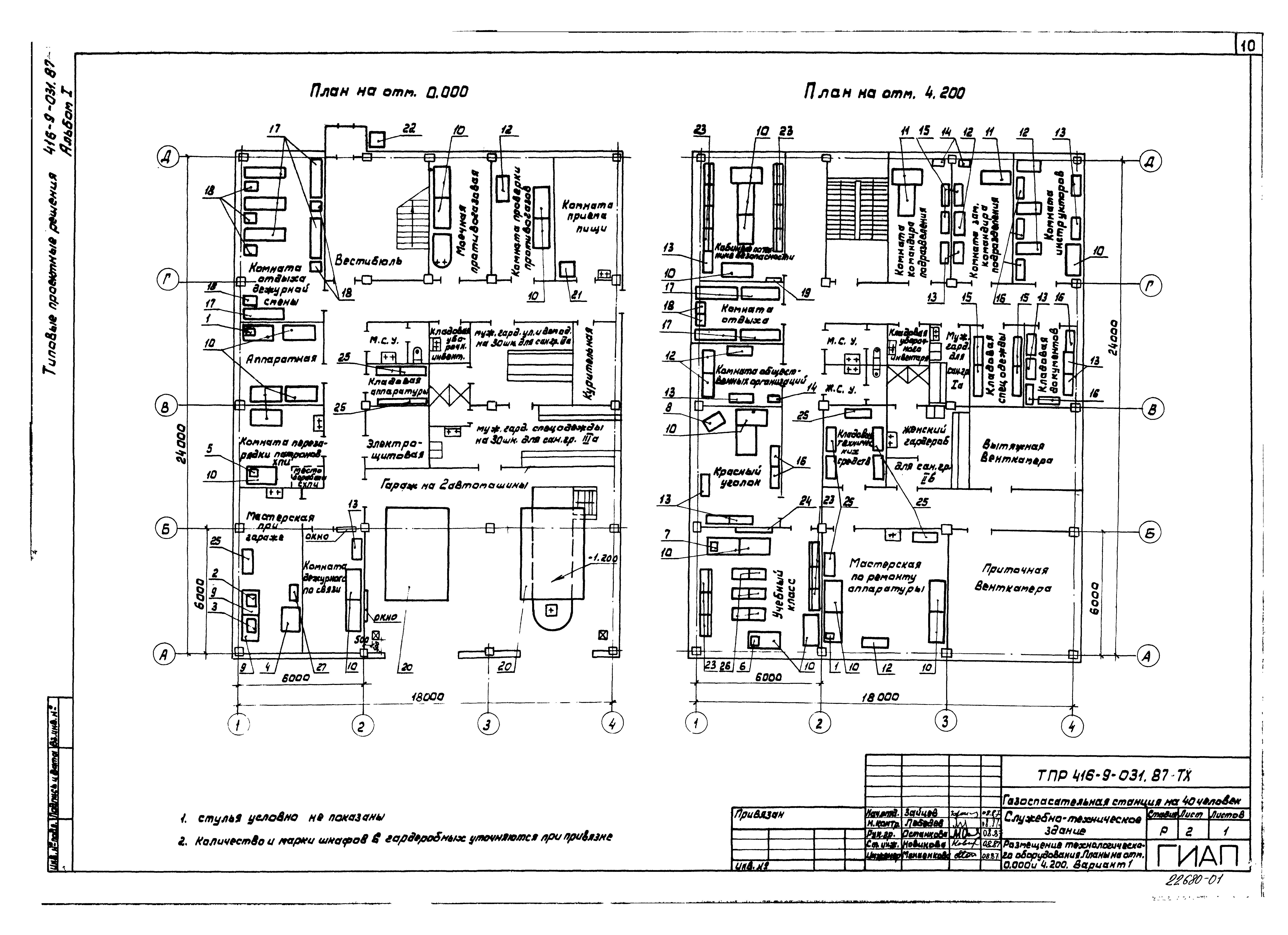
Размещение технологического оборудования. Планы на отм. 0.000 и 4.200. Вариант 1
Размещение технологического оборудования. Планы на отм. 0.000 и 4.200. Вариант 2
Спецификация оборудования
Разработан: ГИАП
Утверждён:30.03.1987 Министерство по производству минеральных удобрений СССР (USSR Ministry of Mineral Fertilizer Production 25-156)
Издан: ЦИТП Госстроя СССР (CITP, Gosstroy (USSR) 1988 г. )
Расположен в:Техническая документация Строительство Справочные документы Типовые строительные конструкции, изделия и узлы Общероссийский строительный каталог Промышленные предприятия, здания и сооружения Предприятия, здания и сооружения промышленности и электроэнергетики Ремонтные предприятия. Административно-бытовые, производственные и вспомогательные здания и сооружения промышленных предприятий Ремонтные предприятия, производственные и вспомогательные здания и сооружения
Типовые проектные решения 416-9-031.87Типовые проектные решения 416-9-031.87Типовые проектные решения 416-9-031.87Типовые проектные решения 416-9-031.87Типовые проектные решения 416-9-031.87Типовые проектные решения 416-9-031.87Типовые проектные решения 416-9-031.87Типовые проектные решения 416-9-031.87Типовые проектные решения 416-9-031.87Типовые проектные решения 416-9-031.87Типовые проектные решения 416-9-031.87Типовые проектные решения 416-9-031.87Типовые проектные решения 416-9-031.87Типовые проектные решения 416-9-031.87Типовые проектные решения 416-9-031.87

© 2013 Ёшкин Кот :-) Карта сайта