Информационная система
«Ёшкин Кот»

Скачать базу одним архивом
Скачать обновления
История создания базы
Карта сайта

Скачать Альбом И9-1 Альбом чертежей повторного применения для проектирования тепловых сетей

Дата актуализации: 10.08.2017

Альбом И9-1

Альбом чертежей повторного применения для проектирования тепловых сетей

Обозначение: Альбом И9-1
Обозначение англ: И9-1
Статус:действует
Название рус.:Альбом чертежей повторного применения для проектирования тепловых сетей
Дата добавления в базу:01.09.2013
Дата актуализации:05.05.2017
Оглавление:Содержание
Пояснительная записка
Раздел I. Узлы и сооружения теплотрассы при подземной прокладке трубопроводов
   Прокладка теплофикационного канала над пересекаемым водопроводом
   Прокладка теплофикационного канала под пересекаемым водопроводом
   Прокладка теплофикационного канала над пересекаемой канализацией
   Прокладка теплофикационного канала под пересекаемой канализацией
   Пересечение теплосети с газопроводом
   Пересечение теплосети с телефонной канализацией
   Пересечение теплосети с электрокабелем напряжением до 35 кВ
   Пересечение теплосети с электрокабелем. Вариант с оттяжкой кабеля
   Пересечение теплосети с арыком
   Прокладка теплофикационного канала над существующей теплосетью
   Дренажный колодец Ф 2,0 м в сухих грунтах
   Дренажный колодец Ф 1,0 м в сухих грунтах
   Дренажный колодец Ф 2,0 м в мокрых грунтах
   Дренажный колодец Ф 1,0 м в мокрых грунтах
   Установка люков для воздушников на трассе теплосети
   Установка спускников в теплофикационных камерах
   Установка секционирующего узла Ду400 мм в теплофикационной камере
   Установка секционирующего узла Ду500 мм в теплофикационной камере
   Установка секционирующего узла Ду600 мм в теплофикационной камере
   Установка секционирующего узла Ду700 мм в теплофикационной камере
   Установка секционирующего узла Ду800 мм в теплофикационной камере
   Установка сальниковых компенсаторов Ду400, Ду500 мм в теплофикационной камере
   Установка сальниковых компенсаторов Ду600, Ду700, Ду800 мм в теплофикационной камере
   Разрезы трубопроводов тепловых сетей в непроходных каналах
   Разрезы трубопроводов тепловых сетей в непроходных каналах с подкладками
   Прокладка двух трубопроводов Ду25 - Ду250 в футлярах Ду800 - 1200 мм
   Газонепроницаемый сальник
   Выход труб из каналов при Н <= 2000 мм
   Выход труб из каналов при Н > 2000 мм
Раздел II. Узлы и сооружения теплотрассы при надземной прокладке трубопроводов
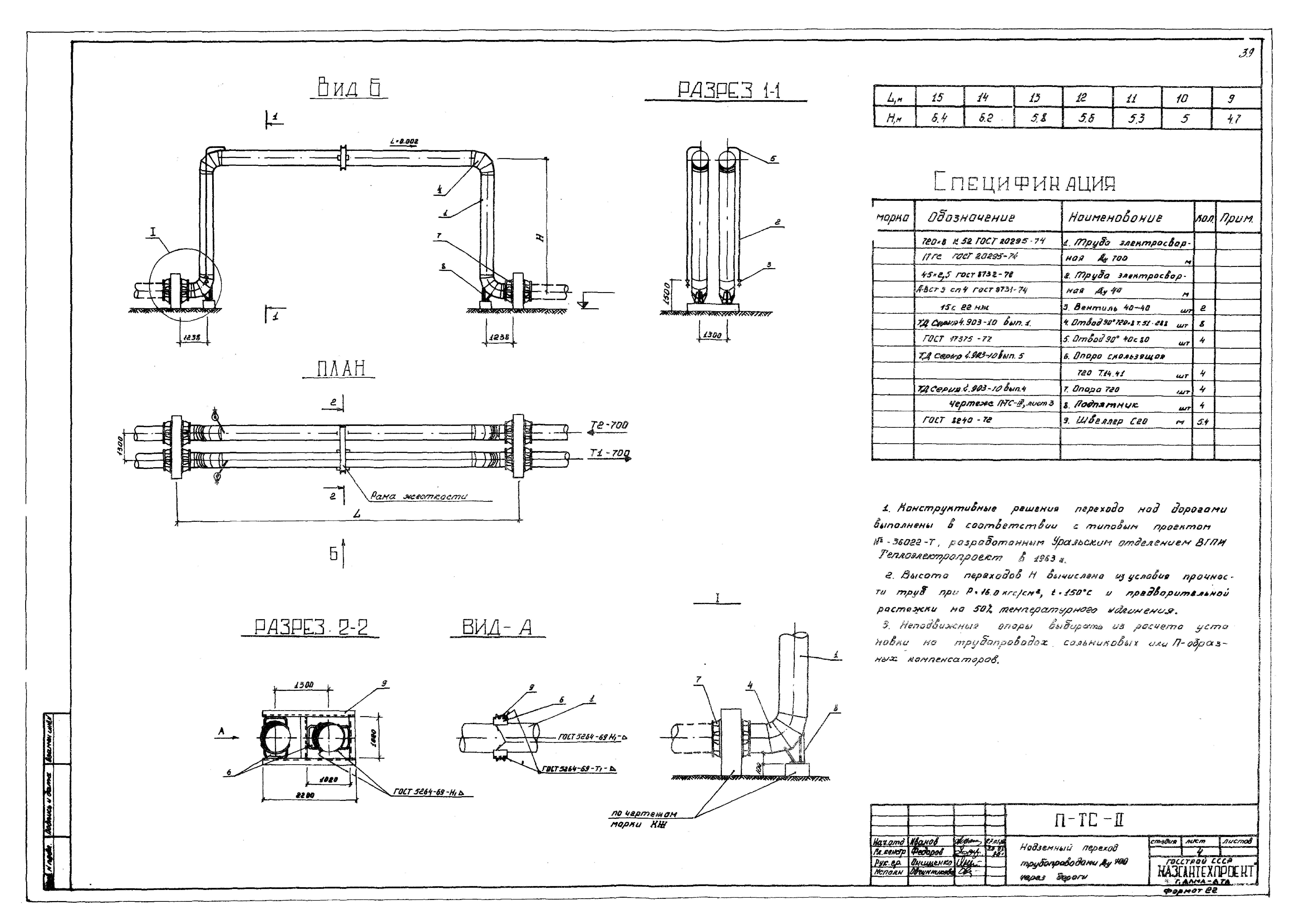
   Надземный переход трубопроводами Ду400 через дорогу
   Надземный переход трубопроводами Ду500 через дорогу
   Надземный переход трубопроводами Ду600 через дорогу
   Надземный переход трубопроводами Ду700 через дорогу
   Надземный переход трубопроводами Ду800 через дорогу
   Надземный переход трубопроводами Ду900 через дорогу
   Надземный переход трубопроводами на растяжках. Общий вид
   Надземный переход трубопроводами на растяжках. Подпятник
   Надземный переход трубопроводами на растяжках. Лотковая опора
   Надземный переход трубопроводами на растяжках. Поворотно-скользящая опора
   Надземный переход трубопроводами на пружинных опорах, скольжения
   Разрезы трубопроводов тепловых сетей при надземной прокладке
   Ящик для конденсационного горшка типа 5с-1-2
Раздел III. Узлы и элементы трубопроводов тепловых сетей
   Опора под задвижку
   Опора ползунковая диэлектрическая
   Подпятник под сварные отводы
   Пружинная опора скольжения. Общий вид
   Пружинная опора скольжения. Основание
   Пружинная опора скольжения. Подвижная опора
   Пружинная опора скольжения. Вставка клиновая
   Электрозащита трубопроводов. Контрольно-измерительный пункт на трубопроводах в непроходном канале
   Электрозащита трубопроводов. Контрольно-измерительный пункт на трубопроводах при бесканальной прокладке
   Электрозащита трубопроводов. Контрольно-измерительный пункт в узле трубопроводов, тип I
   Электрозащита трубопроводов. Контрольно-измерительный пункт в узле трубопроводов, тип II
   Электрозащита трубопроводов. Узлы и детали
   Электрозащита трубопроводов. Продольная и поперечная электроперемычки
   Электрозащита трубопроводов. Изолирующее фланцевое соединение
Разработан: Казсантехпроект
Утверждён:01.01.1980 Госстрой СССР (Государственный комитет Совета Министров СССР по делам строительства) (USSR Gosstroy )
Расположен в:Техническая документация Строительство Справочные документы Типовые строительные конструкции, изделия и узлы Разработанные другими министерствами, ведомствами и организациями
Альбом И9-1Альбом И9-1Альбом И9-1Альбом И9-1Альбом И9-1Альбом И9-1Альбом И9-1Альбом И9-1Альбом И9-1Альбом И9-1Альбом И9-1Альбом И9-1Альбом И9-1Альбом И9-1Альбом И9-1Альбом И9-1Альбом И9-1Альбом И9-1Альбом И9-1Альбом И9-1Альбом И9-1Альбом И9-1Альбом И9-1Альбом И9-1Альбом И9-1Альбом И9-1Альбом И9-1Альбом И9-1Альбом И9-1Альбом И9-1Альбом И9-1Альбом И9-1Альбом И9-1Альбом И9-1Альбом И9-1Альбом И9-1Альбом И9-1Альбом И9-1Альбом И9-1Альбом И9-1Альбом И9-1Альбом И9-1Альбом И9-1Альбом И9-1Альбом И9-1Альбом И9-1Альбом И9-1Альбом И9-1Альбом И9-1Альбом И9-1Альбом И9-1Альбом И9-1Альбом И9-1Альбом И9-1Альбом И9-1Альбом И9-1Альбом И9-1Альбом И9-1Альбом И9-1Альбом И9-1Альбом И9-1Альбом И9-1

© 2013 Ёшкин Кот :-) Карта сайта