Информационная система
«Ёшкин Кот»

Скачать базу одним архивом
Скачать обновления
История создания базы
Карта сайта

Скачать Типовой проект 903-1-252.87 Альбом II. Комплектно-блочное оборудование

Дата актуализации: 10.08.2017

Типовой проект 903-1-252.87

Альбом II. Комплектно-блочное оборудование

Обозначение: Типовой проект 903-1-252.87
Обозначение англ: 903-1-252.87
Статус:не определен законодательством
Название рус.:Альбом II. Комплектно-блочное оборудование
Дата добавления в базу:01.09.2013
Дата актуализации:05.05.2017
Дата введения:30.11.1987
Оглавление:Содержание альбома
Тепломеханическая часть
   Блок электронагревателей БЭВН-500ИЗ. Вид В. План 1-1. Схема блока
   Блок электронагревателей БЭВН-500ИЗ. Виды А, Б
   Блок электронагревателей БЭВН-500ИЗ. Ведомость теплоизоляционных конструкций
   Блок сетевых и циркуляционных насосов БСЦН. Вид В. Схема блока
   Блок сетевых и циркуляционных насосов БСЦН. Виды А, Б
   Блок сетевых и циркуляционных насосов БСЦН. Ведомость теплоизоляционных конструкций
   Блок обработки воды БОВ. Общий вид. Схема блока
   Блок обработки воды БОВ. Ведомость теплоизоляционных конструкций
   Блок управления аккумуляторными баками БУАБ. Виды А, Б, В. Схема блока
   Блок управления аккумуляторными баками БУАБ. Разрез 1-1. Ведомость теплоизоляционных конструкций
   Блок ввода БВ. Общий вид. Схема блока
   Блок ввода БВ. Ведомость теплоизоляционных конструкций
   Блок исходной воды БИВ. Общий вид. Схема блока
   Блок дозирования БД. Общий вид
   Блок дозирования БД. Схема блока. Ведомость теплоизоляционных конструкций
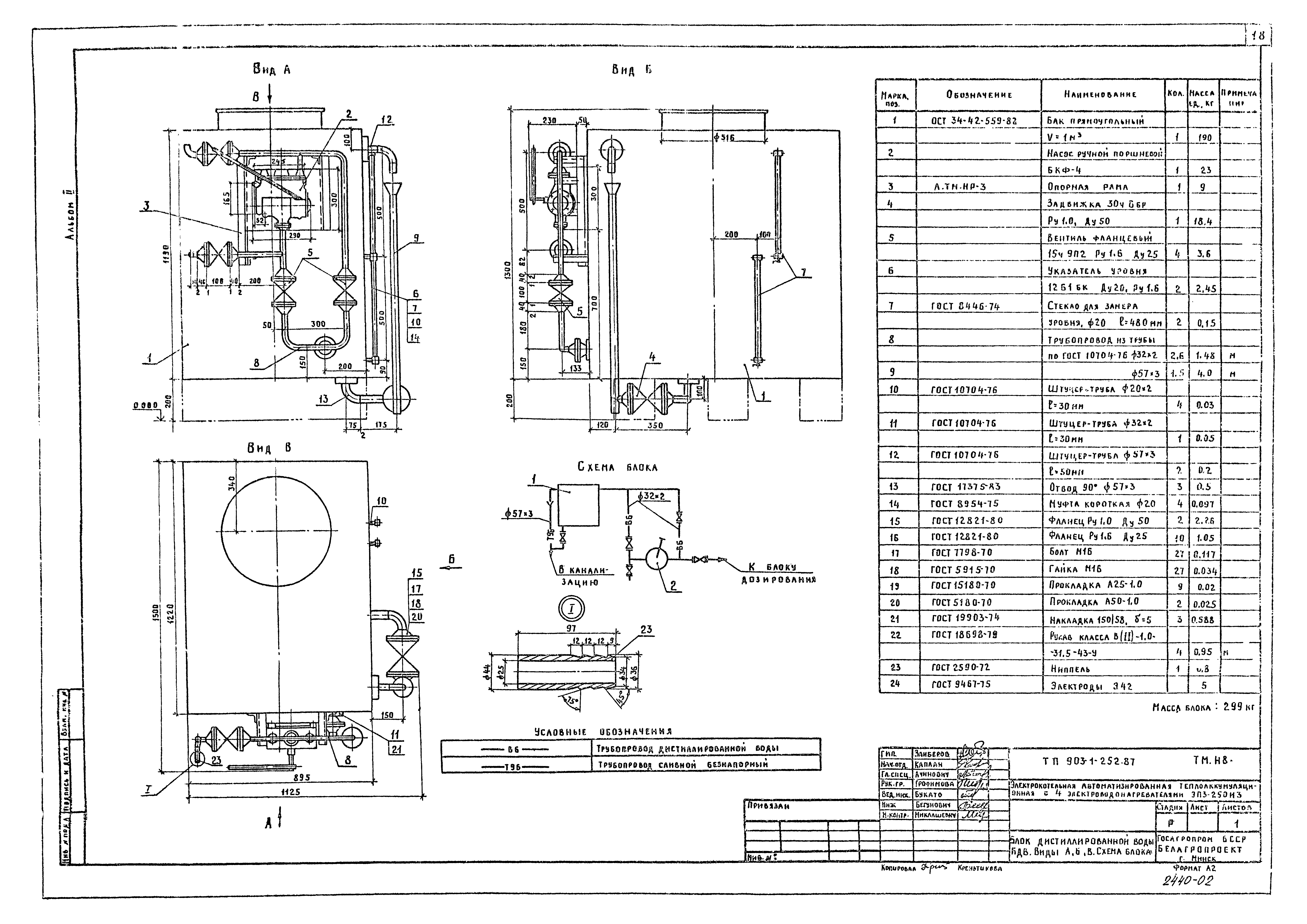
   Блок дистиллированной воды БДВ. Вид А, Б, В. Схема блока
   Блок горячего водоснабжения БГВ. Общий вид
   Блок горячего водоснабжения БГВ. Схема блока
   Блок горячего водоснабжения БГВ. Ведомость теплоизоляционных конструкций
Металлоконструкции для блоков. Рамы
   Опорные рамы блоков БЭВН-500ИЗ, БСЦН
   Опорные рамы блоков БОВ, БУАБ, БВ
   Опорные рамы блоков БИВ, БД, БГВ. Узел крепления ручного насоса к блоку
Автоматизация и КИП
   Блок электронагревателей БЭВН-500ИЗ. Общий вид
   Блок электронагревателей БЭВН-500ИЗ. Схема функциональная. Схема соединений внешних проводок
   Блок сетевых и циркуляционных насосов БСЦН. Общий вид
   Блок сетевых и циркуляционных насосов БСЦН. Схема функциональная. Схема соединений внешних проводок
   Блок управления аккумуляторными баками БУАБ. Общий вид. Схема функциональная. Схема соединений внешних проводок
   Блок ввода БВ. Общий вид. Схема функциональная. Схема соединений внешних проводок
   Блок исходной воды БИВ. Общий вид. Схема функциональная. Схема соединений внешних проводок
   Блок горячего водоснабжения БГВ. Общий вид
   Блок горячего водоснабжения БГВ. Схема функциональная
   Блок горячего водоснабжения БГВ. Схема соединений внешних проводок
Разработан: Белагропроект
Утверждён:30.11.1987 Белагропроект (163)
Расположен в:Техническая документация Строительство Справочные документы Типовые строительные конструкции, изделия и узлы Общероссийский строительный каталог Промышленные предприятия, здания и сооружения Здания и сооружения санитарно-технические Теплоснабжение Котельные установки Электрокотельные
Типовой проект 903-1-252.87Типовой проект 903-1-252.87Типовой проект 903-1-252.87Типовой проект 903-1-252.87Типовой проект 903-1-252.87Типовой проект 903-1-252.87Типовой проект 903-1-252.87Типовой проект 903-1-252.87Типовой проект 903-1-252.87Типовой проект 903-1-252.87Типовой проект 903-1-252.87Типовой проект 903-1-252.87Типовой проект 903-1-252.87Типовой проект 903-1-252.87Типовой проект 903-1-252.87Типовой проект 903-1-252.87Типовой проект 903-1-252.87Типовой проект 903-1-252.87Типовой проект 903-1-252.87Типовой проект 903-1-252.87Типовой проект 903-1-252.87Типовой проект 903-1-252.87Типовой проект 903-1-252.87Типовой проект 903-1-252.87Типовой проект 903-1-252.87Типовой проект 903-1-252.87Типовой проект 903-1-252.87Типовой проект 903-1-252.87Типовой проект 903-1-252.87Типовой проект 903-1-252.87Типовой проект 903-1-252.87Типовой проект 903-1-252.87Типовой проект 903-1-252.87Типовой проект 903-1-252.87Типовой проект 903-1-252.87Типовой проект 903-1-252.87Типовой проект 903-1-252.87

© 2013 Ёшкин Кот :-) Карта сайта