Информационная система
«Ёшкин Кот»

Скачать базу одним архивом
Скачать обновления
История создания базы
Карта сайта

Скачать Типовой проект 902-2-72 Альбом I. Пояснительная записка и чертежи

Дата актуализации: 10.08.2017

Типовой проект 902-2-72

Альбом I. Пояснительная записка и чертежи

Обозначение: Типовой проект 902-2-72
Обозначение англ: 902-2-72
Статус:действует
Название рус.:Альбом I. Пояснительная записка и чертежи
Дата добавления в базу:01.09.2013
Дата актуализации:05.05.2017
Оглавление:Содержание альбома
Заглавный лист
Пояснительная записка
Архитектурно-строительные чертежи
   Отстойник. План, разрез
   Отстойник. Сечения. Узлы
   Отстойник. Узлы. Спецификация стали
   Деревянные щиты Щ-1 - Щ-4
   Отстойник. Опалубочный чертеж. План, разрез, сечения
   Отстойник. Армирование балок БМ-1, БМ-2. Расход материалов
   Отстойник. Армирование балок БМ-1, БМ-2 и лотков. Сетки и каркасы. Спецификация и выборка арматуры
   Арматурный чертеж отстойника. Разрез. Раскладка арматуры в днище для Н = 8500
   Арматурный чертеж отстойника. Раскладка внутренних и наружных сеток в стенке для Н = 8500
   Арматурный чертеж отстойника. Сетки и спецификация арматуры для Н = 8500
   Арматурный чертеж отстойника. Разрез. Раскладка арматуры в днище для Н = 9700
   Арматурный чертеж отстойника. Раскладка внутренних и наружных сеток в стенке для Н = 9700
   Арматурный чертеж отстойника. Сетки и спецификация арматуры для Н = 9700
   Компоновка из 4-х отстойников. План расположения лотков. Спецификация сборных железобетонных элементов
   Компоновка из 9-и отстойников. План расположения лотков. Спецификация железобетонных элементов
   Детали узлов
   Детали узлов. Узел "11"
   Детали узлов. Узел "19"
   Колодцы №1, 2, 3, 4
   Распределительная камера. Тип I
   Распределительная камера. Тип II
   Распределительные камеры тип I и II. Сетки и спецификации арматуры
   Лотки Л-1, Л-2, Л-3
   Лотки Л-6, Л-7
   Лотки Л-4, Л-8
   Лотки Л-9, Л-10
   Лоток Л-5. Муфты Мл-1, Мл-2, Мл-3
   Лоток Л-5. Муфты Мл-1, Мл-2, Мл-3. Спецификация арматуры
Технологические чертежи
   План, разрез и сечения отстойника
   Иловые колодцы. Планы и разрезы. Спецификация
Чертежи нестандартного оборудования
   Затвор поверхностный 200х300. Общий вид и узел
   Затвор поверхностный 200х300. Узлы и детали
   Затвор поверхностный 300х450 с ручным приводом. Общий вид
   Затвор поверхностный 300х450 с ручным приводом. Узел и детали
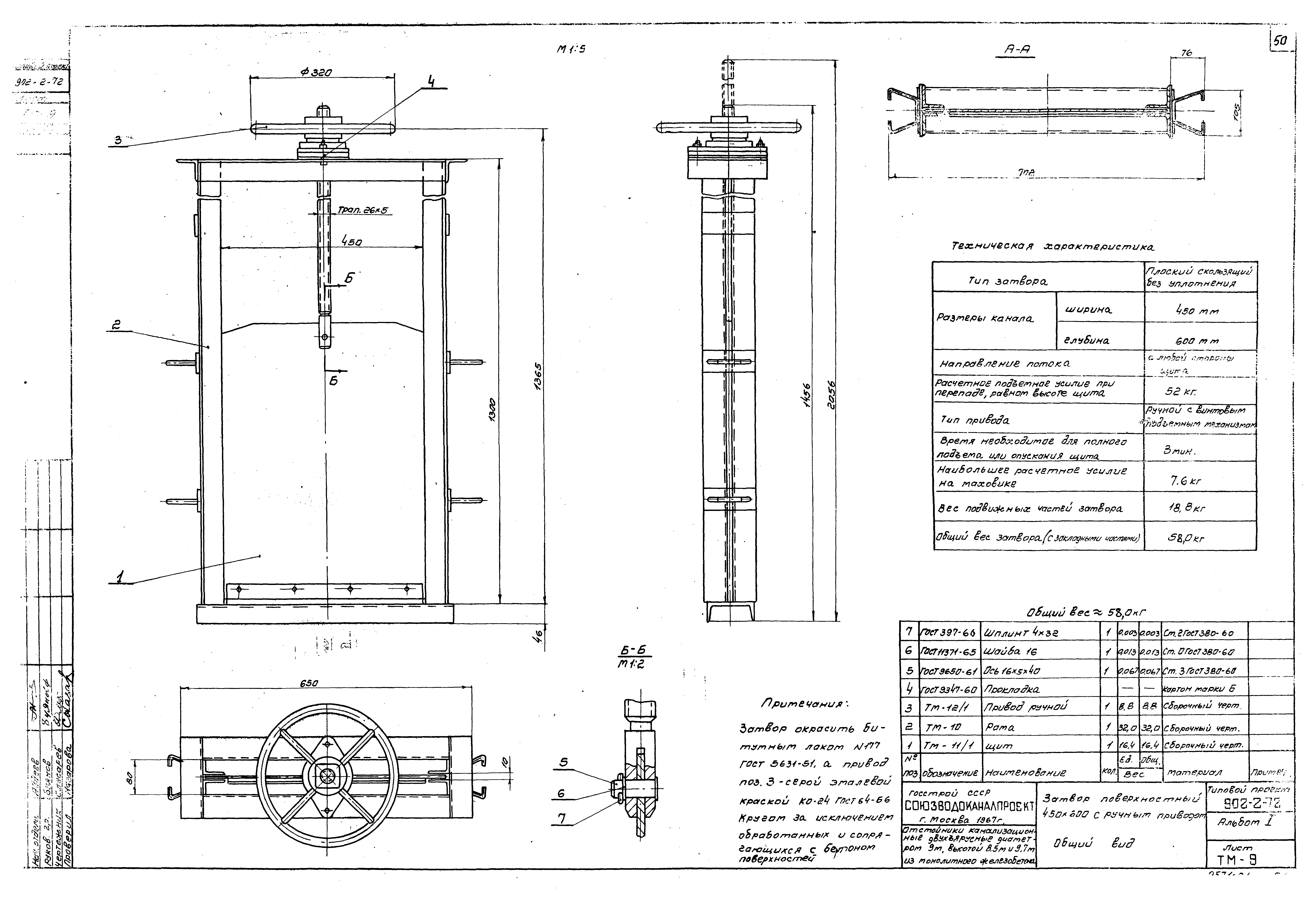
   Затвор поверхностный 450х600 с ручным приводом. Общий вид
   Затвор поверхностный 450х600 с ручным приводом. Рама
   Затвор поверхностный 450х600 с ручным приводом. Узел и детали
   Колонка для управления задвижкой 30ч6бр Ру10; Ду200. Общий вид. Детали
   Колонка для управления задвижкой 30ч6бр Ру10; Ду200. Узлы
   Колонка для управления задвижкой 30ч6бр Ру10; Ду200. Детали
   Сборная камера. Сетка для трубы Ду300. Общий вид. Узлы, детали
Разработан: Союзводоканалниипроект
Утверждён:01.01.1967 Госстрой СССР (Государственный комитет Совета Министров СССР по делам строительства) (USSR Gosstroy )
Расположен в:Техническая документация Строительство Справочные документы Типовые строительные конструкции, изделия и узлы Общероссийский строительный каталог Промышленные предприятия, здания и сооружения Здания и сооружения санитарно-технические Канализация Сооружения механической очистки Отстойники Отстойники горизонтальные первичные
Типовой проект 902-2-72Типовой проект 902-2-72Типовой проект 902-2-72Типовой проект 902-2-72Типовой проект 902-2-72Типовой проект 902-2-72Типовой проект 902-2-72Типовой проект 902-2-72Типовой проект 902-2-72Типовой проект 902-2-72Типовой проект 902-2-72Типовой проект 902-2-72Типовой проект 902-2-72Типовой проект 902-2-72Типовой проект 902-2-72Типовой проект 902-2-72Типовой проект 902-2-72Типовой проект 902-2-72Типовой проект 902-2-72Типовой проект 902-2-72Типовой проект 902-2-72Типовой проект 902-2-72Типовой проект 902-2-72Типовой проект 902-2-72Типовой проект 902-2-72Типовой проект 902-2-72Типовой проект 902-2-72Типовой проект 902-2-72Типовой проект 902-2-72Типовой проект 902-2-72Типовой проект 902-2-72Типовой проект 902-2-72Типовой проект 902-2-72Типовой проект 902-2-72Типовой проект 902-2-72Типовой проект 902-2-72Типовой проект 902-2-72Типовой проект 902-2-72Типовой проект 902-2-72Типовой проект 902-2-72Типовой проект 902-2-72Типовой проект 902-2-72Типовой проект 902-2-72Типовой проект 902-2-72Типовой проект 902-2-72Типовой проект 902-2-72Типовой проект 902-2-72Типовой проект 902-2-72Типовой проект 902-2-72Типовой проект 902-2-72Типовой проект 902-2-72Типовой проект 902-2-72Типовой проект 902-2-72Типовой проект 902-2-72Типовой проект 902-2-72Типовой проект 902-2-72Типовой проект 902-2-72Типовой проект 902-2-72Типовой проект 902-2-72

© 2013 Ёшкин Кот :-) Карта сайта