Информационная система
«Ёшкин Кот»

Скачать базу одним архивом
Скачать обновления
История создания базы
Карта сайта

Скачать Типовой проект 901-3-237.87 Альбом I. Пояснительная записка. Технологические решения. Отопление и вентиляция

Дата актуализации: 10.08.2017

Типовой проект 901-3-237.87

Альбом I. Пояснительная записка. Технологические решения. Отопление и вентиляция

Обозначение: Типовой проект 901-3-237.87
Обозначение англ: 901-3-237.87
Статус:не определен законодательством
Название рус.:Альбом I. Пояснительная записка. Технологические решения. Отопление и вентиляция
Дата добавления в базу:01.09.2013
Дата актуализации:05.05.2017
Дата введения:30.06.2003
Оглавление:Содержание альбома
Пояснительная записка
Технологические решения
   Общие данные
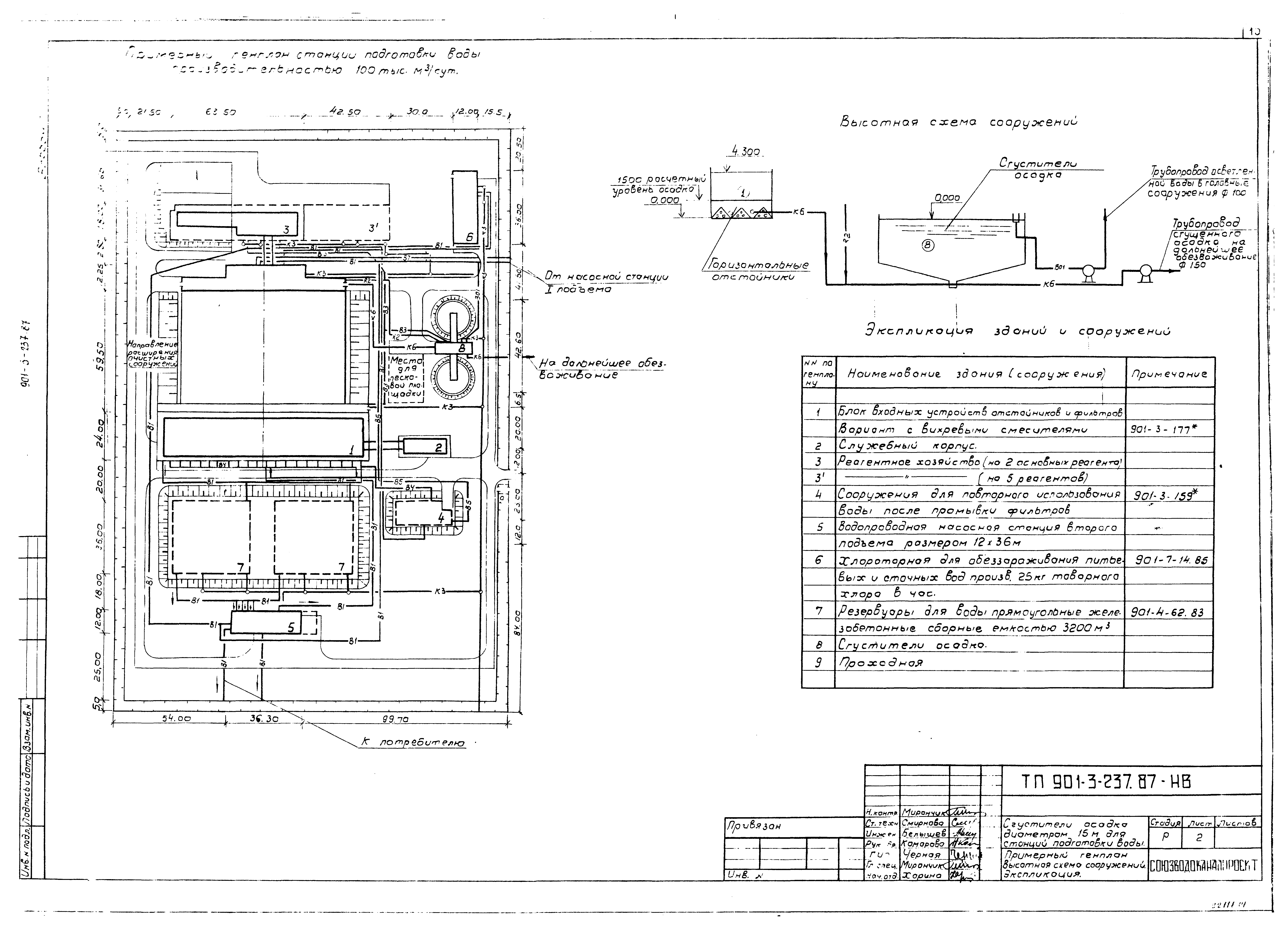
   Примерный генплан. Высотная схема сооружений. Экспликация
   План. Экспликация оборудования
   Фрагмент плана
   Разрезы 1-1, 2-2
   Разрезы 3-3, 4-4
   Схемы трубопроводов. Разрез 5-5
Отопление и вентиляция
   Общие данные
   План
   Разрез 1-1. Схемы систем вентиляции
   Схемы системы теплоснабжения установок А1 - А4, системы отопления, узла управления
   Эскизные чертежи общих видов нетиповых конструкций систем отопления и вентиляции
Разработан: Союзводоканалпроект
Утверждён:25.12.1986 Госстрой СССР (Государственный комитет Совета Министров СССР по делам строительства) (USSR Gosstroy АЧ-95)
Расположен в:Техническая документация Строительство Справочные документы Типовые строительные конструкции, изделия и узлы Общероссийский строительный каталог Промышленные предприятия, здания и сооружения Здания и сооружения санитарно-технические Водоснабжение Сооружения и установки по обеззараживанию воды Сооружения для обработки осадка
Типовой проект 901-3-237.87Типовой проект 901-3-237.87Типовой проект 901-3-237.87Типовой проект 901-3-237.87Типовой проект 901-3-237.87Типовой проект 901-3-237.87Типовой проект 901-3-237.87Типовой проект 901-3-237.87Типовой проект 901-3-237.87Типовой проект 901-3-237.87Типовой проект 901-3-237.87Типовой проект 901-3-237.87Типовой проект 901-3-237.87Типовой проект 901-3-237.87Типовой проект 901-3-237.87Типовой проект 901-3-237.87Типовой проект 901-3-237.87Типовой проект 901-3-237.87Типовой проект 901-3-237.87Типовой проект 901-3-237.87Типовой проект 901-3-237.87Типовой проект 901-3-237.87Типовой проект 901-3-237.87Типовой проект 901-3-237.87

© 2013 Ёшкин Кот :-) Карта сайта