Информационная система
«Ёшкин Кот»

Скачать базу одним архивом
Скачать обновления
История создания базы
Карта сайта

Скачать Типовой проект 707-2-20с.85 Альбом II. Конструкции металлические

Дата актуализации: 10.08.2017

Типовой проект 707-2-20с.85

Альбом II. Конструкции металлические

Обозначение: Типовой проект 707-2-20с.85
Обозначение англ: 707-2-20с.85
Статус:заменен
Название рус.:Альбом II. Конструкции металлические
Дата добавления в базу:01.09.2013
Дата актуализации:05.05.2017
Дата введения:16.12.1993
Оглавление:Общие данные. Ведомость чертежей основного комплекта
Техническая спецификация металла. Сочетания I, II
Техническая спецификация металла. Сочетания III, IV
Техническая спецификация металла. Сочетания V, VI
Общий вид. Фасад
Общий вид. Разрезы
Днище резервуара. План. Разрезы. Узлы
Стенка резервуара. Разрезы
Оболочки и стойки колокола. Фасад. Развертка
Оболочки и стойки колокола. Разрезы
Оболочки и стойки колокола. Разрезы. Развертки
Оболочки и стойки колокола. Узлы
Каркас купола. План
Каркас купола. Узлы
Внутренние направляющие в резервуаре
Каркас внешних направляющих. Развертка
Каркас внешних направляющих. Разрезы
Каркас внешних направляющих. Таблица сечений
Каркас внешних направляющих. Узлы
Площадка для пригрузки. Схема
Площадка для пригрузки. Узлы
Схема и таблица догрузок
Шахтная лестница. Схема. Таблица сечений
Шахтная лестница. Разрезы. Узлы
Колпаки, люки, лазы. Установка роликов. Схема
Колпаки, люки, лазы. Установка роликов. Разрезы. Узлы
Колпак КП, люк ЛК-1. Узлы
Лаз ЛЗ-1, ЛЗ-2. Люк ЛК-2. Узлы
Труба сброса газа. Общий вид. План
Труба сброса газа. Схема. Таблица сечений
Труба сброса газа. Разрезы. Узлы
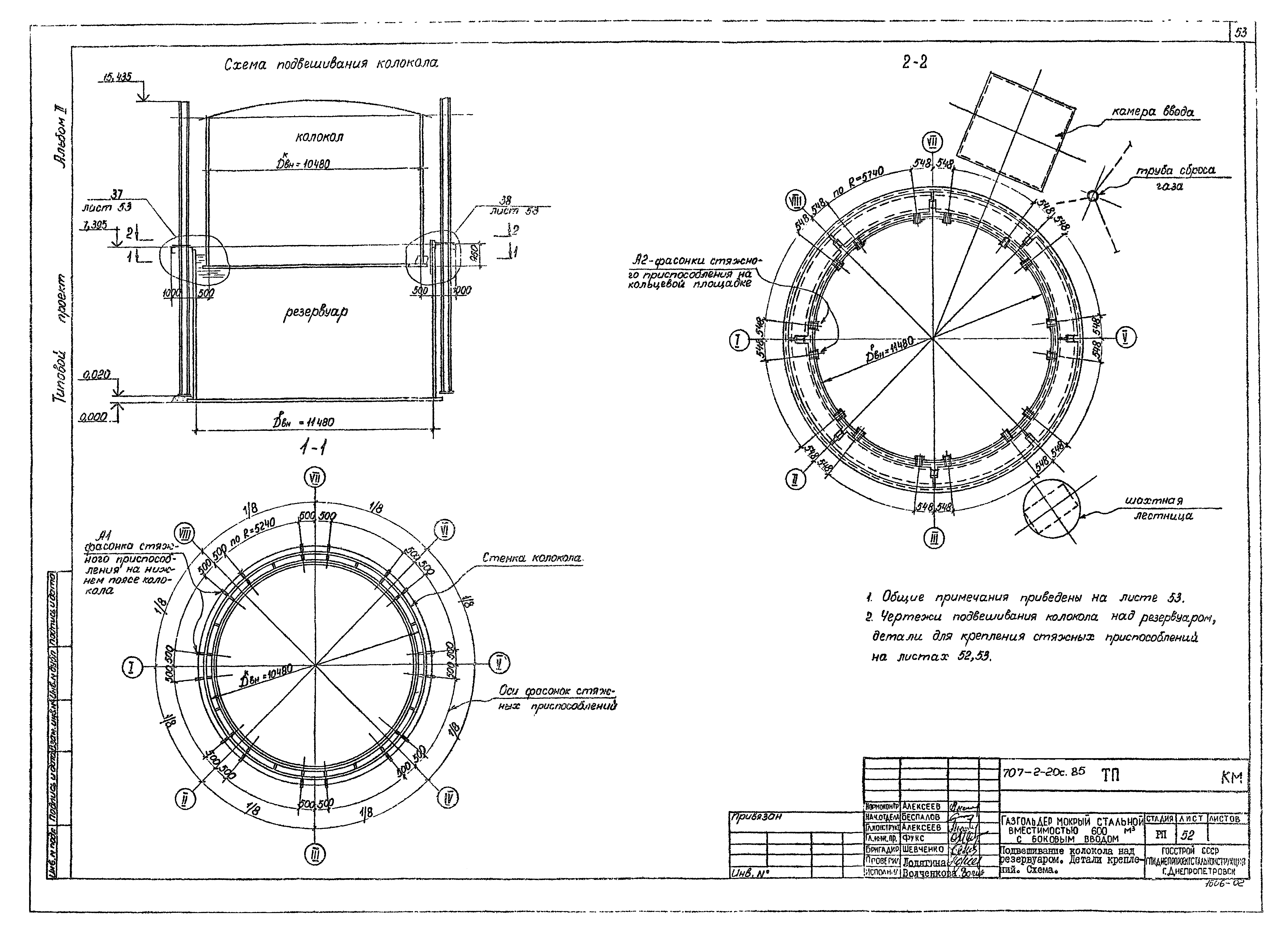
Подвешивание колокола над резервуаром. Схема. Детали креплений
Подвешивание колокола над резервуаром. Детали креплений. Узлы
Газовые вводы. Ситуационный план. Узлы
Молниеприемники. Схема. Узлы
Лист нагрузок на кольцевой фундамент газгольдера
Разработан: ГИАП
Утверждён:17.05.1984 Министерство по производству минеральных удобрений СССР (USSR Ministry of Mineral Fertilizer Production 25-89)
Расположен в:Техническая документация Строительство Справочные документы Типовые строительные конструкции, изделия и узлы Общероссийский строительный каталог Промышленные предприятия, здания и сооружения Предприятия, здания и сооружения складские Газгольдеры
Чем заменён:
Типовой проект 707-2-20с.85Типовой проект 707-2-20с.85Типовой проект 707-2-20с.85Типовой проект 707-2-20с.85Типовой проект 707-2-20с.85Типовой проект 707-2-20с.85Типовой проект 707-2-20с.85Типовой проект 707-2-20с.85Типовой проект 707-2-20с.85Типовой проект 707-2-20с.85Типовой проект 707-2-20с.85Типовой проект 707-2-20с.85Типовой проект 707-2-20с.85Типовой проект 707-2-20с.85Типовой проект 707-2-20с.85Типовой проект 707-2-20с.85Типовой проект 707-2-20с.85Типовой проект 707-2-20с.85Типовой проект 707-2-20с.85Типовой проект 707-2-20с.85Типовой проект 707-2-20с.85Типовой проект 707-2-20с.85Типовой проект 707-2-20с.85Типовой проект 707-2-20с.85Типовой проект 707-2-20с.85Типовой проект 707-2-20с.85Типовой проект 707-2-20с.85Типовой проект 707-2-20с.85Типовой проект 707-2-20с.85Типовой проект 707-2-20с.85Типовой проект 707-2-20с.85Типовой проект 707-2-20с.85Типовой проект 707-2-20с.85Типовой проект 707-2-20с.85Типовой проект 707-2-20с.85Типовой проект 707-2-20с.85Типовой проект 707-2-20с.85Типовой проект 707-2-20с.85Типовой проект 707-2-20с.85Типовой проект 707-2-20с.85Типовой проект 707-2-20с.85Типовой проект 707-2-20с.85Типовой проект 707-2-20с.85Типовой проект 707-2-20с.85Типовой проект 707-2-20с.85Типовой проект 707-2-20с.85Типовой проект 707-2-20с.85Типовой проект 707-2-20с.85Типовой проект 707-2-20с.85Типовой проект 707-2-20с.85Типовой проект 707-2-20с.85Типовой проект 707-2-20с.85Типовой проект 707-2-20с.85Типовой проект 707-2-20с.85Типовой проект 707-2-20с.85Типовой проект 707-2-20с.85Типовой проект 707-2-20с.85

© 2013 Ёшкин Кот :-) Карта сайта