Информационная система
«Ёшкин Кот»

Скачать базу одним архивом
Скачать обновления
История создания базы
Карта сайта

Скачать Типовой проект 503-279 Альбом I. Пояснительная записка. Архитектурно-строительные чертежи

Дата актуализации: 10.08.2017

Типовой проект 503-279

Альбом I. Пояснительная записка. Архитектурно-строительные чертежи

Обозначение: Типовой проект 503-279
Обозначение англ: 503-279
Статус:не действует
Название рус.:Альбом I. Пояснительная записка. Архитектурно-строительные чертежи
Дата добавления в базу:01.09.2013
Дата актуализации:05.05.2017
Оглавление:Состав альбома
Пояснительная записка
Тип I. План. Разрез 1-1
Тип I. Разрез 2-2. Закладные детали
Тип I. Узлы "2", "3", "4"
Тип I. Спецификация элементов
Тип I-А. План. Разрез 1-1. Узел "6". Схема блокировки
Тип I-А. Спецификация элементов
Тип II. План. Разрез 1-1
Тип II. Разрез 2-2. Спецификации
Тип II. План фундаментов
Тип II. План фундаментов. Разрез 1-1. Вариант монолитных фундаментов
Тип II. Узлы 1 - 3
Тип II-А. План. Разрез 1-1. Схема блокировки. Узел "А"
Тип II-А. Спецификации
Тип II-А. Тупиковая эстакада. Вариант монолитных фундаментов
Тип III. План. Разрез 1-1
Тип III. Разрезы. Узел "Г". Выборка стали
Тип III. Армирование РМ-1. Расход материалов
Тип III. Сетки, каркас Кр-1. Узел "Б"
Тип III. Спецификации и выборка арматуры
Тип III-А. План. Разрез 1-1 и 3-3. Схема блокировки
Тип III-А. Армирование РМ-2. Расход материалов на тупиковую эстакаду
Тип III-А. Спецификации арматуры и марок закладных деталей. Выборка арматуры и стали. Расход материалов на сквозную эстакаду
Тип IV. План. Разрез 1-1
Тип IV. Разрез 2-2. Узел "Г". Закладные детали ЗД-4, ЗД-5, ЗД-6
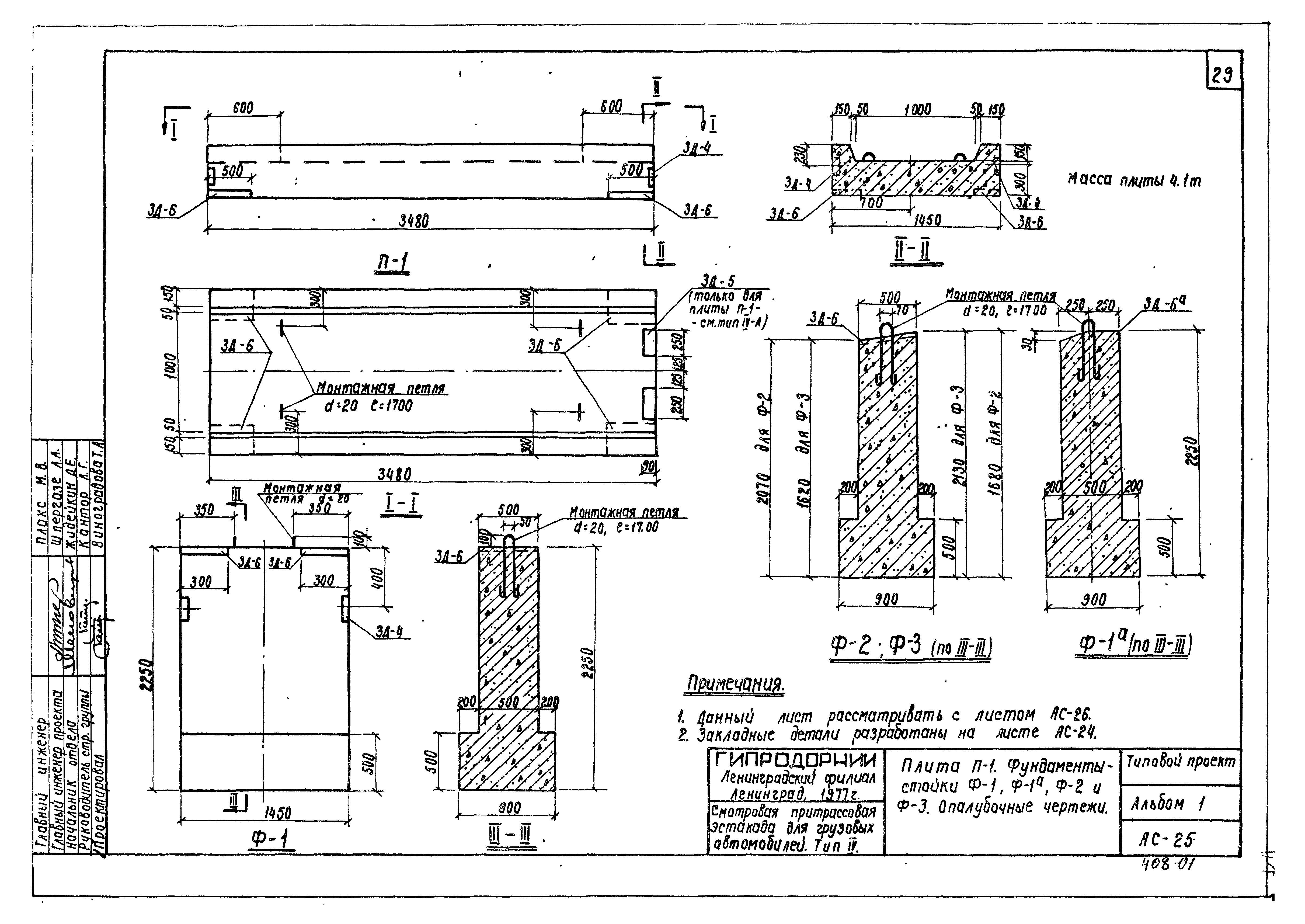
Тип IV. Плита П-1. Фундаменты-стойки Ф-1, Ф-19, Ф-2 и Ф-3. Опалубочные чертежи
Тип IV. Плита П-1. Фундаменты-стойки Ф-1, Ф-2, Ф-3. Армирование
Тип IV. Плита П-1. Фундаменты-стойки Ф-1, Ф-2. Армирование. Спецификации. Монтажная петля
Тип IV. План фундаментов. Разрез 1-1. Фундамент МФ-1
Тип IV. Узлы "А", "Б" и "В"
Тип IV. Общая спецификация на эстакаду
Тип IV-А. План. Разрез 1-1. Схема блокировки
Тип IV-А. Спецификации
Разработан: Гипродорнии
Утверждён:29.12.1975 Минавтодор РСФСР (Russian Federation Minavtodor 43)
Расположен в:Техническая документация Строительство Справочные документы Типовые строительные конструкции, изделия и узлы Общероссийский строительный каталог Сельскохозяйственные предприятия, здания и сооружения Предприятия, здания и сооружения по ремонту, техническому обслуживанию, хранению и обеспечению горюче-смазочными материалами сельхозтехники Пропускные пункты, мойки, эстакады, площадки
Типовой проект 503-279Типовой проект 503-279Типовой проект 503-279Типовой проект 503-279Типовой проект 503-279Типовой проект 503-279Типовой проект 503-279Типовой проект 503-279Типовой проект 503-279Типовой проект 503-279Типовой проект 503-279Типовой проект 503-279Типовой проект 503-279Типовой проект 503-279Типовой проект 503-279Типовой проект 503-279Типовой проект 503-279Типовой проект 503-279Типовой проект 503-279Типовой проект 503-279Типовой проект 503-279Типовой проект 503-279Типовой проект 503-279Типовой проект 503-279Типовой проект 503-279Типовой проект 503-279Типовой проект 503-279Типовой проект 503-279Типовой проект 503-279Типовой проект 503-279Типовой проект 503-279Типовой проект 503-279Типовой проект 503-279Типовой проект 503-279Типовой проект 503-279Типовой проект 503-279Типовой проект 503-279

© 2013 Ёшкин Кот :-) Карта сайта