Информационная система
«Ёшкин Кот»

Скачать базу одним архивом
Скачать обновления
История создания базы
Карта сайта

Скачать Типовой проект 411-2-184.87 Альбом 1. Общая пояснительная записка. Технологическая часть. Архитектурно-строительные решения. Конструкции железобетонные. Внутренние водопровод и канализация. Отопление и вентиляция

Дата актуализации: 10.08.2017

Типовой проект 411-2-184.87

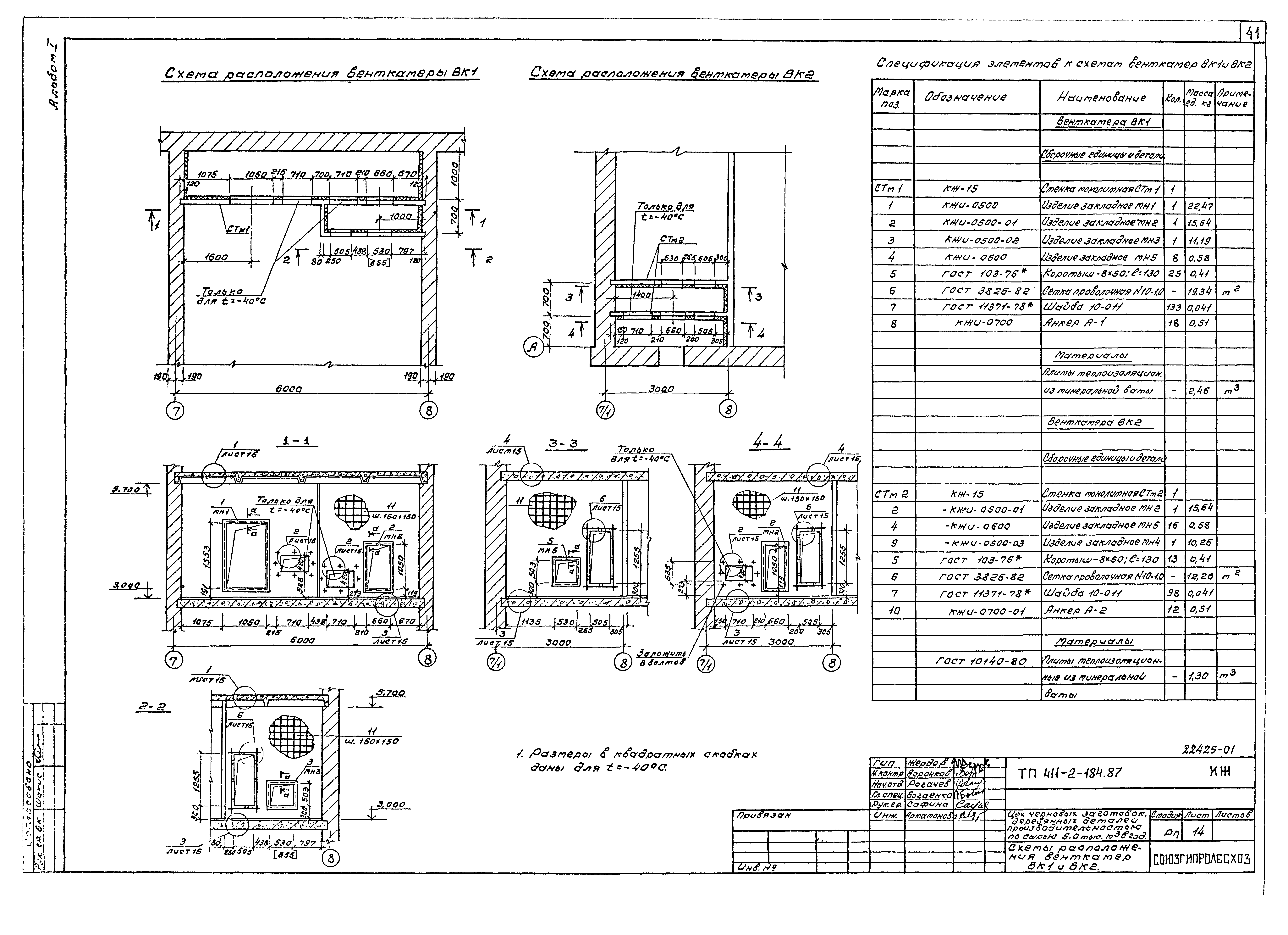
Альбом 1. Общая пояснительная записка. Технологическая часть. Архитектурно-строительные решения. Конструкции железобетонные. Внутренние водопровод и канализация. Отопление и вентиляция

Обозначение: Типовой проект 411-2-184.87
Обозначение англ: 411-2-184.87
Статус:не определен законодательством
Название рус.:Альбом 1. Общая пояснительная записка. Технологическая часть. Архитектурно-строительные решения. Конструкции железобетонные. Внутренние водопровод и канализация. Отопление и вентиляция
Дата добавления в базу:01.02.2017
Дата актуализации:05.05.2017
Дата введения:17.12.1987
Разработан: Союзгипролесхоз
Утверждён:28.04.1987 Гослесхоз СССР (USSR Gosleskhoz 8)
Издан: ЦИТП Госстроя СССР (CITP, Gosstroy (USSR) 1989 г. )
Расположен в:Техническая документация Строительство Справочные документы Типовые строительные конструкции, изделия и узлы Общероссийский строительный каталог Промышленные предприятия, здания и сооружения Предприятия, здания и сооружения промышленности и электроэнергетики Промышленность деревообрабатывающая Здания общего назначения
Типовой проект 411-2-184.87Типовой проект 411-2-184.87Типовой проект 411-2-184.87Типовой проект 411-2-184.87Типовой проект 411-2-184.87Типовой проект 411-2-184.87Типовой проект 411-2-184.87Типовой проект 411-2-184.87Типовой проект 411-2-184.87Типовой проект 411-2-184.87Типовой проект 411-2-184.87Типовой проект 411-2-184.87Типовой проект 411-2-184.87Типовой проект 411-2-184.87Типовой проект 411-2-184.87Типовой проект 411-2-184.87Типовой проект 411-2-184.87Типовой проект 411-2-184.87Типовой проект 411-2-184.87Типовой проект 411-2-184.87Типовой проект 411-2-184.87Типовой проект 411-2-184.87Типовой проект 411-2-184.87Типовой проект 411-2-184.87Типовой проект 411-2-184.87Типовой проект 411-2-184.87Типовой проект 411-2-184.87Типовой проект 411-2-184.87Типовой проект 411-2-184.87Типовой проект 411-2-184.87Типовой проект 411-2-184.87Типовой проект 411-2-184.87Типовой проект 411-2-184.87Типовой проект 411-2-184.87Типовой проект 411-2-184.87Типовой проект 411-2-184.87Типовой проект 411-2-184.87Типовой проект 411-2-184.87Типовой проект 411-2-184.87Типовой проект 411-2-184.87Типовой проект 411-2-184.87Типовой проект 411-2-184.87Типовой проект 411-2-184.87Типовой проект 411-2-184.87Типовой проект 411-2-184.87Типовой проект 411-2-184.87Типовой проект 411-2-184.87Типовой проект 411-2-184.87Типовой проект 411-2-184.87Типовой проект 411-2-184.87Типовой проект 411-2-184.87Типовой проект 411-2-184.87Типовой проект 411-2-184.87Типовой проект 411-2-184.87Типовой проект 411-2-184.87Типовой проект 411-2-184.87Типовой проект 411-2-184.87Типовой проект 411-2-184.87Типовой проект 411-2-184.87Типовой проект 411-2-184.87Типовой проект 411-2-184.87Типовой проект 411-2-184.87Типовой проект 411-2-184.87Типовой проект 411-2-184.87Типовой проект 411-2-184.87Типовой проект 411-2-184.87Типовой проект 411-2-184.87Типовой проект 411-2-184.87Типовой проект 411-2-184.87Типовой проект 411-2-184.87

© 2013 Ёшкин Кот :-) Карта сайта