Информационная система
«Ёшкин Кот»

Скачать базу одним архивом
Скачать обновления
История создания базы
Карта сайта

Скачать Типовой проект 411-2-183.87 Альбом III. Внутренние водопровод и канализация. Отопление и вентиляция. Электротехническая часть. Связь и сигнализация. Автоматизация сантехсистем

Дата актуализации: 10.08.2017

Типовой проект 411-2-183.87

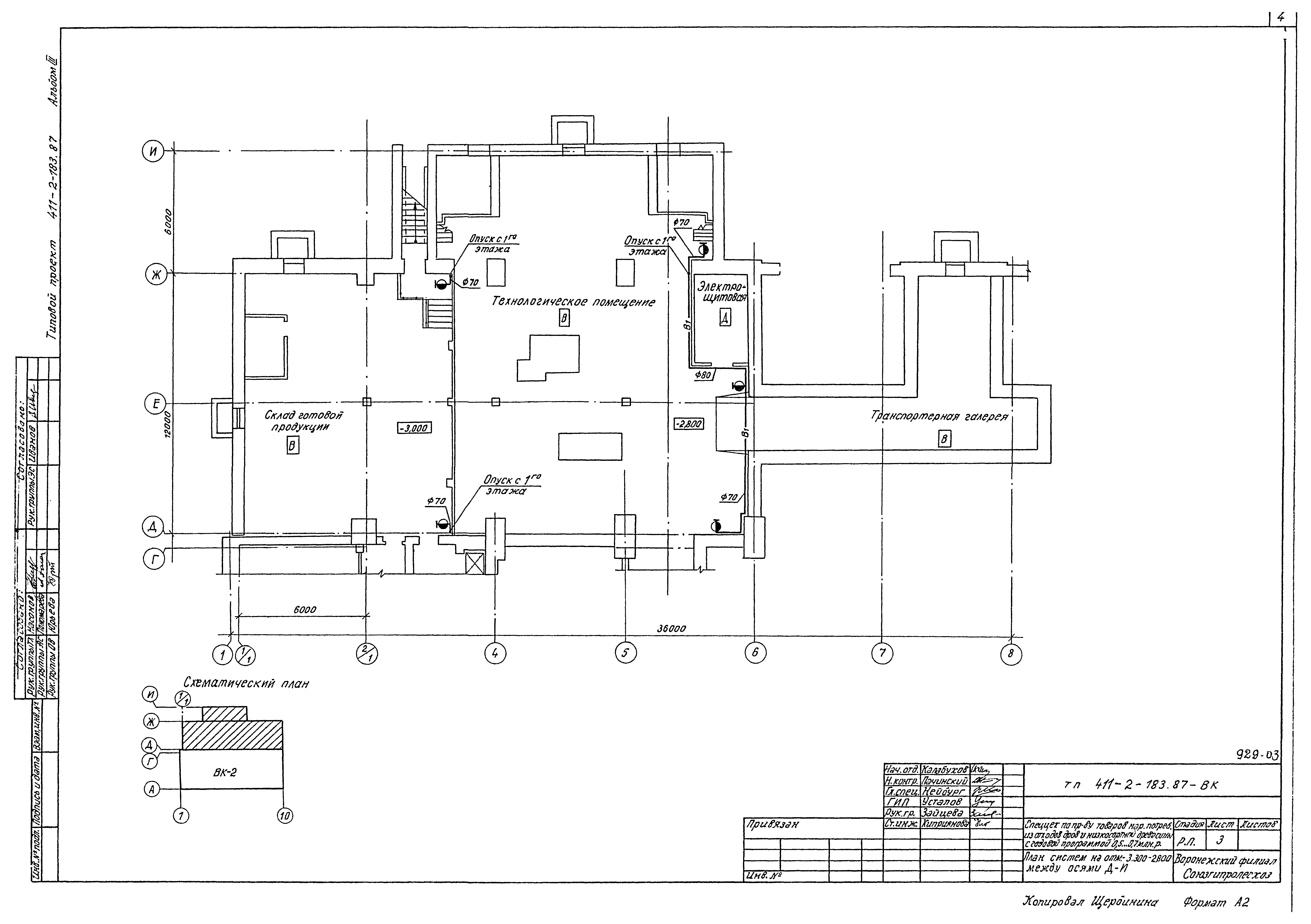
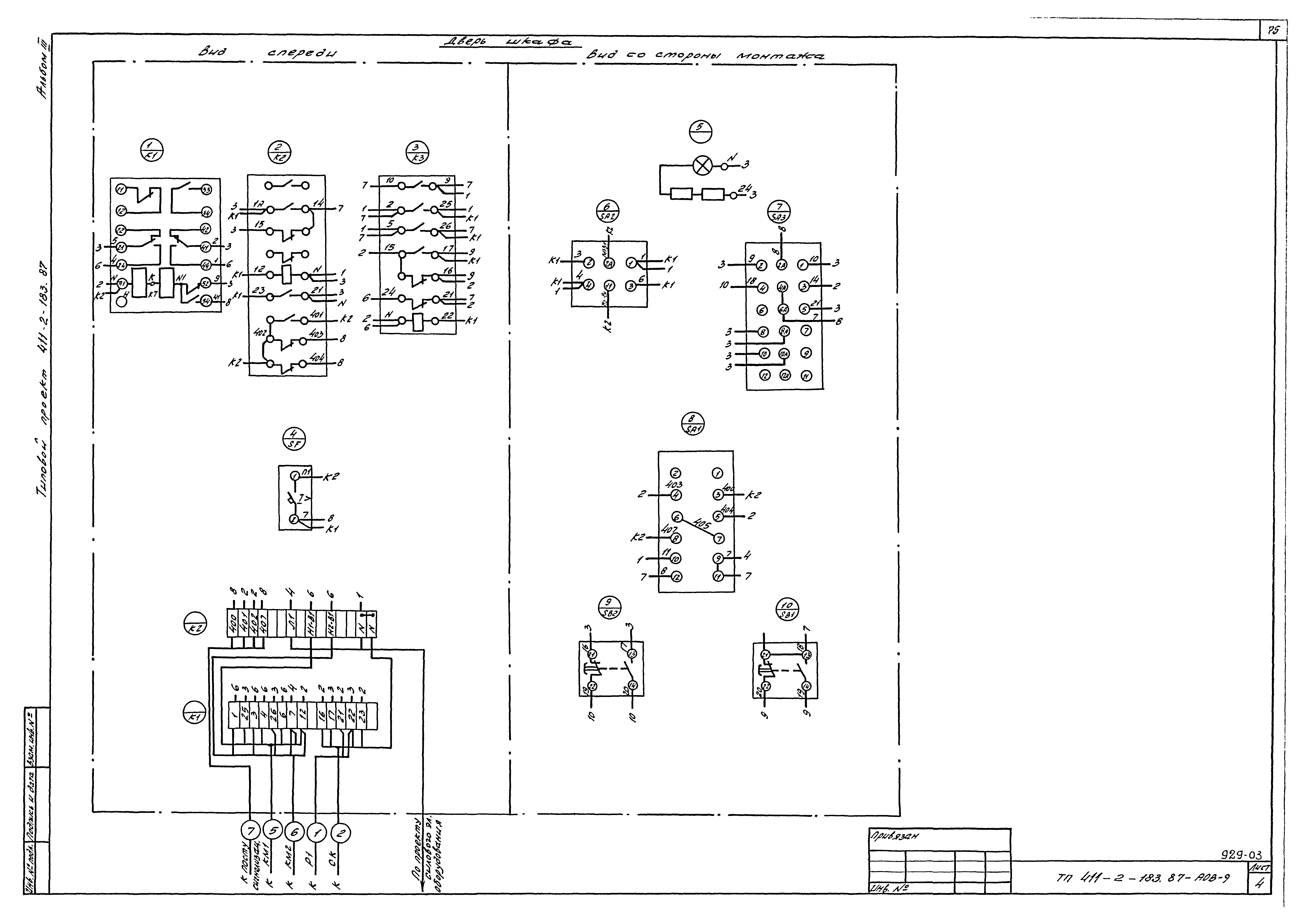
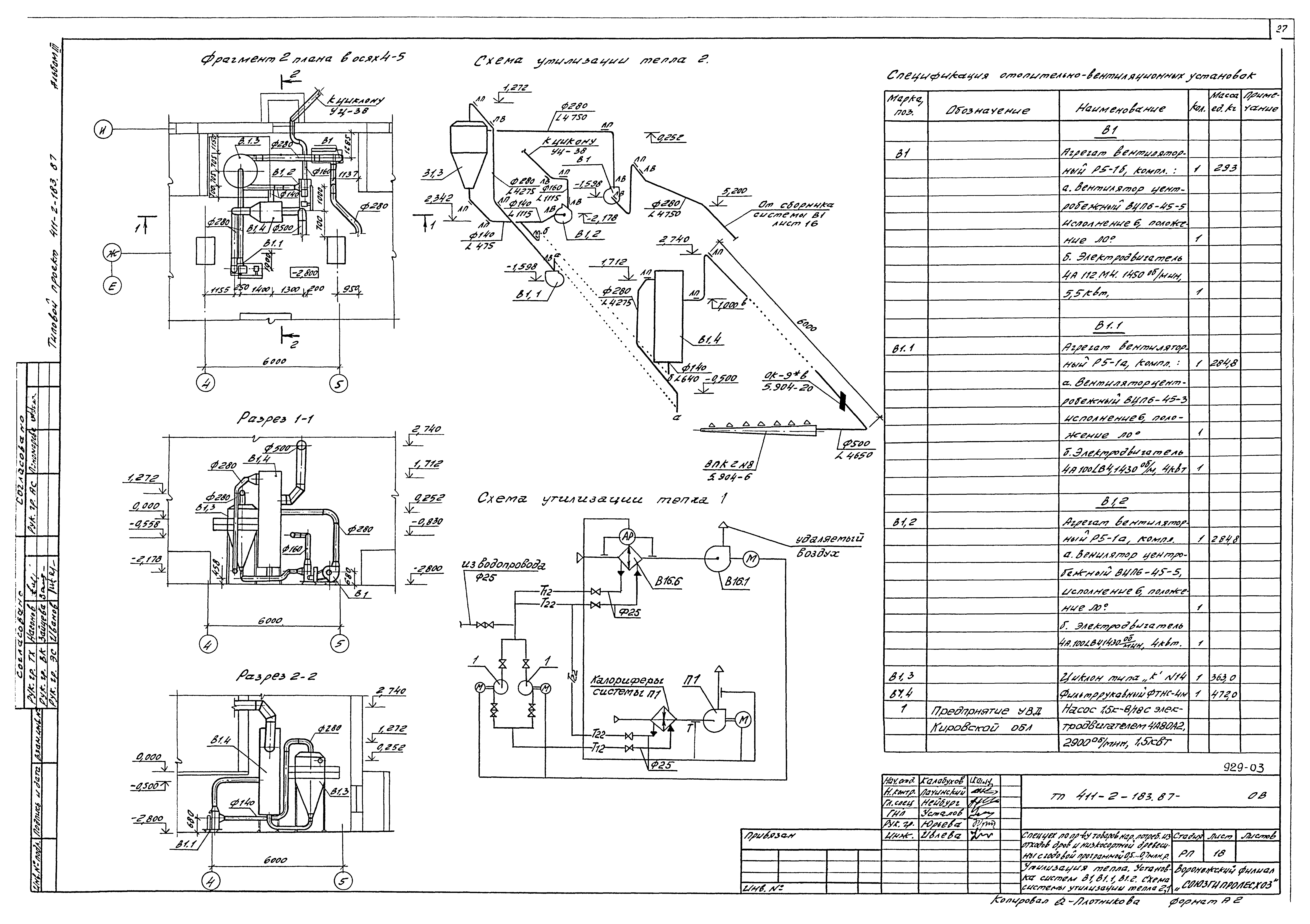
Альбом III. Внутренние водопровод и канализация. Отопление и вентиляция. Электротехническая часть. Связь и сигнализация. Автоматизация сантехсистем

Обозначение: Типовой проект 411-2-183.87
Обозначение англ: 411-2-183.87
Статус:не определен законодательством
Название рус.:Альбом III. Внутренние водопровод и канализация. Отопление и вентиляция. Электротехническая часть. Связь и сигнализация. Автоматизация сантехсистем
Дата добавления в базу:01.02.2017
Дата актуализации:05.05.2017
Дата введения:15.05.1987
Разработан: Союзгипролесхоз
Утверждён:15.05.1987 Гослесхоз СССР (USSR Gosleskhoz 11)
Издан: ЦИТП Госстроя СССР (CITP, Gosstroy (USSR) 1988 г. )
Расположен в:Техническая документация Строительство Справочные документы Типовые строительные конструкции, изделия и узлы Общероссийский строительный каталог Промышленные предприятия, здания и сооружения Предприятия, здания и сооружения промышленности и электроэнергетики Промышленность деревообрабатывающая Здания общего назначения
Заменяет собой:
  • Типовой проект 411-2-142
Типовой проект 411-2-183.87Типовой проект 411-2-183.87Типовой проект 411-2-183.87Типовой проект 411-2-183.87Типовой проект 411-2-183.87Типовой проект 411-2-183.87Типовой проект 411-2-183.87Типовой проект 411-2-183.87Типовой проект 411-2-183.87Типовой проект 411-2-183.87Типовой проект 411-2-183.87Типовой проект 411-2-183.87Типовой проект 411-2-183.87Типовой проект 411-2-183.87Типовой проект 411-2-183.87Типовой проект 411-2-183.87Типовой проект 411-2-183.87Типовой проект 411-2-183.87Типовой проект 411-2-183.87Типовой проект 411-2-183.87Типовой проект 411-2-183.87Типовой проект 411-2-183.87Типовой проект 411-2-183.87Типовой проект 411-2-183.87Типовой проект 411-2-183.87Типовой проект 411-2-183.87Типовой проект 411-2-183.87Типовой проект 411-2-183.87Типовой проект 411-2-183.87Типовой проект 411-2-183.87Типовой проект 411-2-183.87Типовой проект 411-2-183.87Типовой проект 411-2-183.87Типовой проект 411-2-183.87Типовой проект 411-2-183.87Типовой проект 411-2-183.87Типовой проект 411-2-183.87Типовой проект 411-2-183.87Типовой проект 411-2-183.87Типовой проект 411-2-183.87Типовой проект 411-2-183.87Типовой проект 411-2-183.87Типовой проект 411-2-183.87Типовой проект 411-2-183.87Типовой проект 411-2-183.87Типовой проект 411-2-183.87Типовой проект 411-2-183.87Типовой проект 411-2-183.87Типовой проект 411-2-183.87Типовой проект 411-2-183.87Типовой проект 411-2-183.87Типовой проект 411-2-183.87Типовой проект 411-2-183.87Типовой проект 411-2-183.87Типовой проект 411-2-183.87Типовой проект 411-2-183.87Типовой проект 411-2-183.87Типовой проект 411-2-183.87Типовой проект 411-2-183.87Типовой проект 411-2-183.87Типовой проект 411-2-183.87Типовой проект 411-2-183.87Типовой проект 411-2-183.87Типовой проект 411-2-183.87Типовой проект 411-2-183.87Типовой проект 411-2-183.87Типовой проект 411-2-183.87Типовой проект 411-2-183.87Типовой проект 411-2-183.87Типовой проект 411-2-183.87Типовой проект 411-2-183.87Типовой проект 411-2-183.87Типовой проект 411-2-183.87Типовой проект 411-2-183.87Типовой проект 411-2-183.87Типовой проект 411-2-183.87Типовой проект 411-2-183.87Типовой проект 411-2-183.87Типовой проект 411-2-183.87Типовой проект 411-2-183.87Типовой проект 411-2-183.87Типовой проект 411-2-183.87Типовой проект 411-2-183.87Типовой проект 411-2-183.87Типовой проект 411-2-183.87Типовой проект 411-2-183.87Типовой проект 411-2-183.87Типовой проект 411-2-183.87Типовой проект 411-2-183.87Типовой проект 411-2-183.87Типовой проект 411-2-183.87Типовой проект 411-2-183.87Типовой проект 411-2-183.87Типовой проект 411-2-183.87Типовой проект 411-2-183.87Типовой проект 411-2-183.87Типовой проект 411-2-183.87Типовой проект 411-2-183.87Типовой проект 411-2-183.87Типовой проект 411-2-183.87

© 2013 Ёшкин Кот :-) Карта сайта