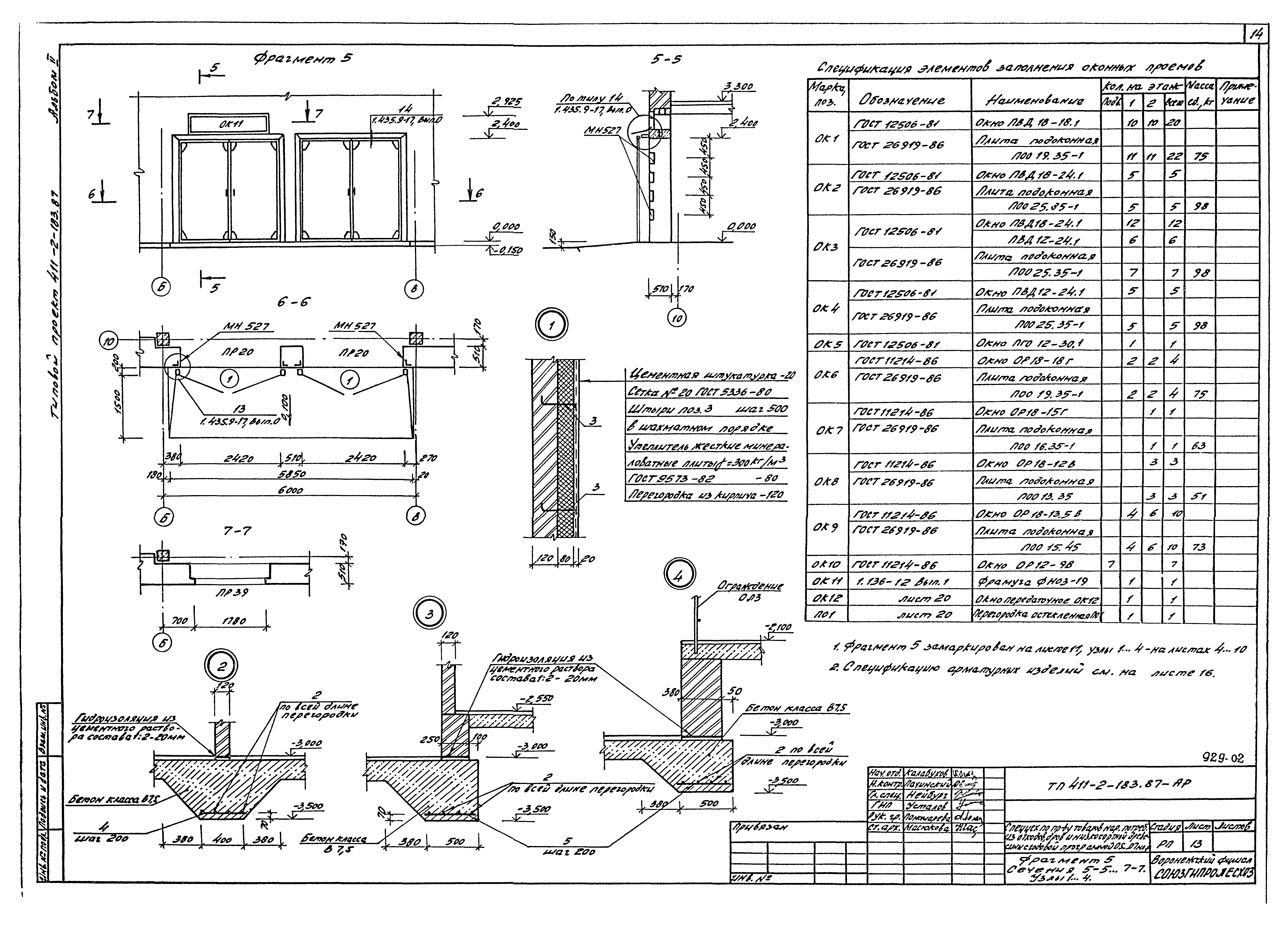
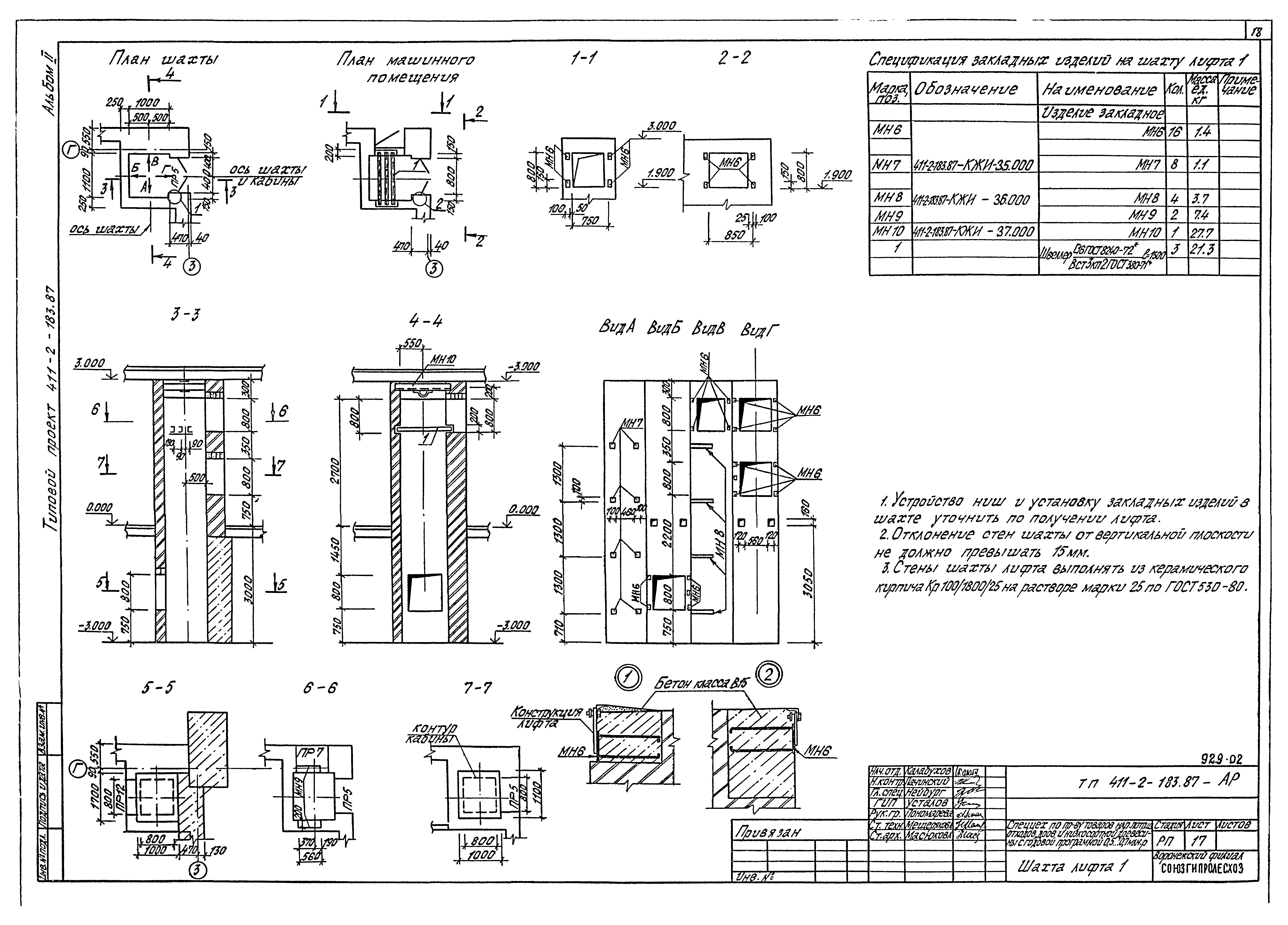
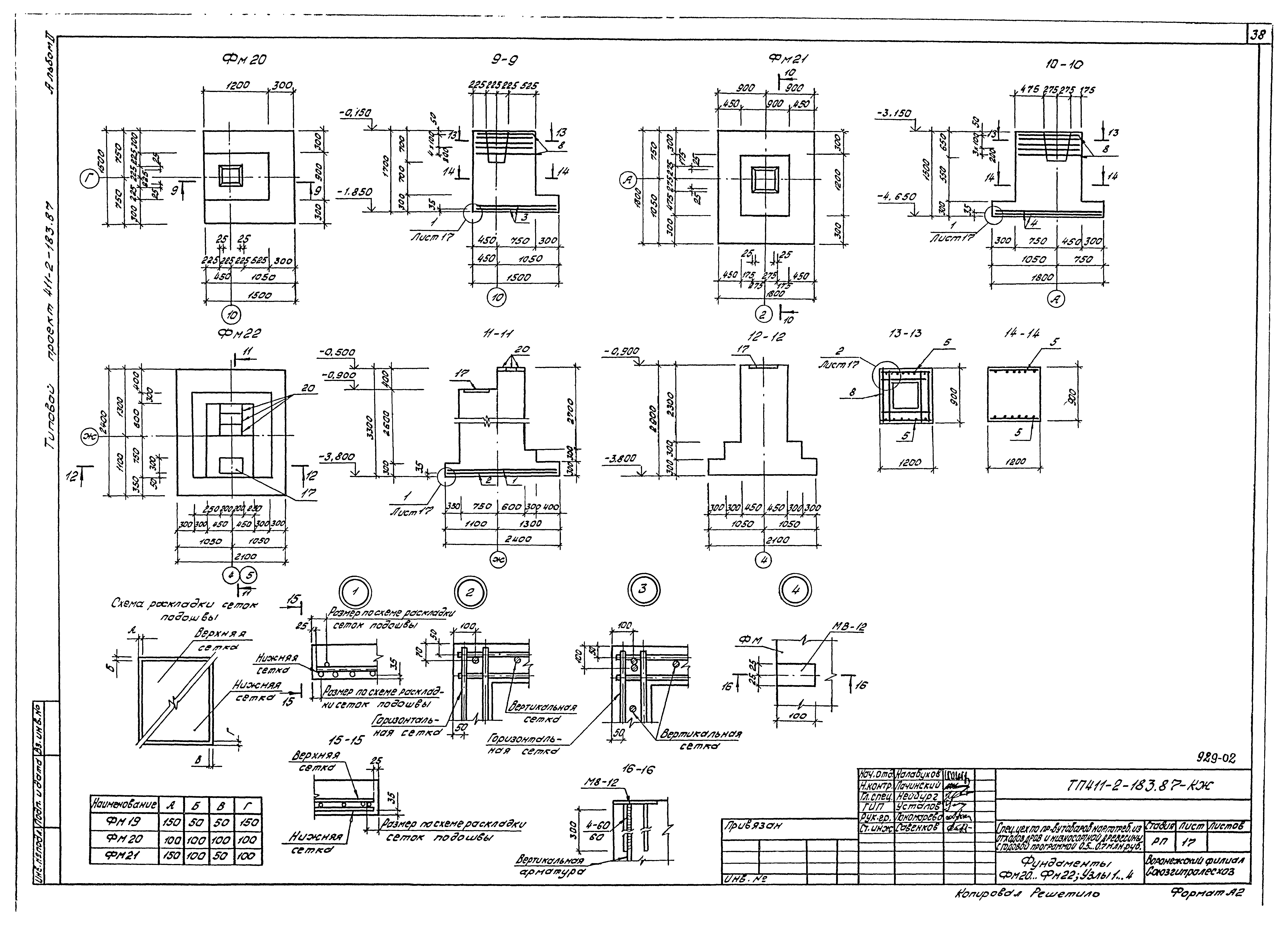
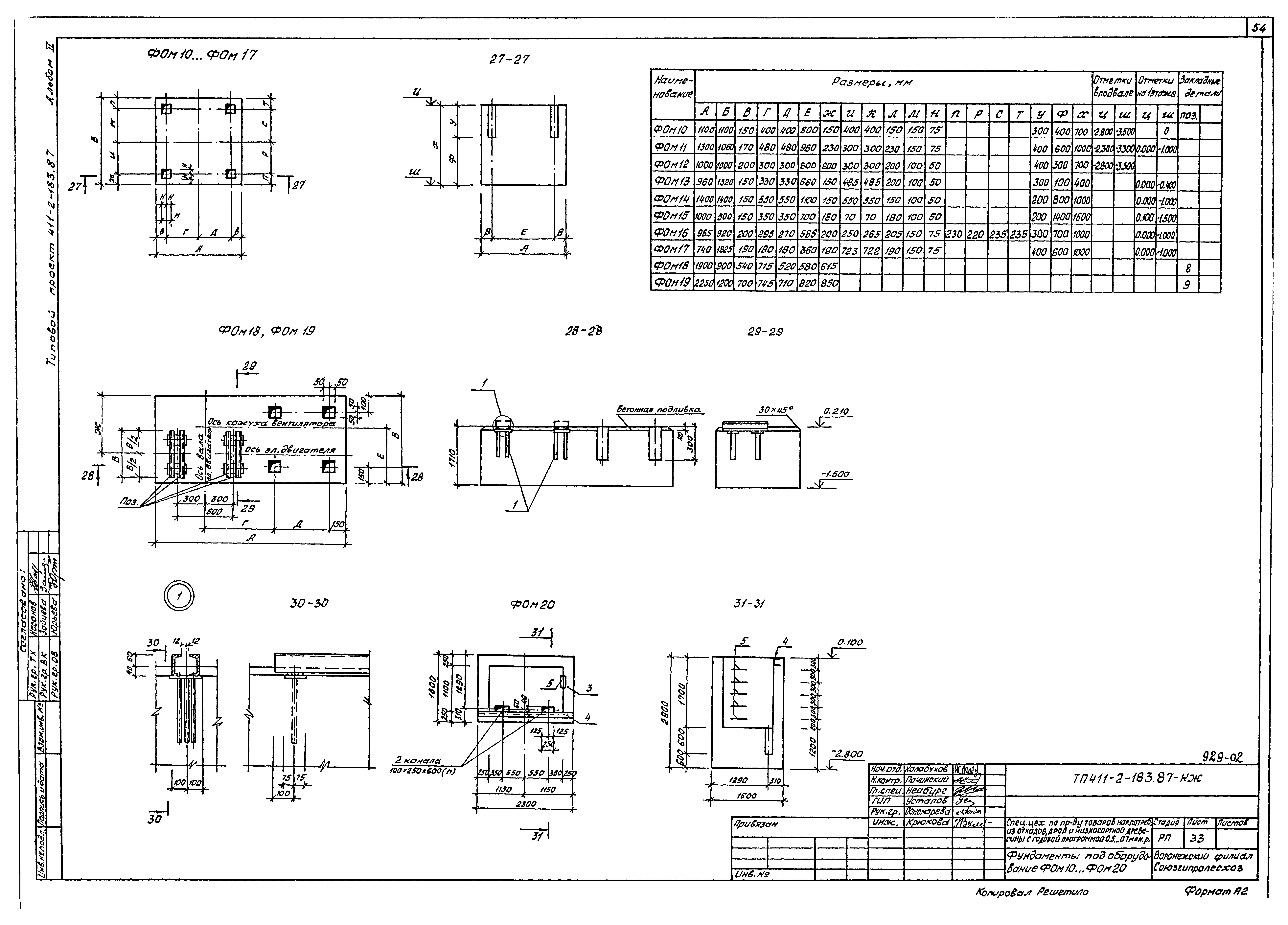
Скачать Типовой проект 411-2-183.87 Альбом II. Архитектурно-строительные решения. Конструкции железобетонные, металлические и деревянныеДата актуализации: 10.08.2017 Типовой проект 411-2-183.87
Альбом II. Архитектурно-строительные решения. Конструкции железобетонные, металлические и деревянныеОбозначение: | Типовой проект 411-2-183.87 | Обозначение англ: | 411-2-183.87 | Статус: | не определен законодательством | Название рус.: | Альбом II. Архитектурно-строительные решения. Конструкции железобетонные, металлические и деревянные | Дата добавления в базу: | 01.02.2017 | Дата актуализации: | 05.05.2017 | Дата введения: | 15.05.1987 | Разработан: | Союзгипролесхоз
| Утверждён: | 15.05.1987 Гослесхоз СССР (USSR Gosleskhoz 11)
| Издан: | ЦИТП Госстроя СССР (CITP, Gosstroy (USSR) 1989 г. )
| Расположен в: |
| Заменяет собой: | |
                                                                                           
|