Информационная система
«Ёшкин Кот»

Скачать базу одним архивом
Скачать обновления
История создания базы
Карта сайта

Скачать Типовой проект 409-23-54.87 Альбом 6. Силовое электрооборудование. Электрические подстанции. Внутреннее электрическое освещение. Связь и сигнализация

Дата актуализации: 10.08.2017

Типовой проект 409-23-54.87

Альбом 6. Силовое электрооборудование. Электрические подстанции. Внутреннее электрическое освещение. Связь и сигнализация

Обозначение: Типовой проект 409-23-54.87
Обозначение англ: 409-23-54.87
Статус:не определен законодательством
Название рус.:Альбом 6. Силовое электрооборудование. Электрические подстанции. Внутреннее электрическое освещение. Связь и сигнализация
Дата добавления в базу:01.10.2014
Дата актуализации:05.05.2017
Дата введения:22.10.1987
Оглавление:Комплектная трансформаторная подстанция 6-10/0,4-0,69 кВ
   Общие данные
   Таблица расчета электрических нагрузок в сети трехфазного тока
   Принципиальная однолинейная схема коммутации
   План расположения КТП. Разрез 1-1
   План раскладки электрических сетей и сетей заземления
   Кабельный журнал
   Опросный лист для заказа комплектной трансформаторной подстанции типа КТП-1000-6(10)/0,4 кВ - 84.43
Силовое электрооборудование
   Общие данные
   Схема технологического потока с расстановкой средств автоматизации
   Таблица приводов
   Щиты 4ЩСУ, 5ЩСУ1, 5ЩСУ2. Таблица электрических нагрузок в сети трехфазного тока
   Щит 4ЩСУ. Принципиальная однолинейная схема
   Щит 5ЩСУ-1. Принципиальная однолинейная схема
   Щит 5ЩСУ-2. Принципиальная однолинейная схема
   Распределительный шкаф лаборатории ЩЛ. Принципиальная однолинейная схема
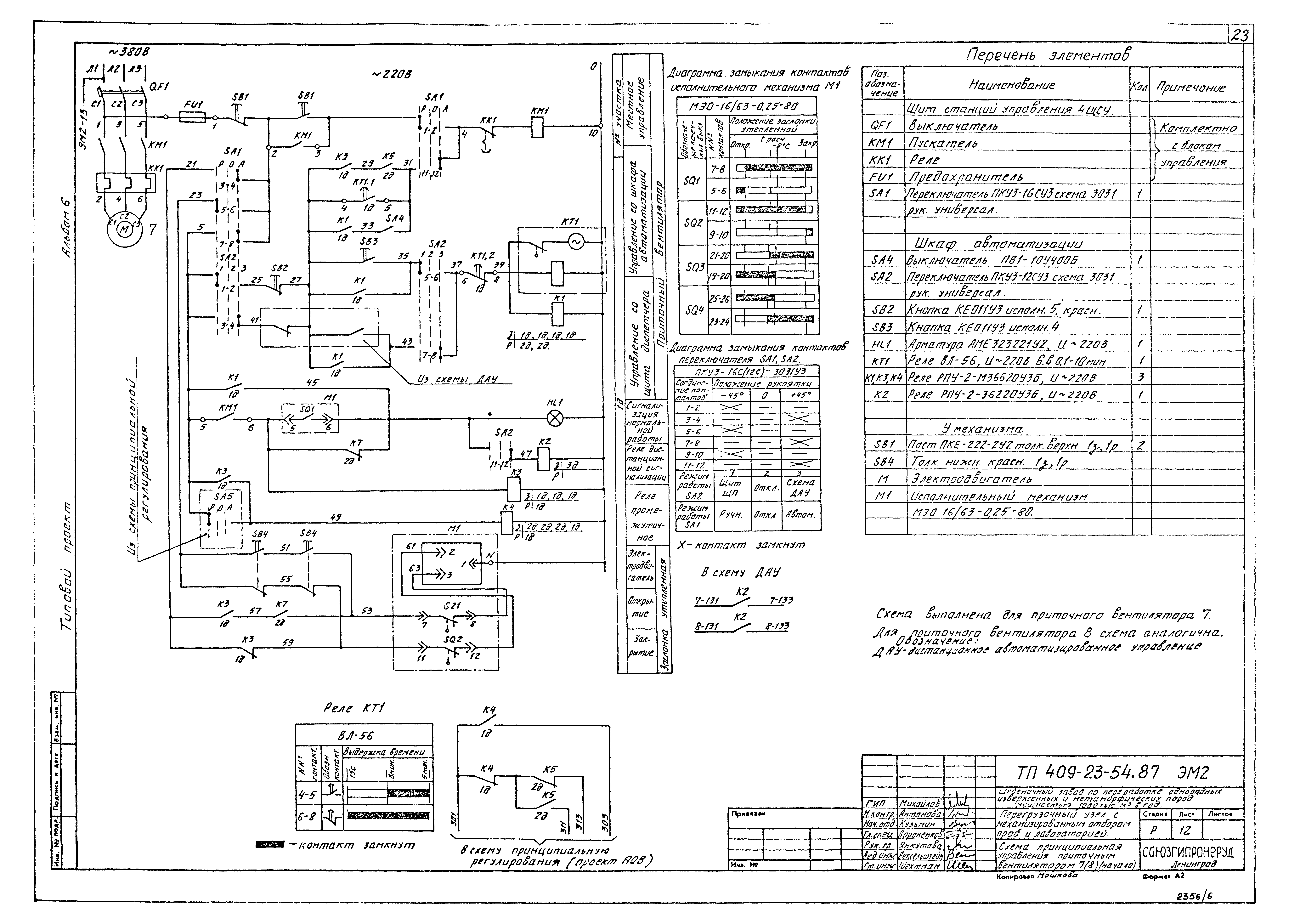
   Схема принципиальная управления приточным вентилятором 7(8)
   Схема принципиальная управления приточным вентилятором 9
   Схема принципиальная управления насосами № 9, № 10
   Схема принципиальная управления вентилем ВВ5
   Схема принципиальная управления механизмами 10, 110
   Схема выходных реле механизмов А9, А10, К7, К8, К9, Щ8, Щ9
   Схема весового контроля
   Схема принципиальная управления механизмами К7, К8, К9
   Схема принципиальная управления механизмами А9, А10, Щ8, Щ9
   Схема принципиальная управления механизмами В20 - В23
   Схема принципиальная управления конденсаторной установки 4КУ
   Механизмы погрузки. Схема выходных реле механизмов К15, Щ15, А1
   Механизмы погрузки. Схема выходных реле механизмов К14, Щ14, А2
   Механизмы погрузки. Схема принципиальная управления механизмами К14, К15
   Механизмы погрузки. Схема принципиальная управления механизмами В7, В11 - В13
   Механизмы погрузки. Схема принципиальная управления механизмами Щ1(Щ2)
   Механизмы погрузки. Схема принципиальная управления механизмами А1, А2, Щ14, Щ15
   Механизм погрузки. Схема принципиальная управления конденсаторной установкой 5КУ-1, 5КУ-2
   Щит 4ЩСУ. Панель 2, 3. Ящик Я-10QS. Схема подключения
   Щит 4ЩСУ. Панели 4, 5. Схема подключения
   Щит 4ЩСУ, коробки К7-СК1…К9-СК1, ЛТ МСК. Схема подключения
   Коробки соединительные К7-СК, К9-СК. Схема подключения
   Шкаф пробоотборника ПО1ЩП (ПО2ЩП, ПО3ЩП). Схема подключения
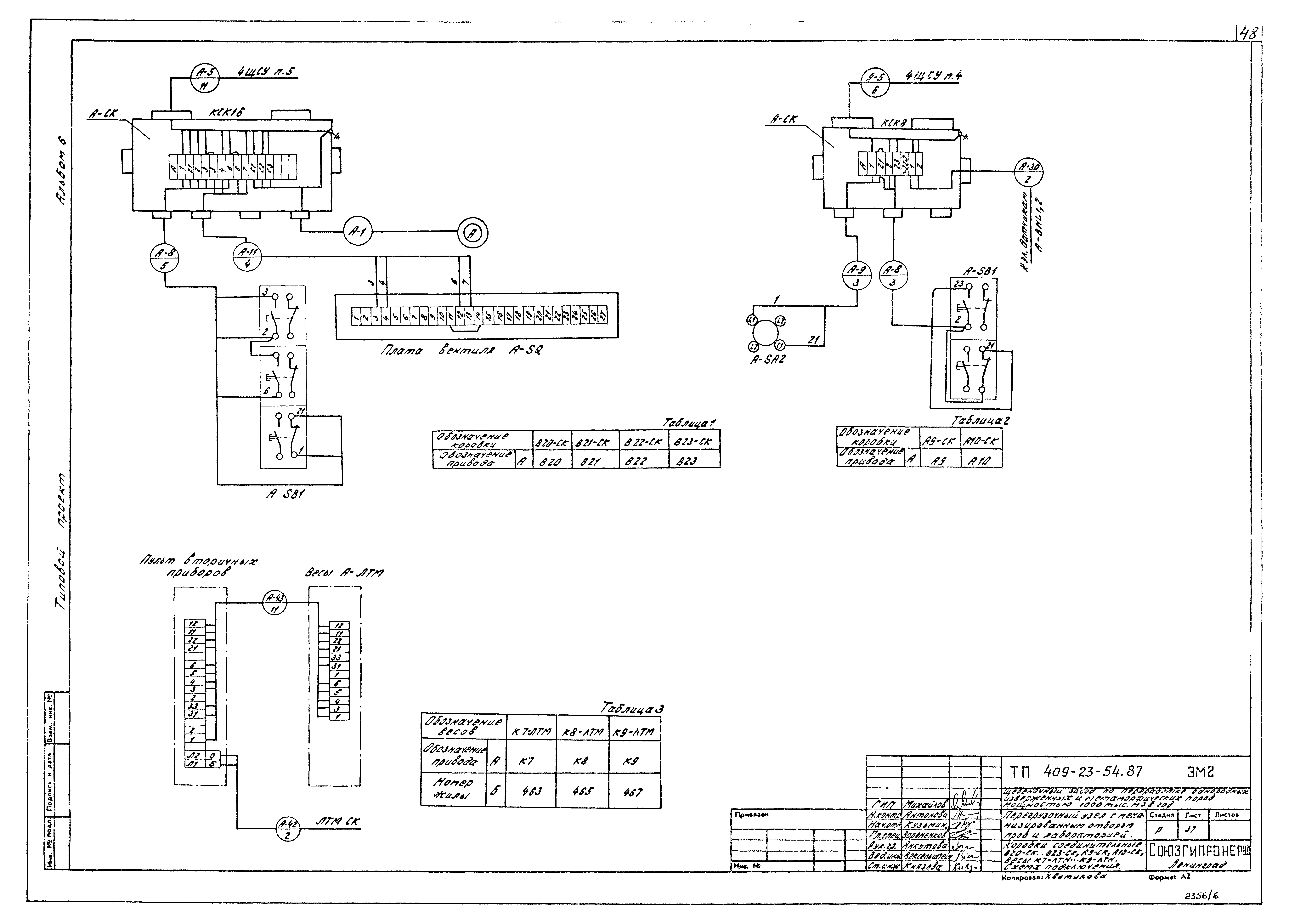
   Коробки соединительные В20-СК…В23-СК, А9-СК, А10-СК, весы К7-ЛТМ…К9-ЛТМ. Схема подключения
   Шкафы 7ЩА…9ЩА, Н9-ПМ. Коробки 7СК1…9-СК1. Схема подключения
   Щит 5ЩСУ1. Панели 1 - 3. Схема подключения
   Щит 5ЩСУ2. Панели 1 - 3. Схема подключения
   Щит 5РЩ1, коробка К15-СК1. Схема подключения
   Щит 5РЩ2, коробка К14-СК1. Схема подключения
   Коробки соединительные К14-СК, К15-СК. Схема подключения
   Коробки соединительные А2-СК, В7-СК, В11-СК…В13-СК, Щ1-СК, Щ2-СК. Схема подключения
   Кабельный журнал
   План расположения электрооборудования и прокладки электрических сетей в ПСУ на отм. 5.600
   План расположения электрооборудования и прокладки электрических сетей в ПСУ на отм. 10.400
   План расположения электрооборудования и прокладки электрических сетей на отм. 0.000
   План расположения электрооборудования и прокладки электрических сетей на отм. 4.800
   План расположения электрооборудования и прокладки электрических сетей на отм. 9.600
   План расположения электрооборудования и прокладки электрических сетей на отм. 14.400
   План расположения электрооборудования и прокладки электрических сетей по лаборатории
   План расположения электрооборудования и прокладки электрических сетей приточных систем 7, 9
   План расположения электрооборудования и прокладки электрических сетей приточной системы 8
   Расстановка электрооборудования на конвейерах К7, К8, К9
   Расстановка электрооборудования на конвейерах К14, К15
   План прокладки электрических сетей к ящикам QS1 - QS9 на отм. 0.000; 4.800; 9.600; 14.400
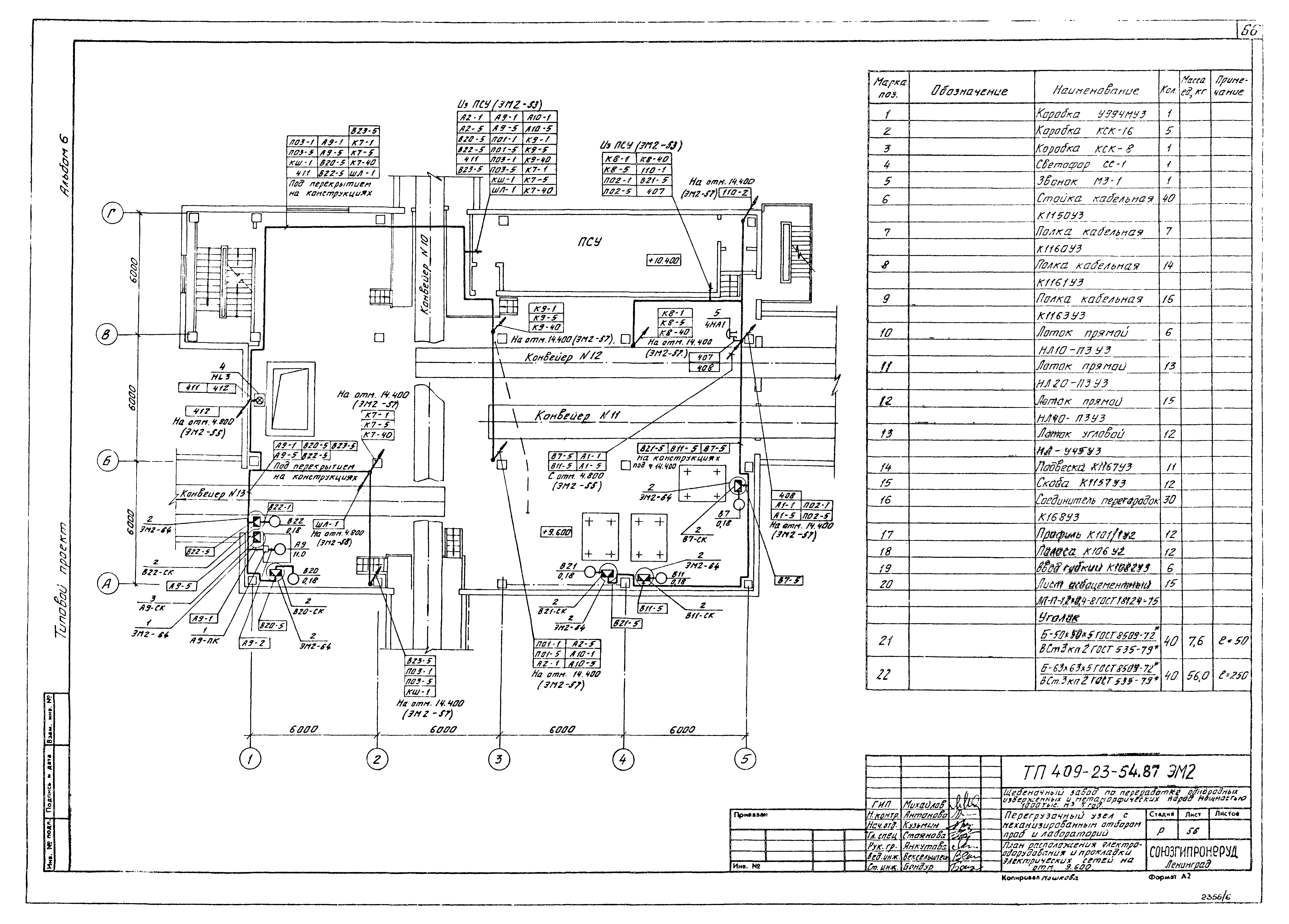
   План расположения электрооборудования и прокладки электрических сетей. Узлы 2 - 4
   Блок трубный для прохода кабелей через стены
   План сетей зануления на отм. 4.800; 9.600; 14.400. Питание подвесного крана
   Ведомость электромонтажных конструкций и деталей, подлежащих изготовлению в МЭЗ
   Ведомость изделий и материалов для изготовления электромонтажных конструкций и деталей в МЭЗ
   Эскизный чертеж общего вида 4ЩСУ
   Эскизный чертеж общего вида 4РЩ
   Эскизный чертеж общего вида 5ЩСУ1
   Эскизный чертеж общего вида 5РЩ1
   Эскизный чертеж общего вида 5ЩСУ2
   Эскизный чертеж общего вида 5РЩ2
   Эскизный чертеж общего вида шкафа 7ША (8ША, 9ША)
   Эскизный чертеж общего вида поста Н9ПМ
   Ведомость объемов строительных и монтажных работ
Электрическое освещение
   Общие данные
   Принципиальная схема питающей сети
   План расположения электрического оборудования и прокладки электрических сетей на отм. 0.000
   План расположения электрического оборудования и прокладки электрических сетей на отм. 4.800
   План расположения электрического оборудования и прокладки электрических сетей на отм. 9.600
   Планы расположения электрического оборудования и прокладки электрических сетей на отм. 14.400 и 17.400
   Конструкция для установки светильников на ж/б ферме
   Ведомость конструкций и деталей, подлежащих изготовлению в МЭЗ
   Ведомость изделий и материалов для изготовления конструкций и деталей в МЭЗ
   Ведомость объемов монтажных и строительных работ
Связь и сигнализация
   Общие данные
   Схема телефонной связи и радиотрансляционной сети
   План расположения слаботочных сетей на отм. 0.000
   План расположения слаботочных сетей на отм. 4.800; 9.600
   План расположения слаботочных сетей на отм. 14.400
Разработан: Союзгипронеруд
Утверждён:19.07.1987 Минстройматериалов СССР (USSR Minstroymaterialov 28-15481)
Расположен в:Техническая документация Строительство Справочные документы Типовые строительные конструкции, изделия и узлы Общероссийский строительный каталог Промышленные предприятия, здания и сооружения Предприятия, здания и сооружения промышленности и электроэнергетики Строительная индустрия и промышленность строительных материалов Производство строительных материалов и изделий Производство тяжелых заполнителей
Заменяет собой:
  • Типовой проект 409-23-46
Типовой проект 409-23-54.87Типовой проект 409-23-54.87Типовой проект 409-23-54.87Типовой проект 409-23-54.87Типовой проект 409-23-54.87Типовой проект 409-23-54.87Типовой проект 409-23-54.87Типовой проект 409-23-54.87Типовой проект 409-23-54.87Типовой проект 409-23-54.87Типовой проект 409-23-54.87Типовой проект 409-23-54.87Типовой проект 409-23-54.87Типовой проект 409-23-54.87Типовой проект 409-23-54.87Типовой проект 409-23-54.87Типовой проект 409-23-54.87Типовой проект 409-23-54.87Типовой проект 409-23-54.87Типовой проект 409-23-54.87Типовой проект 409-23-54.87Типовой проект 409-23-54.87Типовой проект 409-23-54.87Типовой проект 409-23-54.87Типовой проект 409-23-54.87Типовой проект 409-23-54.87Типовой проект 409-23-54.87Типовой проект 409-23-54.87Типовой проект 409-23-54.87Типовой проект 409-23-54.87Типовой проект 409-23-54.87Типовой проект 409-23-54.87Типовой проект 409-23-54.87Типовой проект 409-23-54.87Типовой проект 409-23-54.87Типовой проект 409-23-54.87Типовой проект 409-23-54.87Типовой проект 409-23-54.87Типовой проект 409-23-54.87Типовой проект 409-23-54.87Типовой проект 409-23-54.87Типовой проект 409-23-54.87Типовой проект 409-23-54.87Типовой проект 409-23-54.87Типовой проект 409-23-54.87Типовой проект 409-23-54.87Типовой проект 409-23-54.87Типовой проект 409-23-54.87Типовой проект 409-23-54.87Типовой проект 409-23-54.87Типовой проект 409-23-54.87Типовой проект 409-23-54.87Типовой проект 409-23-54.87Типовой проект 409-23-54.87Типовой проект 409-23-54.87Типовой проект 409-23-54.87Типовой проект 409-23-54.87Типовой проект 409-23-54.87Типовой проект 409-23-54.87Типовой проект 409-23-54.87Типовой проект 409-23-54.87Типовой проект 409-23-54.87Типовой проект 409-23-54.87Типовой проект 409-23-54.87Типовой проект 409-23-54.87Типовой проект 409-23-54.87Типовой проект 409-23-54.87Типовой проект 409-23-54.87Типовой проект 409-23-54.87Типовой проект 409-23-54.87Типовой проект 409-23-54.87Типовой проект 409-23-54.87Типовой проект 409-23-54.87Типовой проект 409-23-54.87Типовой проект 409-23-54.87Типовой проект 409-23-54.87Типовой проект 409-23-54.87Типовой проект 409-23-54.87Типовой проект 409-23-54.87Типовой проект 409-23-54.87Типовой проект 409-23-54.87Типовой проект 409-23-54.87Типовой проект 409-23-54.87Типовой проект 409-23-54.87Типовой проект 409-23-54.87Типовой проект 409-23-54.87Типовой проект 409-23-54.87Типовой проект 409-23-54.87Типовой проект 409-23-54.87Типовой проект 409-23-54.87Типовой проект 409-23-54.87Типовой проект 409-23-54.87Типовой проект 409-23-54.87Типовой проект 409-23-54.87Типовой проект 409-23-54.87Типовой проект 409-23-54.87Типовой проект 409-23-54.87Типовой проект 409-23-54.87

© 2013 Ёшкин Кот :-) Карта сайта