Информационная система
«Ёшкин Кот»

Скачать базу одним архивом
Скачать обновления
История создания базы
Карта сайта

Скачать Типовой проект 409-23-54.87 Альбом 2. Обеспыливание и аспирация

Дата актуализации: 10.08.2017

Типовой проект 409-23-54.87

Альбом 2. Обеспыливание и аспирация

Обозначение: Типовой проект 409-23-54.87
Обозначение англ: 409-23-54.87
Статус:не определен законодательством
Название рус.:Альбом 2. Обеспыливание и аспирация
Дата добавления в базу:01.10.2014
Дата актуализации:05.05.2017
Дата введения:22.10.1987
Оглавление:Содержание альбома
Пояснительная записка
Общие данные
Характеристика работы систем аспирации и обеспыливания
Спецификация к листам 4 - 22
Схема обеспыливающих и аспирационных систем
План на отм. 4.800
План на отм. 9.600
План на отм. 14.400
Разрез 1-1
Разрез 2-2
Разрез 3-3. Сечения А-А, Б-Б
Воздуховод от ленточного конвейера №13 к ПВМ-5СА. Поз. 20
Воздуховод к вентилятору. Поз. 21
Труба в атмосферу. Поз. 22
Воздуховод от ленточных конвейеров №11, 12 к ПВМ-10СА. Поз. 23
Воздуховод от ленточного конвейера №17 к ПВМ-10СА. Поз. 25
Труба в атмосферу. Поз. 24
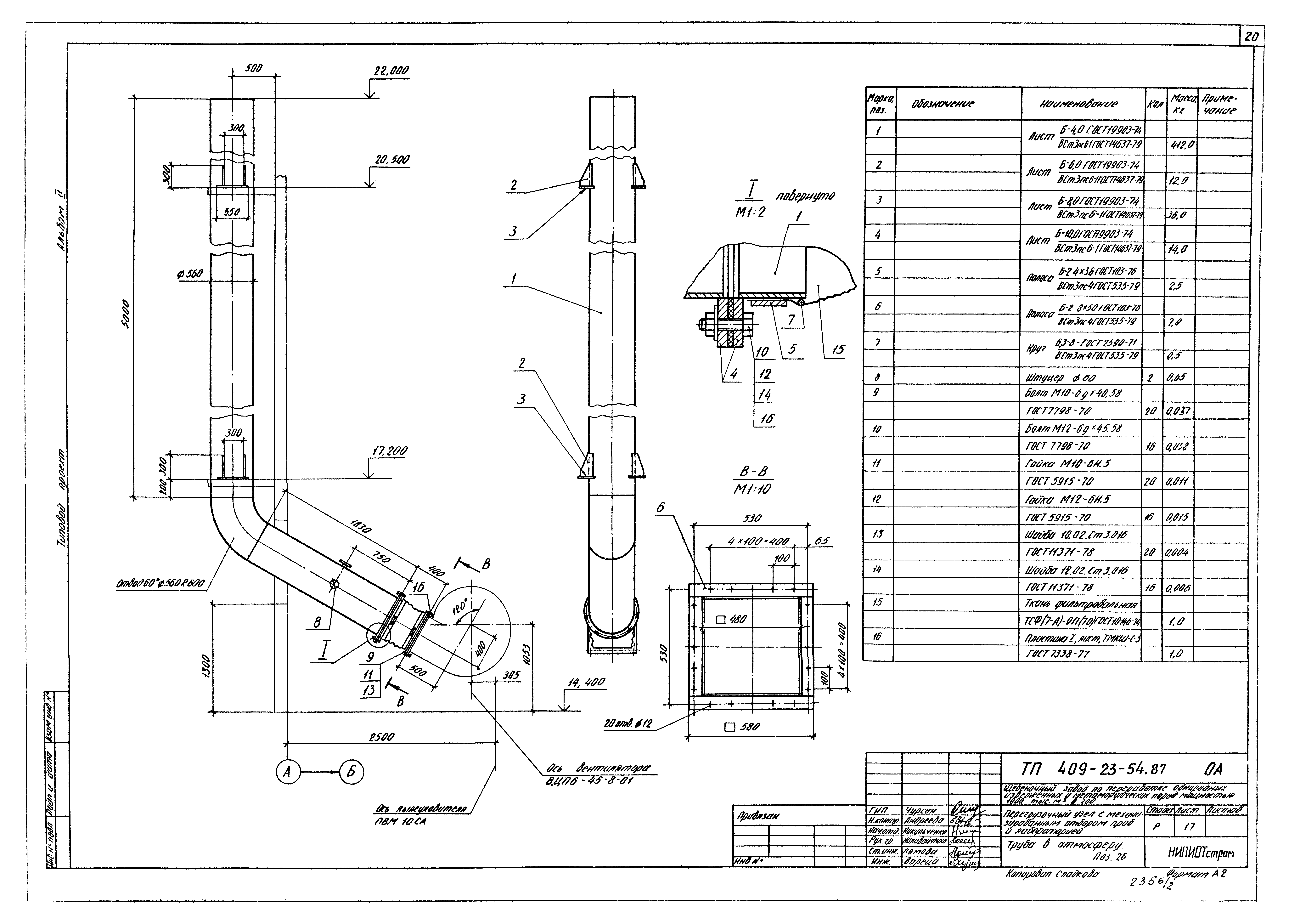
Труба в атмосферу. Поз. 26
Воздуховод от ленточного конвейера №16 к ПВМ-10СА. Поз. 27
Труба в атмосферу. Поз. 28
Переходник от ПВМ-10СА к вентилятору. Поз. 29
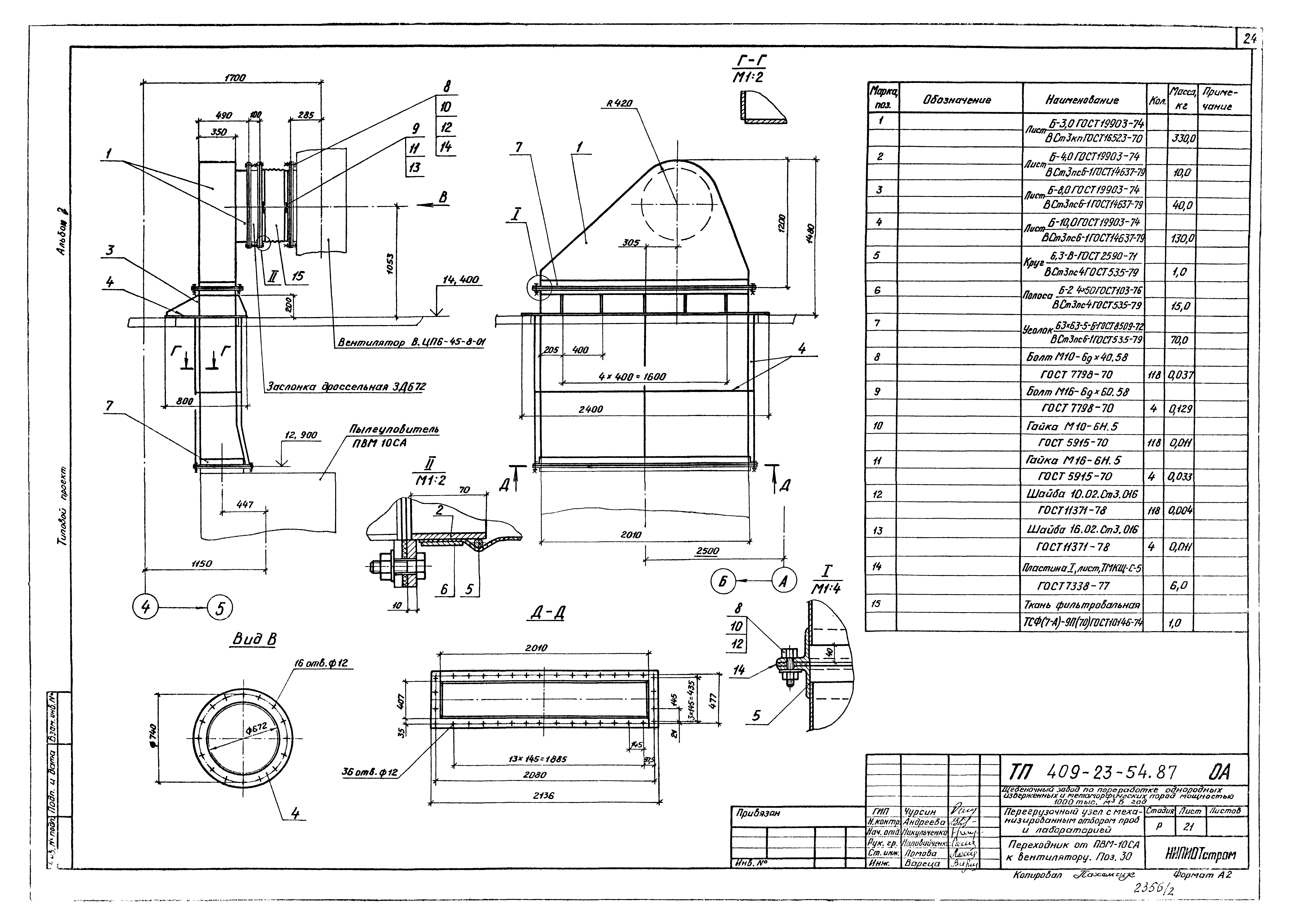
Переходник от ПВМ-10СА к вентилятору. Поз. 30
Переходник от ПВМ-10СА к вентилятору. Поз. 31
Заслонка дроссельная
Форсунка
Разработан: Союзгипронеруд
Утверждён:19.07.1987 Минстройматериалов СССР (USSR Minstroymaterialov 28-15481)
Расположен в:Техническая документация Строительство Справочные документы Типовые строительные конструкции, изделия и узлы Общероссийский строительный каталог Промышленные предприятия, здания и сооружения Предприятия, здания и сооружения промышленности и электроэнергетики Строительная индустрия и промышленность строительных материалов Производство строительных материалов и изделий Производство тяжелых заполнителей
Заменяет собой:
  • Типовой проект 409-23-46
Типовой проект 409-23-54.87Типовой проект 409-23-54.87Типовой проект 409-23-54.87Типовой проект 409-23-54.87Типовой проект 409-23-54.87Типовой проект 409-23-54.87Типовой проект 409-23-54.87Типовой проект 409-23-54.87Типовой проект 409-23-54.87Типовой проект 409-23-54.87Типовой проект 409-23-54.87Типовой проект 409-23-54.87Типовой проект 409-23-54.87Типовой проект 409-23-54.87Типовой проект 409-23-54.87Типовой проект 409-23-54.87Типовой проект 409-23-54.87Типовой проект 409-23-54.87Типовой проект 409-23-54.87Типовой проект 409-23-54.87Типовой проект 409-23-54.87Типовой проект 409-23-54.87Типовой проект 409-23-54.87Типовой проект 409-23-54.87Типовой проект 409-23-54.87Типовой проект 409-23-54.87Типовой проект 409-23-54.87Типовой проект 409-23-54.87Типовой проект 409-23-54.87Типовой проект 409-23-54.87

© 2013 Ёшкин Кот :-) Карта сайта