Информационная система
«Ёшкин Кот»

Скачать базу одним архивом
Скачать обновления
История создания базы
Карта сайта

Скачать Типовой проект 409-23-54.87 Альбом 1. Пояснительная записка. Технология производства

Дата актуализации: 10.08.2017

Типовой проект 409-23-54.87

Альбом 1. Пояснительная записка. Технология производства

Обозначение: Типовой проект 409-23-54.87
Обозначение англ: 409-23-54.87
Статус:не определен законодательством
Название рус.:Альбом 1. Пояснительная записка. Технология производства
Дата добавления в базу:01.09.2013
Дата актуализации:05.05.2017
Дата введения:22.10.1987
Оглавление:Пояснительная записка
Общие данные
Монтажный чертеж. План на отм. 0.000
Монтажный чертеж. План на отм. 4.800
Монтажный чертеж. План на отм. 9.600
Монтажный чертеж. План на отм. 14.400
Монтажный чертеж. Разрез 1-1
Монтажный чертеж. Разрез 2-2
Монтажный чертеж. Разрез 3-3
Лаборатория. План на отм. 0.000
Лаборатория. Спецификация
Лаборатория. Установка для анализа зернового состава щебня и гравия
Лаборатория. Установка пресса гидравлического П-50
Лаборатория. Установка барабана полочного
Лаборатория. Установка дробилки щековой ДЛЩ80х150
Лаборатория. Установка стеллажа сборно-разборного 2000-610х2400
Установка пробоотборника №1 ПК1-8
Установка пробоотборника №2 ПК1-8
Установка пробоотборника №3 ПК1-8
Установка механизмов поворота затвора
Установка конвейера №7 8063-100. Монтажная схема. Разрезы 1-1; 2-2
Установка конвейера №7 8063-100. План закладных частей. Узлы II, III
Установка конвейера №7 8063-100. Узел I. Виды А, Б, В
Установка конвейера №7 8063-100. Спецификация
Установка конвейера №8 8080-120. Монтажная схема. Разрезы 1-1; 2-2
Установка конвейера №8 8080-120. План закладных частей. Виды А, Б. Узлы II, III
Установка конвейера №8 8080-120. Узел I. Виды В, Г, Д
Установка конвейера №8 8080-120. Спецификация
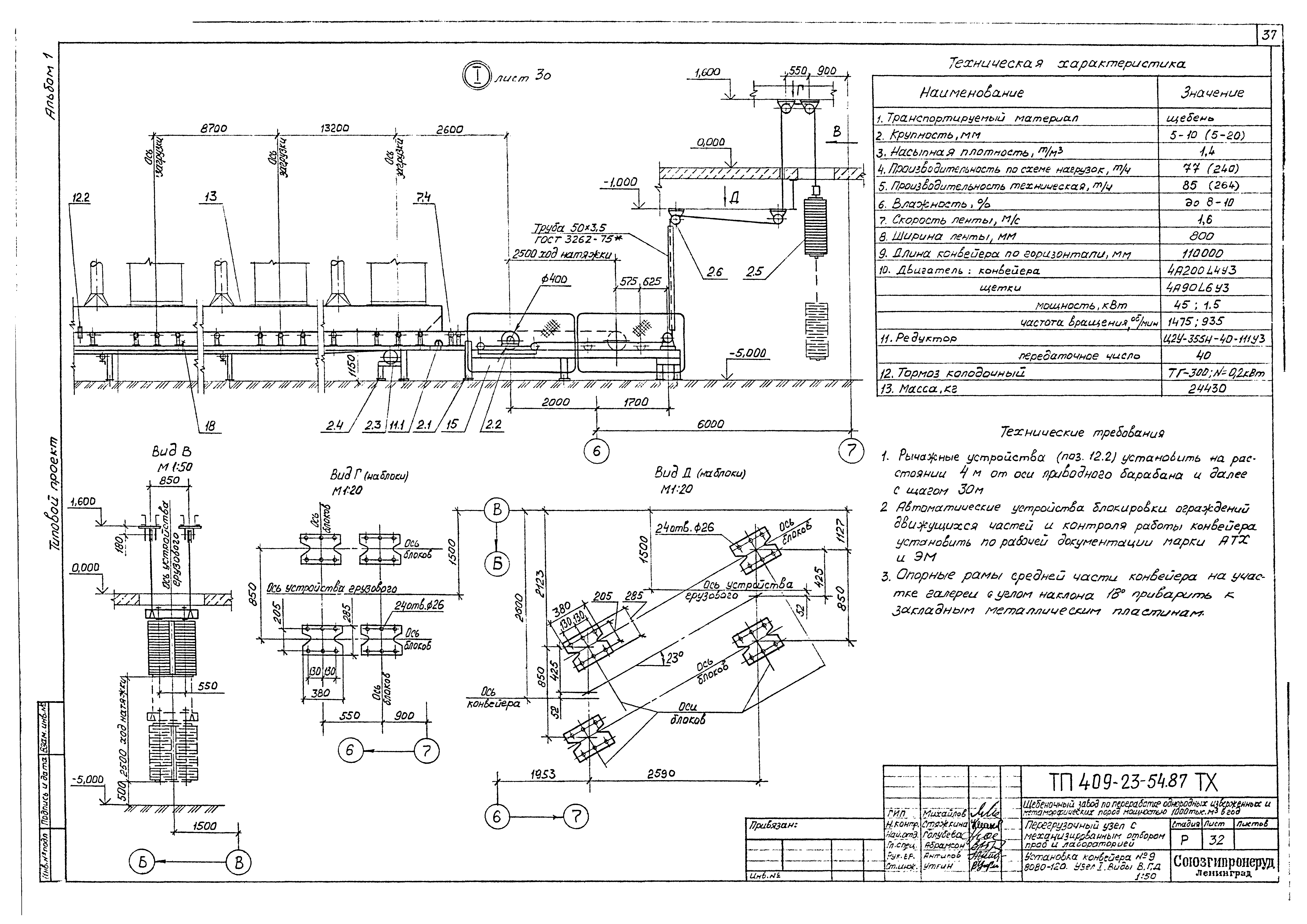
Установка конвейера №9 8080-120. Монтажная схема. Разрезы 1-1; 2-2
Установка конвейера №9 8080-120. План закладных частей. Виды А, Б. Узлы II, III
Установка конвейера №9 8080-120. Узел I. Виды В, Г, Д
Установка конвейера №9 8080-120. Спецификация
Установка конвейера №14 12080-160. Монтажная схема. Разрезы 1-1; 2-2
Установка конвейера №14 12080-160. План закладных частей. Узлы II, III
Установка конвейера №14 12080-160. Узел I. Виды А, Б, В
Установка конвейера №14 12080-160. Спецификация
Установка конвейера №15 12080-160. Монтажная схема. Разрезы 1-1; 2-2
Установка конвейера №15 12080-160. План закладных частей. Узлы II, III
Установка конвейера №15 12080-160. Узел I. Виды А, Б, В
Установка конвейера №15 12080-160. Спецификация
Механизм поворота затвора. Общий вид
Узел перегрузки: конвейер №7, пробоотборник №1 - конвейер №13. Общий вид
Узел перегрузки: конвейер №9, пробоотборник №2 - конвейер №12. Общий вид
Узел перегрузки: конвейер №8, пробоотборник №3 - конвейер №11. Общий вид
Узел перегрузки: конвейер №14 - конвейер №17. Общий вид
Узел перегрузки: конвейер №15 - конвейеры №16, 17. Общий вид
Узел перегрузки: пробоотборники №1, 2, 3 - бункер проб в лаборатории. Общий вид
Опорная рама приводного барабана конвейеров №7, 8, 9. Общий вид
Опорная рама приводного механизма конвейера №7. Общий вид
Опорная рама приводного механизма конвейеров №8, 9. Общий вид
Опорная конструкция грузового натяжного устройства конвейера №7. Общий вид
Опорная конструкция грузового натяжного устройства конвейеров №8, 9. Общий вид
Опорная рама неприводного барабана конвейеров №7, 8, 9, 14, 15. Общий вид
Опорная рама средней части и нижней роликоопоры конвейеров №7, 8, 9, 14, 15. Общий вид
Опорная рама средней части и нижней роликоопоры конвейеров №7, 8, 9. Общий вид
Опорная рама приводного барабана конвейеров №14, 15. Общий вид
Опорная рама приводного механизма конвейеров №14, 15. Общий вид
Опорная конструкция грузового натяжного устройства конвейеров №14, 15. Общий вид
Затвор секторный. Общий вид
Разработан: Союзгипронеруд
Утверждён:19.07.1987 Минстройматериалов СССР (USSR Minstroymaterialov 28-15481)
Расположен в:Техническая документация Строительство Справочные документы Типовые строительные конструкции, изделия и узлы Общероссийский строительный каталог Промышленные предприятия, здания и сооружения Предприятия, здания и сооружения промышленности и электроэнергетики Строительная индустрия и промышленность строительных материалов Производство строительных материалов и изделий Производство тяжелых заполнителей
Заменяет собой:
  • Типовой проект 409-23-46
Типовой проект 409-23-54.87Типовой проект 409-23-54.87Типовой проект 409-23-54.87Типовой проект 409-23-54.87Типовой проект 409-23-54.87Типовой проект 409-23-54.87Типовой проект 409-23-54.87Типовой проект 409-23-54.87Типовой проект 409-23-54.87Типовой проект 409-23-54.87Типовой проект 409-23-54.87Типовой проект 409-23-54.87Типовой проект 409-23-54.87Типовой проект 409-23-54.87Типовой проект 409-23-54.87Типовой проект 409-23-54.87Типовой проект 409-23-54.87Типовой проект 409-23-54.87Типовой проект 409-23-54.87Типовой проект 409-23-54.87Типовой проект 409-23-54.87Типовой проект 409-23-54.87Типовой проект 409-23-54.87Типовой проект 409-23-54.87Типовой проект 409-23-54.87Типовой проект 409-23-54.87Типовой проект 409-23-54.87Типовой проект 409-23-54.87Типовой проект 409-23-54.87Типовой проект 409-23-54.87Типовой проект 409-23-54.87Типовой проект 409-23-54.87Типовой проект 409-23-54.87Типовой проект 409-23-54.87Типовой проект 409-23-54.87Типовой проект 409-23-54.87Типовой проект 409-23-54.87Типовой проект 409-23-54.87Типовой проект 409-23-54.87Типовой проект 409-23-54.87Типовой проект 409-23-54.87Типовой проект 409-23-54.87Типовой проект 409-23-54.87Типовой проект 409-23-54.87Типовой проект 409-23-54.87Типовой проект 409-23-54.87Типовой проект 409-23-54.87Типовой проект 409-23-54.87Типовой проект 409-23-54.87Типовой проект 409-23-54.87Типовой проект 409-23-54.87Типовой проект 409-23-54.87Типовой проект 409-23-54.87Типовой проект 409-23-54.87Типовой проект 409-23-54.87Типовой проект 409-23-54.87Типовой проект 409-23-54.87Типовой проект 409-23-54.87Типовой проект 409-23-54.87Типовой проект 409-23-54.87Типовой проект 409-23-54.87Типовой проект 409-23-54.87Типовой проект 409-23-54.87Типовой проект 409-23-54.87Типовой проект 409-23-54.87Типовой проект 409-23-54.87Типовой проект 409-23-54.87Типовой проект 409-23-54.87

© 2013 Ёшкин Кот :-) Карта сайта