Скачать Типовой проект 3.501-54 Типовой проект железобетонных пролетных строений для железнодорожных мостов пролетами от 2 до 15 м. Рабочие чертежиДата актуализации: 10.08.2017 Типовой проект 3.501-54
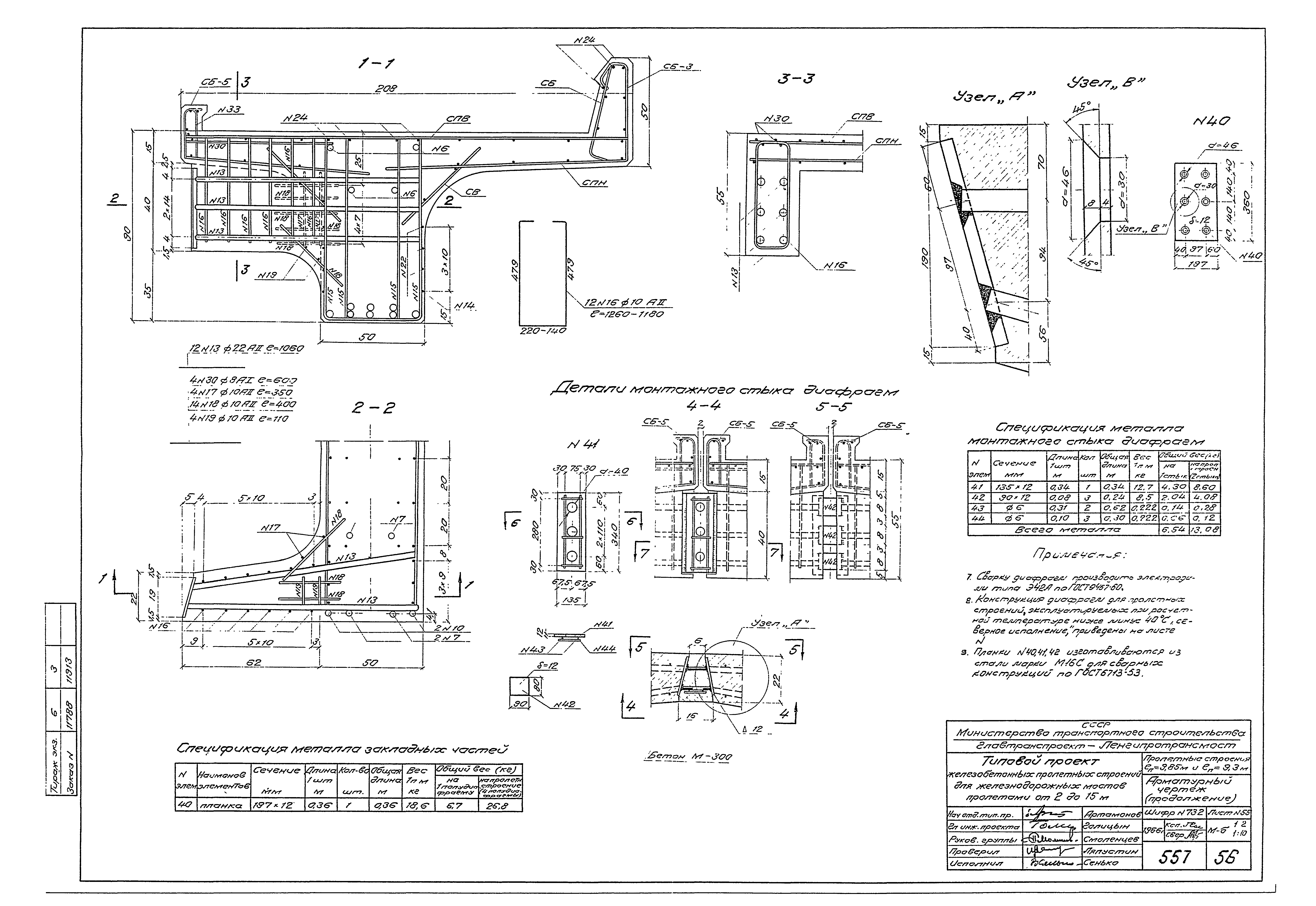
Типовой проект железобетонных пролетных строений для железнодорожных мостов пролетами от 2 до 15 м. Рабочие чертежиОбозначение: | Типовой проект 3.501-54 | Обозначение англ: | 3.501-54 | Статус: | заменен | Название рус.: | Типовой проект железобетонных пролетных строений для железнодорожных мостов пролетами от 2 до 15 м. Рабочие чертежи | Дата добавления в базу: | 01.09.2013 | Дата актуализации: | 05.05.2017 | Дата введения: | 01.01.1979 | Оглавление: | Пояснительная записка I. Общая часть II. Пролетные строения с нормальной строительной высотой III. Пролетные строения с пониженной строительной высотой IV. Детали V. Производство работ | Разработан: | Ленгипротрансмост
| Утверждён: | 22.07.1967 МПС (Ministry of Railroads П-18684)
| Расположен в: |
| Чем заменён: | |
                                                                                                                                                           
|