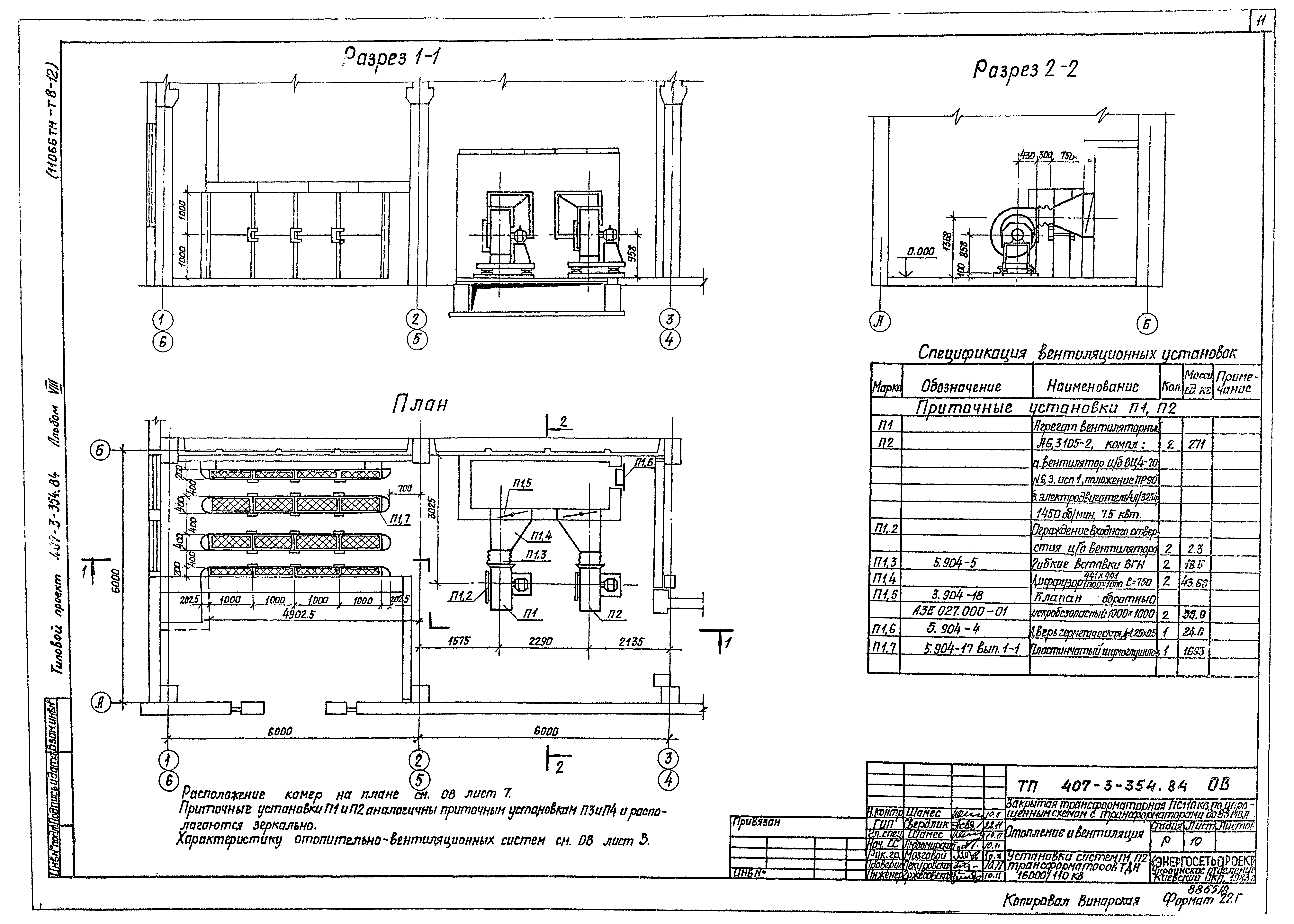
Скачать Типовой проект 407-3-354.84 Альбом VIII. Санитарно-техническая часть. Внутренние отопление и вентиляция, водопровод и канализацияДата актуализации: 10.08.2017 Типовой проект 407-3-354.84
Альбом VIII. Санитарно-техническая часть. Внутренние отопление и вентиляция, водопровод и канализацияОбозначение: | Типовой проект 407-3-354.84 | Обозначение англ: | 407-3-354.84 | Статус: | не действует | Название рус.: | Альбом VIII. Санитарно-техническая часть. Внутренние отопление и вентиляция, водопровод и канализация | Дата добавления в базу: | 05.05.2017 | Дата актуализации: | 05.05.2017 | Дата введения: | 01.01.1988 | Разработан: | Украинское отделение института Энергосетьпроект Киевский отдел комплексного проектирования
| Утверждён: | 07.02.1984 Минэнерго СССР (USSR Minenergo 8)
| Расположен в: |
| Заменяет собой: | |
                         
|