Информационная система
«Ёшкин Кот»

Скачать базу одним архивом
Скачать обновления
История создания базы
Карта сайта

Скачать Типовой проект 902-1-165.90 Альбом 4. Изделия (из ТП 902-1-164.90)

Дата актуализации: 10.08.2017

Типовой проект 902-1-165.90

Альбом 4. Изделия (из ТП 902-1-164.90)

Обозначение: Типовой проект 902-1-165.90
Обозначение англ: 902-1-165.90
Статус:не определен законодательством
Название рус.:Альбом 4. Изделия (из ТП 902-1-164.90)
Дата добавления в базу:01.09.2013
Дата актуализации:05.05.2017
Дата введения:15.05.1990
Оглавление:902-1-164.90-КЖ.И.ДО Содержание альбома
902-1-164.90-КЖ.И.ТТ Технические требования
902-1-164.90-КЖ.И.ПП1 Плита ПП1
902-1-164.90-КЖ.И.ОП1 Опорная подушка ОП1
902-1-164.90-КЖ.И.РС1 Ведомость расхода стали РС1
902-1-164.90-КЖ.И.П1 Плиты перекрытия П1
902-1-164.90-КЖ.И.РС2 Ведомость расхода стали РС2
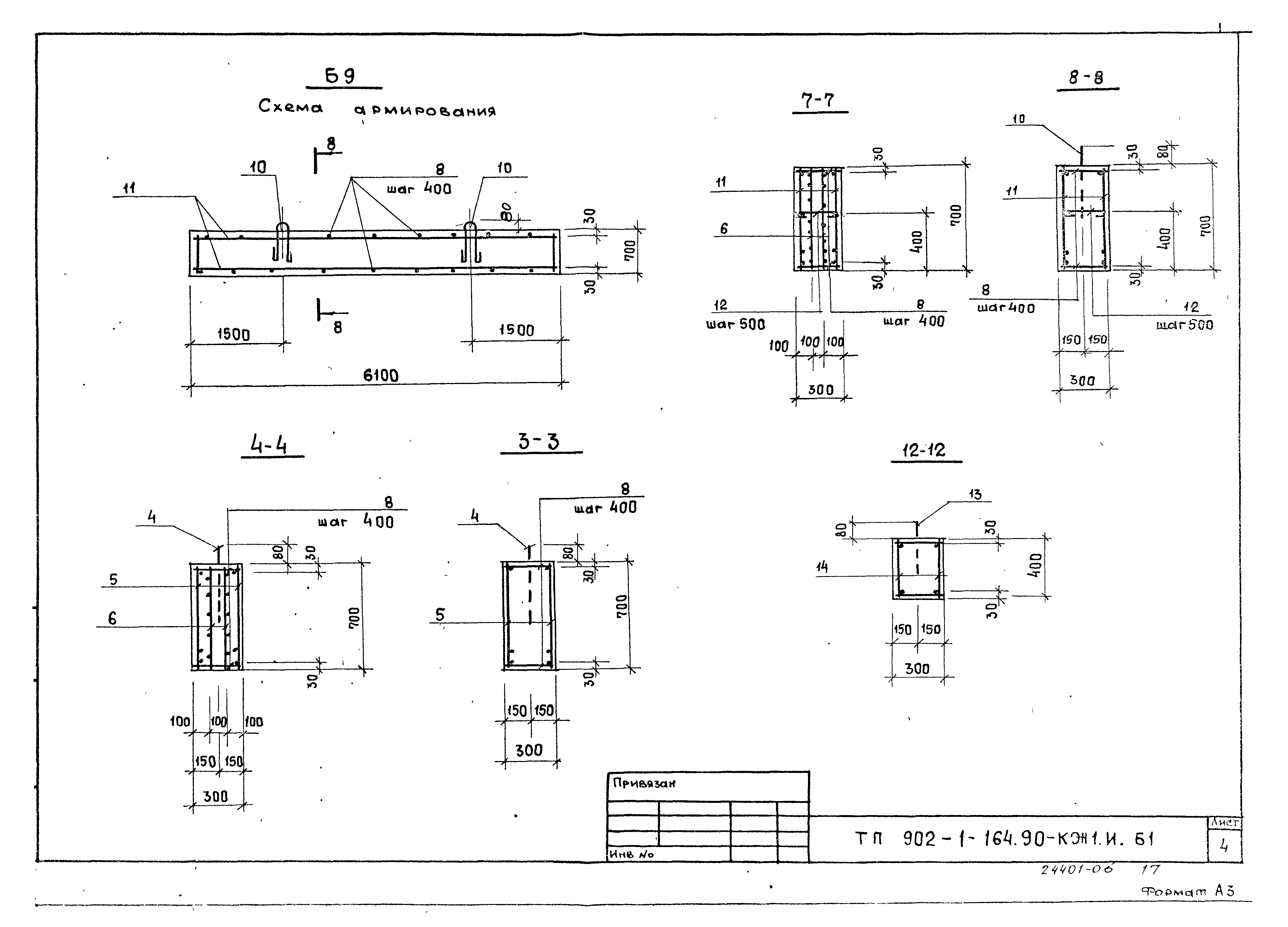
902-1-164.90-КЖ.И.Б1 Балки Б1…Б8
902-1-164.90-КЖ.И.РС3 Ведомость расхода стали РС3
902-1-164.90-КЖ.И.Кр1 Каркас плоский Кр1
902-1-164.90-КЖ.И.Кр2 Каркас плоский Кр2
902-1-164.90-КЖ.И.Кр3 Каркас плоский Кр3
902-1-164.90-КЖ.И.Кр4 Каркас плоский Кр4
902-1-164.90-КЖ.И.Кр5 Каркас плоский Кр5
902-1-164.90-КЖ.И.Кр6 Каркас плоский Кр6
902-1-164.90-КЖ.И.Кр7 Каркас плоский Кр7
902-1-164.90-КЖ.И.Кр8 Каркас плоский Кр8
902-1-164.90-КЖ.И.Кр23 Каркас плоский Кр23, Кр24
902-1-164.90-КЖ.И.Кр25 Каркас плоский Кр25, Кр26
902-1-164.90-КЖ.И.С5 Сетка арматурная С5, С6
902-1-164.90-КЖ.И.С1 Сетка арматурная С1, С2
902-1-164.90-КЖ.И.С3 Сетка арматурная С3, С4
902-1-164.90-КЖ.И.МН1 Изделие закладное МН1
902-1-164.90-КЖ.И.МН2 Изделие закладное МН2, МН3
902-1-164.90-КЖ.И.МН4 Изделие закладное МН4…МН6
902-1-164.90-КЖ.И.МС1 Изделие соединительное МС1
902-1-164.90-КЖ.И.МС2 Изделие соединительное МС2
902-1-164.90-КЖ.И.Кр9 Каркас плоский Кр9, Кр10
902-1-164.90-КЖ.И.Кр11 Каркас плоский Кр11, Кр12
902-1-164.90-КЖ.И.Кр13 Каркас плоский Кр13
902-1-164.90-КЖ.И.Кр14 Каркас плоский Кр14
902-1-164.90-КЖ.И.Кр15 Каркас плоский Кр15
902-1-164.90-КЖ.И.Кр16 Каркас плоский Кр16
902-1-164.90-КЖ.И.Кр17 Каркас плоский Кр17, Кр18
902-1-164.90-КЖ.И.Кр19 Каркас плоский Кр19
902-1-164.90-КЖ.И.Кр20 Каркас плоский Кр20, Кр21
902-1-164.90-КЖ.И.Кр22 Каркас плоский Кр22
902-1-164.90-АР.И.ДО Содержание альбома
902-1-164.90-АР.И.ТТ Технические требования
902-1-164.90-АР.И.ИД1 Дверной блок ИД1
902-1-164.90-АР.И.П1 Дверные полотна П1…П4
902-1-164.90-АР.И.К1 Коробка К1
902-1-164.90-АР.И.НС1 Накладка НС1
Разработан: Харьковский Водоканалпроект
Утверждён:15.05.1990 СоюзводоканалНИИпроект (SoyuzvodokanalNIIproject 9)
Издан: АПП ЦИТП (1991 г. )
Расположен в:Техническая документация Строительство Справочные документы Типовые строительные конструкции, изделия и узлы Общероссийский строительный каталог Промышленные предприятия, здания и сооружения Здания и сооружения санитарно-технические Канализация Станции насосные Станции насосные для перекачки бытовых сточных вод
Типовой проект 902-1-165.90Типовой проект 902-1-165.90Типовой проект 902-1-165.90Типовой проект 902-1-165.90Типовой проект 902-1-165.90Типовой проект 902-1-165.90Типовой проект 902-1-165.90Типовой проект 902-1-165.90Типовой проект 902-1-165.90Типовой проект 902-1-165.90Типовой проект 902-1-165.90Типовой проект 902-1-165.90Типовой проект 902-1-165.90Типовой проект 902-1-165.90Типовой проект 902-1-165.90Типовой проект 902-1-165.90Типовой проект 902-1-165.90Типовой проект 902-1-165.90Типовой проект 902-1-165.90Типовой проект 902-1-165.90Типовой проект 902-1-165.90Типовой проект 902-1-165.90Типовой проект 902-1-165.90Типовой проект 902-1-165.90Типовой проект 902-1-165.90Типовой проект 902-1-165.90Типовой проект 902-1-165.90Типовой проект 902-1-165.90Типовой проект 902-1-165.90Типовой проект 902-1-165.90Типовой проект 902-1-165.90Типовой проект 902-1-165.90Типовой проект 902-1-165.90Типовой проект 902-1-165.90Типовой проект 902-1-165.90Типовой проект 902-1-165.90Типовой проект 902-1-165.90Типовой проект 902-1-165.90Типовой проект 902-1-165.90Типовой проект 902-1-165.90Типовой проект 902-1-165.90Типовой проект 902-1-165.90Типовой проект 902-1-165.90Типовой проект 902-1-165.90

© 2013 Ёшкин Кот :-) Карта сайта