Информационная система
«Ёшкин Кот»

Скачать базу одним архивом
Скачать обновления
История создания базы
Карта сайта

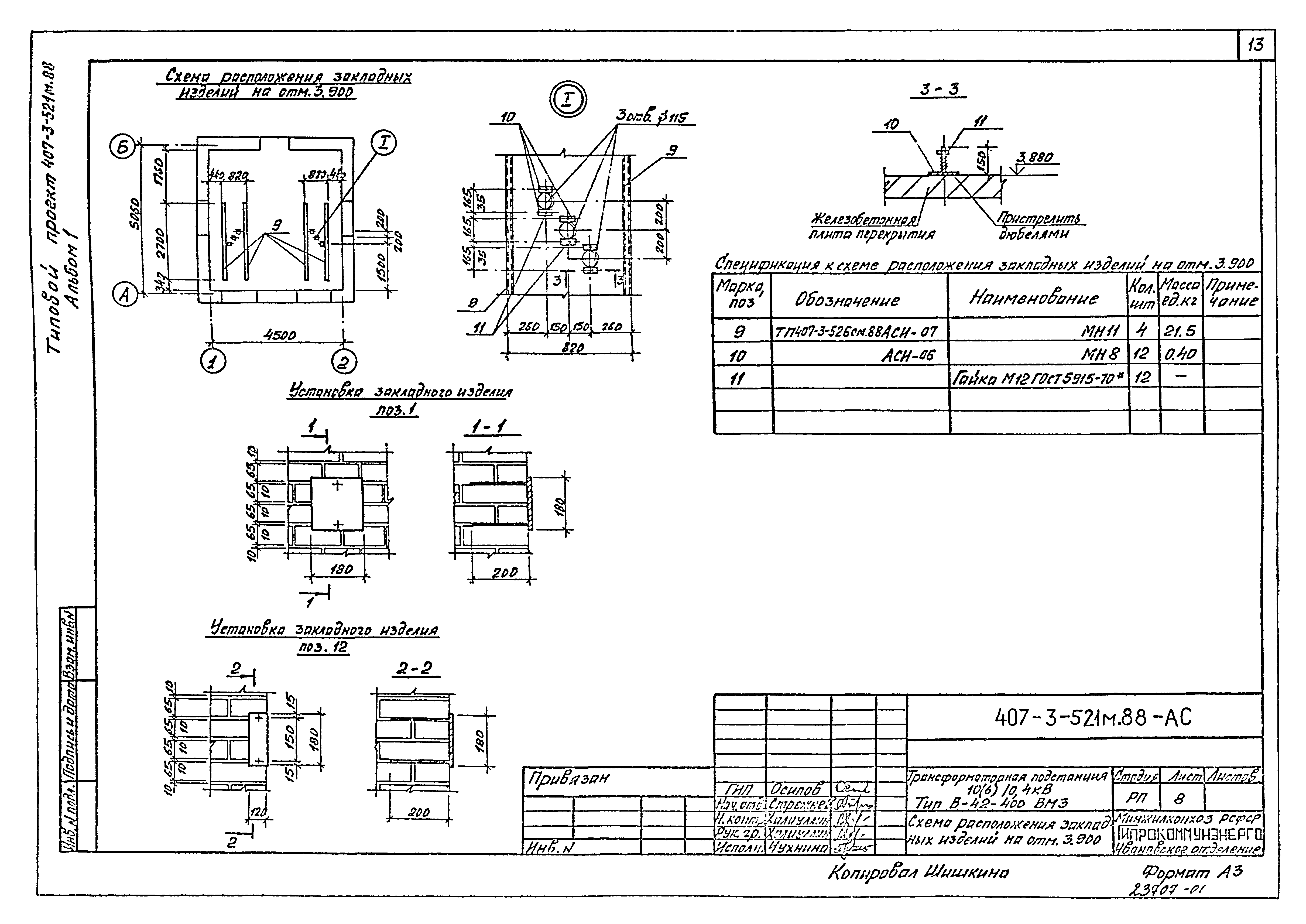
Скачать Типовой проект 407-3-521м.88 Альбом 1. Пояснительная записка. Архитектурно-строительные решения

Дата актуализации: 10.08.2017

Типовой проект 407-3-521м.88

Альбом 1. Пояснительная записка. Архитектурно-строительные решения

Обозначение: Типовой проект 407-3-521м.88
Обозначение англ: 407-3-521м.88
Статус:не определен законодательством
Название рус.:Альбом 1. Пояснительная записка. Архитектурно-строительные решения
Дата добавления в базу:12.02.2016
Дата актуализации:05.05.2017
Дата введения:06.10.1988
Разработан: Гипрокоммунэнерго, Ивановское отделение
Утверждён:06.10.1988 Минжилкомхоз РСФСР (Russian Federation Minzhilkomkhoz 248)
Издан: ЦИТП Госстроя СССР (CITP, Gosstroy (USSR) 1988 г. )
Расположен в:Техническая документация Строительство Справочные документы Типовые строительные конструкции, изделия и узлы Общероссийский строительный каталог Промышленные предприятия, здания и сооружения Предприятия, здания и сооружения промышленности и электроэнергетики Электроэнергетика Устройства и подстанции распределительные
Типовой проект 407-3-521м.88Типовой проект 407-3-521м.88Типовой проект 407-3-521м.88Типовой проект 407-3-521м.88Типовой проект 407-3-521м.88Типовой проект 407-3-521м.88Типовой проект 407-3-521м.88Типовой проект 407-3-521м.88Типовой проект 407-3-521м.88Типовой проект 407-3-521м.88Типовой проект 407-3-521м.88Типовой проект 407-3-521м.88Типовой проект 407-3-521м.88Типовой проект 407-3-521м.88Типовой проект 407-3-521м.88Типовой проект 407-3-521м.88Типовой проект 407-3-521м.88Типовой проект 407-3-521м.88Типовой проект 407-3-521м.88Типовой проект 407-3-521м.88Типовой проект 407-3-521м.88Типовой проект 407-3-521м.88

© 2013 Ёшкин Кот :-) Карта сайта