Скачать Типовой проект 407-3-595.90 Альбом 1. Пояснительная записка. Электротехническая часть. Архитектурно-строительные решения. Строительные изделияДата актуализации: 10.08.2017 Типовой проект 407-3-595.90
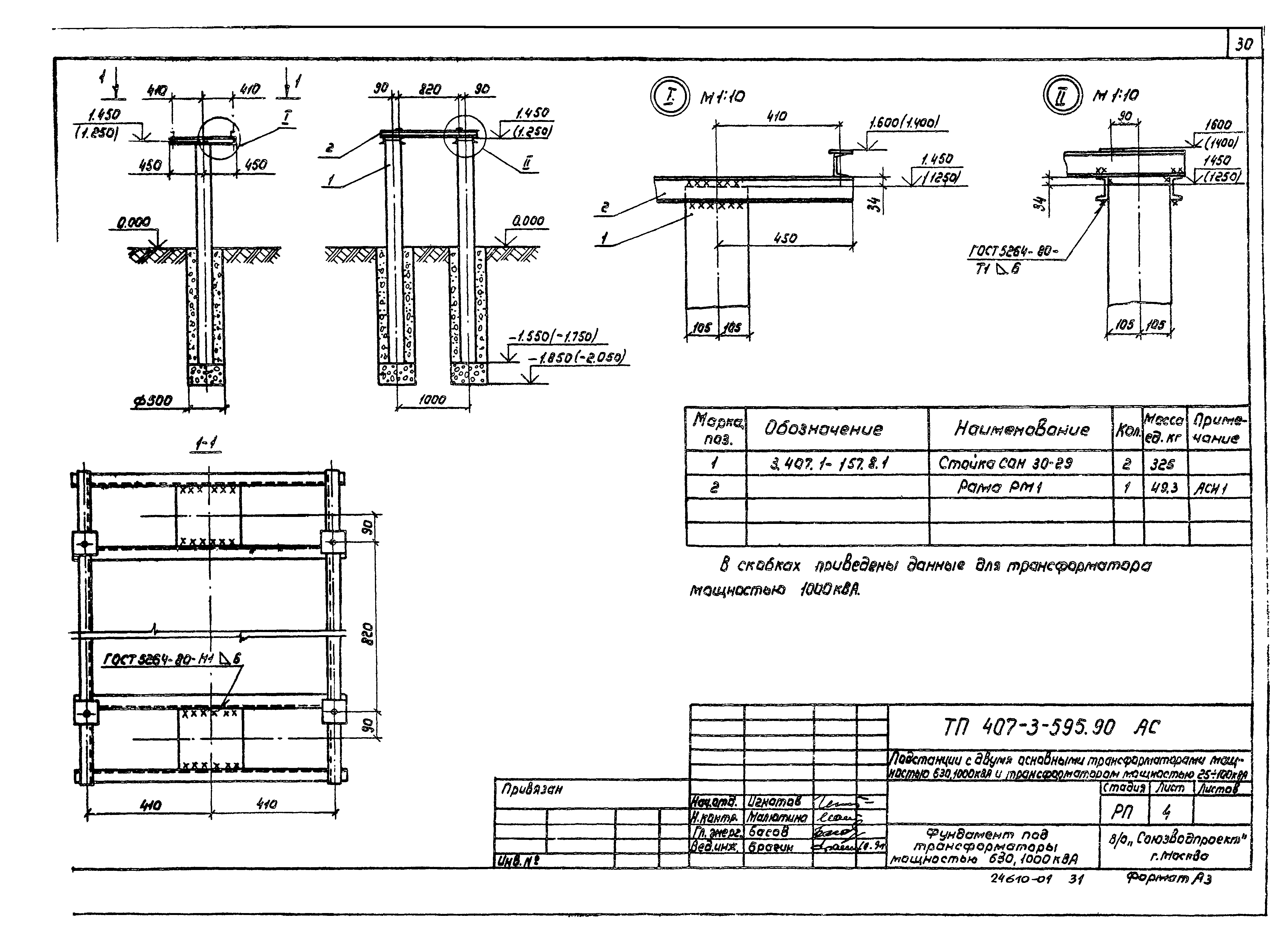
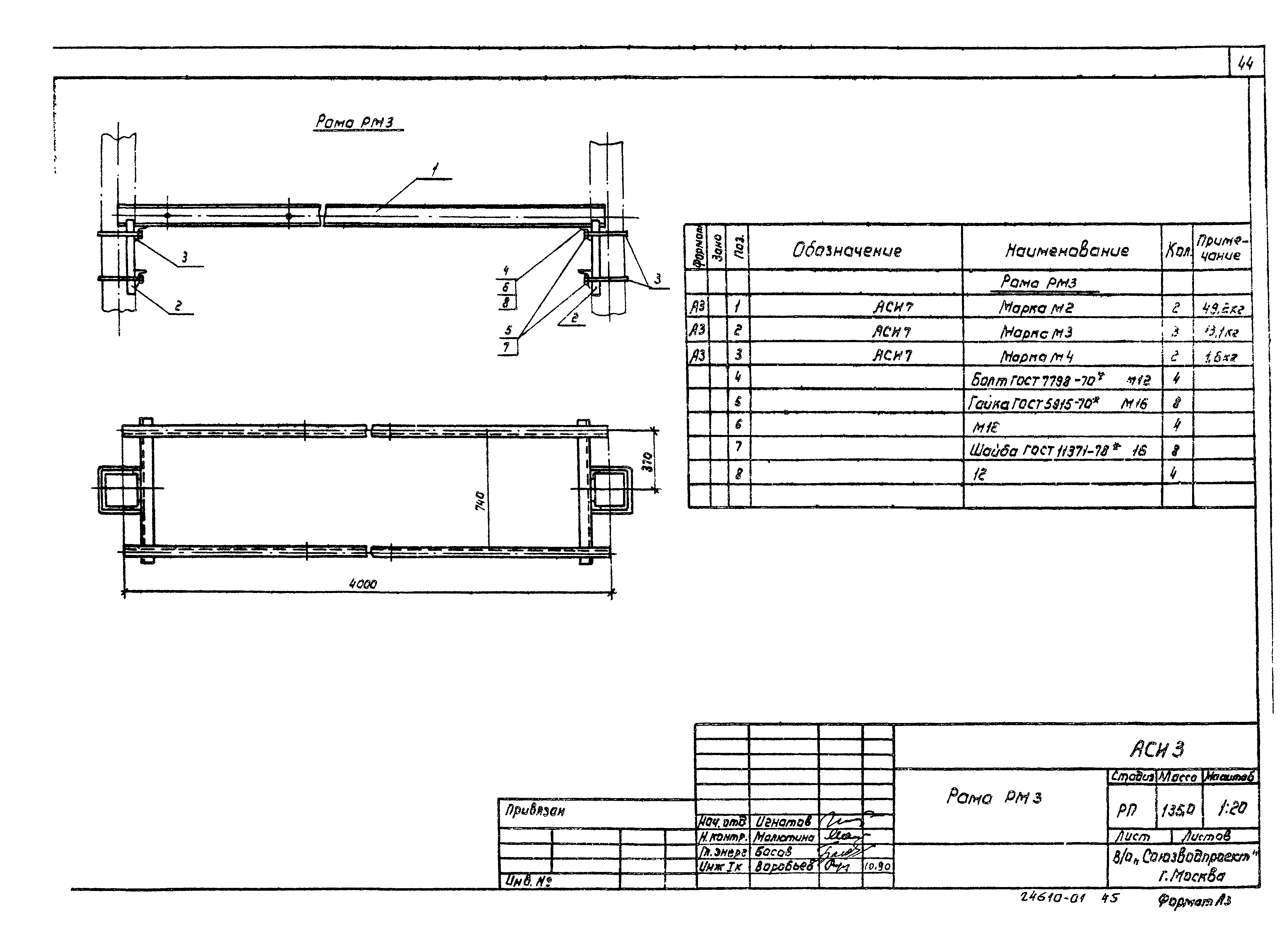
Альбом 1. Пояснительная записка. Электротехническая часть. Архитектурно-строительные решения. Строительные изделияОбозначение: | Типовой проект 407-3-595.90 | Обозначение англ: | 407-3-595.90 | Статус: | не определен законодательством | Название рус.: | Альбом 1. Пояснительная записка. Электротехническая часть. Архитектурно-строительные решения. Строительные изделия | Дата добавления в базу: | 01.09.2013 | Дата актуализации: | 05.05.2017 | Дата введения: | 01.03.1991 | Оглавление: | Пояснительная записка Электротехническая часть Общие данные Схема электрических соединений подстанции со шкафами КРН-10У1. Схема блокировки План и разрез подстанции со шкафами КРН-10У1 Опросный лист на КРН-10У1 Схема электрических соединений подстанции со шкафом К-108. Схема блокировки План и разрез подстанции со шкафами К-108 Опросный лист на К-108 Ввод низкого напряжения в здание насосной станции. План и разрез Установка шкафов КРН-10У1 Установка шкафа К-108 Установка трансформатора мощностью 25 - 100 кВА Установка разъединителя РЛНД.1-10/400У1 Установка высоковольтных предохранителей Установка проходных изоляторов в шкафу КРН-10У1 Плита с проходными изоляторами ИП-10 Установка кронштейна К1 Установка кронштейна К2 Установка кронштейна К3 Раскладка кабелей, освещение и заземляющее устройство подстанции со шкафами КРН-10У1 Раскладка кабелей, освещение и заземляющее устройство подстанции со шкафами К-108 Кабельные журналы Архитектурно-строительные решения Общие данные План и разрез фундаментов подстанции со шкафами КРН-10У1 План и разрез фундаментов подстанции со шкафами К-108 Фундамент под трансформаторы мощностью 630, 1000 кВА Фундамент под шкаф К-108 Опора под разъединитель РЛНД.1-10/400У1 Опора под высоковольтные предохранители Ограждение подстанции. План и разрез Ограждение трансформатора. План и разрезы Монтажные узлы 1, 2 Монтажные узлы 3, 4 Панель сетчатая рядовая Р1. Панель сетчатая съемная Р1А Панель сетчатая с калиткой Р2 Установка механических блокзамков на калитке ограждения трансформатора Строительные изделия Рама РМ1 Рама РМ2. Марка М1 Рама РМ3 Рама РМ4. Рама РМ5. Рама РМ6 Рама РМ7 Рама РМ8 Марки М2, М3, М4 Кронштейн К1 Кронштейн К2 Кронштейн К3. Рама РМ9 Изделия соединительные МС1, МС2 | Разработан: | В/О Союзводпроект
| Утверждён: | 30.11.1990 В/О Союзводпроект (835)
| Издан: | ЦИТП Госстроя СССР (CITP, Gosstroy (USSR) 1991 г. )
| Расположен в: |
|
                                                    
|