Информационная система
«Ёшкин Кот»

Скачать базу одним архивом
Скачать обновления
История создания базы
Карта сайта

Скачать Типовые проектные решения 407-09-26.85 Альбом I. Пояснительная записка и чертежи

Дата актуализации: 10.08.2017

Типовые проектные решения 407-09-26.85

Альбом I. Пояснительная записка и чертежи

Обозначение: Типовые проектные решения 407-09-26.85
Обозначение англ: 407-09-26.85
Статус:cправочные материалы, мп, тпр
Название рус.:Альбом I. Пояснительная записка и чертежи
Дата добавления в базу:01.10.2014
Дата актуализации:05.05.2017
Дата введения:27.04.1983
Оглавление:Чертежи основного комплекта марки АС
   Общие данные
   План на отм. 0.000
   Шкаф напольный для аккумуляторных батарей
Чертежи основного комплекта марки КМ
   Общие данные
   Подставка МК-1 под аппаратуру ВЧ-связи
Чертежи основного комплекта марки ОВ
   Отопление и вентиляция. План на отм. 0.000. Схема. Спецификация
Чертежи основного комплекта марки ЭО
   Общие данные
   Электроосвещение. План
   Спецификация оборудования
Чертежи основного комплекта марки СС
   План размещения аппаратуры
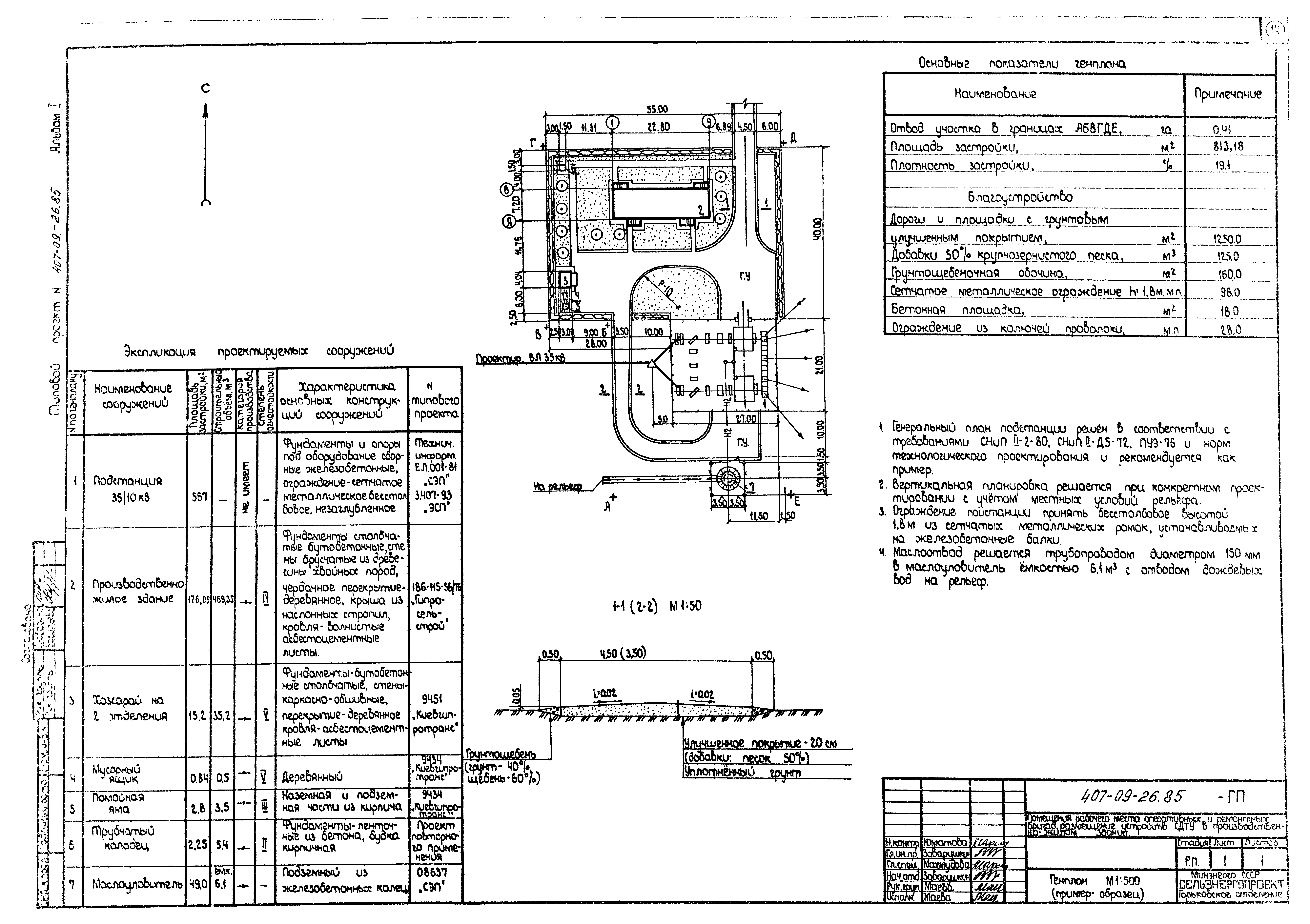
Чертежи основного комплекта марки ГП
   Генплан (пример-образец)
Разработан: Горьковское отделение Сельэнергопроекта
Утверждён:27.04.1983 Минэнерго СССР (USSR Minenergo 10)
Расположен в:Техническая документация Строительство Справочные документы Типовые строительные конструкции, изделия и узлы Общероссийский строительный каталог Промышленные предприятия, здания и сооружения Предприятия, здания и сооружения промышленности и электроэнергетики Электроэнергетика Здания и сооружения разные
Типовые проектные решения 407-09-26.85Типовые проектные решения 407-09-26.85Типовые проектные решения 407-09-26.85Типовые проектные решения 407-09-26.85Типовые проектные решения 407-09-26.85Типовые проектные решения 407-09-26.85Типовые проектные решения 407-09-26.85Типовые проектные решения 407-09-26.85Типовые проектные решения 407-09-26.85Типовые проектные решения 407-09-26.85Типовые проектные решения 407-09-26.85Типовые проектные решения 407-09-26.85Типовые проектные решения 407-09-26.85Типовые проектные решения 407-09-26.85Типовые проектные решения 407-09-26.85

© 2013 Ёшкин Кот :-) Карта сайта