Информационная система
«Ёшкин Кот»

Скачать базу одним архивом
Скачать обновления
История создания базы
Карта сайта

Скачать ТТК 7.06.02.08 Типовая технологическая карта на монтаж строительных конструкций. Испытание и промывка систем отопления

Дата актуализации: 10.08.2017

ТТК 7.06.02.08

Типовая технологическая карта на монтаж строительных конструкций. Испытание и промывка систем отопления

Обозначение: ТТК 7.06.02.08
Обозначение англ: 7.06.02.08
Статус:не установлен срок действия
Название рус.:Типовая технологическая карта на монтаж строительных конструкций. Испытание и промывка систем отопления
Дата добавления в базу:01.09.2013
Дата актуализации:05.05.2017
Дата введения:01.02.1987
Область применения:Технологическая карта разработана на промывку, гидростатическое, манометрическое и тепловое испытание систем центрального отопления из стальных труб с местными отопительными приборами
Оглавление:7.06.02.08-00 Содержание
7.06.02.08-00П3 Пояснительная записка
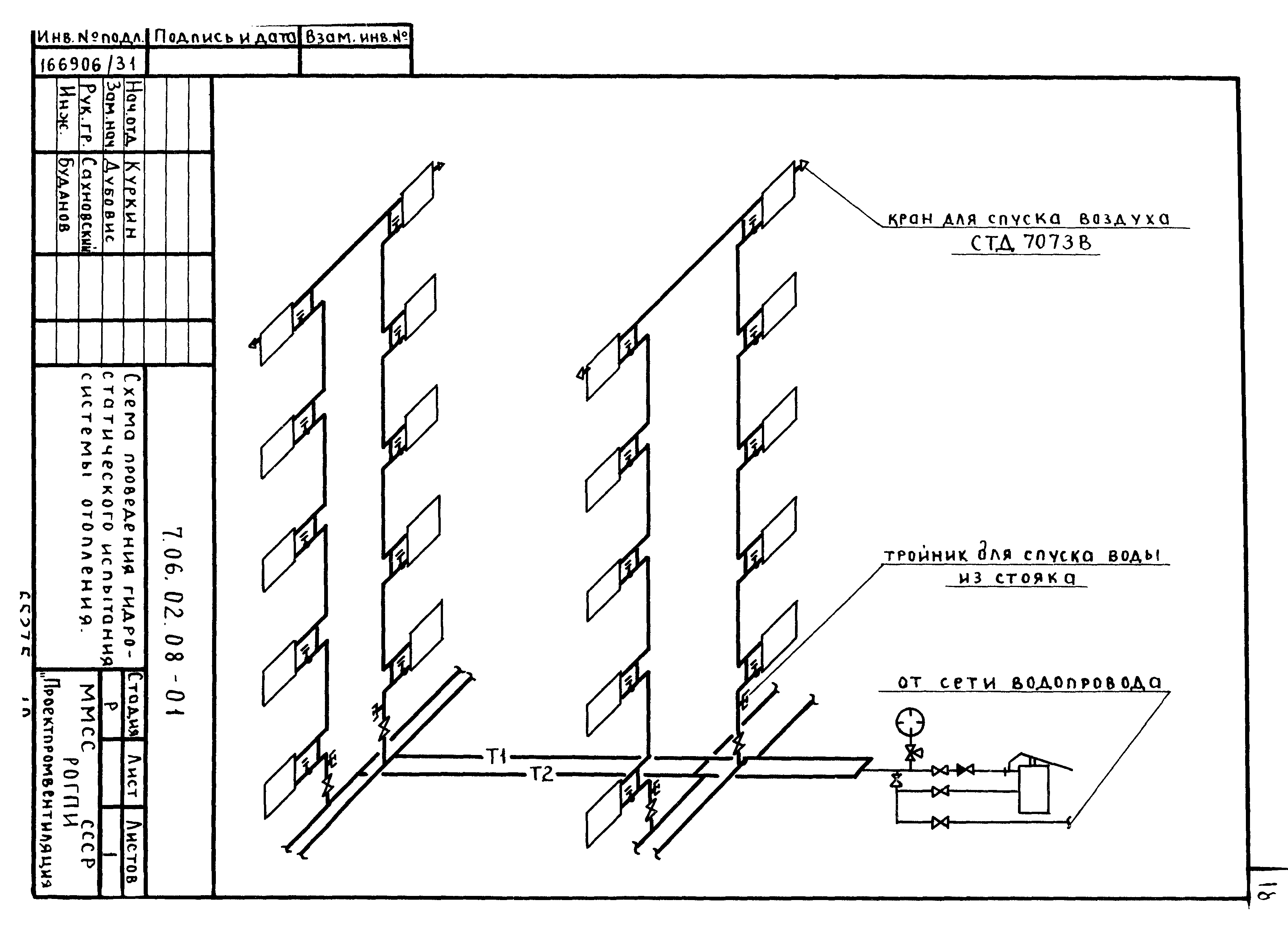
7.06.02.08-01 Схема проведения гидростатического испытания системы отопления
7.06.02.08-02 Схема промывки системы отопления
7.06.02.08-03 Последовательность пуска стояков системы отопления
7.06.02.08-04 Калькуляция трудозатрат на гидростатическое испытание системы центрального отопления с местными отопительными приборами. Тепловое испытание
Разработан: Ростовское отделение ГПИ Проектпромвентиляция Минмонтажспецстроя СССР
Утверждён:14.08.1986 Госстрой СССР (Государственный комитет Совета Министров СССР по делам строительства) (USSR Gosstroy 31-69)
Принят: Главпромвентиляция Минмонтажспецстроя СССР (Glavpromventilyatsiya, USSR Minmontazhspetsstroy )
Расположен в:Техническая документация Строительство Справочные документы Технологические карты Отопление - внутренние устройства
Нормативные ссылки:
ТТК 7.06.02.08ТТК 7.06.02.08ТТК 7.06.02.08ТТК 7.06.02.08ТТК 7.06.02.08ТТК 7.06.02.08ТТК 7.06.02.08ТТК 7.06.02.08ТТК 7.06.02.08ТТК 7.06.02.08ТТК 7.06.02.08ТТК 7.06.02.08ТТК 7.06.02.08ТТК 7.06.02.08ТТК 7.06.02.08ТТК 7.06.02.08ТТК 7.06.02.08ТТК 7.06.02.08ТТК 7.06.02.08ТТК 7.06.02.08ТТК 7.06.02.08ТТК 7.06.02.08ТТК 7.06.02.08

© 2013 Ёшкин Кот :-) Карта сайта