Скачать Типовые материалы для проектирования 407-03-379.87 Альбом IV. Низковольтные комплектные устройстваДата актуализации: 10.08.2017 Типовые материалы для проектирования 407-03-379.87
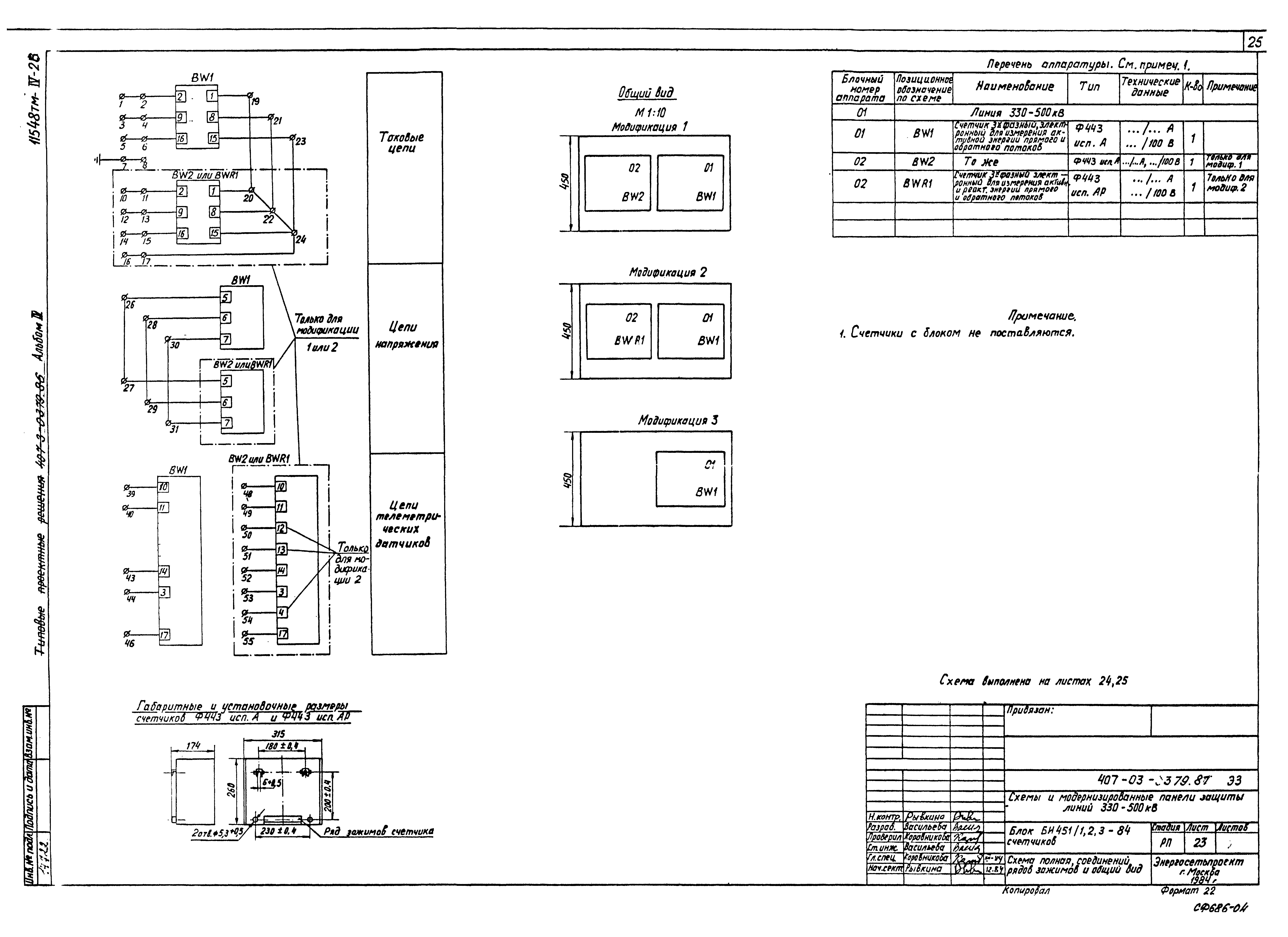
Альбом IV. Низковольтные комплектные устройстваОбозначение: | Типовые материалы для проектирования 407-03-379.87 | Обозначение англ: | 407-03-379.87 | Статус: | cправочные материалы, мп, тпр | Название рус.: | Альбом IV. Низковольтные комплектные устройства | Дата добавления в базу: | 01.09.2013 | Дата актуализации: | 05.05.2017 | Дата введения: | 21.08.1987 | Оглавление: | Пояснительная записка Панель ЭПЗ1025/1-87 резервных токовых защит линий 330 - 500 кВ. Схема полная, соединений рядов зажимов и общий вид Панель ЭПЗ1026/1-87 ускорения резервных защит линий 330 - 500 кВ. Схема полная, соединений рядов зажимов и общий вид Блок БЗ306/1-87 устройства поперечного дифференциального токового пуска дистанционной защиты. Схема полная, соединений рядов зажимов и общий вид Блок БЗ307/1,2-84 устройства КРБ-126. Схема полная, соединений рядов зажимов и общий вид Блок БВ360-84 выходных цепей приемника АНКА-14 от релейной защиты. Схема полная, соединений рядов зажимов и общий вид Блок БВ361-84 цепей пуска передатчика АНКА-14 от релейной защиты. Схема полная, соединений рядов зажимов и общий вид Блок БИ451/1,2,3-84 счетчиков. Схема полная, соединений рядов зажимов и общий вид | Разработан: | Энергосетьпроект Минэнерго СССР
| Утверждён: | 21.08.1987 Минэнерго СССР (USSR Minenergo 33)
| Расположен в: |
| Заменяет собой: | - Типовые материалы для проектирования 407-3-0379.86
|
                         
|