Информационная система
«Ёшкин Кот»

Скачать базу одним архивом
Скачать обновления
История создания базы
Карта сайта

Скачать Типовой проект 901-3-267.89 Альбом 4. Конструкции железобетонные

Дата актуализации: 10.08.2017

Типовой проект 901-3-267.89

Альбом 4. Конструкции железобетонные

Обозначение: Типовой проект 901-3-267.89
Обозначение англ: 901-3-267.89
Статус:не определен законодательством
Название рус.:Альбом 4. Конструкции железобетонные
Дата добавления в базу:01.09.2013
Дата актуализации:05.05.2017
Дата введения:29.07.1986
Оглавление:Общие данные
Схема расположения фундаментов
Фрагмент плана 1…3. Разрезы 1-1…5-5
Фрагмент плана 4…6. Разрезы 6-6…9-9
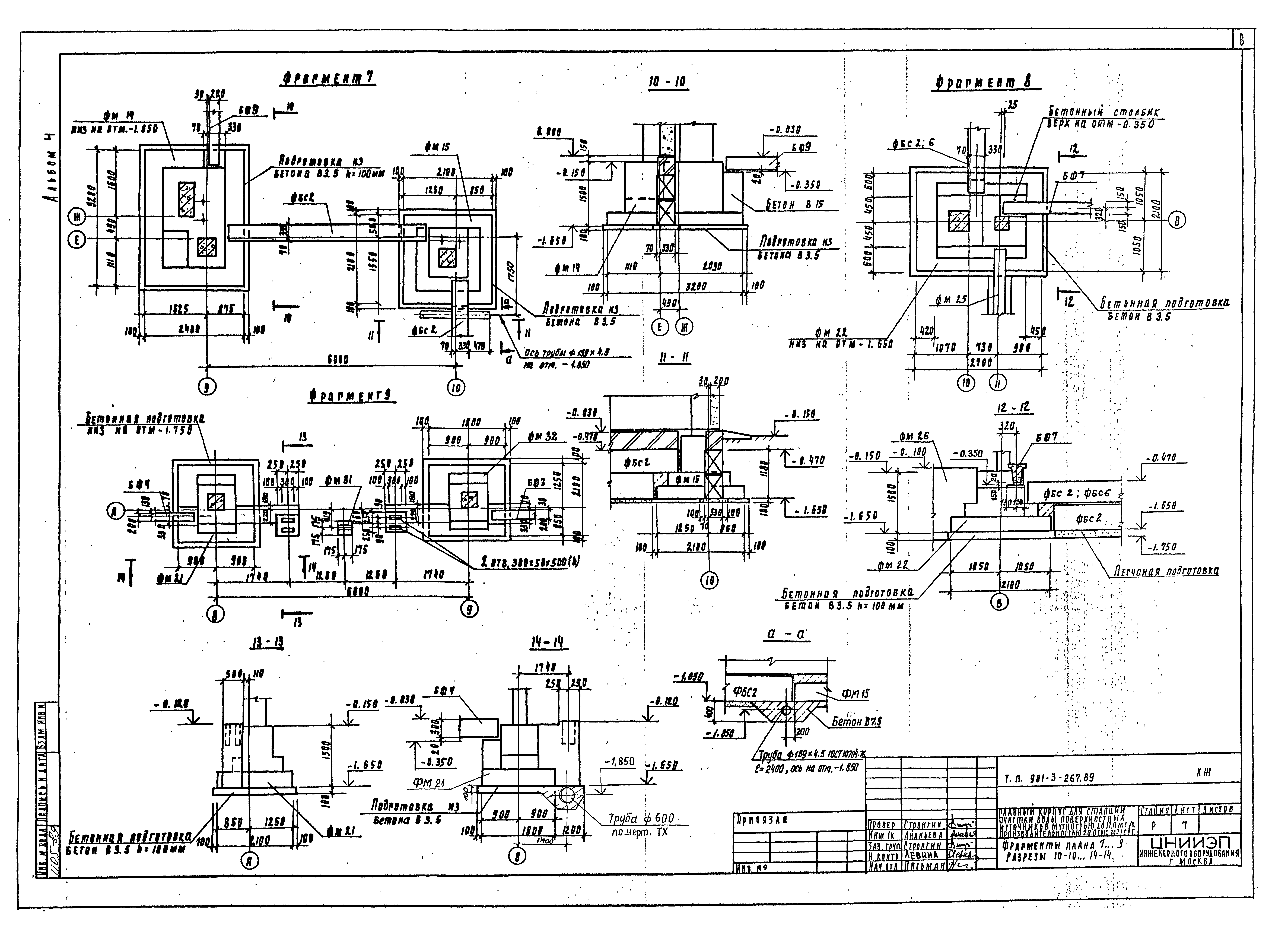
Фрагмент плана 7…9. Разрезы 10-10…14-14
Фрагмент плана 10…12. Разрезы 15-15…20-20
Спецификация
Опалубочный чертеж. Армирование Фм1…Фм3
Опалубочный чертеж. Армирование Фм4…Фм6
Опалубочный чертеж. Армирование Фм7, Фм8, Фм31
Опалубочный чертеж. Армирование Фм9, Фм10
Опалубочный чертеж. Армирование Фм11, Фм12
Опалубочный чертеж. Армирование Фм13, Фм14
Опалубочный чертеж. Армирование Фм15, Фм16, Фм17
Опалубочный чертеж. Армирование Фм18, Фм19
Опалубочный чертеж. Армирование Фм20, Фм21, Фм22
Опалубочный чертеж. Армирование Фм23, Фм24
Опалубочный чертеж. Армирование Фм25, Фм27, Фм29
Опалубочный чертеж. Армирование Фм26, Фм28
Схема расположения каналов и приямков в осях 1…2, А…Б. Разрезы 1-1…3-3
Схема расположения каналов и приямков в осях 1…2, А…Б. Разрезы 4-4…5-5. Балки монолитные Бм1, Бм2
Схема расположения фундаментов под оборудование, приямка и опор в осях А…В, 2…5
Схема расположения емкости, опор под трубопровод в осях 6…9, Ж…К
Схема расположения каналов, приямков и опор под трубопровод в осях 6…10, А…Ж. Фундамент Фо2
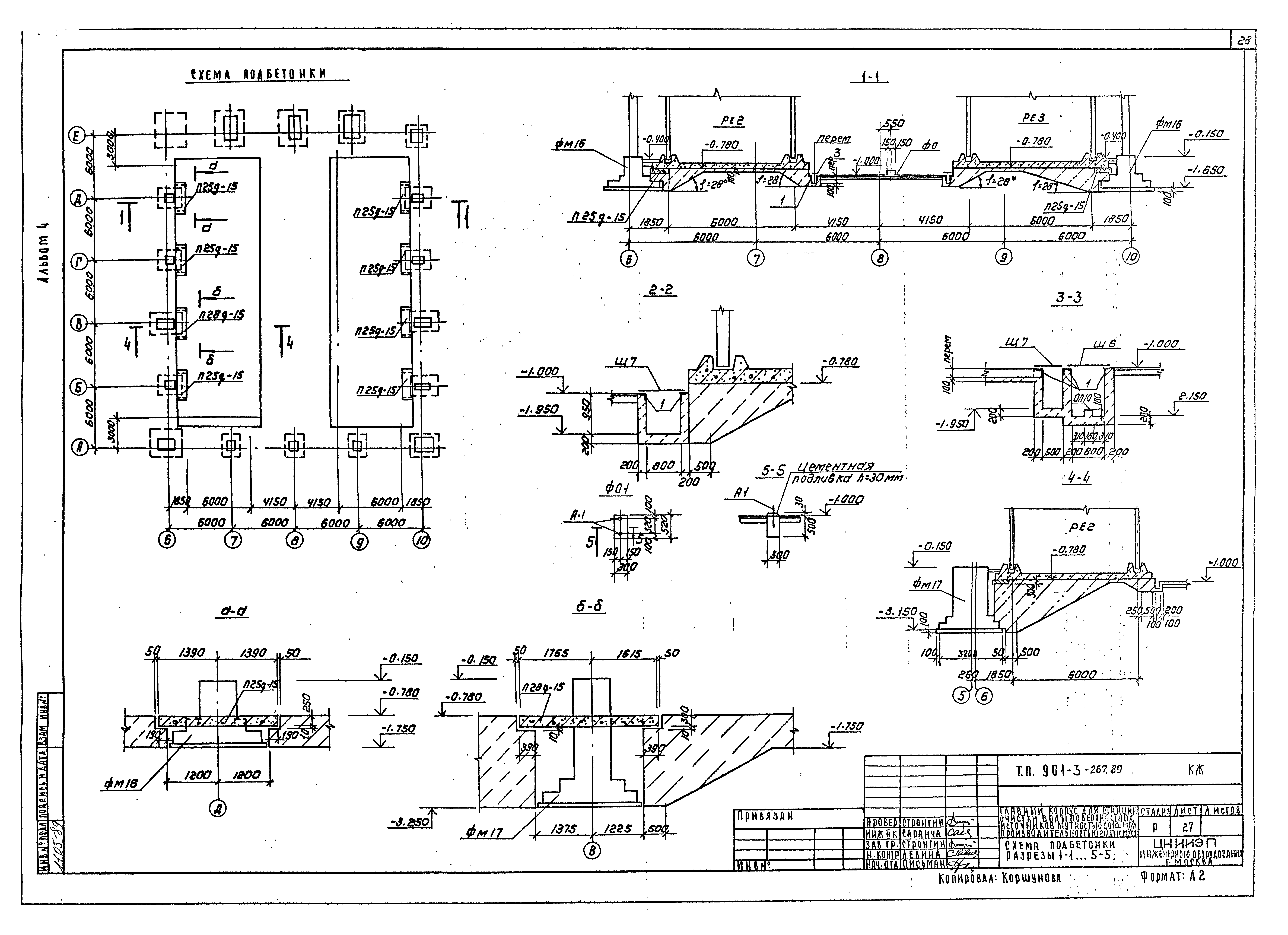
Схема подбетонки. Разрезы 1-1…5-5
Схема расположения емкостей, каналов, фундаментов под оборудование, опор в осях Б…В, 11…13
Схема расположения фундаментов под оборудование в осях А…В, 11…13. Разрезы 1-1…4-4
Фундаменты под оборудование Фо4…Фо8, ОП6, ОП7
Емкость РЕ1. Опалубочный чертеж. Планы. Узел 1. Разрезы
Емкость РЕ1. Опалубочный чертеж. План. Разрезы
Емкость РЕ1. Опалубочный чертеж. Разрезы. Узел
Емкость РЕ1. Армирование. Планы на отм. 0.000 и 7.700. Разрез 5-5
Емкость РЕ1. Армирование. Разрезы 1-1…3-3
Емкость РЕ1. Армирование. Разрез 4-4
Схема расположения стеновых панелей и монолитных участков емкостей РЕ2, РЕ3
Емкости РЕ2, РЕ3. Разрезы 1-1…5-5
Емкости РЕ2, РЕ3. Днище монолитное. Опалубочный чертеж. Планы. Разрезы. Узлы
Емкости РЕ2, РЕ3. Схемы расположения каркасов, нижних и верхних сеток днища
Емкости РЕ2, РЕ3. Днище монолитное. Армирование. Сечения 1-1…4-4
Емкости РЕ2, РЕ3. Днище монолитное. Армирование. Узлы I - III, V
Емкости РЕ2, РЕ3. Участки монолитные Ум1…Ум6. Расположение закладных деталей
Емкости РЕ2, РЕ3. Участки монолитные Ум1…Ум6. Армирование
Емкость РЕ4. Схема расположения. Разрезы 1-1…2-2
Схема расположения закладных деталей емкости РЕ4. Разрез 3-3…5-5. Узлы А…Д
Емкость РЕ4. Армирование
Поддон ПД. Схема расположения плит. Схема уклонов. Разрезы 1-1, 2-2
Схема расположения щитов, опорных подушек и плит покрытия в осях 14…16, В
Расходные баки коагулянта и полиакриламида (РЕ5). Опалубочный чертеж
Емкость РЕ5. Армирование
Схема расположения ограждения контактных осветлителей
Схема расположения плит перекрытия на отм. 3.600
Монолитные участки Ум1…Ум8
Схема расположения колонн и балок в осях 1…10. Разрезы 1-1, 2-2. Узел I
Схема расположения колонн и балок в осях 1…10. Разрезы 3-3…7-7. Узел II
Схемы расположения металлических элементов фахверка. Узел III
Схемы расположения колонн, ригелей, диафрагм жесткости на отм. 4.200; 8.400 в осях 11…16; А…В. Разрезы 1-1…3-3
Схемы расположения колонн, ригелей, диафрагм жесткости на отм. 4.200; 8.400 в осях 11…16; А…В. Разрез 4-4. Спецификации
Схема расположения плит покрытия в осях 1…10, А…К
Схемы расположения плит перекрытия и покрытия в осях 11…16, А…В. Разрезы 1-1…5-5
Монолитные участки Ум1…Ум6
Схемы расположения стеновых панелей по осям А, К, Ж, Е, 11, 16
Схемы расположения стеновых панелей по осям 1, 6, 9, 10, 8
Спецификация стеновых панелей и соединительных элементов
Схемы расположения лестничных маршей проступей и верх
Венткамеры и приямок на отм. 0.000
Разработан: ЦНИИЭП иженерного оборудования
Утверждён:29.07.1986 Госгражданстрой (Gosgrazhdanstroy 242)
Расположен в:Техническая документация Строительство Справочные документы Типовые строительные конструкции, изделия и узлы Общероссийский строительный каталог Промышленные предприятия, здания и сооружения Здания и сооружения санитарно-технические Водоснабжение Очистные сооружения Станции очистки воды
Типовой проект 901-3-267.89Типовой проект 901-3-267.89Типовой проект 901-3-267.89Типовой проект 901-3-267.89Типовой проект 901-3-267.89Типовой проект 901-3-267.89Типовой проект 901-3-267.89Типовой проект 901-3-267.89Типовой проект 901-3-267.89Типовой проект 901-3-267.89Типовой проект 901-3-267.89Типовой проект 901-3-267.89Типовой проект 901-3-267.89Типовой проект 901-3-267.89Типовой проект 901-3-267.89Типовой проект 901-3-267.89Типовой проект 901-3-267.89Типовой проект 901-3-267.89Типовой проект 901-3-267.89Типовой проект 901-3-267.89Типовой проект 901-3-267.89Типовой проект 901-3-267.89Типовой проект 901-3-267.89Типовой проект 901-3-267.89Типовой проект 901-3-267.89Типовой проект 901-3-267.89Типовой проект 901-3-267.89Типовой проект 901-3-267.89Типовой проект 901-3-267.89Типовой проект 901-3-267.89Типовой проект 901-3-267.89Типовой проект 901-3-267.89Типовой проект 901-3-267.89Типовой проект 901-3-267.89Типовой проект 901-3-267.89Типовой проект 901-3-267.89Типовой проект 901-3-267.89Типовой проект 901-3-267.89Типовой проект 901-3-267.89Типовой проект 901-3-267.89Типовой проект 901-3-267.89Типовой проект 901-3-267.89Типовой проект 901-3-267.89Типовой проект 901-3-267.89Типовой проект 901-3-267.89Типовой проект 901-3-267.89Типовой проект 901-3-267.89Типовой проект 901-3-267.89Типовой проект 901-3-267.89Типовой проект 901-3-267.89Типовой проект 901-3-267.89Типовой проект 901-3-267.89Типовой проект 901-3-267.89Типовой проект 901-3-267.89Типовой проект 901-3-267.89Типовой проект 901-3-267.89Типовой проект 901-3-267.89Типовой проект 901-3-267.89Типовой проект 901-3-267.89Типовой проект 901-3-267.89Типовой проект 901-3-267.89Типовой проект 901-3-267.89Типовой проект 901-3-267.89Типовой проект 901-3-267.89Типовой проект 901-3-267.89Типовой проект 901-3-267.89Типовой проект 901-3-267.89Типовой проект 901-3-267.89Типовой проект 901-3-267.89

© 2013 Ёшкин Кот :-) Карта сайта