Информационная система
«Ёшкин Кот»

Скачать базу одним архивом
Скачать обновления
История создания базы
Карта сайта

Скачать Типовой проект 901-3-267.89 Альбом 2. Технология производства. Внутренний водопровод и канализация. Эскизные чертежи общих видов. Отопление и вентиляция

Дата актуализации: 10.08.2017

Типовой проект 901-3-267.89

Альбом 2. Технология производства. Внутренний водопровод и канализация. Эскизные чертежи общих видов. Отопление и вентиляция

Обозначение: Типовой проект 901-3-267.89
Обозначение англ: 901-3-267.89
Статус:не определен законодательством
Название рус.:Альбом 2. Технология производства. Внутренний водопровод и канализация. Эскизные чертежи общих видов. Отопление и вентиляция
Дата добавления в базу:01.09.2013
Дата актуализации:05.05.2017
Дата введения:29.07.1986
Оглавление:Чертежи основного комплекта марки ТХ
   Общие данные
   Принципиальная схема обработки воды
   Принципиальная схема приготовления основных реагентов
   Общеувязочный план на отм. - 2.400; - 0.600; 0.000
   Общеувязочный план на отм. 3.600; 4.200. Экспликация помещений
   Отделение барабанных сеток. Планы на отм. 0.000, 3.600, 7.000
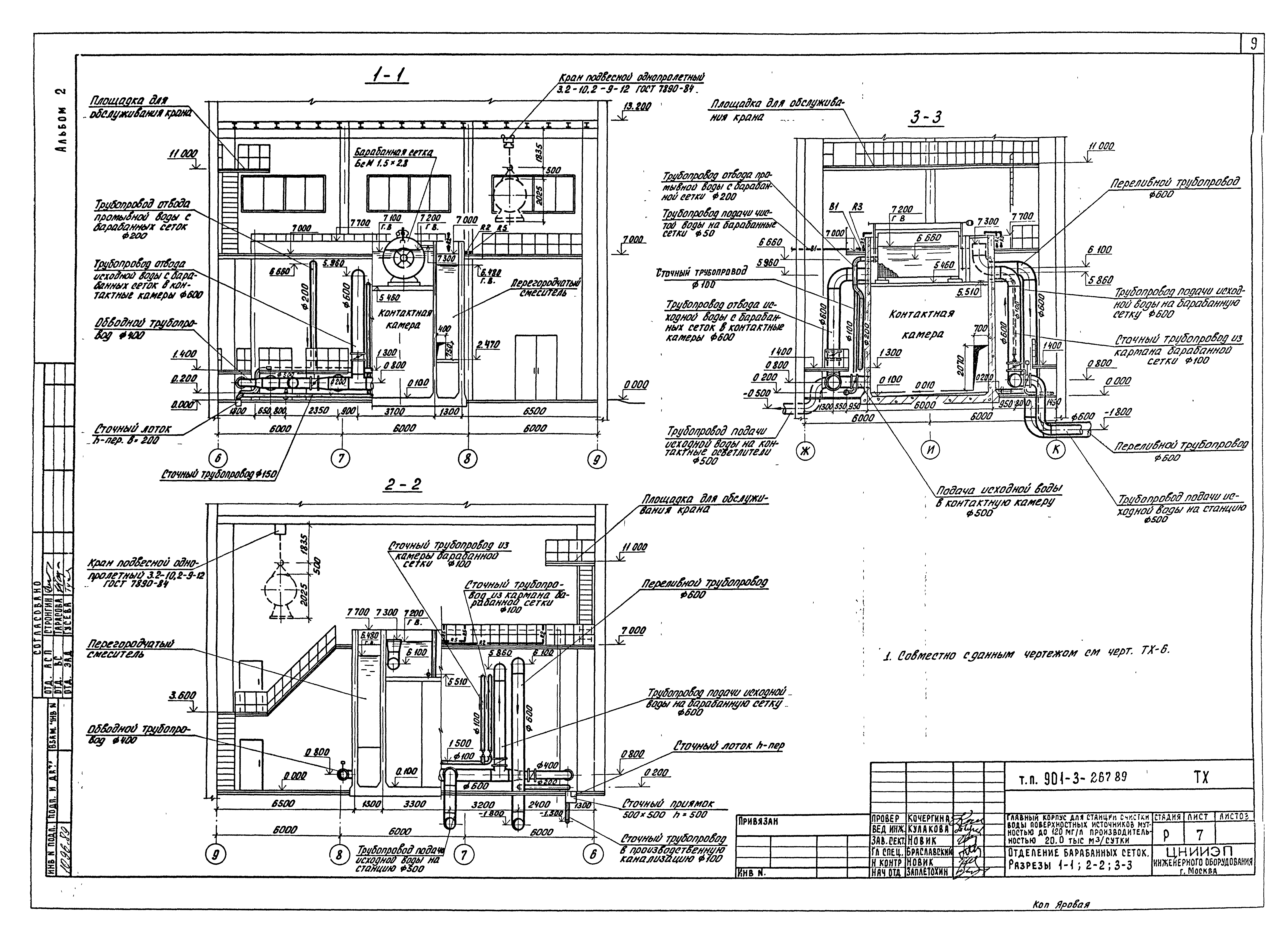
   Отделение барабанных сеток. Разрезы 1-1, 2-2, 3-3
   Отделение барабанных сеток. Схемы трубопроводов В1, В7, К3
   Зал контактных осветлителей. План на отм. - 1.000; 0.000
   Зал контактных осветлителей. План на отм. 3.600
   Зал контактных осветлителей. Разрезы 4-4, 5-5
   Зал контактных осветлителей. Гребенка безгравийной трубчатой распределительной системы
   Зал контактных осветлителей. План на отм. - 1.000 и 0.000 с нанесением пробоотборных трубок. Схема пробоотборного узла
   Зал контактных осветлителей. Схемы трубопроводов В1 и В7
   Зал контактных осветлителей. Схемы трубопроводов В1 и К3
   Отделение коагулянта и полиакриламида. Компрессорная. План на отм. - 1.200; 0.000
   Отделение коагулянта и полиакриламида. Компрессорная. Фрагмент плана на отм. 1.200; 1.800. Разрезы 6-6, 7-7
   Отделение коагулянта и полиакриламида. Компрессорная. Разрезы 8-8, 9-9. сечение А-А
   Отделение коагулянта и полиакриламида. Компрессорная. Схемы трубопроводов R2, R3, К3
   Отделение коагулянта и полиакриламида. Компрессорная. Схемы трубопроводов В1, В7, А0
   Отделение коагулянта и полиакриламида. Компрессорная. Лаборатории. План на отм. 4.200 с расстановкой мебели и оборудования
   Насосная станция II-го подъема. План на отм. - 2.400; - 1.200; 0.000. разрезы 10-10, 11-11
   Насосная станция II-го подъема. Схемы трубопроводов В1, К3, R1
   Механическая мастерская
Чертежи основного комплекта марки ТХН
   Система воздухораспределительная в растворно-хранилищных баках коагулянта
   Система воздухораспределительная в расходных баках полиакриламида
   Система гидросмыва
   Система воздухораспределительная в расходных баках коагулянта
   Поплавок
   Рама лебедки
   Устройство водозаборное сечением 200
   Гребенка безгравийной трубчатой распределительной системы
   Тройник
   Отвод
Чертежи основного комплекта марки ВК
   Общие данные
   Планы на отм. 0.000; 4.200 с разводкой трубопроводов. Схемы В1, Т3, К1, К2
   План кровли. Схемы водостоков К2
Чертежи основного комплекта марки ОВ
   Общие данные
   Планы в осях 1 - 10 на отм. 0.000; 3.600
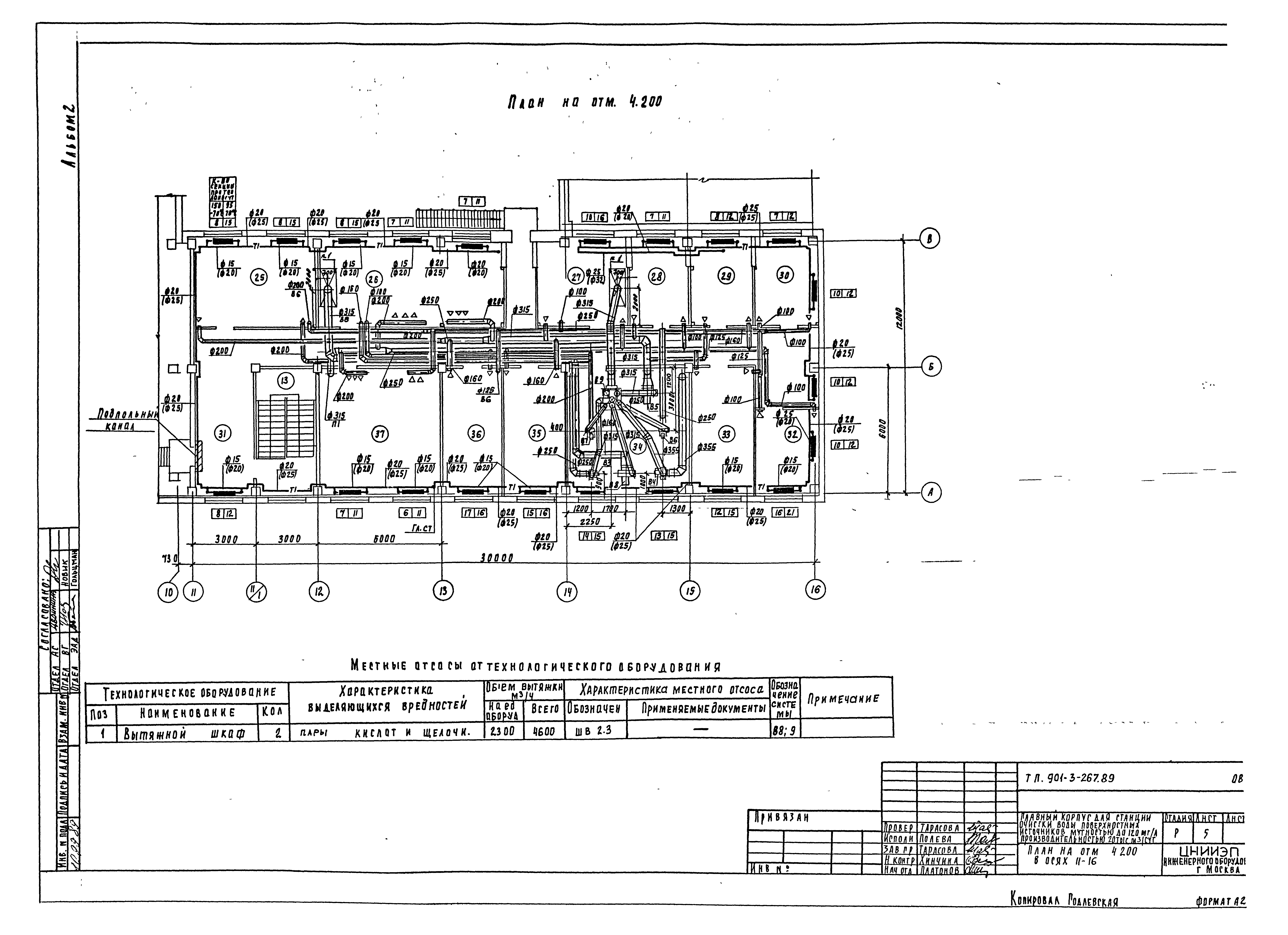
   Планы в осях 11 - 16 на отм. 0.000
   Планы в осях 11 - 16 на отм. 4.200
   Схема системы отопления
   Схема отопления. Схема теплоснабжения калориферов
   Схема отопления. Узел управления
   Схемы вентиляции П1, П2, В1 - В2, В3 - В9, ВЕ1 - ВЕ4, ВЕ5 - ВЕ12, ВЕ13 - ВЕ15, ВЕ17 - ВЕ18
   Установка системы П1. Разрез 1-1. Схема теплоснабжения системы П1. Спецификация
   Установка системы В3 - В9. Разрез 1-1. Установка системы П2. Разрез 2-2. Схема теплоснабжения системы П2
   Спецификация
   Конфузор. Переход
Разработан: ЦНИИЭП иженерного оборудования
Утверждён:29.07.1986 Госгражданстрой (Gosgrazhdanstroy 242)
Расположен в:Техническая документация Строительство Справочные документы Типовые строительные конструкции, изделия и узлы Общероссийский строительный каталог Промышленные предприятия, здания и сооружения Здания и сооружения санитарно-технические Водоснабжение Очистные сооружения Станции очистки воды
Типовой проект 901-3-267.89Типовой проект 901-3-267.89Типовой проект 901-3-267.89Типовой проект 901-3-267.89Типовой проект 901-3-267.89Типовой проект 901-3-267.89Типовой проект 901-3-267.89Типовой проект 901-3-267.89Типовой проект 901-3-267.89Типовой проект 901-3-267.89Типовой проект 901-3-267.89Типовой проект 901-3-267.89Типовой проект 901-3-267.89Типовой проект 901-3-267.89Типовой проект 901-3-267.89Типовой проект 901-3-267.89Типовой проект 901-3-267.89Типовой проект 901-3-267.89Типовой проект 901-3-267.89Типовой проект 901-3-267.89Типовой проект 901-3-267.89Типовой проект 901-3-267.89Типовой проект 901-3-267.89Типовой проект 901-3-267.89Типовой проект 901-3-267.89Типовой проект 901-3-267.89Типовой проект 901-3-267.89Типовой проект 901-3-267.89Типовой проект 901-3-267.89Типовой проект 901-3-267.89Типовой проект 901-3-267.89Типовой проект 901-3-267.89Типовой проект 901-3-267.89Типовой проект 901-3-267.89Типовой проект 901-3-267.89Типовой проект 901-3-267.89Типовой проект 901-3-267.89Типовой проект 901-3-267.89Типовой проект 901-3-267.89Типовой проект 901-3-267.89Типовой проект 901-3-267.89Типовой проект 901-3-267.89Типовой проект 901-3-267.89Типовой проект 901-3-267.89Типовой проект 901-3-267.89Типовой проект 901-3-267.89Типовой проект 901-3-267.89Типовой проект 901-3-267.89Типовой проект 901-3-267.89Типовой проект 901-3-267.89

© 2013 Ёшкин Кот :-) Карта сайта