Информационная система
«Ёшкин Кот»

Скачать базу одним архивом
Скачать обновления
История создания базы
Карта сайта

Скачать Типовой проект 262-21-37 Альбом I. Часть 2. Конструктивные чертежи

Дата актуализации: 10.08.2017

Типовой проект 262-21-37

Альбом I. Часть 2. Конструктивные чертежи

Обозначение: Типовой проект 262-21-37
Обозначение англ: 262-21-37
Статус:не определен законодательством
Название рус.:Альбом I. Часть 2. Конструктивные чертежи
Дата добавления в базу:01.09.2013
Дата актуализации:05.05.2017
Дата введения:06.04.1982
Оглавление:Общие данные
Каркас. Монтажная схема на отм. 3.49
Каркас. Монтажная схема на отм. 6.79; 6.81
Каркас. Монтажная схема на отм. 10.09; 13.39; 16.69
Каркас. Монтажная схема на отм. 19.99; 23.29; 23.59
Каркас. Монтажная схема по оси А
Каркас. Монтажная схема по оси Б
Каркас. Монтажная схема по оси В
Каркас. Разрез по оси Г
Каркас. Монтажная схема по осям 6 (9); 5 (10)
План перекрытия на отм. 3.52 м/о 1 - 7
План перекрытия на отм. 3.52 м/о 8 - 14
План перекрытия на отм. 6.82 м/о 2 - 7
План перекрытия на отм. 6.82 м/о 8 - 13
План перекрытия на отм. 10.12; 13.42; 16.72 м/о 2 - 7
План перекрытия на отм. 10.12; 13.42; 16.72 м/о 8 - 13
План перекрытия на отм. 20.02 м/о 2 - 7
План перекрытия на отм. 20.02 м/о 8 - 18
План перекрытия на отм. 1.42; 23.32
Сечения по перекрытиям 1-1; 3-3; 2-2; 2а-2а; 2б-2б; 6-6; 7-7
Фасад панелей по оси А м/о 2 - 7
Фасад панелей по оси А м/о 8 - 13
Фасад панелей по осям 13 м/о А - В; 9 м/о В - Г
Фасад панелей по оси 6 м/о Г - В; 2 м/о В - А
Фасад панелей по оси В м/о 13 - 9
Фасад панелей по оси В м/о 6 - 2
Фасад панелей по оси Г м/о 9 - 6
Фасады панелей по осям 5, 6, 9, 10, Б м/о 10 - 9 и 6 - 5
Каркас. Узлы 1, 2, 3
Лифт №1. Строительная часть
Лифты №2, 3, 4. Строительная часть
Лестница №1
Лестница №2
Лестницы №1, 2. Узлы
Перекрытие на отм. 20.08; 21.09. Монолитные участки
Перекрытие на отм. 20.08; 21.09. Сечения 1-1 - 9-9
Перекрытие на отм. 20.08; 21.09. Сечения 10-10 - 14-14
Машинное отделение лифтов. Монорельс. Люк
Ведомость перемычек
Деталь навески наличника ИН-1
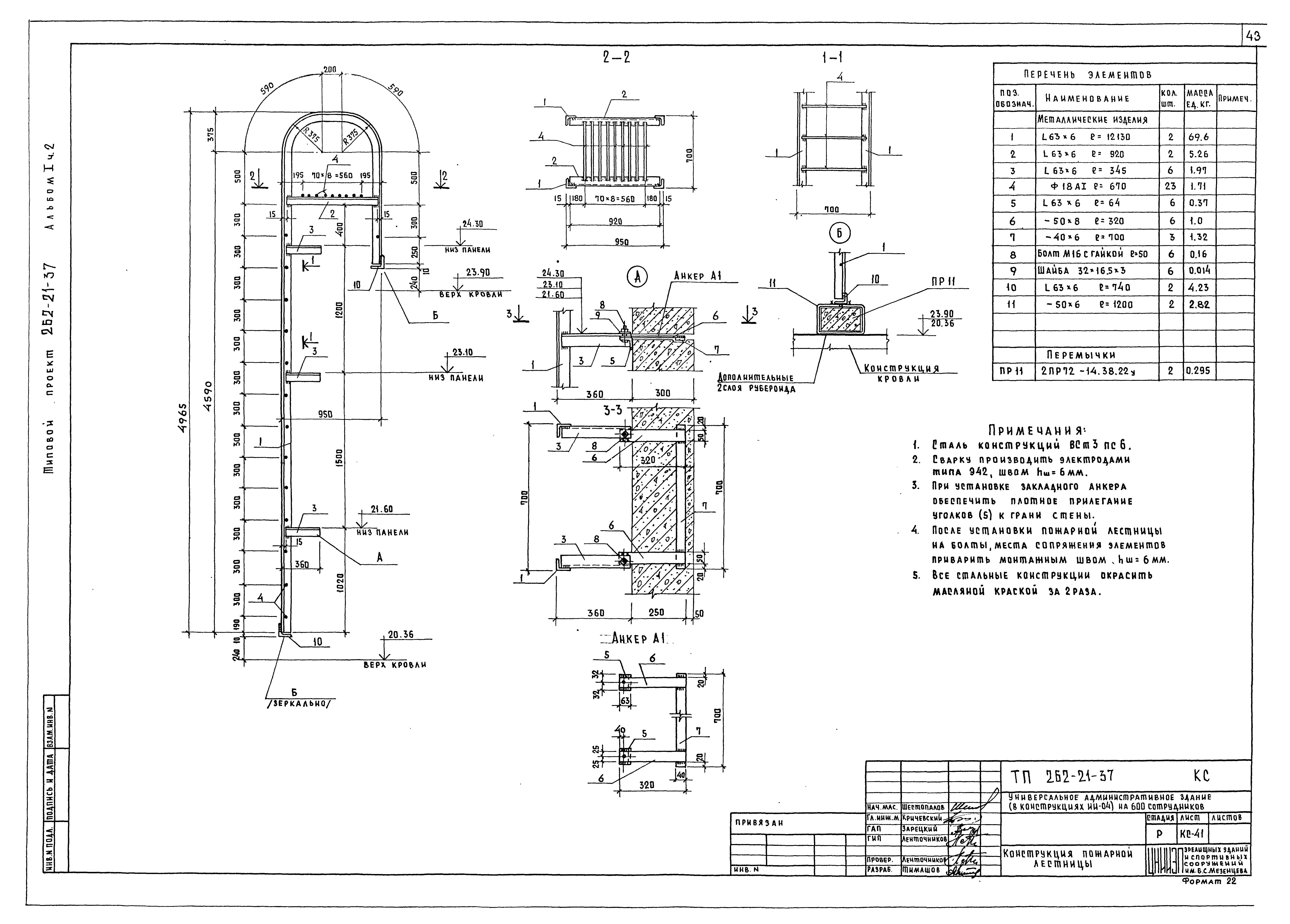
Конструкция пожарной лестницы
Конструкция жалюзийных решеток
Подвесной потолок на отм. 22.79. План. Сечения
Сводная спецификация сборных железобетонных изделий
Выборка соединительных деталей
Сводная спецификация монолитных железобетонных изделий
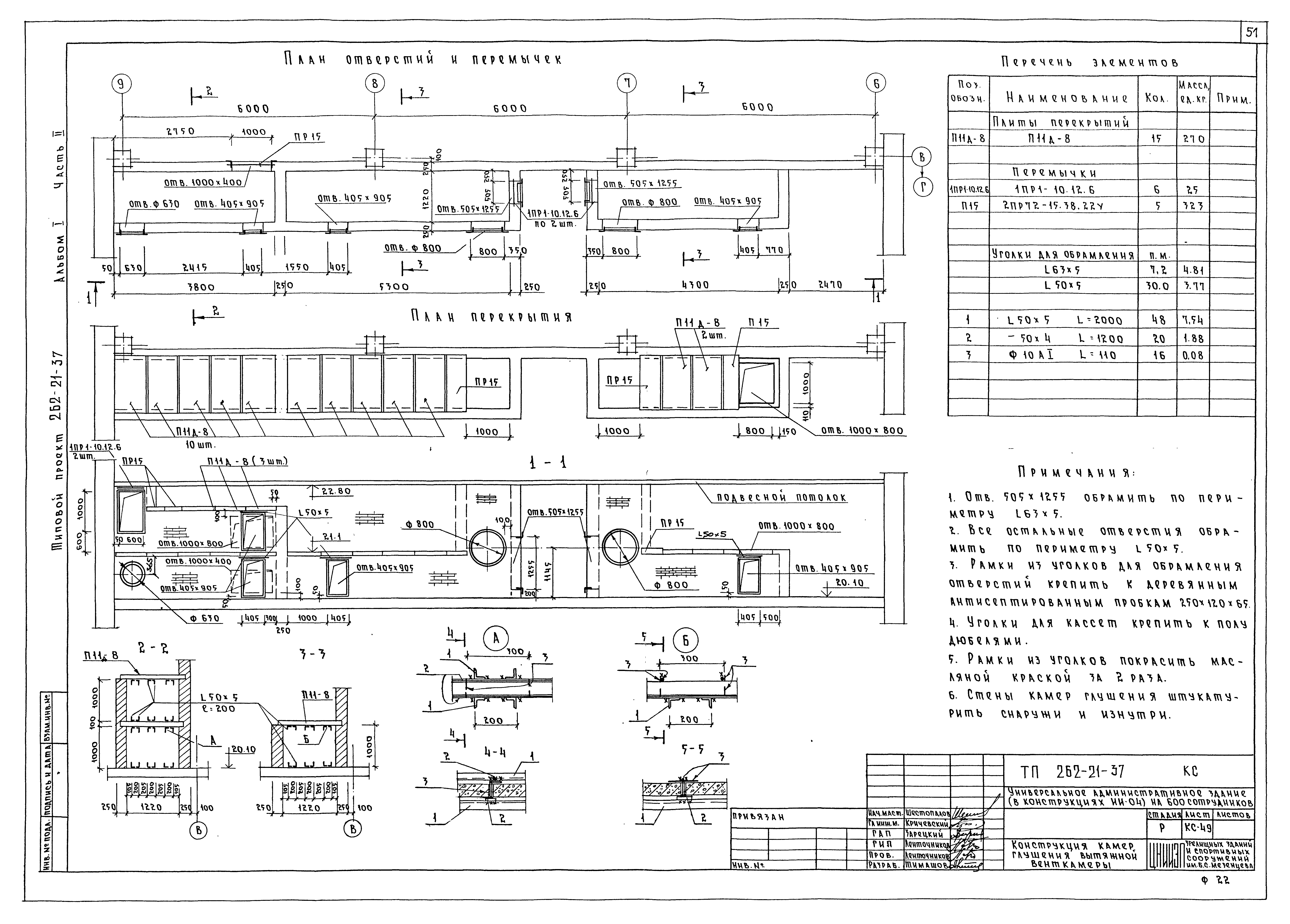
Конструкция камер глушения вытяжной венткамеры
Сводная спецификация стальных изделий
Заглавный лист алюминиевых витражей
Монтажная схема витражей в осях "А - Б" между осями "6 - 9"
Разработан: ЦНИИЭП зрелищных зданий и спортивных сооружений Госгражданстроя
Утверждён:21.02.1980 Госгражданстрой (Gosgrazhdanstroy 64)
Расположен в:Техническая документация Строительство Справочные документы Типовые строительные конструкции, изделия и узлы Общероссийский строительный каталог Общественные здания в городах и поселках городского типа Зрелищные и культурно-просветительские учреждения. Здания для органов управления и общественных организаций Здания для органов управления и общественных организаций Здания для органов управления Защитные сооружения гражданской обороны Типовые проекты защитных сооружений гражданской обороны для жилищно-гражданского строительства Для строительства в городах и поселках городского типа Встроенные помещения, приспосабливаемые под противорадиационные укрытия в общественных зданиях Противорадиационные укрытия в административных зданиях и в зданиях проектных организаций
Типовой проект 262-21-37Типовой проект 262-21-37Типовой проект 262-21-37Типовой проект 262-21-37Типовой проект 262-21-37Типовой проект 262-21-37Типовой проект 262-21-37Типовой проект 262-21-37Типовой проект 262-21-37Типовой проект 262-21-37Типовой проект 262-21-37Типовой проект 262-21-37Типовой проект 262-21-37Типовой проект 262-21-37Типовой проект 262-21-37Типовой проект 262-21-37Типовой проект 262-21-37Типовой проект 262-21-37Типовой проект 262-21-37Типовой проект 262-21-37Типовой проект 262-21-37Типовой проект 262-21-37Типовой проект 262-21-37Типовой проект 262-21-37Типовой проект 262-21-37Типовой проект 262-21-37Типовой проект 262-21-37Типовой проект 262-21-37Типовой проект 262-21-37Типовой проект 262-21-37Типовой проект 262-21-37Типовой проект 262-21-37Типовой проект 262-21-37Типовой проект 262-21-37Типовой проект 262-21-37Типовой проект 262-21-37Типовой проект 262-21-37Типовой проект 262-21-37Типовой проект 262-21-37Типовой проект 262-21-37Типовой проект 262-21-37Типовой проект 262-21-37Типовой проект 262-21-37Типовой проект 262-21-37Типовой проект 262-21-37Типовой проект 262-21-37Типовой проект 262-21-37Типовой проект 262-21-37Типовой проект 262-21-37Типовой проект 262-21-37Типовой проект 262-21-37Типовой проект 262-21-37Типовой проект 262-21-37Типовой проект 262-21-37Типовой проект 262-21-37

© 2013 Ёшкин Кот :-) Карта сайта