| ||||||||||||||||||||||||
Скачать Серия ПК-01-125 Выпуск II. Шаг ферм 12 м. Чертежи КМДата актуализации: 10.08.2017
|
| Обозначение: | Серия ПК-01-125 |
| Обозначение англ: | Series ПК-01-125 |
| Статус: | не действует |
| Название рус.: | Выпуск II. Шаг ферм 12 м. Чертежи КМ |
| Дата добавления в базу: | 01.09.2013 |
| Дата актуализации: | 05.05.2017 |
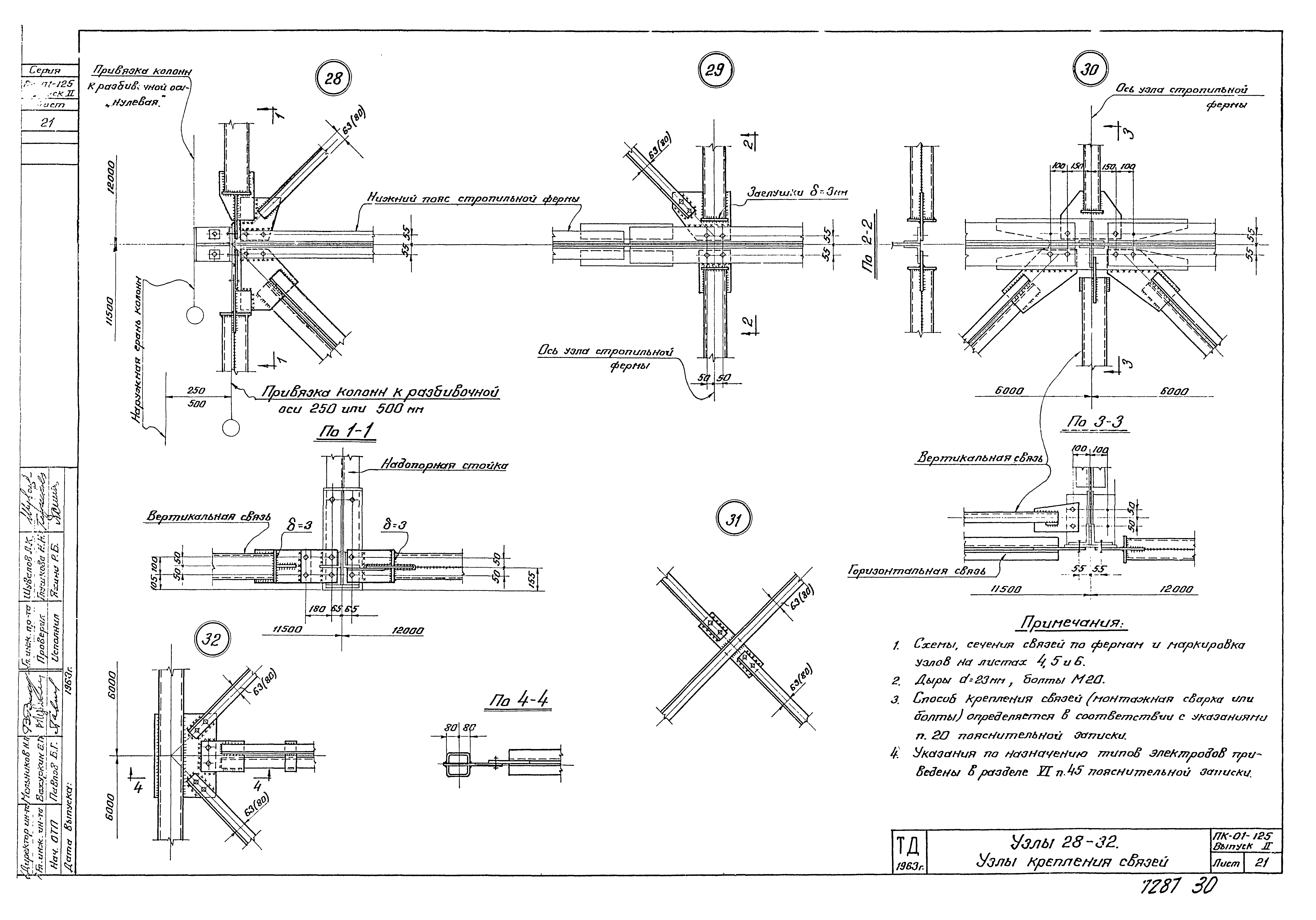
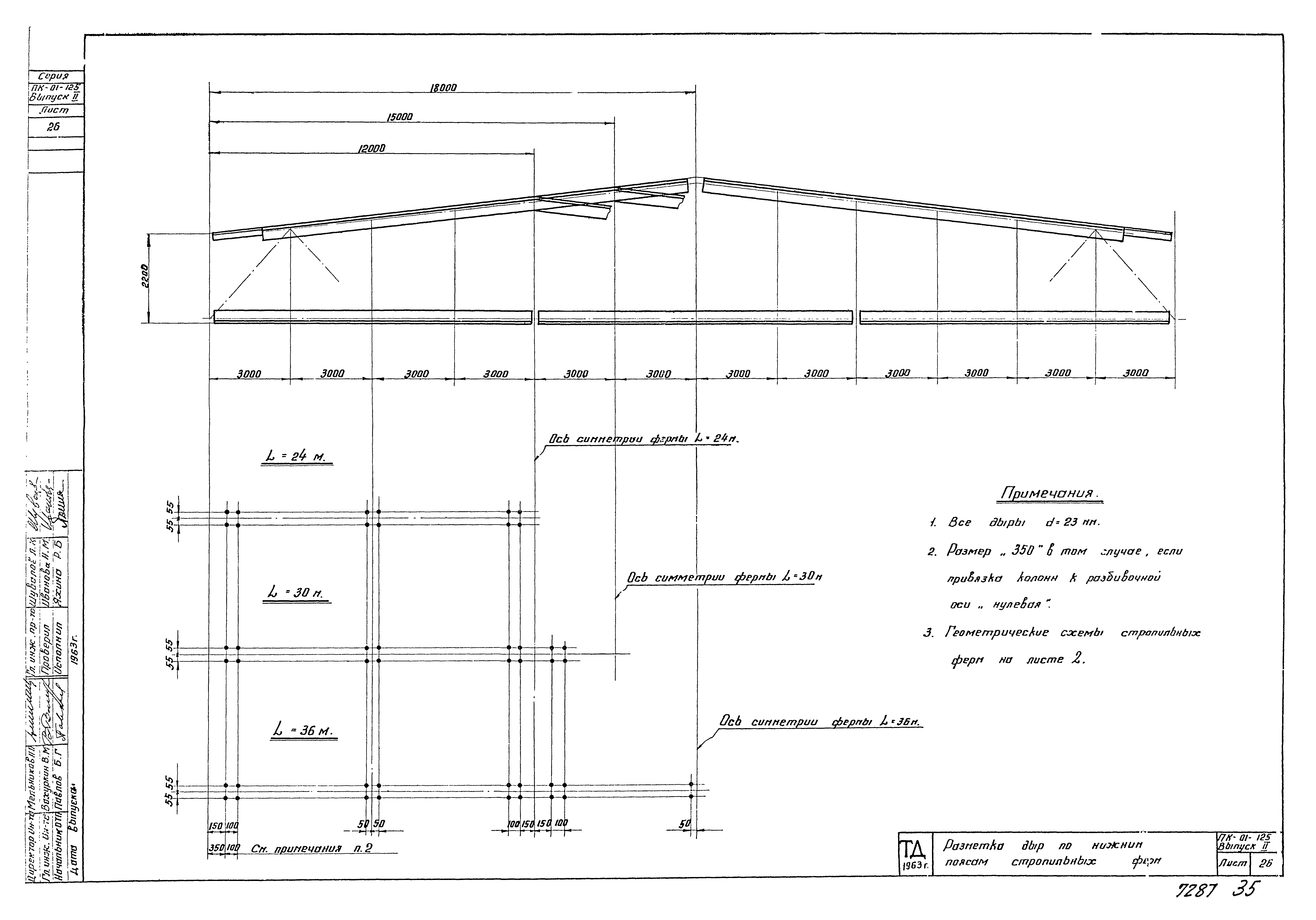
| Оглавление: | Пояснительная записка Эквивалентные равномерно-распределенные расчетные нагрузки Схемы стропильных ферм с маркировкой узлов заводского изготовления. Разбивка стропильных ферм на отправочные марки и маркировка узлов в местах монтажных стыков Схемы связей по верхним поясам стропильных ферм. Фермы двускатные с фонарем и без фонаря Пример решения схемы связей I-го типа по нижним поясам стропильных ферм для зданий с обычным и тяжелым режимами работы при количестве пролетов в температурном отсеке до 3-х включительно Пример решения схемы связей I-го типа по нижним поясам стропильных ферм для зданий с обычным режимом работы при количестве пролетов в температурном отсеке более 3-х Пример решения схемы связей I-го типа по нижним поясам стропильных ферм для зданий с тяжелым режимом работы при количестве пролетов в температурном отсеке более 3-х Схемы расположения растяжек по нижним поясам стропильных ферм для зданий с тяжелым режимом работы Схемы связей II-го типа по нижним поясам стропильных ферм для зданий с обычным режимом работы Сортамент двускатных стропильным ферм пролетом 24 м с поясами из низколегированной стали с расчетным сопротивлением R = 2900 кг/кв. см и решеткой из стали марки "Сталь 3" Сортамент двускатных стропильным ферм пролетом 30 м с поясами из низколегированной стали с расчетным сопротивлением R = 2900 кг/кв. см и решеткой из стали марки "Сталь 3" Сортамент двускатных стропильным ферм пролетом 36 м с поясами из низколегированной стали с расчетным сопротивлением R = 2900 кг/кв. см и решеткой из стали марки "Сталь 3" Сортамент двускатных стропильным ферм пролетом 24 м из стали марки "Сталь 3" Сортамент двускатных стропильным ферм пролетом 30 м из стали марки "Сталь 3" Сортамент двускатных стропильным ферм пролетом 36 м из стали марки "Сталь 3" Сортамент надопорных стоек Узлы стропильных ферм заводского изготовления. Узлы 1 - 7 Узлы стропильных ферм в местах монтажных стыков. Узлы 8 - 13 Узлы крепления связей. Узлы 14 - 17 Узлы крепления связей. Узлы 18 - 22 Узлы крепления связей. Узлы 23 - 27 Узлы крепления связей. Узлы 28 - 32 Узлы крепления связей. Узлы 33 - 37 Маркировка узлов опирания стропильных ферм на колонны. Узлы опирания стропильных ферм. Узлы 39, 41, 43 Узлы опирания стропильных ферм. Узлы 40, 42, 44 Разметка дыр по верхним поясам стропильных ферм Разметка дыр по нижним поясам стропильных ферм Раскладка крупнопанельных плит и детали их приварки к поясам стропильных ферм Сортамент закладных деталей в железобетонных колоннах для опирания стропильных ферм Указания по расчету монтажных и заводских стыков поясных уголков в узлах ферм Весовые показатели стропильных ферм Усилия в стержнях стропильных ферм от единичных нагрузок Несущая способность стержней стропильных ферм. Пояса. Сталь марки "Сталь 3" Несущая способность стержней стропильных ферм. Пояса. Сталь низколегированная с расчетным сопротивлением R = 2900 кг/кв. см Несущая способность стержней стропильных ферм. Раскосы. Сталь марки "Сталь 3" Несущая способность стержней стропильных ферм. Стойки. Сталь марки "Сталь 3" Спецификация стали стропильных ферм из стали марки "Сталь 3" Спецификация стали стропильных ферм с поясами из низколегированной стали с расчетным сопротивлением R = 2900 кг/кв. см и решеткой из стали марки "Сталь 3" Вариант решения схем связей I-го и II-го типов по нижним поясам стропильных ферм вдоль крайних рядов колонн при наличии стоек продольного фахверка Узлы крепления связей. Узлы 45 - 49 |
| Разработан: | Проектстальконструкция Госстроя СССР |
| Утверждён: | 25.03.1964 Госстрой СССР (Государственный комитет Совета Министров СССР по делам строительства) (USSR Gosstroy 41) |
| Расположен в: |























































