Информационная система
«Ёшкин Кот»

Скачать базу одним архивом
Скачать обновления
История создания базы
Карта сайта

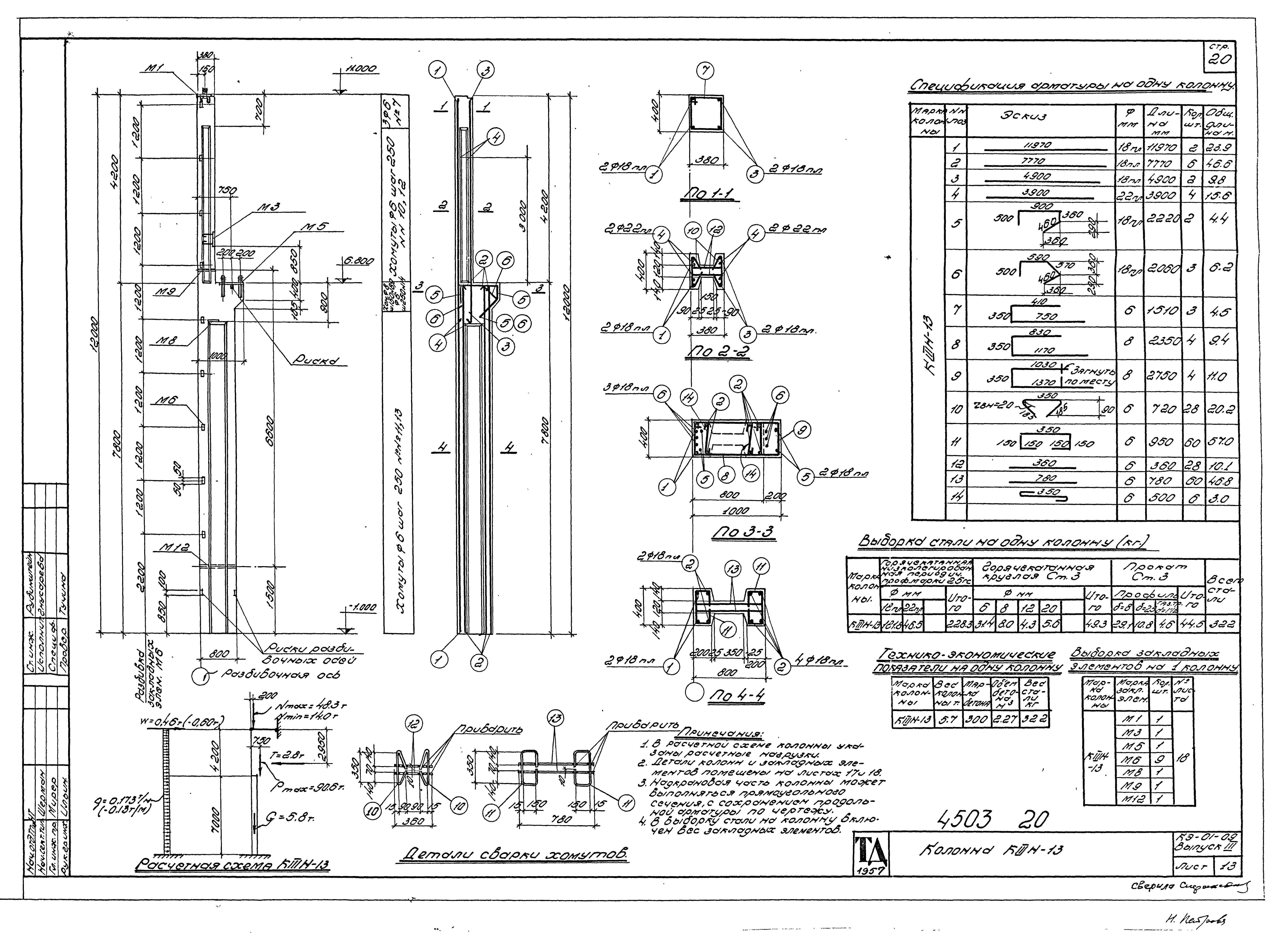
Скачать Серия КЭ-01-09 Выпуск III. Сборные железобетонные колонны одноэтажных производственных зданий с крановыми пролетами при шаге колонн 6 м. Рабочие чертежи

Дата актуализации: 10.08.2017

Серия КЭ-01-09

Выпуск III. Сборные железобетонные колонны одноэтажных производственных зданий с крановыми пролетами при шаге колонн 6 м. Рабочие чертежи

Обозначение: Серия КЭ-01-09
Обозначение англ: Series КЭ-01-09
Статус:не действует
Название рус.:Выпуск III. Сборные железобетонные колонны одноэтажных производственных зданий с крановыми пролетами при шаге колонн 6 м. Рабочие чертежи
Дата добавления в базу:01.09.2013
Дата актуализации:05.05.2017
Оглавление:Пояснительная записка
Колонны
Детали колонн
Закладные элементы
Ключ к вертикальным связям по колоннам. Примерный схематический план цеха с размещением вертикальных связей
Вертикальные связи по колоннам
Ключ к железобетонным конструкциям
Нагрузки на фундаменты
Разработан: Промстройпроект
Утверждён:07.03.1958 Госстрой СССР (Государственный комитет Совета Министров СССР по делам строительства) (USSR Gosstroy 82)
Расположен в:Техническая документация Строительство Справочные документы Типовые строительные конструкции, изделия и узлы Общероссийский строительный каталог Строительные конструкции, изделия и узлы зданий и сооружений для всех видов строительства Конструкции, изделия и узлы зданий Несущие конструкции одноэтажных зданий Колонны Железобетонные
Серия КЭ-01-09Серия КЭ-01-09Серия КЭ-01-09Серия КЭ-01-09Серия КЭ-01-09Серия КЭ-01-09Серия КЭ-01-09Серия КЭ-01-09Серия КЭ-01-09Серия КЭ-01-09Серия КЭ-01-09Серия КЭ-01-09Серия КЭ-01-09Серия КЭ-01-09Серия КЭ-01-09Серия КЭ-01-09Серия КЭ-01-09Серия КЭ-01-09Серия КЭ-01-09Серия КЭ-01-09Серия КЭ-01-09Серия КЭ-01-09Серия КЭ-01-09Серия КЭ-01-09Серия КЭ-01-09Серия КЭ-01-09Серия КЭ-01-09Серия КЭ-01-09Серия КЭ-01-09Серия КЭ-01-09Серия КЭ-01-09Серия КЭ-01-09

© 2013 Ёшкин Кот :-) Карта сайта