Скачать Типовой проект 407-3-318м Альбом II. Архитектурно-строительные решения, конструкции железобетонные, металлические (вариант с монолитным цокольным перекрытием)Дата актуализации: 10.08.2017 Типовой проект 407-3-318м
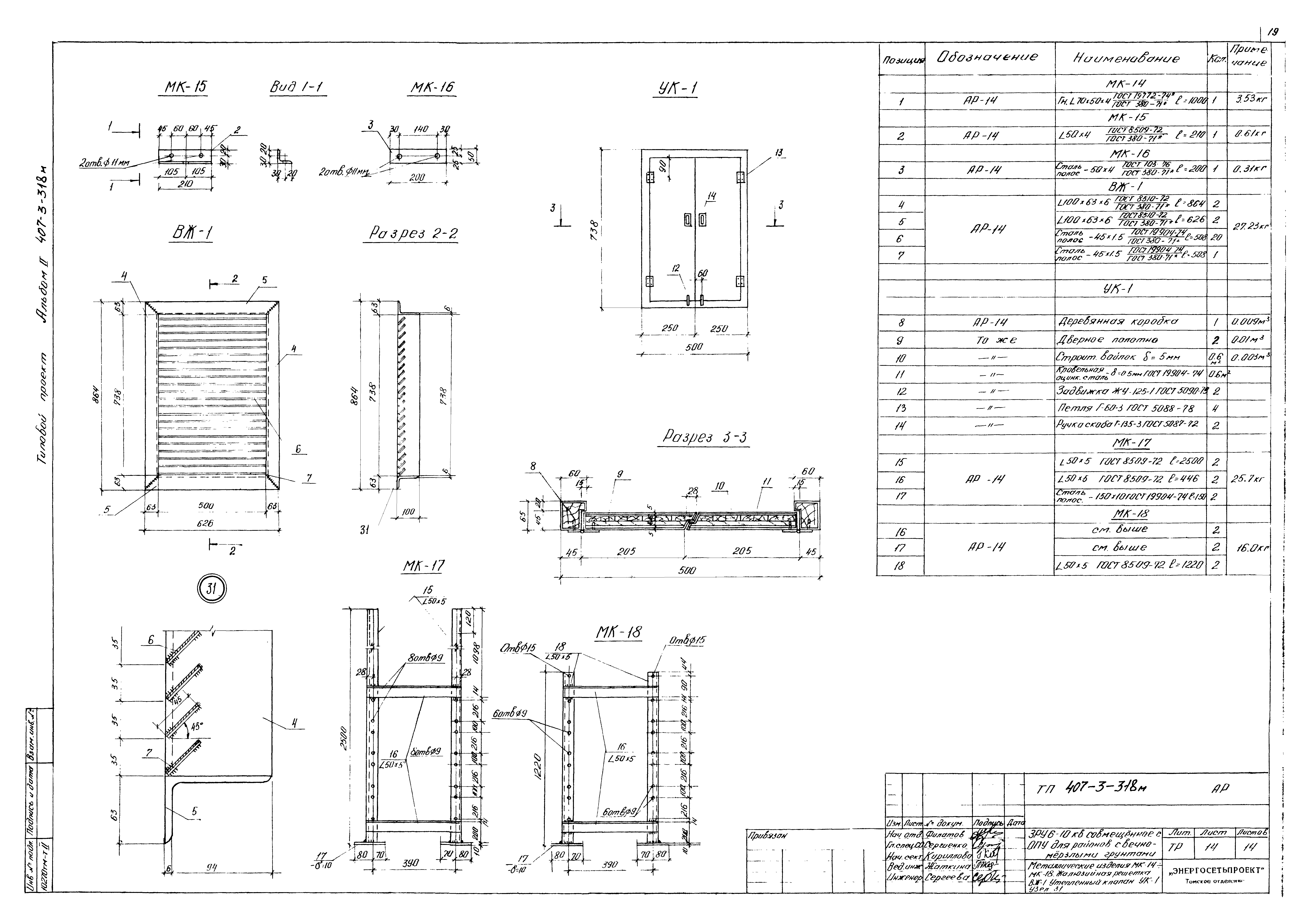
Альбом II. Архитектурно-строительные решения, конструкции железобетонные, металлические (вариант с монолитным цокольным перекрытием)Обозначение: | Типовой проект 407-3-318м | Обозначение англ: | 407-3-318м | Статус: | не действует | Название рус.: | Альбом II. Архитектурно-строительные решения, конструкции железобетонные, металлические (вариант с монолитным цокольным перекрытием) | Дата добавления в базу: | 01.10.2014 | Дата актуализации: | 05.05.2017 | Дата введения: | 01.01.1988 | Оглавление: | Содержание альбома Пояснительная записка Архитектурно-строительные решения Общие данные План на отм. 0.000. Разрезы 1-1, 2-2 Фасады 1 - 5; 5 - 1; А - Б; Б - А Архитектурные узлы 1 - 5 Архитектурные узлы 7 - 12 Маркировочный план металлоконструкций пола. Разрезы. Узлы 13, 14 Металлоконструкции пола. Разрезы. Сечения. Узлы 15, 16 Монтажная схема перегородок. Разрезы. Узел 17 Перегородки ППК-1 - ППК-4 Перегородки ППК-5 - ППК-7. Узлы 18 - 23 Перегородки. Узлы 24 - 30 План полов. План кровли. Экспликация кровли Металлические изделия МК-1 - МК-13 Металлические изделия МК-14 - МК-18. Жалюзийная решетка ВЖ-1. Утепленный клапан УК-1. Узел 31 Конструкции железобетонные Общие данные Маркировочная схема свай. Опалубка цокольного перекрытия РКм. Узлы 1 - 3 Армирование цокольного монолитного перекрытия РКм Армирование цокольного монолитного перекрытия РКм. КР-1 - КР-5; С-1 - С-3; М-1 - М-3 Армирование цокольного монолитного перекрытия РКм. Спецификации Свая СМТ7-25а. Виды 1-1, 2-2 Конструкции металлические Общие данные Маркировочные схемы металлических элементов каркаса цокольного перекрытия. Виды 1-1 - 3-3 Вид 4-4. Узлы 1 - 3 Узлы 4 - 7 Маркировочные схемы стеновых панелей о осям А, Б, 1, 5 Узлы 9 - 18 Маркировочная схема кровельных панелей. Узлы 19 - 22 Металлические изделия М1 - М22 Маркировочные схемы лестниц у осей 1, А. Планы фундаментов лестниц у осей 1, А. Виды 1-1 - 4-4 Узлы 23 - 27 Геометрические размеры панелей | Разработан: | Томское отделение Энергосетьпроекта
| Утверждён: | 04.08.1980 Минэнерго СССР (USSR Minenergo 50)
| Расположен в: |
|
                                    
|