Информационная система
«Ёшкин Кот»

Скачать базу одним архивом
Скачать обновления
История создания базы
Карта сайта

Скачать Серия ОФ-01-14 Выпуск 15. Рабочие чертежи фундамента под молот паровоздушный штамповочный модели М211 с весом падающих частей 1000 кг

Дата актуализации: 10.08.2017

Серия ОФ-01-14

Выпуск 15. Рабочие чертежи фундамента под молот паровоздушный штамповочный модели М211 с весом падающих частей 1000 кг

Обозначение: Серия ОФ-01-14
Обозначение англ: Series ОФ-01-14
Статус:не действует
Название рус.:Выпуск 15. Рабочие чертежи фундамента под молот паровоздушный штамповочный модели М211 с весом падающих частей 1000 кг
Дата добавления в базу:01.09.2013
Дата актуализации:05.05.2017
Дата введения:01.10.1989
Оглавление:Пояснительная записка
   I. Общая часть
   II. Расчет и армирование
   III. Указание по производству работ
Общий вид фундамента. План и разрезы
Общий вид фундамента. Узлы
Подфундаментный короб. Опалубка
Подфундаментный короб. Армирование
Фундаментный блок. Опалубка
Фундаментный блок. Армирование
Спецификация арматуры на подфундаментный короб
Спецификация арматуры на фундаментный блок
Эскизы арматурных изделий на подфундаментный короб
Эскизы арматурных изделий на фундаментный блок
Закладные детали короба и блока. Лестница Л1
Перекрытие подфундаментного короба. Монтажная схема
Перекрытие подфундаментного короба. Плиты и узлы
Перекрытие подфундаментного короба. Спецификация стали
Пружинный виброизолятор "ВП". Общий вид
Пружинный виброизолятор. Верхняя крышка
Пружинный виброизолятор. Нижняя крышка
Пружинный виброизолятор. Внешняя и внутренняя пружины
Резиновый виброизолятор "ВР"
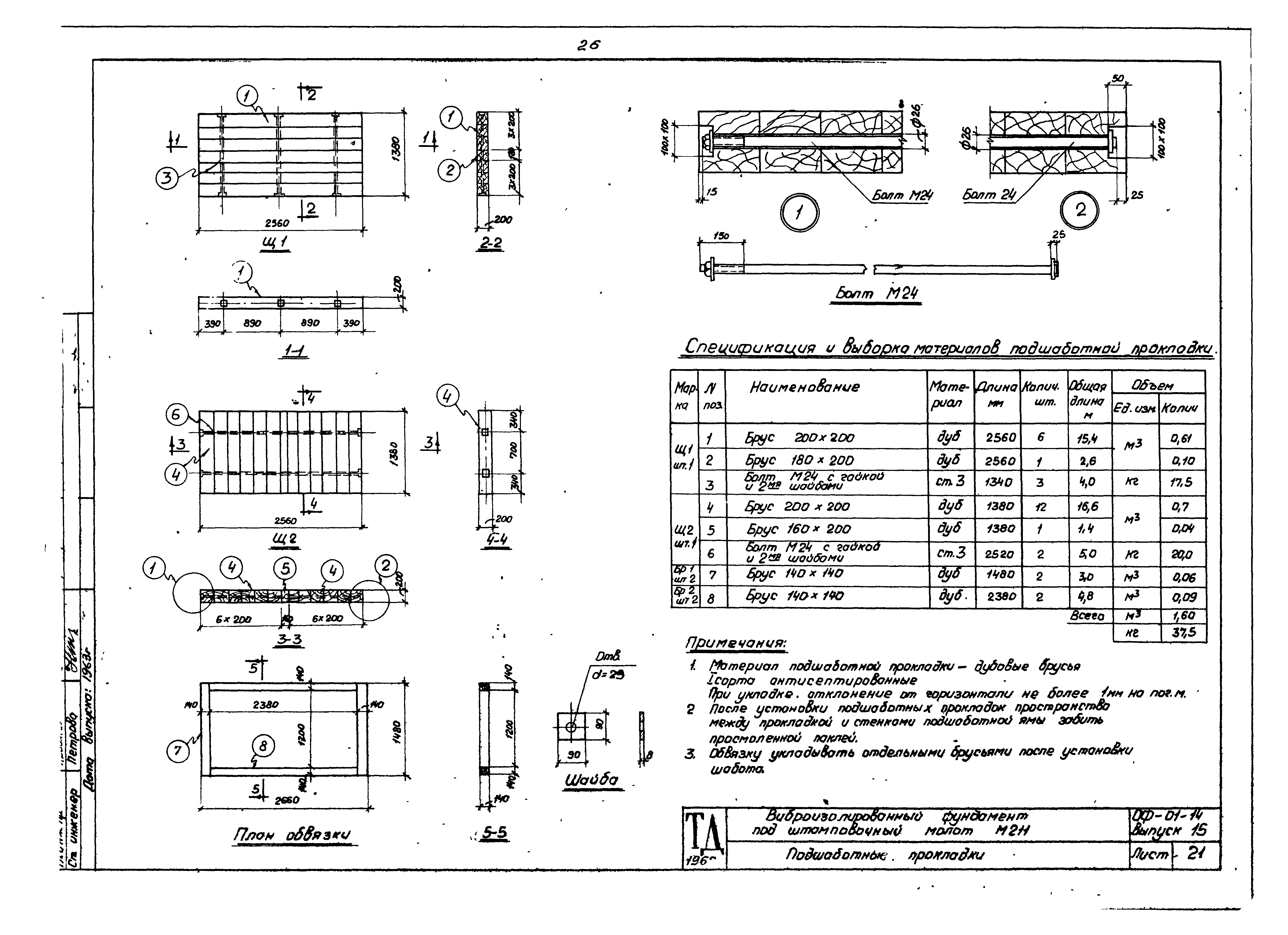
Подшаботные прокладки
Расход материалов и выборка стали
Разработан: Гипротис
ЦНИИСК АСиА СССР
ВНИИметмаш
Утверждён:01.10.1963 Госстрой СССР (Государственный комитет Совета Министров СССР по делам строительства) (USSR Gosstroy )
Расположен в:Техническая документация Строительство Справочные документы Типовые строительные конструкции, изделия и узлы Общероссийский строительный каталог Строительные конструкции, изделия и узлы зданий и сооружений для всех видов строительства Конструкции и изделия сооружений и оборудования зданий Надземные сооружения Разные сооружения
Серия ОФ-01-14Серия ОФ-01-14Серия ОФ-01-14Серия ОФ-01-14Серия ОФ-01-14Серия ОФ-01-14Серия ОФ-01-14Серия ОФ-01-14Серия ОФ-01-14Серия ОФ-01-14Серия ОФ-01-14Серия ОФ-01-14Серия ОФ-01-14Серия ОФ-01-14Серия ОФ-01-14Серия ОФ-01-14Серия ОФ-01-14Серия ОФ-01-14Серия ОФ-01-14Серия ОФ-01-14Серия ОФ-01-14Серия ОФ-01-14Серия ОФ-01-14Серия ОФ-01-14Серия ОФ-01-14Серия ОФ-01-14Серия ОФ-01-14Серия ОФ-01-14Серия ОФ-01-14

© 2013 Ёшкин Кот :-) Карта сайта