Информационная система
«Ёшкин Кот»

Скачать базу одним архивом
Скачать обновления
История создания базы
Карта сайта

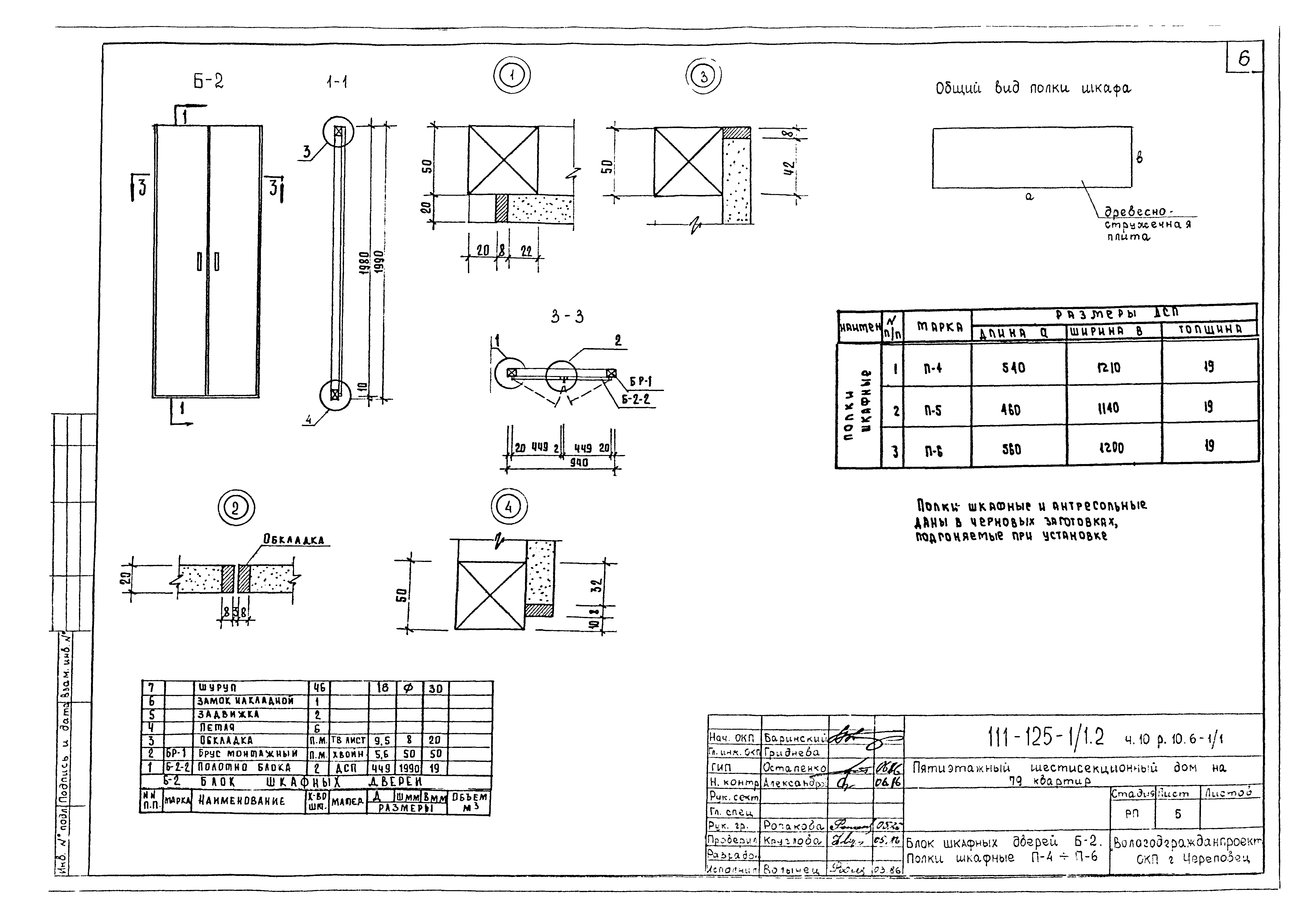
Скачать Типовой проект 111-125-1/1.2 Часть 10. Раздел 10.6-1/1. Изделия заводского изготовления. Деревянные изделия

Дата актуализации: 10.08.2017

Типовой проект 111-125-1/1.2

Часть 10. Раздел 10.6-1/1. Изделия заводского изготовления. Деревянные изделия

Обозначение: Типовой проект 111-125-1/1.2
Обозначение англ: 111-125-1/1.2
Статус:не действует
Название рус.:Часть 10. Раздел 10.6-1/1. Изделия заводского изготовления. Деревянные изделия
Дата добавления в базу:01.09.2013
Дата актуализации:05.05.2017
Оглавление:Общие данные
Тамбурные щиты. Фрамужный щит
Входной щит
Детали встроенных шкафов. Погонажные изделия. Дверца ревизии
Блок шкафных дверей. Полки шкафные
Блок антресольных дверей
Встроенные шкафы, щиты стенки
Подоконные доски
Крышка люка на крышу
Фрамуга для продуха в цокольных панелях
Люк лаза на крышу
Разработан: Вологодгражданпроект
Утверждён:01.01.1986 Вологодгражданпроект
Расположен в:Техническая документация Строительство Справочные документы Типовые строительные конструкции, изделия и узлы Общероссийский строительный каталог Жилые здания для строительства в сельской местности Жилые дома панельные Серия 125
Типовой проект 111-125-1/1.2Типовой проект 111-125-1/1.2Типовой проект 111-125-1/1.2Типовой проект 111-125-1/1.2Типовой проект 111-125-1/1.2Типовой проект 111-125-1/1.2Типовой проект 111-125-1/1.2Типовой проект 111-125-1/1.2Типовой проект 111-125-1/1.2Типовой проект 111-125-1/1.2Типовой проект 111-125-1/1.2Типовой проект 111-125-1/1.2Типовой проект 111-125-1/1.2Типовой проект 111-125-1/1.2

© 2013 Ёшкин Кот :-) Карта сайта