Информационная система
«Ёшкин Кот»

Скачать базу одним архивом
Скачать обновления
История создания базы
Карта сайта

Скачать Типовой проект Серия 125 Часть 9. Раздел 9-36. Узлы и детали. Монтажные узлы и детали

Дата актуализации: 10.08.2017

Типовой проект Серия 125

Часть 9. Раздел 9-36. Узлы и детали. Монтажные узлы и детали

Обозначение: Типовой проект Серия 125
Обозначение англ: Серия 125
Статус:действует
Название рус.:Часть 9. Раздел 9-36. Узлы и детали. Монтажные узлы и детали
Дата добавления в базу:01.09.2013
Дата актуализации:05.05.2017
Оглавление:Содержание
Пояснительная записка
Герметизация стыков
Рядовой стык панелей наружных и внутренних стен. Узел 1а, 1б
Стыки панелей наружных и внутренних стен. Узлы 2а - 5а
Стыки панелей наружных и внутренних стен с перекрытиями. Узлы 5б, 6
Стыки панелей наружных стен. Узлы 7 - 9
Крепление панелей перекрытия с наружными стенами и между собой. Узлы 11, 12, 13
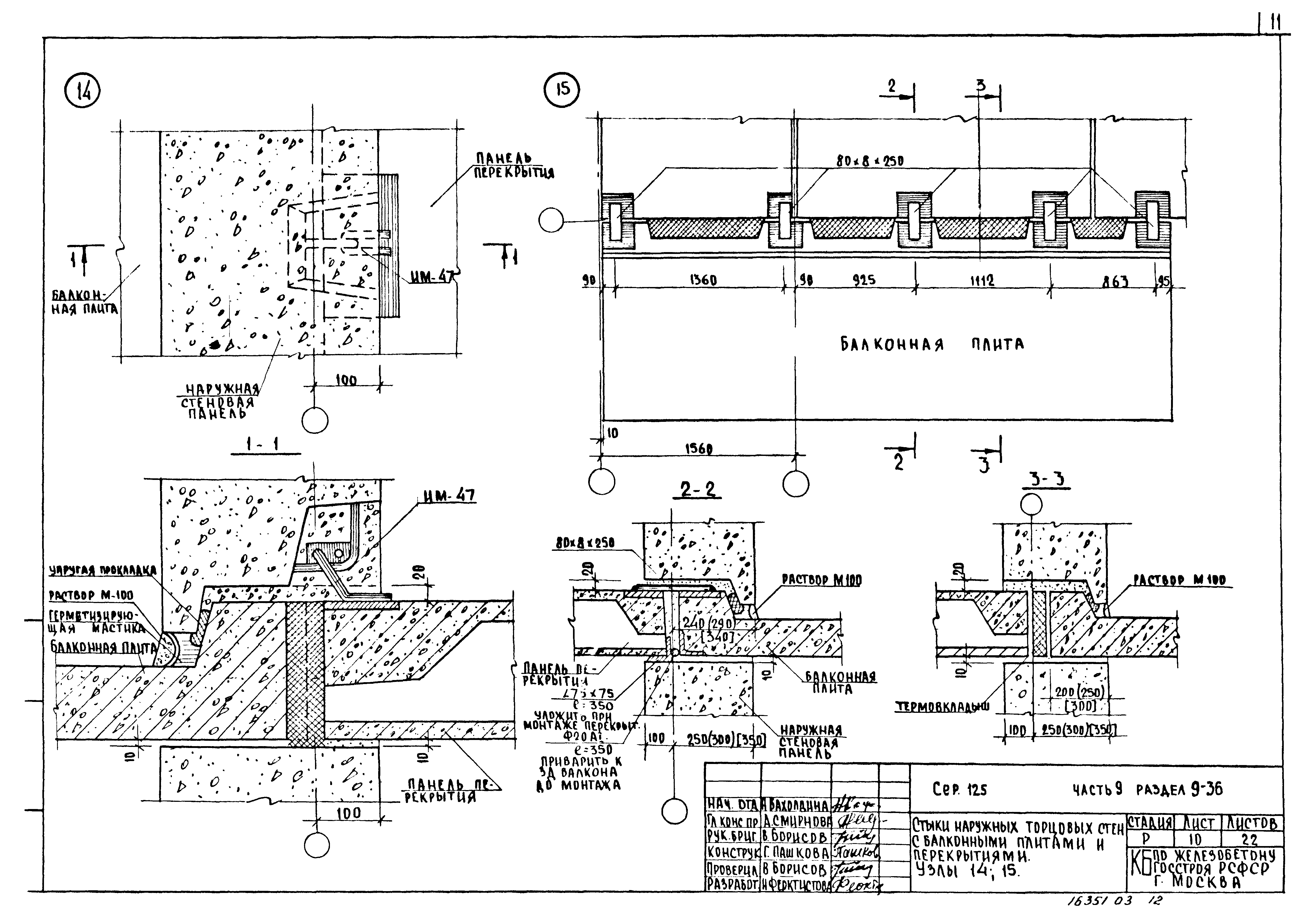
Стыки наружных торцовых стен с балконными плитами и перекрытиями. Узлы 14, 15
Стыки торцовых наружных стен с панелями перекрытия. Узел 16
Стыки торцовых наружных стен с панелями перекрытия. Узлы 17 - 19
Стыки сопряжения внутренних стеновых панелей между собой. Крепление ограждения лоджий. Узлы 20 - 23
Стыки сопряжения прижимных камней между собой и панелями тепловой крыши. Узлы 24, 25
Стыки сопряжения прижимных камней между собой и панелями крыши. Узлы 26 - 29
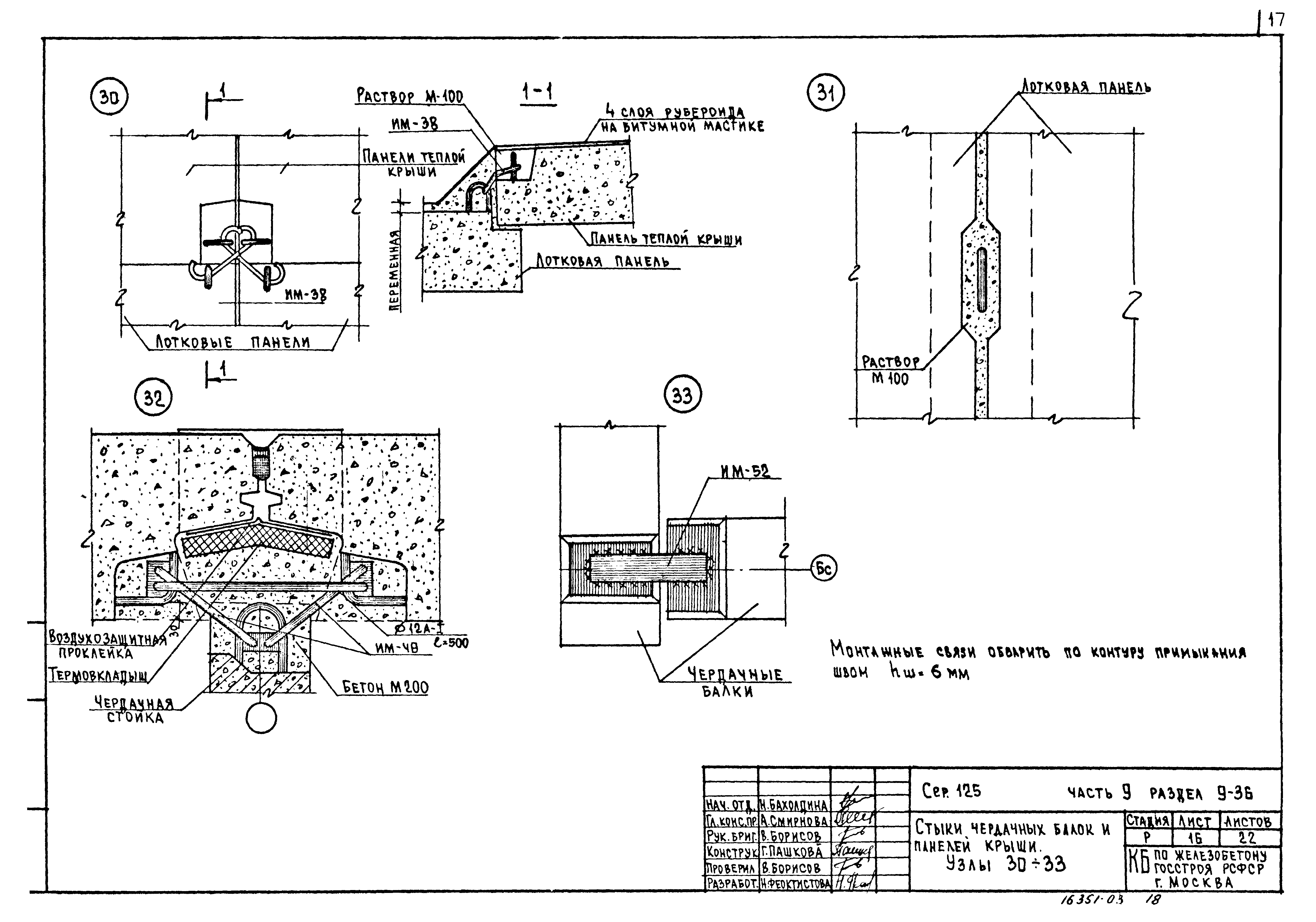
Стыки чердачных балок и панелей крыши. Узлы 30 - 33
Узлы крепления ограждения балконов и элементов входов. Узлы 34 - 37; 39
Стык стойки теплой крыши с панелями перекрытия. Схема установки вытяжной шахты. Узел 38
Планы лестничной клетки на 9 этаже на отм. 25.120
План машинного помещения. План перекрытия лестничной клетки на отм. 25.120. План перекрытия машинного отделения на отм. 26.130
Разрезы 1-1 - 4-4 по машинному помещению
Разрез по лифтовой шахте
Разработан: КБ по железобетону Госстроя РСФСР
Утверждён:19.12.1978 Госстрой РСФСР (Russian Federation Gosstroy 8-23)
Расположен в:Техническая документация Строительство Справочные документы Типовые строительные конструкции, изделия и узлы Общероссийский строительный каталог Жилые здания для строительства в городах и поселках городского типа Обычные условия Общежития Серия 125 Жилые дома панельные Серия 125 Жилые здания для строительства в сельской местности Жилые дома панельные Серия 125
Типовой проект Серия 125Типовой проект Серия 125Типовой проект Серия 125Типовой проект Серия 125Типовой проект Серия 125Типовой проект Серия 125Типовой проект Серия 125Типовой проект Серия 125Типовой проект Серия 125Типовой проект Серия 125Типовой проект Серия 125Типовой проект Серия 125Типовой проект Серия 125Типовой проект Серия 125Типовой проект Серия 125Типовой проект Серия 125Типовой проект Серия 125Типовой проект Серия 125Типовой проект Серия 125Типовой проект Серия 125Типовой проект Серия 125Типовой проект Серия 125Типовой проект Серия 125Типовой проект Серия 125

© 2013 Ёшкин Кот :-) Карта сайта