Информационная система
«Ёшкин Кот»

Скачать базу одним архивом
Скачать обновления
История создания базы
Карта сайта

Скачать Типовой проект Серия 86 Часть 10. Раздел 10.7-1. Изделия заводского изготовления. Мусоропровод МП1

Дата актуализации: 10.08.2017

Типовой проект Серия 86

Часть 10. Раздел 10.7-1. Изделия заводского изготовления. Мусоропровод МП1

Обозначение: Типовой проект Серия 86
Обозначение англ: Серия 86
Статус:действует
Название рус.:Часть 10. Раздел 10.7-1. Изделия заводского изготовления. Мусоропровод МП1
Дата добавления в базу:01.09.2013
Дата актуализации:05.05.2017
Оглавление:Содержание альбома
Пояснительная записка
МП1.00.000Сп Сводная спецификация
МП1.00.000 Мусоропровод МП1. Монтажная схема для 5-ти этажных домов
МП1.01.000 Фланец переходной
МП1.01.011 Фланец нижний
МП1.01.012 Фланец верхний
МП1.02.000 Клапан приемный в сборе
МП1.02.000 Клапан приемный. Виды А-А, Б-Б, В-В
МП1.02.000 Клапан приемный. Узлы и спецификация
МП1.02.010 Клапан приемный. Корпус в сборе
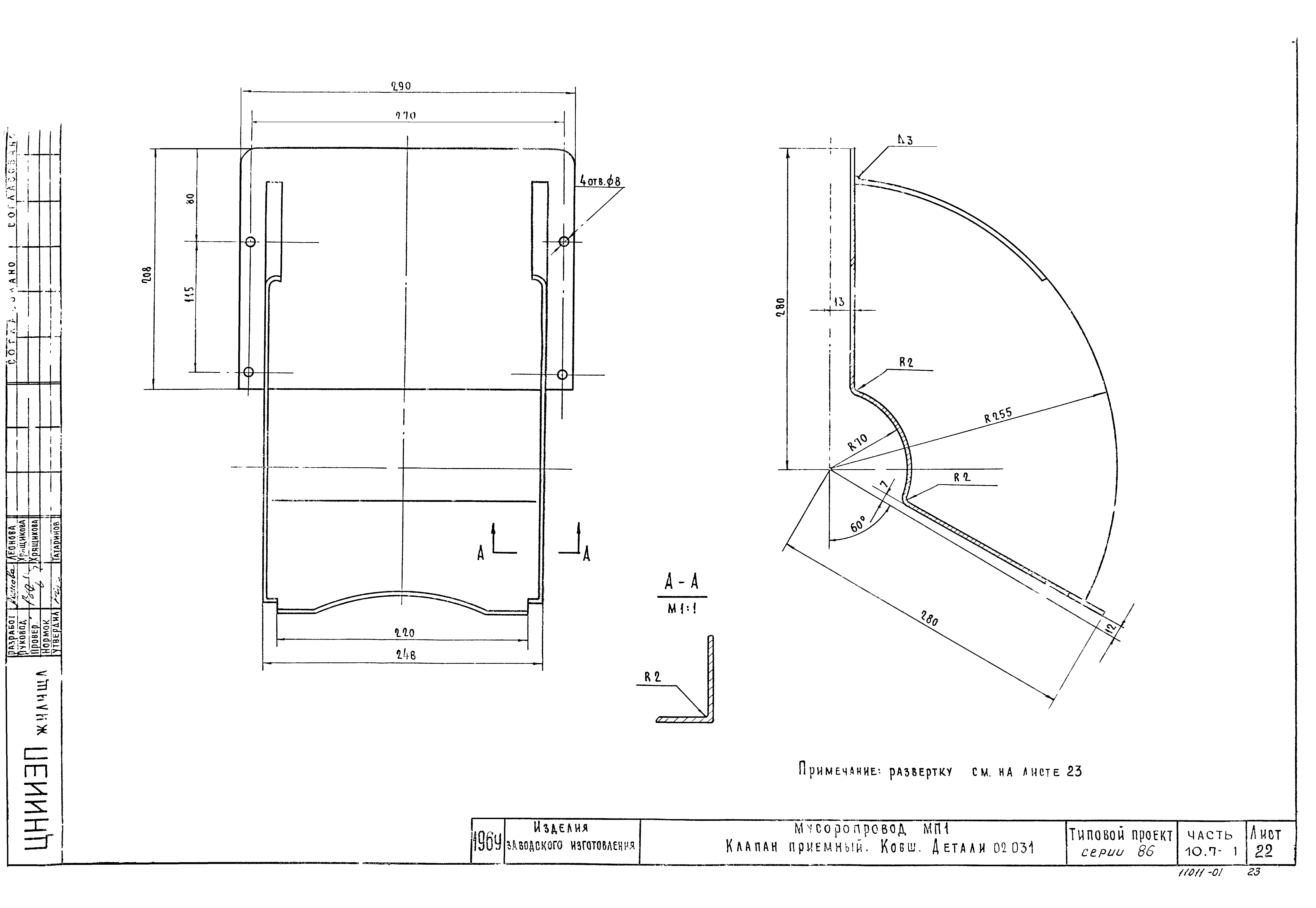
МП1.02.011 Клапан приемный. Корпус
МП1.02.011 Клапан приемный. Корпус. Развертка
МП1.02.012 Накладка
МП1.02.013 Скоба
МП1.02.014 Козырек
МП1.02.015 Уголок
МП1.02.016 Уголок
МП1.02.017 Захват для резинового уплотнения (радиусный)
МП1.02.020 Крышка декоративная
МП1.02.021 Крышка
МП1.02.022 Ручка
МП1.02.023 Скоба
МП1.02.030 Ковш
МП1.02.031 Ковш
МП1.02.032 Лист верхний
МП1.02.033 Петля
МП1.02.040 Хомут
МП1.02.041 Ушко
МП1.02.042 Обод
МП1.02.043 Шпилька
МП1.02.001 Ось
МП1.02.002 Гайка декоративная
МП1.02.003 Шпилька М10
МП1.02.004 Уплотнение крышки
МП1.03.000Сп Сводная спецификация бункера приемного
МП1.03.000 Бункер приемный
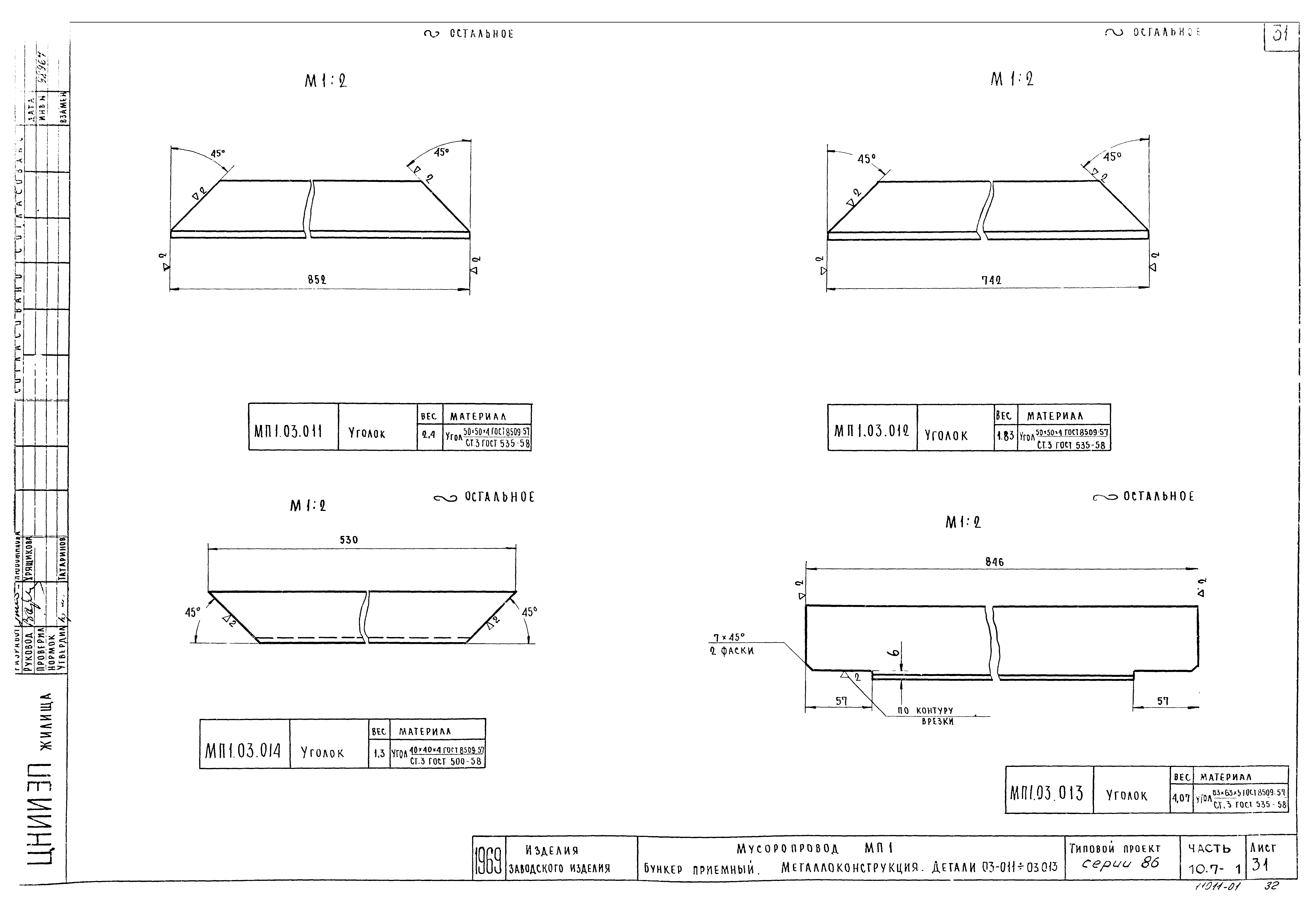
МП1.03.010 Металлоконструкция
МП1.03.011 Уголок
МП1.03.012 Уголок
МП1.03.013 Уголок
МП1.03.014 Уголок
МП1.03.015 Уголок
МП1.03.016 Днище
МП1.03.017 Обечайка нижняя
МП1.03.018 Планка
МП1.03.019 Лист
МП1.03.021 Лист
МП1.03.022 Пластина
МП1.03.023 Уголок
МП1.03.024 Лист
МП1.03.025 Лист
МП1.03.026 Лист
МП1.03.027 Уголок
МП1.03.028 Лист
МП1.03.029 Уголок
МП1.03.030 Шибер
МП1.03.031 Уголок
МП1.03.032 Пластина
МП1.03.033 Ручка
МП1.03.034 Ребро
МП1.03.035 Швеллер
МП1.03.036 Уголок
МП1.03.037 Лист
МП1.03.040 Опора
МП1.03.041 Труба
МП1.03.042 Лист опорный
МП1.03.043 Обечайка нижняя
МП1.03.050 Дверь
МП1.03.051 Лист
МП1.03.052 Лист
МП1.03.053 Уголок
МП1.03.054 Ручка
МП1.03.055 Шайка
МП1.03.056 Уголок
МП1.04.000Сп Сводная спецификация бункера приемного
МП1.04.000 Бункер приемный
МП1.04.010 Металлоконструкция
МП1.04.011 Уголок
МП1.04.012 Уголок
МП1.04.013 Днище
МП1.04.014 Лист
МП1.04.015 Лист
МП1.04.016 Лист
МП1.04.017 Лист
МП1.04.018 Лист
МП1.04.019 Уголок
МП1.04.021 Лист
МП1.04.022 Уголок
МП1.05.000Сп Сводная спецификация бункера в сборе
МП1.05.000 Бункер в сборе
МП1.05.010 Бункер
МП1.05.011 Лист
МП1.05.012 Труба
МП1.05.013 Уголок
МП1.05.020 Шибер
МП1.05.021 Лист
МП1.05.022 Штырь
МП1.05.023 Уголок
МП1.05.024 Ручка
МП1.05.030 Дверка
МП1.05.031 Дверь
МП1.05.032 Полоса
МП1.05.033 Полоса
МП1.06.000 Фланец дефлектора
МП1.06.001 Труба
МП1.06.002 Труба
МП1.06.003 Кольцо
МП1.06.004 Фланец
Разработан: ЦНИИЭП жилища
Утверждён:31.03.1969 ЦНИИЭП жилища (TsNIIEPzhilishcha 64)
Расположен в:Техническая документация Строительство Справочные документы Типовые строительные конструкции, изделия и узлы Общероссийский строительный каталог Жилые здания для строительства в городах и поселках городского типа Обычные условия Жилые дома со стенами из местных материалов Серия 86
Типовой проект Серия 86Типовой проект Серия 86Типовой проект Серия 86Типовой проект Серия 86Типовой проект Серия 86Типовой проект Серия 86Типовой проект Серия 86Типовой проект Серия 86Типовой проект Серия 86Типовой проект Серия 86Типовой проект Серия 86Типовой проект Серия 86Типовой проект Серия 86Типовой проект Серия 86Типовой проект Серия 86Типовой проект Серия 86Типовой проект Серия 86Типовой проект Серия 86Типовой проект Серия 86Типовой проект Серия 86Типовой проект Серия 86Типовой проект Серия 86Типовой проект Серия 86Типовой проект Серия 86Типовой проект Серия 86Типовой проект Серия 86Типовой проект Серия 86Типовой проект Серия 86Типовой проект Серия 86Типовой проект Серия 86Типовой проект Серия 86Типовой проект Серия 86Типовой проект Серия 86Типовой проект Серия 86Типовой проект Серия 86Типовой проект Серия 86Типовой проект Серия 86Типовой проект Серия 86Типовой проект Серия 86Типовой проект Серия 86Типовой проект Серия 86Типовой проект Серия 86Типовой проект Серия 86Типовой проект Серия 86Типовой проект Серия 86Типовой проект Серия 86Типовой проект Серия 86Типовой проект Серия 86Типовой проект Серия 86Типовой проект Серия 86

© 2013 Ёшкин Кот :-) Карта сайта