Скачать Типовой проект 125-04 Часть 01. Раздел 01-1. Архитектурно-строительные чертежи ниже отм. 0.00. Здание с ленточными фундаментамиДата актуализации: 10.08.2017 Типовой проект 125-04
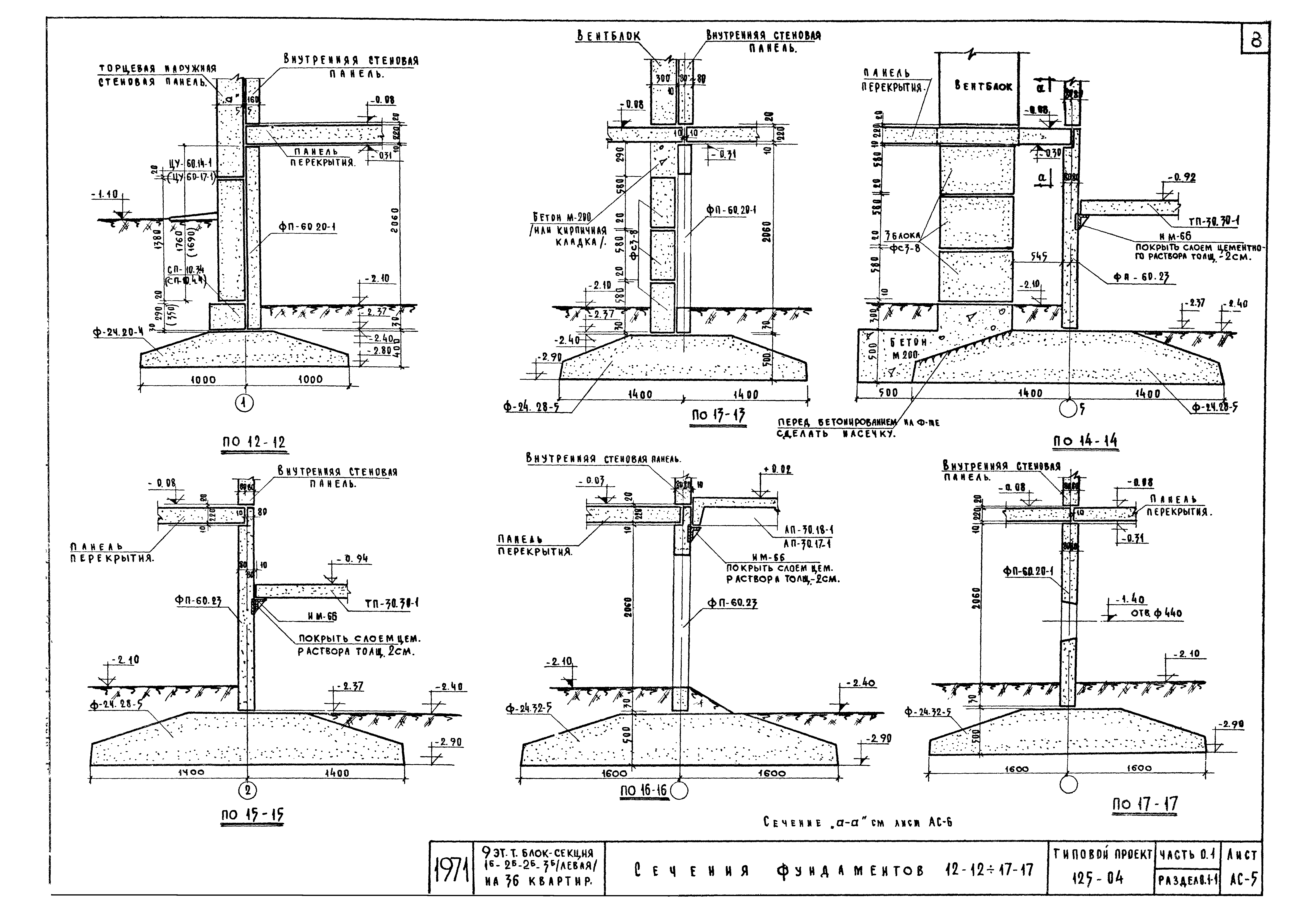
Часть 01. Раздел 01-1. Архитектурно-строительные чертежи ниже отм. 0.00. Здание с ленточными фундаментамиОбозначение: | Типовой проект 125-04 | Обозначение англ: | 125-04 | Статус: | действует | Название рус.: | Часть 01. Раздел 01-1. Архитектурно-строительные чертежи ниже отм. 0.00. Здание с ленточными фундаментами | Дата добавления в базу: | 01.09.2013 | Дата актуализации: | 05.05.2017 | Оглавление: | Содержание альбома. Пояснительная записка План ленточных фундаментов. План технического подполья Монтажный план фундаментных и цокольных панелей. План перекрытия над техническим подпольем. Планы по лестничной клетке Разрезы по лестничной клетке Разрезы I-I, II-II, сечения 8-8 - 11-11 Сечения фундаментов 12-12 - 17-17 Узлы "А", "Б", "В". Сечение фундаментов 18-18, тумба под лифт, монолитная железобетонная плита под лифтовой шахтой. Сварные сетки С-1 и С-2, каркас К-1 Монтажные узлы Спецификация железобетонных изделий ниже отм. 0.00 Спецификация вариантов цокольных панелей. Спецификация металлических изделий | Разработан: | КБ по железобетону Госстроя РСФСР
| Утверждён: | 30.12.1969 Госкомитет по гражданскому строительству и архитектуре при Госстрое СССР (National Committee on Nonindustrial Construction and Architecture, USSR Gosstroy 278)
| Расположен в: |
|
            
|