Скачать Типовой проект 114-85-2 Часть 3. Водоснабжение и канализация выше отметки 0.00Дата актуализации: 10.08.2017 Типовой проект 114-85-2
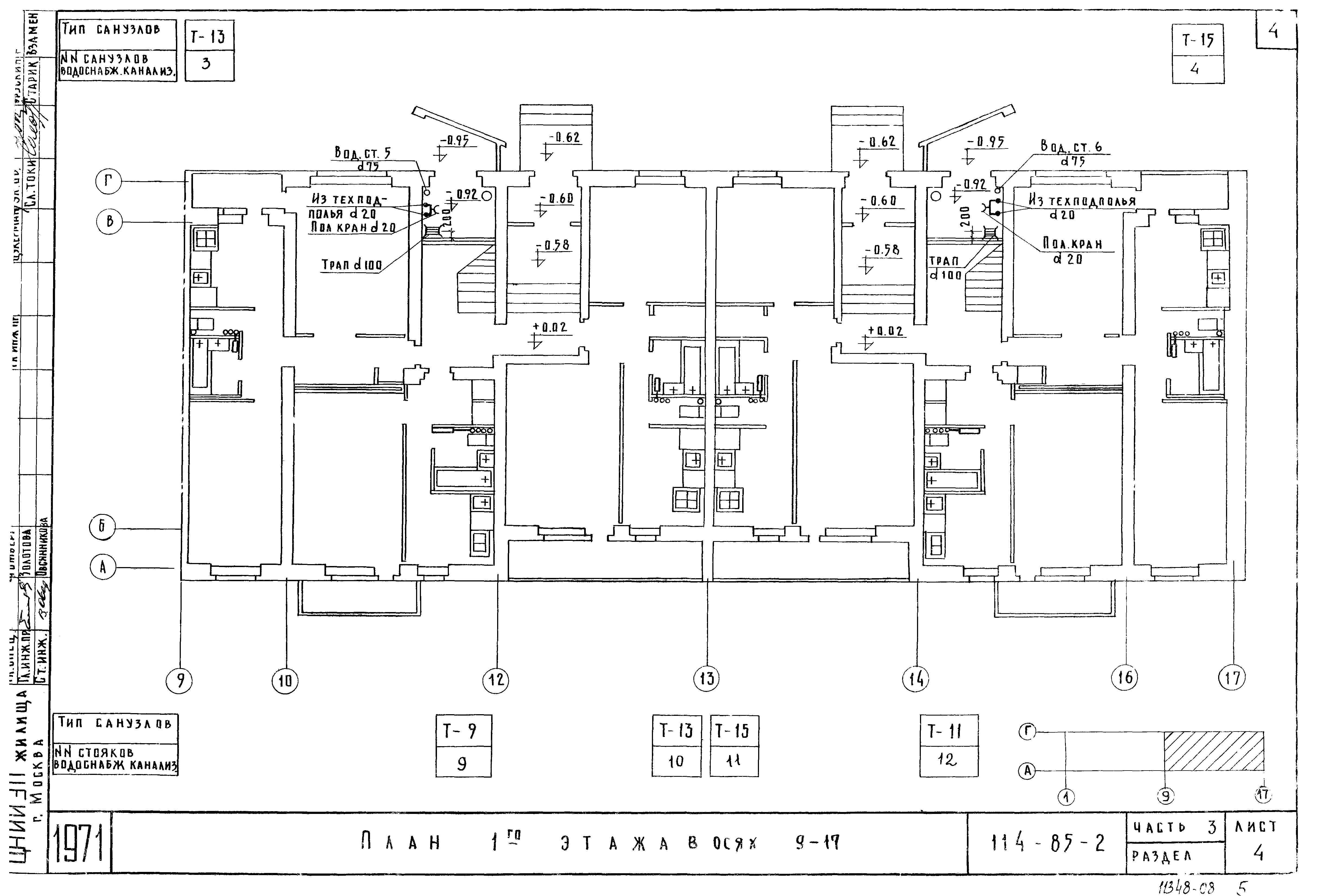
Часть 3. Водоснабжение и канализация выше отметки 0.00Обозначение: | Типовой проект 114-85-2 | Обозначение англ: | 114-85-2 | Статус: | не действует | Название рус.: | Часть 3. Водоснабжение и канализация выше отметки 0.00 | Дата добавления в базу: | 01.09.2013 | Дата актуализации: | 05.05.2017 | Оглавление: | Заглавный лист Спецификации План 1-го этажа в осях 1 - 9 План 1-го этажа в осях 9 - 17 План 2 - 5-го этажей в осях 1 - 9 План 2 - 5-го этажей в осях 9 - 17 Водоснабжение. Канализация. Водостоки. Схемы стояков | Разработан: | ЦНИИЭП жилища
| Утверждён: | 01.01.1971 ЦНИИЭП жилища (TsNIIEPzhilishcha )
| Расположен в: |
|
       
|