Скачать Типовой проект 903-4-34.85 Альбом 1. Пояснительная записка, технология производства, автоматизация технологии производства, силовое электрооборудование, электрическое освещение, связь и сигнализацияДата актуализации: 10.08.2017 Типовой проект 903-4-34.85
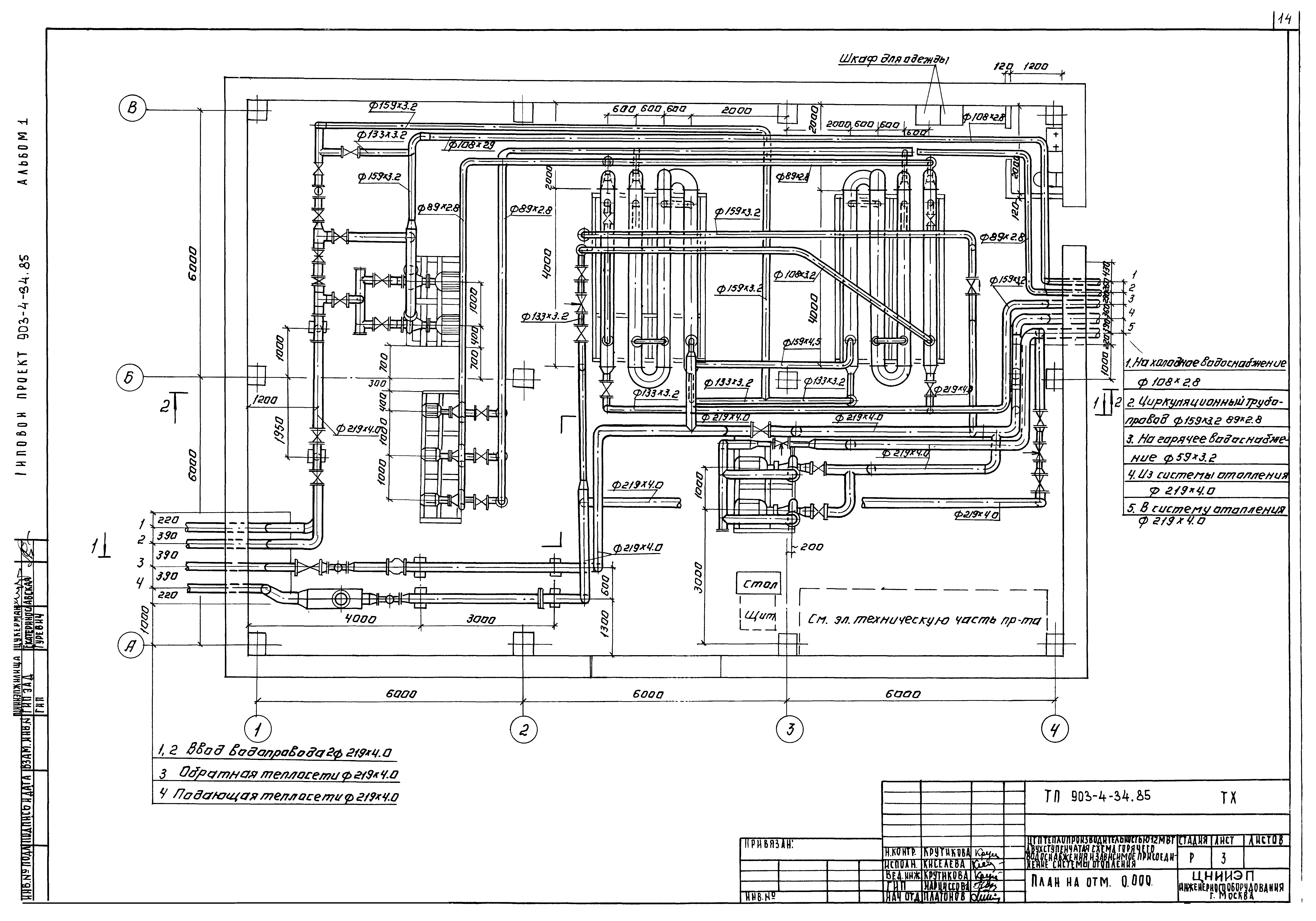
Альбом 1. Пояснительная записка, технология производства, автоматизация технологии производства, силовое электрооборудование, электрическое освещение, связь и сигнализацияОбозначение: | Типовой проект 903-4-34.85 | Обозначение англ: | 903-4-34.85 | Статус: | действует | Название рус.: | Альбом 1. Пояснительная записка, технология производства, автоматизация технологии производства, силовое электрооборудование, электрическое освещение, связь и сигнализация | Дата добавления в базу: | 01.09.2013 | Дата актуализации: | 05.05.2017 | Оглавление: | Пояснительная записка Технология производства Общие данные Технологическая схема План на отм. 0.000 Разрез 1-1 Разрез 2-2 Схема трубопроводов Установка водоподогревателей горячей воды Установка хозяйственно-питьевых насосов Установка корректирующих насосов Установка циркуляционно-повысительных насосов горячего водоснабжения Водопроводный узел. Тепловой узел Рама под центробежные насосы Рама под центробежные насосы (циркуляционно-повысительные) Опора под водоподогреватель Тепловая изоляция Автоматизация технологии производства Общие данные Схема функциональная автоматизации Схема электрическая принципиальная регулирования Схема электрическая принципиальная управления циркуляционными насосами ГВС Схема электрическая принципиальная управления корректирующими насосами системы отопления Схема электрическая принципиальная управления хозпитьевыми насосами, аварийно-предупредительной сигнализации Схема электрическая принципиальная питания Схема внешних проводок План расположения Щит автоматизации. Данные для разработки задания на изготовление щита Силовое электрооборудование Общие данные Питание электрооборудования. Схема электрическая принципиальная Кабельный журнал Размещение электрооборудования и прокладка кабелей. План Опросный лист для заказа панелей ЩО-70 Электрическое освещение Общие данные Электрическое освещение. План на отм. 0.000. Спецификация Связь и сигнализация Общие данные. План на отм. 0.000 с сетями связи. Спецификация | Разработан: | ЦНИИЭП иженерного оборудования ЦНИИЭП жилища
| Утверждён: | 23.01.1985 Госгражданстрой (Gosgrazhdanstroy 19)
| Расположен в: |
|
                                              
|