Информационная система
«Ёшкин Кот»

Скачать базу одним архивом
Скачать обновления
История создания базы
Карта сайта

Скачать Типовой проект 501-3 Альбом III. Строительная часть - блочный тип

Дата актуализации: 10.08.2017

Типовой проект 501-3

Альбом III. Строительная часть - блочный тип

Обозначение: Типовой проект 501-3
Обозначение англ: 501-3
Статус:действует
Название рус.:Альбом III. Строительная часть - блочный тип
Дата добавления в базу:01.09.2013
Дата актуализации:05.05.2017
Оглавление:Заглавный лист. Состав проекта
Пояснительная записка
h = 2,0 м. Фасад, планы
h = 2,0 м. Разрезы 1-1, 2-2, 3-3
h = 2,0 м. Монтажная схема секции 1. Фасад, планы и разрезы
h = 2,0 м. Монтажная схема секции 1. Планы стеновых и фундаментных блоков
h = 2,0 м. Монтажная схема средней секции. Фасад, планы и разрезы
h = 2,0 м. Монтажная схема средней секции. Планы стеновых и фундаментных блоков
h = 2,0 м. Монтажная схема секции 2. Фасад, планы и разрез
h = 2,0 м. Монтажная схема секции 2. Планы стеновых и фундаментных блоков
h = 2,0 м. Узел 1
h = 2,0 м. Металлическая лестница (узел 6)
h = 2,5 м. Фасад, планы
h = 2,5 м. Разрезы 1-1, 2-2, 3-3
h = 2,5 м. Монтажная схема секции 1. Фасад, планы и разрезы
h = 2,5 м. Монтажная схема секции 1. Планы стеновых и фундаментных блоков
h = 2,5 м. Монтажная схема средней секции. Фасад, планы и разрезы
h = 2,5 м. Монтажная схема средней секции. Планы стеновых и фундаментных блоков
h = 2,5 м. Монтажная схема секции 2. Фасад, планы и разрез
h = 2,5 м. Монтажная схема секции 2. Планы стеновых и фундаментных блоков
h = 2,5 м. Узел 1
h = 2,5 м. Металлическая лестница (узел 6)
Узлы 2 -5
Детали крепления рельсов Р50
Детали крепления рельсов Р43
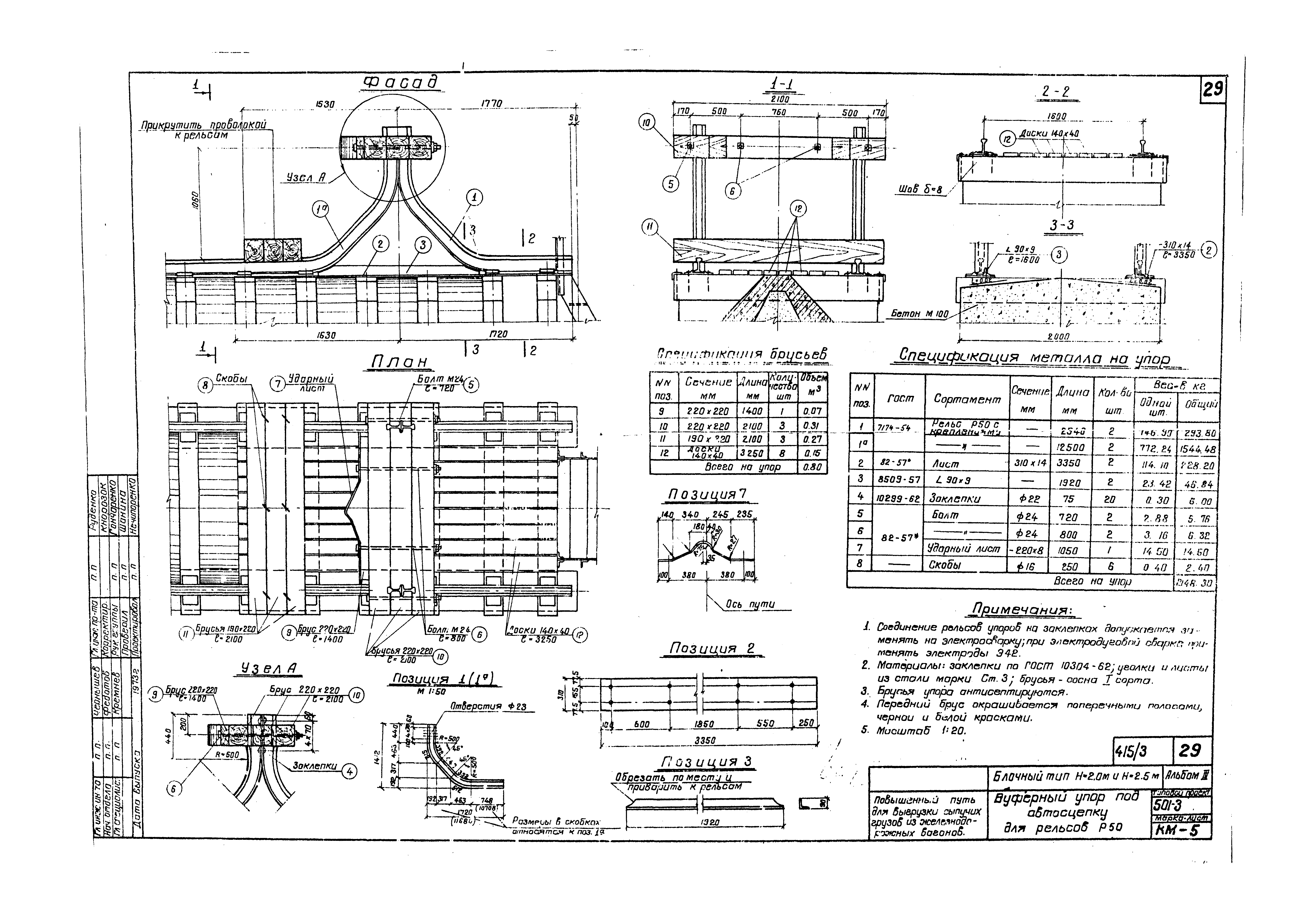
Буферный упор под автосцепку для рельс Р50
Буферный упор под автосцепку для рельс Р43
Стеновые блоки ФС4кз, ФС4к, ФС4-8кз, ФС4-8к
Фундаментный блок Ф10 и распорка РП2
Сборный железобетонный шпальный ящик
Анкера
Расчет повышенного пути
Разработан: Гипропромтрансстрой
Утверждён:05.10.1965 Гипропромтрансстрой (44)
Расположен в:Техническая документация Строительство Справочные документы Типовые строительные конструкции, изделия и узлы Общероссийский строительный каталог Промышленные предприятия, здания и сооружения Предприятия, здания и сооружения складские Склады разные Здания и сооружения складские разные
Типовой проект 501-3Типовой проект 501-3Типовой проект 501-3Типовой проект 501-3Типовой проект 501-3Типовой проект 501-3Типовой проект 501-3Типовой проект 501-3Типовой проект 501-3Типовой проект 501-3Типовой проект 501-3Типовой проект 501-3Типовой проект 501-3Типовой проект 501-3Типовой проект 501-3Типовой проект 501-3Типовой проект 501-3Типовой проект 501-3Типовой проект 501-3Типовой проект 501-3Типовой проект 501-3Типовой проект 501-3Типовой проект 501-3Типовой проект 501-3Типовой проект 501-3Типовой проект 501-3Типовой проект 501-3Типовой проект 501-3Типовой проект 501-3Типовой проект 501-3Типовой проект 501-3Типовой проект 501-3Типовой проект 501-3Типовой проект 501-3Типовой проект 501-3

© 2013 Ёшкин Кот :-) Карта сайта