Скачать Типовые материалы для проектирования 407-03-559.90 Альбом 2. Планы ОРУ, ячейки и узлыДата актуализации: 10.08.2017 Типовые материалы для проектирования 407-03-559.90
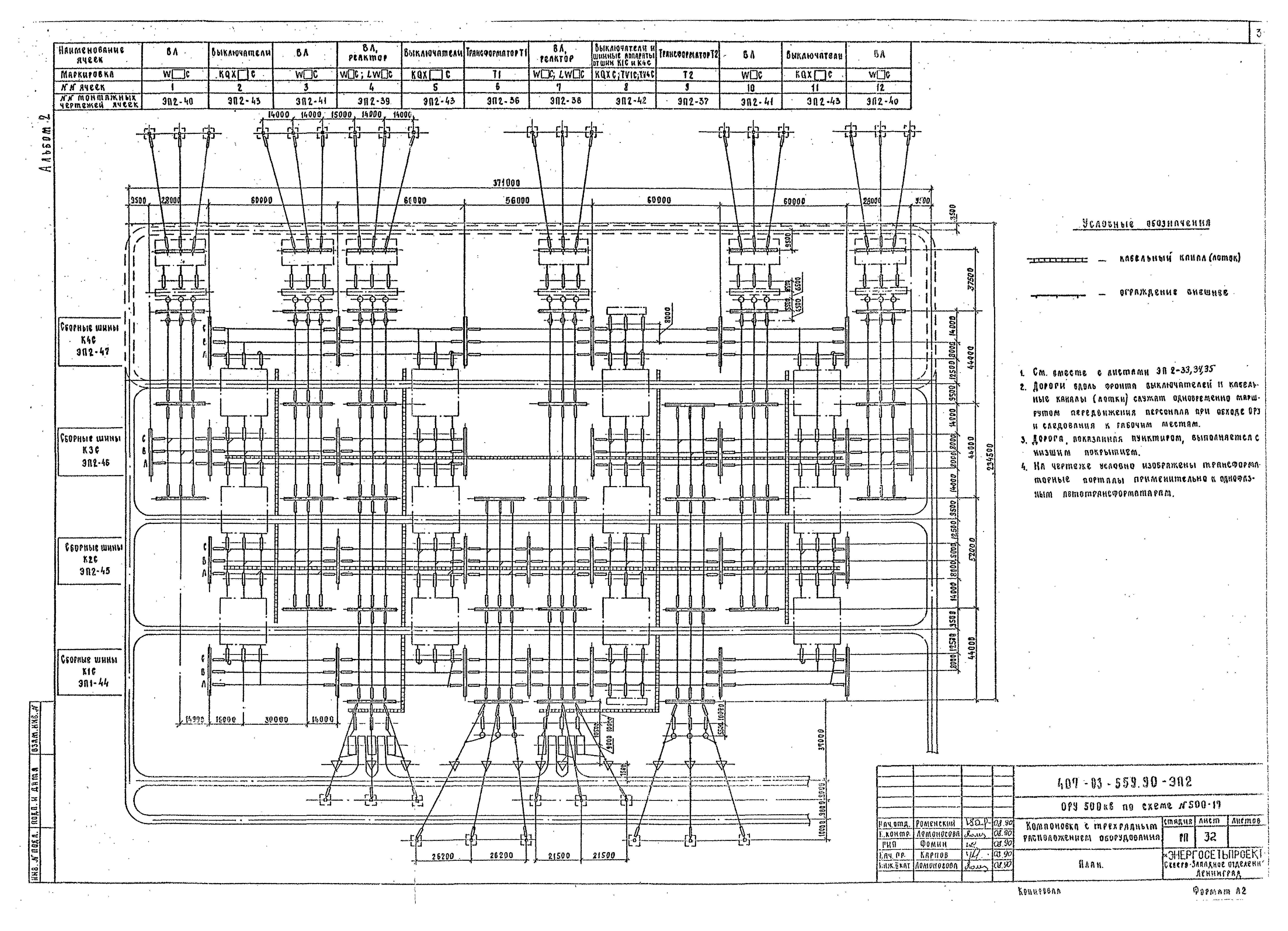
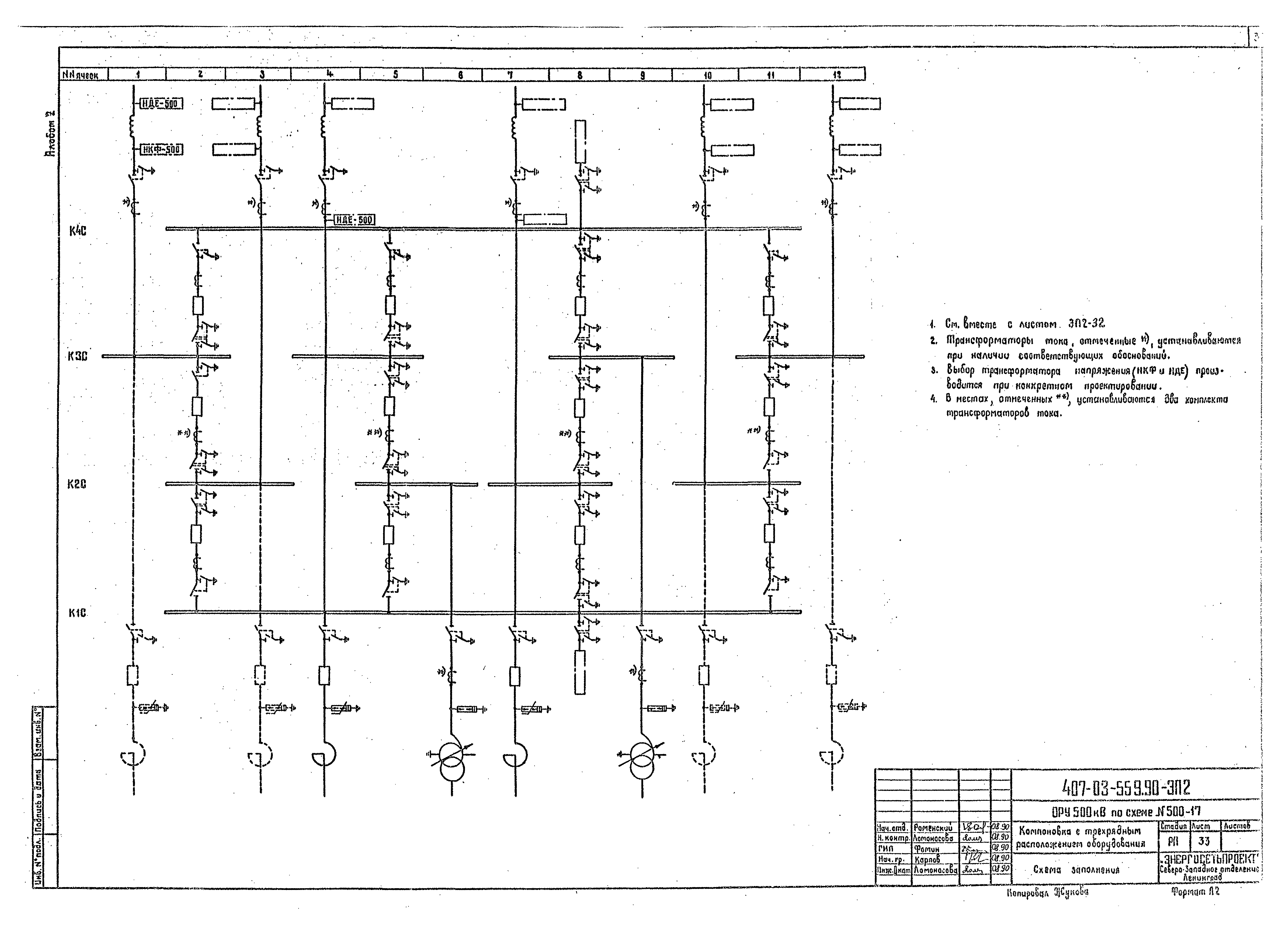
Альбом 2. Планы ОРУ, ячейки и узлыОбозначение: | Типовые материалы для проектирования 407-03-559.90 | Обозначение англ: | 407-03-559.90 | Статус: | cправочные материалы, мп, тпр | Название рус.: | Альбом 2. Планы ОРУ, ячейки и узлы | Дата добавления в базу: | 01.09.2013 | Дата актуализации: | 05.05.2017 | Дата введения: | 13.08.1990 | Оглавление: | Компоновка с расположением оборудования в один ряд. План Компоновка с расположением оборудования в один ряд. Схема заполнения Компоновка с расположением оборудования в один ряд. Спецификация оборудования и материалов к листу ЭП2-1 Компоновка с расположением оборудования в один ряд. Ячейки: а. Трансформатор Т1 (Т2). б. Перемычка от К1С (ячейка №7) Компоновка с расположением оборудования в один ряд. Ячейки: а. ВЛ с реактором; б. ВЛ Компоновка с расположением оборудования в один ряд. Ячейки: а. Перемычка и шинные аппараты от шин К1С; б. Перемычка и шинные аппараты от шин К2С Компоновка с расположением оборудования в один ряд. Ячейки: а. Перемычка от шин К2С; б. Перемычка от шин К1С (ячейка №13) Компоновка с расположением оборудования в один ряд. Сборные шины К1С Компоновка с расположением оборудования в один ряд. Сборные шины К2С Компоновка с расположением оборудования в два ряда. План Компоновка с расположением оборудования в два ряда. Схема заполнения Компоновка с расположением оборудования в два ряда. Спецификация оборудования и материалов к листу ЭП2-11 Компоновка с расположением оборудования в два ряда. Ячейки: а. Трансформатор Т1. б. Перемычка от К2С и шинные аппараты от шин К1С и К2С Компоновка с расположением оборудования в два ряда. Ячейки: а. Трансформатор Т2. б. Перемычка от К1С Компоновка с расположением оборудования в два ряда. Ячейки: а. ВЛ с реактором (ячейка №7); б. ВЛ (ячейка №12) Компоновка с расположением оборудования в два ряда. Ячейки: а. ВЛ с реактором (ячейка №6); б. ВЛ (ячейка №1) Компоновка с расположением оборудования в два ряда. Ячейки: а. ВЛ (ячейка №3); б. Перемычка от шин К1С Компоновка с расположением оборудования в два ряда. Ячейки: а. ВЛ (ячейка №10); б. Перемычка от шин К2С (ячейка №11) Компоновка с расположением оборудования в два ряда. Сборные шины К1С Компоновка с расположением оборудования в два ряда. Сборные шины К2С Компоновка с расположением оборудования в три ряда. План Компоновка с расположением оборудования в три ряда. Схема заполнения Компоновка с расположением оборудования в три ряда. Спецификация оборудования и материалов к листу ЭП2-23 Компоновка с расположением оборудования в три ряда. Ячейки: а. Трансформатор Т1. б. Трансформатор Т2 Компоновка с расположением оборудования в три ряда. Ячейки: а. ВЛ с реактором (ячейка №4); б. ВЛ (ячейки №2, 6) Компоновка с расположением оборудования в три ряда. Ячейки: а. ВЛ с реактором (ячейка №9); б. ВЛ, шинные аппараты от шин К1С Компоновка с расположением оборудования в три ряда. Ячейки: а. ВЛ (ячейка №3); б. Перемычка от шин К2С; в. Перемычка от шин К2С Компоновка с расположением оборудования в три ряда. Сборные шины К1С. Сборные шины К2С Компоновка с трехрядным расположением оборудования. План Компоновка с трехрядным расположением оборудования. Схема заполнения Компоновка с трехрядным расположением оборудования. Спецификация оборудования и материалов к листу ЭП2-32 Компоновка с трехрядным расположением оборудования. Ячейка: Трансформатор Т1 Компоновка с трехрядным расположением оборудования. Ячейка: Трансформатор Т2 Компоновка с трехрядным расположением оборудования. Ячейка: ВЛ с реактором от шин К2С Компоновка с трехрядным расположением оборудования. Ячейка: ВЛ с реактором от шин К3С Компоновка с трехрядным расположением оборудования. Ячейка: ВЛ от шин К3С Компоновка с трехрядным расположением оборудования. Ячейка: ВЛ от шин К2С Компоновка с трехрядным расположением оборудования. Ячейка: Выключатели и шинные аппараты от шин К1С и К4С Компоновка с трехрядным расположением оборудования. Ячейка: Выключатели Компоновка с трехрядным расположением оборудования. Сборные шины К1С Компоновка с трехрядным расположением оборудования. Сборные шины К2С Компоновка с трехрядным расположением оборудования. Сборные шины К3С Компоновка с трехрядным расположением оборудования. Сборные шины К4С Компоновки с продольным расположением оборудования. Узел аппаратов ВЧ связи и трансформатора напряжения НДЕ-500. Варианты I, II Компоновки с продольным расположением оборудования. Узел аппаратов ВЧ связи и трансформатора напряжения НДЕ-500. Варианты III, IV Компоновки с продольным расположением оборудования. Узел аппаратов ВЧ связи и трансформатора напряжения НКФ-500. Варианты I, II Компоновки с трехрядным расположением оборудования. Узел аппаратов ВЧ связи и трансформатора напряжения НДЕ-500. Варианты I, II Компоновки с трехрядным расположением оборудования. Узел аппаратов ВЧ связи и трансформатора напряжения НДЕ-500. Варианты III, IV Компоновки с трехрядным расположением оборудования. Узел аппаратов ВЧ связи и трансформатора напряжения НДЕ-500. Варианты V, VI Компоновки с трехрядным расположением оборудования. Узел аппаратов ВЧ связи и трансформатора напряжения НДЕ-500. Варианты VII, VIII Компоновки с трехрядным расположением оборудования. Узел аппаратов ВЧ связи и трансформатора напряжения НКФ-500. Варианты I, II Компоновки с трехрядным расположением оборудования. Узел аппаратов ВЧ связи и трансформатора напряжения НКФ-500. Варианты III, IV Компоновка с продольным расположением оборудования в один ряд. Перемычка с выключателем Компоновки с продольным расположением оборудования в два и три ряда и трехрядная. Перемычка с выключателем Компоновка с расположением оборудования с один ряд. Узел выключателя ВВ-500Б с трансформатором тока ТФРМ-500Б-У1 Компоновка с расположением оборудования с один ряд. Узел выключателя ВВ-500Б с трансформатором тока ТФЗМ-500Б-1У1 Компоновка с расположением оборудования с один ряд. Узел выключателя ВНВ-500 с трансформатором тока ТФРМ-500Б-У1 Компоновка с расположением оборудования с один ряд. Узел выключателя ВНВ-500 с трансформатором тока ТФЗМ-500Б-1У1 Компоновка с продольным расположением оборудования в два и три ряда и трехрядная. Узел выключателя ВВ-500Б с трансформатором тока ТФРМ-500Б-У1 Компоновка с продольным расположением оборудования в два и три ряда и трехрядная. Узел выключателя ВВ-500Б с трансформатором тока ТФЗМ-500Б-1У1 Компоновка с продольным расположением оборудования в два и три ряда и трехрядная. Узел выключателя ВНВ-500 с трансформатором тока ТФРМ-500Б-У1 Компоновка с продольным расположением оборудования в два и три ряда и трехрядная. Узел выключателя ВНВ-500 с трансформатором тока ТФЗМ-500Б-1У1 Компоновки с продольным расположением оборудования. Узел установки шинных аппаратов Узел установки разрядника РВМК-500-ПУ1 на ВЛ Узел выключателя ВВ-500Б для присоединения реактора Узел выключателя ВНВ-500 для присоединения реактора Спецификация оборудования | Разработан: | Энергосетьпроект
| Утверждён: | 13.08.1990 Минэнерго СССР (USSR Minenergo 46)
| Расположен в: |
| Заменяет собой: | - Типовой проект 407-03-383.86
|
                                                                          
|