Информационная система
«Ёшкин Кот»

Скачать базу одним архивом
Скачать обновления
История создания базы
Карта сайта

Скачать Типовой проект 901-1-89.87 Альбом II. Технологические решения. Внутренние водопровод и канализация. Отопление и вентиляция. Нестандартизированное оборудование (из ТП 901-1-90.87)

Дата актуализации: 10.08.2017

Типовой проект 901-1-89.87

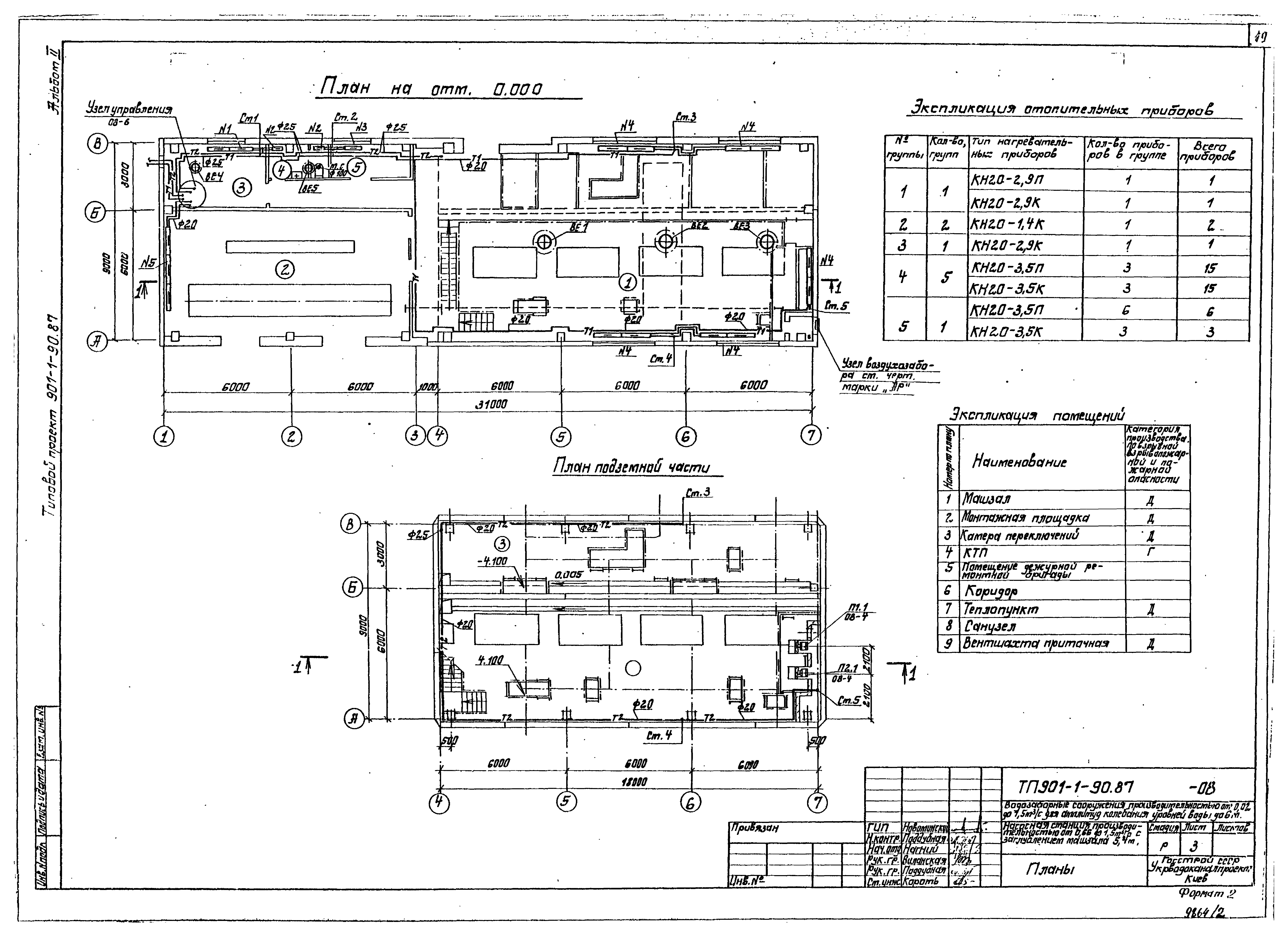
Альбом II. Технологические решения. Внутренние водопровод и канализация. Отопление и вентиляция. Нестандартизированное оборудование (из ТП 901-1-90.87)

Обозначение: Типовой проект 901-1-89.87
Обозначение англ: 901-1-89.87
Статус:не определен законодательством
Название рус.:Альбом II. Технологические решения. Внутренние водопровод и канализация. Отопление и вентиляция. Нестандартизированное оборудование (из ТП 901-1-90.87)
Дата добавления в базу:01.09.2013
Дата актуализации:05.05.2017
Дата введения:28.08.1987
Оглавление:Основной комплект ТХ
   Общие данные
   Совмещенный чертеж
   План. Таблица привязочных размеров
   Разрез 1-1. Схемы трубопроводов В10, В11
   Разрез 2-2. Схемы трубопроводов А01, А02, А03
   Установка вакуумных насосов. Планы. Вид по А
   Установка дренажных насосов. Элемент плана, разрезы, схема
   Вакуумная колонна
   Запорное устройство
   Проставки монтажные dy 400, 500, 600
   Крестовина
Основной комплект ВК
   Общие данные
   План, схемы сетей В1, В2, К1
Основной комплект ОВ
   Общие данные
   Планы
   Разрез. Установка оборудования систем П1 и П2
   Схемы
   Узел управления. Схема. Спецификация
Разработан: Укрводоканалпроект
Утверждён:28.08.1987 Госстрой СССР (Государственный комитет Совета Министров СССР по делам строительства) (USSR Gosstroy 57)
Расположен в:Техническая документация Строительство Справочные документы Типовые строительные конструкции, изделия и узлы Общероссийский строительный каталог Промышленные предприятия, здания и сооружения Здания и сооружения санитарно-технические Водоснабжение Насосные станции Насосные станции водопроводные
Типовой проект 901-1-89.87Типовой проект 901-1-89.87Типовой проект 901-1-89.87Типовой проект 901-1-89.87Типовой проект 901-1-89.87Типовой проект 901-1-89.87Типовой проект 901-1-89.87Типовой проект 901-1-89.87Типовой проект 901-1-89.87Типовой проект 901-1-89.87Типовой проект 901-1-89.87Типовой проект 901-1-89.87Типовой проект 901-1-89.87Типовой проект 901-1-89.87Типовой проект 901-1-89.87Типовой проект 901-1-89.87Типовой проект 901-1-89.87Типовой проект 901-1-89.87Типовой проект 901-1-89.87Типовой проект 901-1-89.87Типовой проект 901-1-89.87Типовой проект 901-1-89.87Типовой проект 901-1-89.87

© 2013 Ёшкин Кот :-) Карта сайта