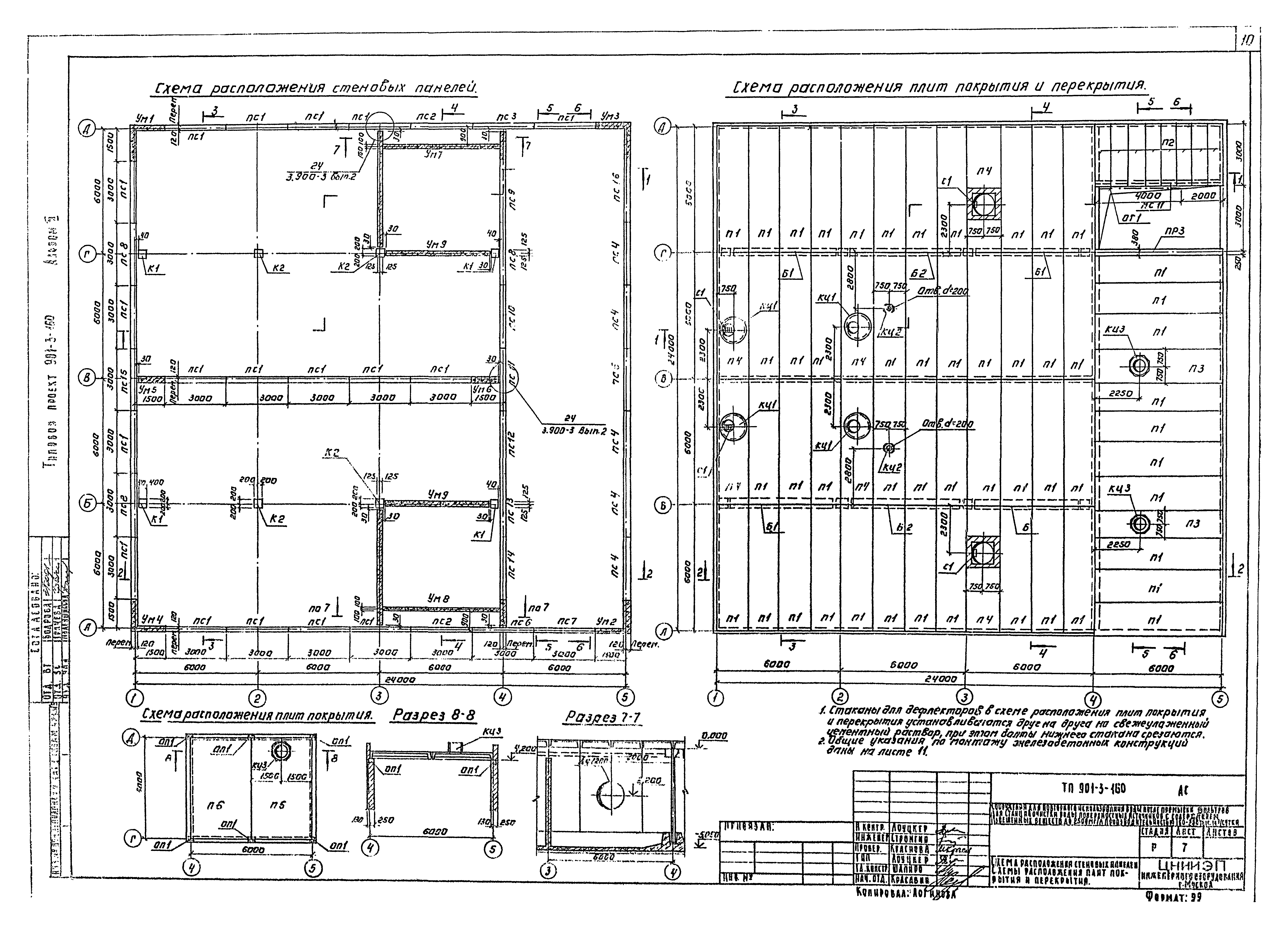
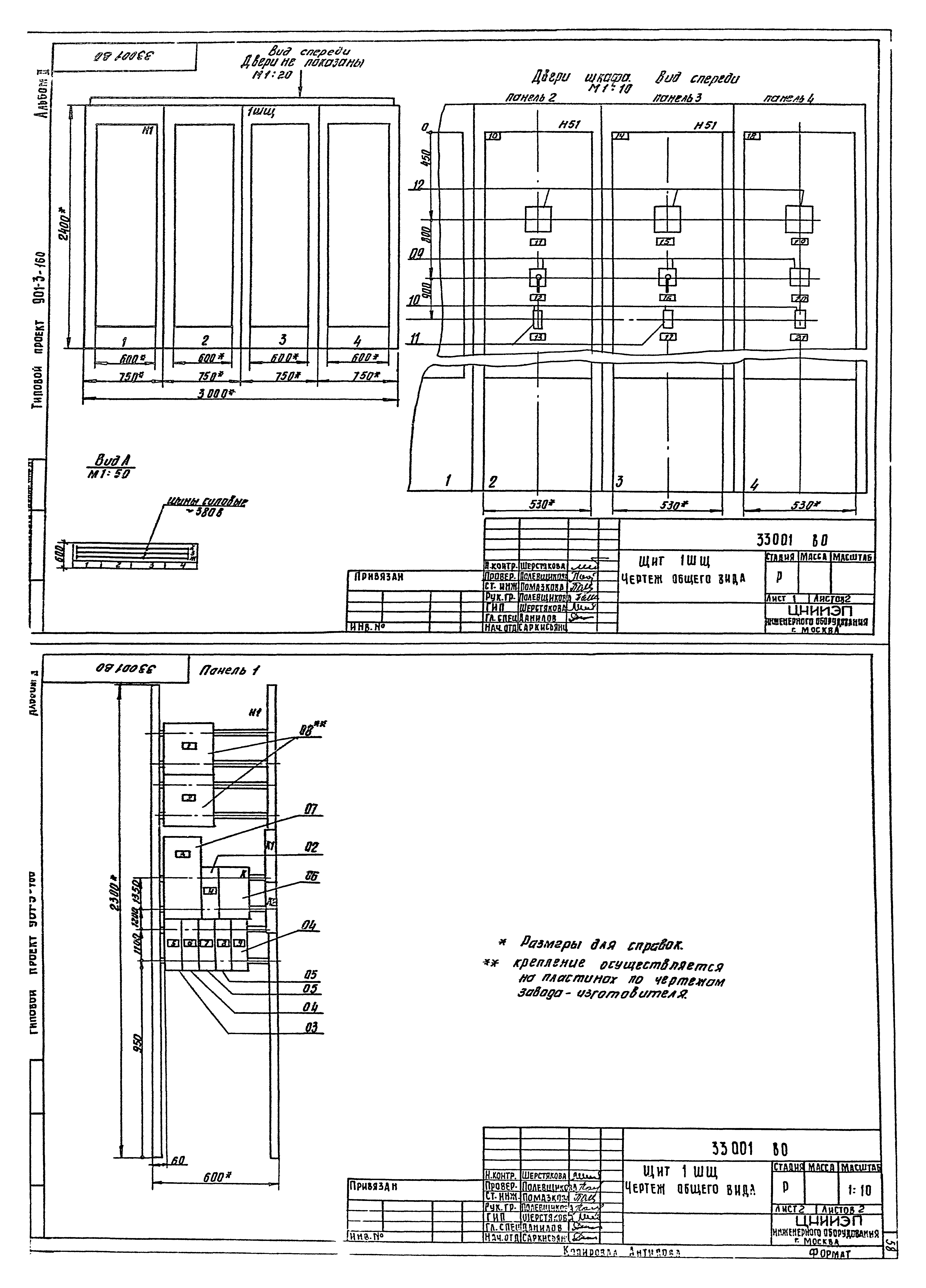
Скачать Типовой проект 901-3-160 Альбом II. Архитектурно-строительные решения, технологическая, электротехническая и другие частиДата актуализации: 10.08.2017 Типовой проект 901-3-160
Альбом II. Архитектурно-строительные решения, технологическая, электротехническая и другие частиОбозначение: | Типовой проект 901-3-160 | Обозначение англ: | 901-3-160 | Статус: | не определен законодательством | Название рус.: | Альбом II. Архитектурно-строительные решения, технологическая, электротехническая и другие части | Дата добавления в базу: | 01.02.2017 | Дата актуализации: | 05.05.2017 | Дата введения: | 19.11.1981 | Разработан: | ЦНИИЭП инженерного оборудования
| Утверждён: | 06.05.1980 Госгражданстрой (Gosgrazhdanstroy 120)
| Издан: | ЦИТП Госстроя СССР (CITP, Gosstroy (USSR) 1982 г. )
| Расположен в: |
| Заменяет собой: | |
                                                             
|