Информационная система
«Ёшкин Кот»

Скачать базу одним архивом
Скачать обновления
История создания базы
Карта сайта

Скачать Типовой проект 903-1-272.89 Альбом 2. Тепломеханические решения. Станция водоподготовки. Отопление и вентиляция. Внутренний водопровод и канализация. Топливоподача и шлакоудаление

Дата актуализации: 10.08.2017

Типовой проект 903-1-272.89

Альбом 2. Тепломеханические решения. Станция водоподготовки. Отопление и вентиляция. Внутренний водопровод и канализация. Топливоподача и шлакоудаление

Обозначение: Типовой проект 903-1-272.89
Обозначение англ: 903-1-272.89
Статус:действует
Название рус.:Альбом 2. Тепломеханические решения. Станция водоподготовки. Отопление и вентиляция. Внутренний водопровод и канализация. Топливоподача и шлакоудаление
Дата добавления в базу:01.09.2013
Дата актуализации:05.05.2017
Оглавление:Чертежи марки ТМ
   Общие данные
   Ведомость объемов работ по нанесению антикоррозийной изоляции
   Компоновка оборудования. План - вид сверху. План на отм. 0.000. Разрез 1-1
   Компоновка оборудования. Разрезы 2-2, 3-3
   Схема общекотельных трубопроводов
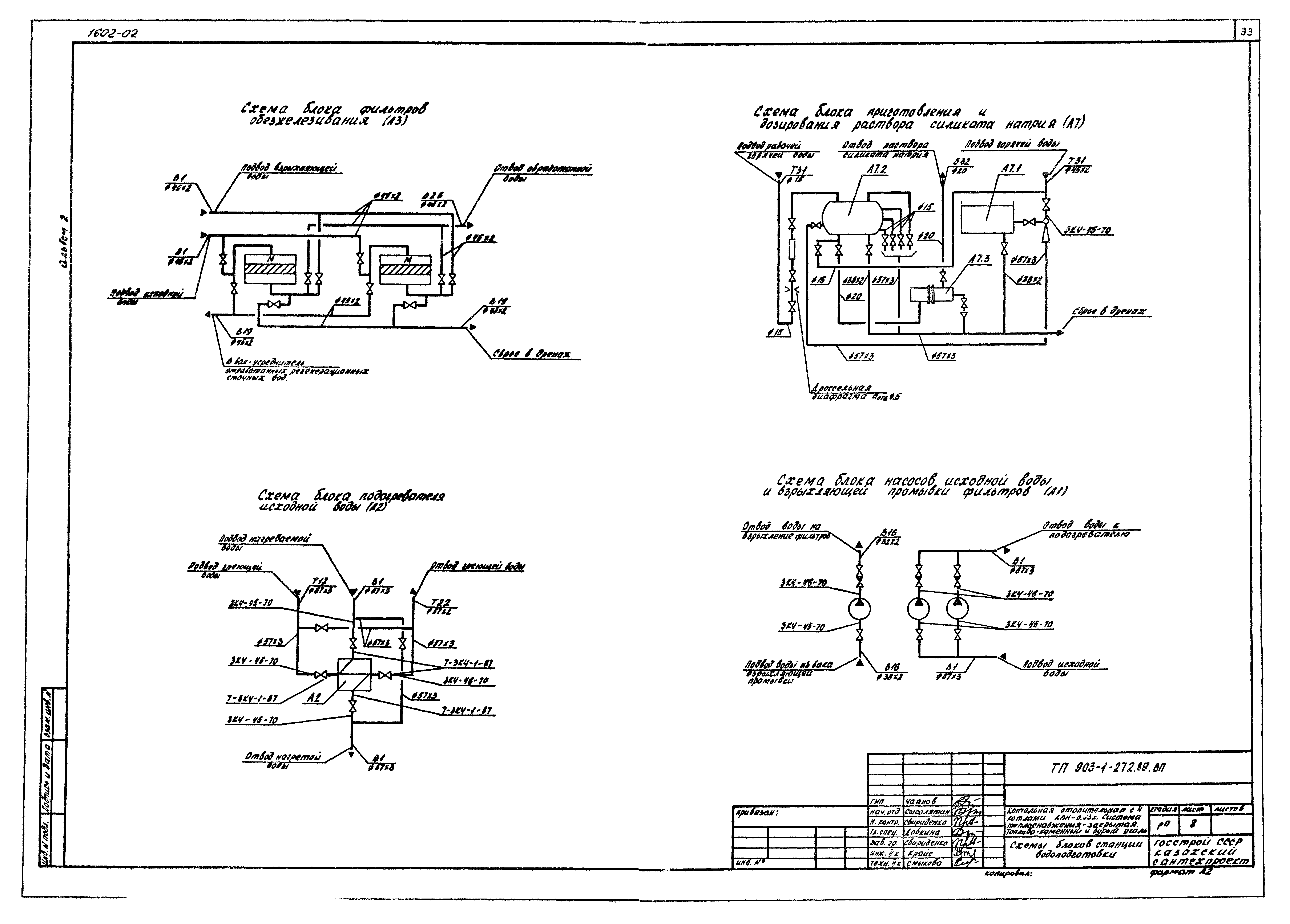
   Схемы блоков тепломеханического оборудования
   Трубопроводы внутренние. План - вид сверху
   Трубопроводы внутренние. Разрезы 1-1, 2-2, 3-3, 4-4, 5-5, 6-6, 7-7
   Трубопроводы внутренние. План на отм. 0.000. Разрезы 8-8, 9-9, 10-10, 11-11, 12-12, 13-13
   Трубопроводы наружные. План на отм. 0.000. Разрезы 1-1, 2-2, 3-3, 4-4, 5-5
   Трубопроводы атмосферные и дренажные. План - вид сверху
   Трубопроводы атмосферные и дренажные. Разрезы 1-1, 2-2, 3-3, 4-4, 5-5, 6-6, 7-7. Узел I, II
   Спецификация трубопроводов
   Воздуховоды. План на отм. 0.000. Разрезы 1-1, 2-2. Узел I, II
   Газоходы. План - вид сверху. Разрез 1-1
   Газоходы. Разрезы 2-2, 3-3, 4-4, 5-5
   Теплоизоляция блока золоулавливающей установки дымососа
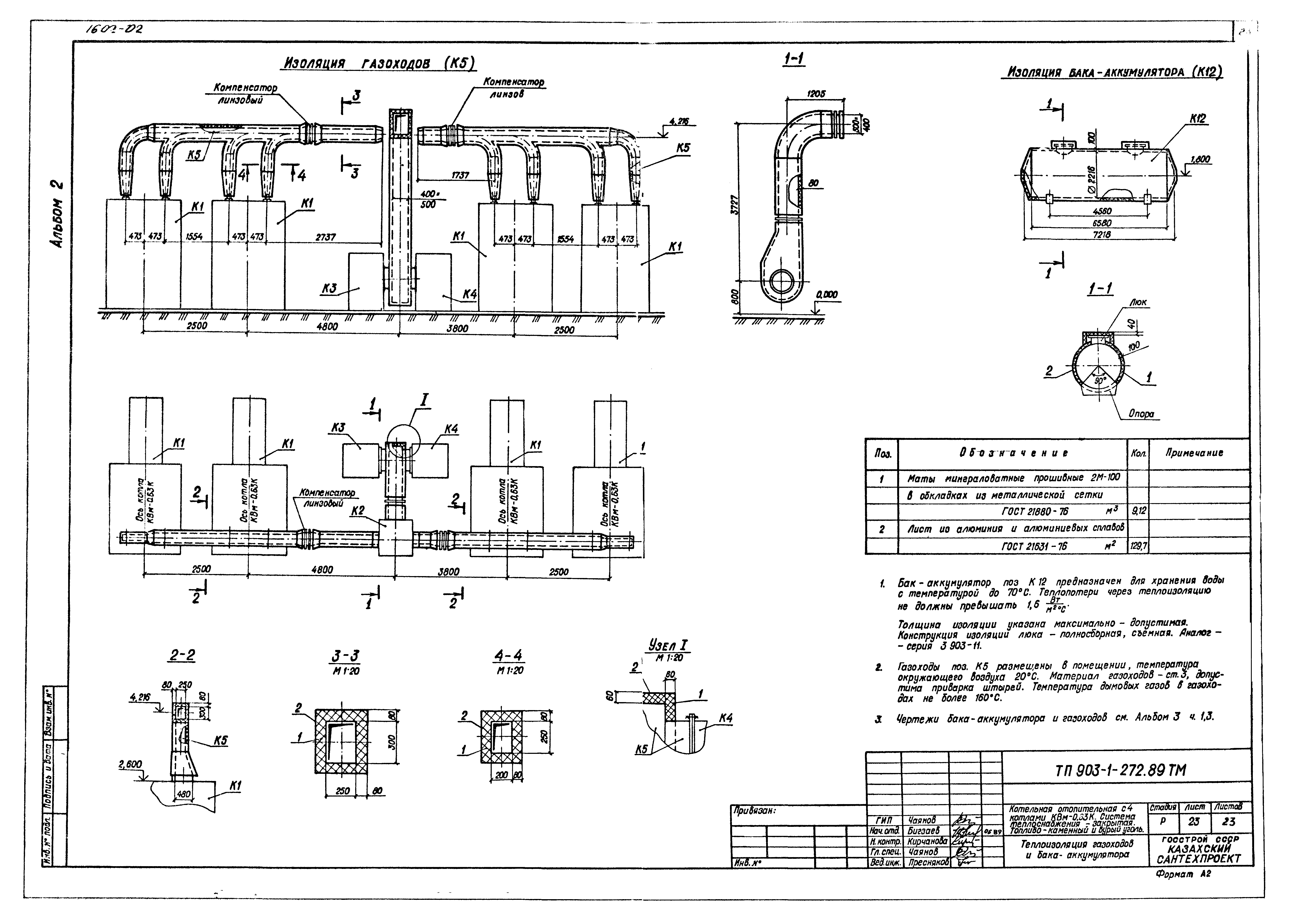
   Теплоизоляция газоходов и бака-аккумулятора
Чертежи марки ВП
   Общие данные
   Компоновка оборудования. Планы на отм. 0.000; 2.300. Разрезы 1-1, 2-2
   Компоновка оборудования. Разрез 3-3
   Схема монтажная
   Трубопроводы. Планы на отм. 0.000; 2.300. Разрезы 1-1, 2-2
   Трубопроводы. Разрезы 3-3, 4-4, 5-5, 6-6
   Схемы блоков станции водоподготовки
   Трубопроводы. Спецификация
Чертежи марки ОВ
   Общие данные
   План на отм. 0.000. Схема системы отопления. Схемы систем ВЕ1 - ВЕ5
Чертежи марки ВК
   Общие данные
   План на отм. 0.000. Фрагмент плана №1
   Схемы систем В1, Т3, К13, К1, В3
Чертежи марки ТП
   Общие данные
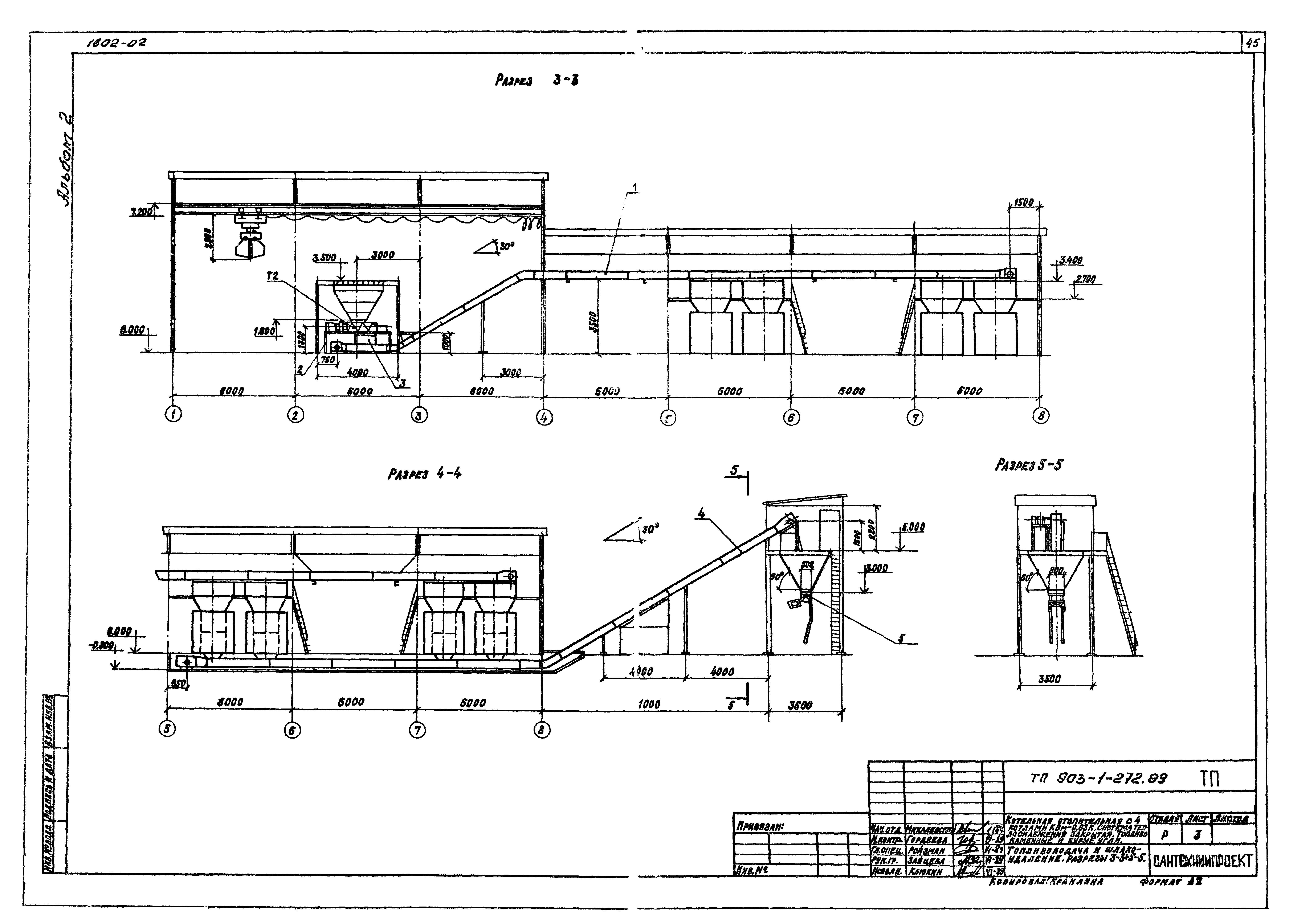
   Топливоподача и шлакоудаление. План. Разрез 1-1 и 2-2
   Топливоподача и шлакоудаление. Разрезы 3-3 - 5-5
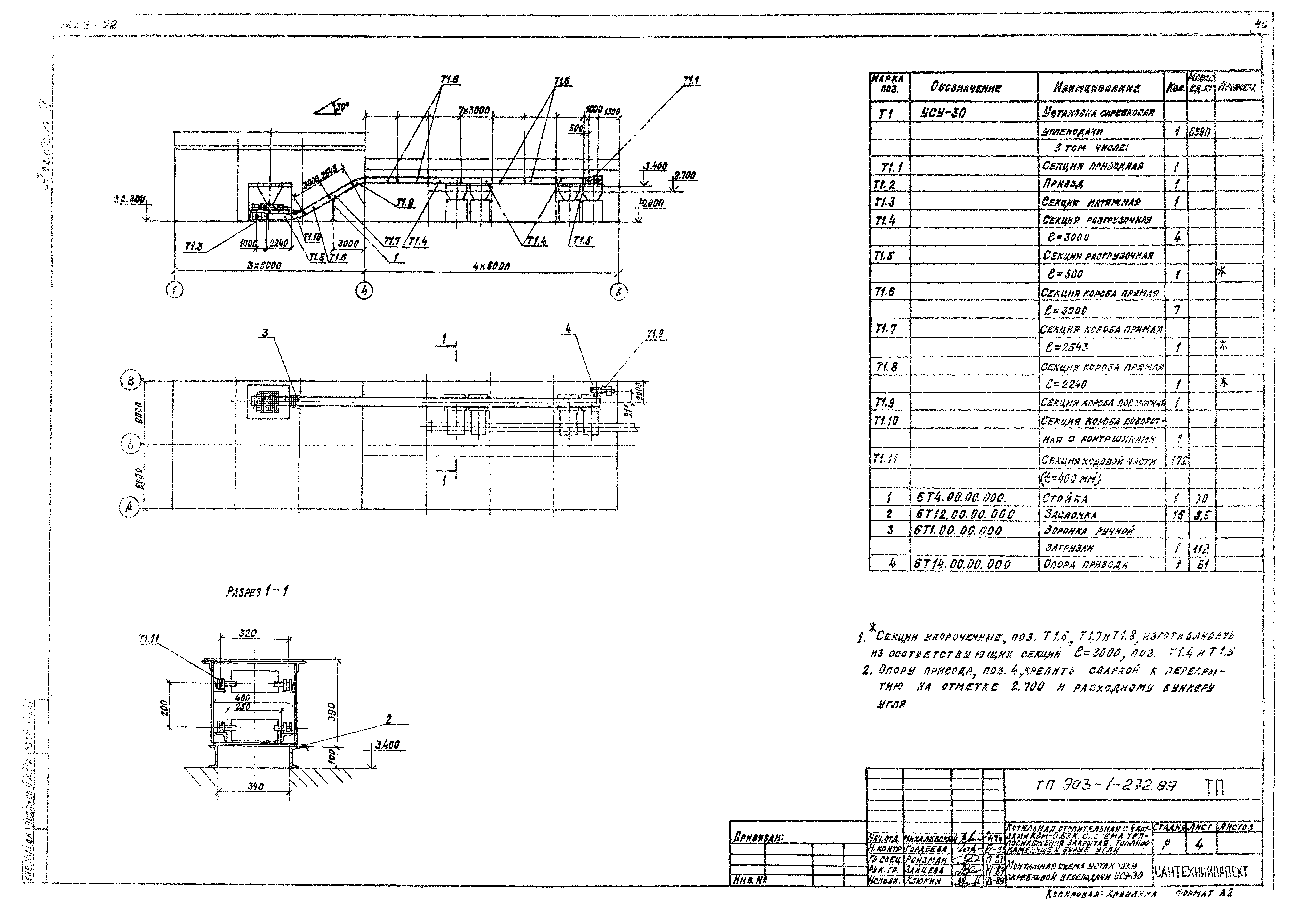
   Монтажная схема установки скребковой углеподачи УСУ-30
   Монтажная схема установки скребковой шлакоудаления УСШ-5
Разработан: Казахский Сантехпроект
Утверждён:28.06.1989 Госстрой СССР (Государственный комитет Совета Министров СССР по делам строительства) (USSR Gosstroy 9)
Расположен в:Техническая документация Строительство Справочные документы Типовые строительные конструкции, изделия и узлы Общероссийский строительный каталог Промышленные предприятия, здания и сооружения Здания и сооружения санитарно-технические Теплоснабжение Котельные установки Закрытые системы теплоснабжения Топливо - каменные и бурые угли
Типовой проект 903-1-272.89Типовой проект 903-1-272.89Типовой проект 903-1-272.89Типовой проект 903-1-272.89Типовой проект 903-1-272.89Типовой проект 903-1-272.89Типовой проект 903-1-272.89Типовой проект 903-1-272.89Типовой проект 903-1-272.89Типовой проект 903-1-272.89Типовой проект 903-1-272.89Типовой проект 903-1-272.89Типовой проект 903-1-272.89Типовой проект 903-1-272.89Типовой проект 903-1-272.89Типовой проект 903-1-272.89Типовой проект 903-1-272.89Типовой проект 903-1-272.89Типовой проект 903-1-272.89Типовой проект 903-1-272.89Типовой проект 903-1-272.89Типовой проект 903-1-272.89Типовой проект 903-1-272.89Типовой проект 903-1-272.89Типовой проект 903-1-272.89Типовой проект 903-1-272.89Типовой проект 903-1-272.89Типовой проект 903-1-272.89Типовой проект 903-1-272.89Типовой проект 903-1-272.89Типовой проект 903-1-272.89Типовой проект 903-1-272.89Типовой проект 903-1-272.89Типовой проект 903-1-272.89Типовой проект 903-1-272.89Типовой проект 903-1-272.89Типовой проект 903-1-272.89Типовой проект 903-1-272.89Типовой проект 903-1-272.89Типовой проект 903-1-272.89Типовой проект 903-1-272.89Типовой проект 903-1-272.89Типовой проект 903-1-272.89Типовой проект 903-1-272.89Типовой проект 903-1-272.89Типовой проект 903-1-272.89Типовой проект 903-1-272.89Типовой проект 903-1-272.89Типовой проект 903-1-272.89

© 2013 Ёшкин Кот :-) Карта сайта